legnoarchitettura 02

Page 1

incontri progetti techné sistemi dettagli EdicomEdizioni www.edicomedizioni.com servizio clienti 0481 713737 Per informazioni su abbonamenti, modalità di consultazione della rivista digitale, iscrizione alla e-news e calendario meeting: www.legnoarchitettura.com digital | review | e-news | meeting I l m o d o m i g l i o r e p e r c o n o s c e r e l ’ a r c h i t e t t u r a i n l e g n o
digital e-newsmeeting

legnoarchitettura

rivista trimestrale

anno II – n 2, gennaio 2011 ISSN 2039-0858

Numero di iscrizione al ROC: 8147

direttore responsabile

Ferdinando Gottard

redazione Lara Bassi, Lara Gariup

editore

EdicomEdizioni, Monfalcone (GO)

redazione e amministrazione

via 1° Maggio 117 34074 Monfalcone - Gorizia tel 0481 484488, fax 0481 485721

progetto grafico

Lara Bassi, Lara Gariup

stampa Grafiche Manzanesi, Manzano (UD)

Stampato interamente su carta

riciclata ottenuta da fibre selezionate prezzo di copertina 15,00 euro abbonamento 4 numeri

Italia: 50,00 euro - Estero: 100,00 euro

Gli abbonamenti possono iniziare, salvo diversa indicazione, dal primo numero raggiungibile in qualsiasi periodo dell’anno distribuzione in libreria

Joo Distribuzione

Via F Argelati 35 – Milano copertina

Uffici, ARCH°BUERO KALTENEGGER

Foto: Harald Eisenberger

È vietata la riproduzione, anche parziale, di articoli, disegni e foto se non espressamente autorizzata dall’editore baukraft 6

Analisi di un edificio bioclimatico elementi massicci senza colla e ferro

105 Prestazioni di costruzioni leggere in periodo estivo

78
Wett Günther R chard 68 12
Foto
Foto: Harald Eisenberger
02 legnoarchitettura
Foto R no Giard ello
89 97
incontri techné sistemi dettagli
parete esterna solaio

Casa studio plankensteiner & steger architekten46

Condominio Leonardo Mauro Rossaro / Massimiliano Vanella 58

Uffici arch°buero Kaltenegger 68 Casa unifamiliare fgp st.udio 78

34 46 22 58 F o t o A n t o n o T a t a g i o n e e F a n c e s c o L o n g a n o F o t o J ü g e n E h e m Foto Ulr ch Egger
Biovital Hotel baukraft 12 Case a schiera Francesco Longano 22 Headquarter Markus Tauber Architectura 34
12 progetti F o o D o m u s M e r a

baukraft

baukraft architektur, studio fondato dagli architetti Dominik Rieder e Georg Rubner, opera da anni nell’ambito dell’edilizia ecosostenibile, in cui il legno gioca un ruolo fondamentale, non solo costruttivo ma anche estetico

Nel 2006 hanno vinto il premio CasaClima per la sede della ditta Rubner a Chienes e nel 2009 il Theiner ’s Garten Biovital Hotel di Gargazzone è stato il primo hotel ad ottenere il sigillo di qualità ClimaHotel

MOOSMAIR – Campo Tures/BZ (2003-2007)

Primo progetto alberghiero di baukraft

Già in questo primo lavoro il legno è l’elemento dominante nell’edificio, pur non essendo impiegato come materiale strutturale (a parte il tetto e i balconi), ma solo come rivestimento interno ed esterno

Si vedano infatti a lato le due immagini.

Il legno diventa la naturale prosecuzione tra l’ambiente interno ed esterno e viceversa.

I lavori, iniziati nel 2003, sono stati completati nel 2007.

Come nasce baukraft? Cosa vi ha unito e vi unisce?

E perché “baukraft”?

Baukraft nasce quasi per caso, per volontà di un committente che ci ha unito per realizzare un progetto nel 2002 Ci lega la stima reciproca e forse anche la diversità di formazione e del background culturale, che nel nostro caso, invece di essere un ostacolo, si è trasformato in vantaggio Per quanto riguarda il nome baukraft la traduzione in italiano, letteralmente “forza del costruire”, non rende l’idea L’intenzione era, ed è, di comunicare la competenza nello sviluppare un progetto non solo dal punto di vista architettonico ma anche finanziario, attraverso il rispetto dei tempi e dell’offerta, in pratica un servizio a 360°

6 legnoarchitettura 02 incontri incontri
HOTEL
F o o W e t G ü n t h e r R c h a d F o o W e t G ü n h e R c h a d

RUBNER SEDE AZIENDALE –Chienes/BZ, 2006

La nuova sede della Rubner Haus rappresenta tra gli edifici lavorativi un esempio di fabbricato ad altissima prestazione energetica, 7 kWh/m2anno, conforme agli standard delle case passive; i ridotti consumi energetici sono raggiunti utilizzando anche materiali sostenibili, quali il legno massiccio, la fibra di legno, il gesso. In contrapposizione con l’immagine esterna del fabbricato rigorosa e scura, all’interno lo sfalsamento dei piani e i tre atri a tutta altezza creano continuità e donano allo spazio apertura e trasparenza in un continuo gioco di contrasti Nel 2006 la sede è stata premiata come miglior edificio CasaClima nella categoria “Mondo del Lavoro”

F o t o W e G ü n t h e r R i c h a r d

Avete iniziato a lavorare con il legno fin dal 2003 con il Ristorante e Naturehotel Moosmair a Campo Tures, che è stato anche il vostro primo progetto alberghiero, dove il legno è l’elemento caratterizzante dell’edificio Che ruolo svolge in questo progetto? Assolve solo ad un uso formale o anche a quello strutturale?

Benché la struttura primaria dell’Hotel Moosmair sia ancora in cemento armato e laterizio, l’aspetto esteriore suggerisce in effetti una struttura in legno Questo è dovuto al fatto che il tetto, i balconi, alcune scale e alcuni elementi interni sono stati pensati in modo strutturale, cioè non come semplice rivestimento ma come parti autonome di un organismo in c a

Cosa significa progettare con strutture in legno e cosa spinge un progettista a scegliere una struttura leggera in legno, piuttosto che sistemi pesanti?

In alcuni casi, come per esempio nelle ristrutturazioni, la scelta del legno come materiale costruttivo è dettata dal “fattore peso” Aggiungere, come spesso accade, un piano ad una struttura alberghiera esistente, comporta grossi interventi statici se realizzata con sistemi pesanti e grossi sforzi economici per il committente Una struttura in legno, invece, negli ampliamenti trova il suo campo d’azione naturale

Il ricorso al legno quale struttura di un edificio è una scelta dovuta solamente al contesto in cui gli edifici trovano

collocazione oppure è una decisione dettata da altri fattori? Che ruolo svolge il committente?

Salvo alcune eccezioni, pensiamo che il legno possa essere utilizzato in quasi tutte le condizioni climatiche e su tutto il territorio: è importante però saper coniugare architettura e aspetti tecnologici con il sito Non difendiamo il legno ad oltranza, ma consideriamo la sua potenzialità costruttiva con molto pragmatismo, così come guardiamo anche ad altri materiali edili sotto questo aspetto Sicuramente c’è una certa “simpatia”, affinità, per questo materiale e per il modo di costruire che richiede Il committente a sua volta, scegliendolo, deve essere consapevole che un edificio in legno comporta un modo diverso di vivere gli spazi

Uno dei primi fabbricati per uffici in Italia in standard passivo è la sede della Rubner Haus che avete progettato assieme all’arch Gerd Bergmeister: quali sono le caratteristiche architettoniche ed energetiche che un luogo di lavoro dovrebbe possedere per essere considerato ideale? È complesso rispondere a questa domanda Se pensiamo al posto di lavoro in un ufficio, di sicuro questo deve essere luminoso (luce naturale) e deve offrire spazio per la comunicazione e per il lavoro Forse deve assomigliare più ad una casa privata piuttosto che a un edificio “intelligente” Il mondo del lavoro sta cambiando, in modo sempre più veloce ed imprevedibile, e proprio per questo gli spazi devono essere “semplici”

CARAVAN PARK –Sesto/BZ 2005-2006

Una piscina coperta in sotterraneo con vista sulle Dolomiti: è l’elemento che caratterizza l’hotel, il quale si inserisce nell’ambiente assecondando la morfologia del terreno Le forme dei pilastri e i colori della piscina e della zona wellness richiamano l’architettura organica, dove ambiente costruito e ambiente naturale concorrono alla formazione di uno spazio architettonico che diventa un organismo vivente e dove l’estetica non rimane pura ricerca.

8 legnoarchitettura 02
incontri F o o W e t G ü n h e R c h a d

Un

9 CASA SULL’ALBERO –
Sesto/BZ 2008
F o o : L e t g e b G ü n h e e A n d e a H o z e F o o L e t g e b G ü n t h e r e A n d r e a H o z e r
divertissement dall’esito particolarmente riuscito

Un’altra vostra realizzazione, il Theiner’s Garten BIO Vitalhotel a Gargazzone, è la prima struttura certificata ClimaHotel dall’Agenzia CasaClima Per questo progetto avete utilizzato un sistema costruttivo in legno massiccio con tavole giuntate a pettine senza uso di collanti o parti metalliche. Cosa vi ha spinto a scegliere questo sistema e secondo voi quali sono le possibilità che esso offre?

artificiale e costruita si contrappone un ritorno alla natura che viene ri-apprezzata: cosa vi ha portato a progettare tale edificio? È stata una richiesta della committenza oppure è stata solo volontà di sperimentazione?

La Casa sugli alberi, voluta dal committente, ha un iter progettuale completamente diverso dagli altri nostri progetti Diciamo che è stato un lavoro giocoso,

HOTEL PLANTITSCHERHOFMerano/BZ 2007-2008

Progettazione esecutiva, direzione lavori e progettazione degli arredamenti: un incarico seguito fin dall'inizio, realizzando una struttura che si caratterizza per alto comfort energetico ed ambientale

La filosofia del committente si è sempre basata sul fattore ecologia, iniziando dall’agricoltura, che segna l’inizio dell’attività della famiglia Theiner, sino ad arrivare al settore turistico La stessa clientela del Theiner ’s Garten è molto sensibile e informata riguardo tutti gli aspetti della sostenibilità ecologica A partire da questi presupposti è stato richiesto un progetto coerente e senza compromessi, anche dal punto di vista tecnico Abbiamo valutato diversi metodi costruttivi in legno e, alla fine, il sistema parete con tavole giuntate a pettine senza uso di collanti si è dimostrato quello più idoneo, offrendo allo stesso tempo caratteristiche di abbattimento acustico e di isolamento termico in linea con le richieste

A Sesto avete progettato la Casa sugli alberi, un tema che richiama sia il ritorno al passato quanto anche un modo di progettare contro tendenza, dove alla frenesia della realtà

quasi uno scherzo Dopo i primi schizzi è stata realizzata una piattaforma fra quattro alberi; su questa è stata disegnata la pianta in scala 1:1 Per il resto abbiamo fatto come facevamo da bambini, quando costruivamo le case sugli alberi, cioè improvvisando È stato un po’ come tornare all’infanzia! Ovviamente abbiamo tenuto conto che d’inverno la temperatura scende spesso a 20° sotto zero e che tutti gli impianti tecnici devono funzionare come in una casa normale Per costruire in questo modo servono però bravi artigiani, un committente fiducioso e la voglia di lasciarsi sorprendere

Secondo voi che cos’è la sostenibilità in architettura?

Potrebbe la ricerca della sostenibilità soffocare l’architettura?

Sostenibilità significa per noi soprattutto attenzione alla quantità di energia spesa per produrre un materiale da costruzione; a questa vanno sommati la di-

10 legnoarchitettura 02 incontri

stanza del luogo di produzione dal cantiere, i trasporti ed altri fattori legati al ciclo di vita del prodotto Ogni materiale da costruzione porta con sé questo “zaino ecologico” Scegliere materiali che necessitano di poca energia per essere prodotti e trasportati, per noi significa sostenibilità nell’architettura Per

questo il nostro modo di intendere la sostenibilità non soffoca l’architettura ma è piuttosto un ritorno alla sua essenza Il legno, per reperibilità, lavorazione e durata, è un esempio eccellente di sostenibilità in architettura

E infine, un’ultima curiosità: qual è il progetto a cui siete più legati e perché?

Sicuramente ricordiamo con piacere i progetti che ci hanno permesso di instaurare un rapporto di stima e a volte di amicizia con il committente, ma siamo più legati a quelli ai quali stiamo lavorando, perché ci stimolano a migliorare mettendoci alla prova

THEINER’S GARTEN

BIOVITAL HOTEL –Gargazzone/BZ 2008-2009

Per approfondimenti: www.baukraft.it

Una costruzione massiccia in legno, realizzata utilizzando solo materiale edile di prima scelta sia sotto il profilo biologico che ecologico, integrando eleganza architettonica a bioedilizia.

11
F o o W e t G ü n t h e r R c h a d F o t o W e t G ü n t h e r R i c h a r d F o o W e t G ü n t h e r R c h a d F o t o W e t G ü n h e R c h a r d

Biovital Hotel Gargazzone

baukraft
F o o W e t G ü n t h e r R c h a d

1

Scorcio dell’hotel da una delle camere: il legno è utilizzato come separazione tra le varie stanze, come struttura di ombreggiamento, come pavimentazione, come balaustra

2

Vista all’imbrunire della struttura; in primo piano la piscina esterna, naturale continuazione di quella interna, al piano terra

14 legnoarchitettura 02 progetti
1 F o o W e t G ü n h e R c h a d

Ubicazione: Gargazzone (BZ)

Progetto: arch Dominik Riederbaukraft, Bressanone (BZ)

Strutture: ing A Rigato, Treviso; ing T Schrentewein, Bolzano

Direttore dei lavori: arch Dominik

Rieder

Appaltatore: Rubner Objektbau, Chienes (BZ)

Lavori: gennaio 2008 - marzo 2009

Cubatura totale: 21 636 m3

Legno e turismo

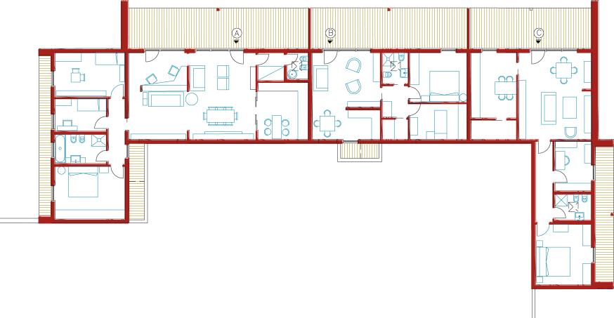
La famiglia Theiner di Gargazzone è nota per essere stata una delle prime imprese a puntare sulla coltivazione biologica in Alto Adige Da qui l’idea – e la necessità – di un “biohotel”, che rappresentasse architettonicamente le idee imprenditoriali e morali del committente La difficoltà dei progettisti, felicemente risolta, è stata proprio quella di fondere le esigenze gestionali di una struttura alberghiera con tutte le sfumature e gli aspetti propri di una filosofia di vita ecologica e biologica Si è optato subito per un orientamento bioclimatico, con uno dei lati lunghi rivolto a sud, verso la vallata (sulla quale affacciano le camere), e un sistema costruttivo che fosse il più naturale possibile, in legno massiccio, larice e cirmolo locali, senza utilizzo di collanti o parti metalliche

Il Biovital Hotel è il primo certificato ClimaHotel, una certificazione di qualità che ha analizzato l’edificio sotto 3 aspetti: Natura, Vita e Trasparenza

Nell’ambito della valutazione “Natura” il Theiner’s Garten ha raggiunto l’efficienza energetica richiesta per l’involucro edilizio, includendo nel progetto le tecnologie che mirano al risparmio idrico (l’irrigazione avviene grazie al riuso delle acque meteoriche; la piscina utilizza un metodo di disinfenzione a base di sali; i prodotti utilizzati per la pulizia hanno certificazione ambientale) La categoria della “Vita” ha analizzato l’orientamento delle 53 camere (verso sud); le pareti in legno di cembro, che favoriscono in modo naturale il riposo notturno e la riduzione del battito cardiaco; il mobilio, tutto rigorosamente in legno, senza ausilio di alcuna parte metallica; il fatto di aver evitato, con opportuni accorgimenti, qualsiasi tipo di elettrosmog

A ciò si aggiungono le scelte consapevoli anche nell’ambito eno-gastronomico che prevedono il consumo di cibi naturali e biologici di provenienza quanto più possibile locale Infine, il criterio “Trasparenza” ha premiato la pianificazione sostenibile del ciclo di vita dell’hotel, a partire dalla costruzione e la gestione fino alla demolizione

15
2

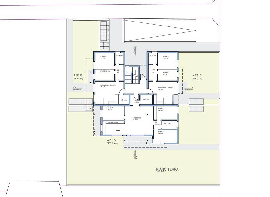
pianta piano terra

La forma in pianta – e in alzato – dell’hotel richiama quella dei vigneti altoatesini, terrazzati L’arretramento progressivo della facciata delle camere superiori permette a ciascuna unità di usufruire di una piccola terrazza verso la vallata senza impedimenti alla vista, oltre che, naturalmente, di godere al massimo dell’illuminazione naturale.

Piano interrato: garage con 40 posti auto (al fine di lasciare il piano terra il più possibile libero dalle auto); piscina con accesso diretto all’esterno; zona wellness Piano terra: reception dell’hotel; backoffice; bar; sala pranzo; cucina dell’hotel; spazi per conferenze e aree per i bambini; 8 stanze per gli ospiti (dotate di 2 ambienti separabili da pareti-porte scorrevoli, di una terrazza e di un accesso diretto al giardino) Piani superiori: stanze per gli ospiti (dotate ciascuna di un pergolato con una piccola vigna!; ammobiliate in legno massiccio e rivolte a sud)

pianta primo piano

trasmittanza media elementi costruttivi

pareti esterne (con finitura esterna in legno o intonacata): U = 0,24 W/m2K copertura piana (struttura portante con sistema “brettstapel”): U = 0,21 W/m2K finestre e portefinestre: Uw = 1,30 W/m2K

prestazioni energetiche

per riscaldamento e acqua calda: 50 kWh/m2 anno (prima certificazione ClimaHotel)

emissioni di CO2 evitate: 20 kg CO2/m2 anno

16 legnoarchitettura 02 progetti

3

Interno di una camera con vista sulla valle Come si può notare dalle immagini degli interni, la struttura in legno è lasciata a vista e il mobilio che arreda le camere è totalmente in legno. Le fibre tessili di lenzuola e tendaggi sono fatte con cotone proveniente da piantagioni coltivate biologicamente

17
sezione trasversale sulle scale della hall
3
sezione sulle stanze

Prese elettriche e interruttori sono ridotti al minimo, al fine di diminuire la formazione di campi elettromagnetici Ciò permette di creare delle superfici estremamente “pulite” ma implica anche una precisa progettazione dell’arredamento che diventa quindi parte integrante dell’architettura.

18 legnoarchitettura 02
4 5 F o o W e t G ü n h e R c h a d
19 4 Il locale relax con il camino a legna chiuso e vetrato 5 La zona wellness 6
F o o W e t G ü n h e R c h a d 6 F o o W e t G ü n h e R c h a d
La scala che collega la zona della reception al piano superiore

Per le pareti divisorie sono stati utilizzati due differenti tipi di costruzione Il tipo 1 prevede che il legno strutturale rimanga a vista mentre il tipo 2, più complesso, prevede la sovrapposizione di un pannello di finitura in argilla che funge, tra l’altro, da pannello radiante a parete all’interno del quale, a seconda delle stagioni, viene fatta scorrere acqua calda o fredda

Parete interna tipo 1 (Rw 55 dB): parete in legno massiccio (12 cm); fibra di legno (4 cm); camera di ventilazione (2 cm); parete in legno massiccio (12 cm)

Parete interna tipo 2 (Rw 61 dB): intonaco in argilla (3 cm); doppio pannello in cartongesso (2x1,25 cm); pannello in legno (8 cm); fibra di legno (6 cm); pannello in cartongesso (1,25 cm); camera di ventilazione (2,5 cm); pannello in legno (8 cm); fibra di legno (6 cm); doppio pannello in cartongesso (2x1,25 cm); intonaco in argilla (3 cm)

Parete esterna con rivestimento in legno (da int verso est ): parete in legno massiccio a vista (18 cm); fibra di legno + listellatura (12 cm); guaina antivento; controlistellatura in abete non trattato (4 cm); rivestimento con listellatura romboidale in larice non trattato (2 cm)

Parete esterna intonacata (da int verso est ): parete in legno massiccio a vista (18 cm); fibra di legno + listellatura (12 cm); fibra di legno ad alta densità (5 cm); intonaco (1 cm)

parete-tipo di separazione tra le camere 1

il sistema costruttivo

parete-tipo di separazione tra le camere 2

Il sistema costruttivo in legno massiccio per pareti e solai utilizzato nella realizzazione del Theiner ’s Hotel è un sistema assolutamente naturale ed ecologico, essendo prodotto completamente senza uso di collanti o giunzioni in metallo Gli elementi massicci, costruiti con una tecnica di stratificazione che dona eccellenti proprietà statiche, acustiche e termiche, sono concepiti come blocchi multistrato autoportanti, composti da tavole di legno massiccio rettangolari, affiancate in verticale e giuntate a pettine Gli strati, così composti e realizzabili con differenti tipi di legno e con lato esterno rifinito a scelta, sono uniti tra di loro mediante tasselli in legno giuntati a coda di rondine Massima libertà è lasciata al progettista poiché gli elementi del sistema sono prodotti solo su misura, risparmiando pertanto materia prima che viene scelta con estrema cura (in prevalenza abete rosso)

parete esterna con rivestimento in legno

parete esterna intonacata

20 legnoarchitettura 02 progetti
esterno interno esterno interno

Vista dall’alto delle prime fasi di cantiere e montaggio delle strutture in legno

Prime fasi di montaggio delle strutture delle camere e fasi della costruzione in elevazione con la base in c.a. in primo piano.

La struttura in fase avanzata e la posa della guaina di sottotetto

Il lato nord con le aperture che si chiudono a protezione dell’edificio e il vano di servizio in c a

Tutte le strutture fuori terra sono state realizzate in legno massiccio, solo quelle a diretto contatto con il terreno sono state costruite in cemento armato

21

Case a schiera Monopoli

Francesco Longano

1

Il prospetto principale, quello relativo agli ingressi e alla zona giorno, è orientato a sud

2

Le zone a sud, a est e ovest sono protette dall’irraggiamento e dalla pioggia grazie ad adeguate tettoie

24 legnoarchitettura 02 progetti
1

2

Ubicazione: Monopoli (BA)

Committente: I L Immobiliare Longano sas, Monopoli (BA)

Progetto: arch Francesco Longano, Monopoli (BA)

Strutture: arch Francesco Longano, Monopoli (BA)

Progettista impianti: ing. Giuseppe

Bitetti, Bari

Direttore dei lavori: geom Antonella De Marco, Monopoli (BA)

Appaltatore: Rubner Haus Spa, Chienes (BZ)

Lavori: marzo 2007 - settembre 2008

Superficie fondiaria: ca 2 000 m2

Superficie utile: ca. 270 m2

Superficie verde: 650 m2

Importo dell’opera: ca 500 000 €

Fotografie: Antonio Tartaglione e Francesco Longano

Il legno in clima mediterraneo

L’idea di costruire e intervenire in modo più corretto ed equilibrato sul territorio in funzione dell’uomo e della natura è stata lo spunto per adottare in Puglia un sistema costruttivo in legno, materiale estraneo alle tradizioni locali Il progetto ha interessato il recupero di un vecchio fabbricato, interamente demolito e ricostruito, utilizzando essenzialmente criteri e materiali di bioedilizia ed ottenendo un prodotto finale di eccellente classe energetica certificata La ristrutturazione ha portato alla realizzazione di tre unità residenziali a schiera indipendenti con giardini pertinenziali e superfici esterne ad uso collettivo Progettualmente si è mirato a risolvere il più possibile gli aspetti relativi al “benessere dell’utilizzatore”, tenendo presente l’obiettivo della riduzione significativa dei consumi energetici, “riscoprendo” valori ed esperienze del passato in una visuale ecologica, e quindi globale, e rivivendo quei legami esistenziali e viscerali tra l’uomo e il legno

L’ottimale isolamento termico in un clima mediterraneo ha richiesto particolare attenzione nella scelta dei materiali e delle tecniche per le opportune coibentazioni sia delle pareti verticali che delle coperture

Particolare interesse, oltre all’impianto elettrico gestito interamente da un sistema di domotica centralizzata e pannelli solari per la produzione di acqua calda sanitaria, riveste l’impianto di climatizzazione caldo-freddo realizzato con sistema ad irraggiamento a soffitto, integrabile col solare termico e fotovoltaico Il sistema consiste in superfici di cartongesso a soffitto che si scaldano in inverno e si raffrescano in estate, coadiuvate, in funzionamento estivo, da un sistema per deumidificare, integrare e rinnovare l’aria degli ambienti garantendo un confort elevato agli occupanti sia in condizioni estive sia in quelle invernali

25

Il progetto ha comportato uno studio per la massimizzazione dell’illuminazione naturale interna attraverso finestre poste a varia altezza, oltre a lucernai a soffitto

3

L’affaccio sul giardino dell’unità immobiliare a sud-est

pianta piano terra

prospetto ovest

prospetto est prospetto sud

26 legnoarchitettura 02 progetti
3
B B A A

Stratigrafie (dall’interno verso l’esterno)

Parete esterna isolata (A): parete (9 cm); freno vapore; listelli (5/10 cm); isolamento in canapa (6 cm); carta traspirante; perlinatura grezza (2,4 cm); lastra da cappotto in legno di abete (4 cm); intonaco (0,7 cm)

Tetto inclinato (B): travi (12/16 cm); pannelli in cartongesso (2 cm); carta catramata; controlistelli (6x16 cm); controlistelli (5x5 cm); pannelli in canapa (21 cm); assito grezzo (2,4 cm); guaina isolante rinforzata; controlistelli (5x5 cm); listelli (5x5 cm); tegole in cotto

Solaio esterno contro terra (C), stratigrafia dall’esterno verso le fondazioni: pavimento in larice (2,4 cm); listelli (6/8 cm); carta catramata; basamento in cemento isolato tramite casseri a perdere areati

Solaio contro terra (D), stratigrafia dall’interno verso le fondazioni: pavimento in larice (2 cm); isolamento in canapa (10 cm); listelli (6/10 cm); carta catramata; basamento in cemento isolato tramite casseri a perdere areati

Parete esterna non isolata (E): parete (9 cm); listelli (5/10 cm); perlinatura grezza (2,4 cm); lastra da cappotto in legno di abete (4 cm); intonaco (0,7 cm) trasmittanza media elementi costruttivi

pareti esterne: U = 0,446 W/m2K solaio contro terra: U = 0,54 W/m2K copertura: U = 0,167 W/m2K superfici trasparenti: Uw = 1,4 W/m2K

prestazioni energetiche

per riscaldamento: 22,1 kWh/m2 anno per acqua calda: 1,9 kWh/m2 anno emissioni di CO2 evitate: 4,8 t/a

27
sezione AA
A B C D E
sezione BB
28 legnoarchitettura 02 progetti
29

Dettaglio del raccordo copertura inclinatacopertura piana:

1 - listello (6/10 cm);

2 - tavola controvento (22 cm) fissata su listelli;

3 - lamiera;

4 - tavola controvento (26,5 cm) fissata su listelli;

5 - lamiera;

6 - listelli (2x6/10 cm);

7 - guaina saldata;

8 - camera di ventilazione con listello di aerazione (6-8 cm);

9 - nastro adesivo;

10 - isolamento fibra di legno (5+8+8 cm);

11 - tubo di ventilazione;

12 - telo vapore

Dettaglio copertura piana:

1 - tavola controvento (26,5 cm) fissata su listelli;

2 - lamiera;

3 - listelli (2x6/10 cm);

4 - nastro adesivo;

5 - guaina saldata;

6 - camera di ventilazione con listello di aerazione (6/8 cm);

7 - isolamento fibra di legno (5+8+8 cm);

8 - tubo di ventilazione;

9 - telo vapore

dettaglio raccordo copertura inclinata-copertura piana

dettaglio copertura piana

4

Un particolare dell’impianto radiante a soffitto

5

Coibentazione del pavimento: riempimento a secco tra i listelli con canapa

30 legnoarchitettura 02 progetti
1 2 3 4 5 6 7 9 12 11 8 10 1 2 3 4 5 6 7 9 8 4 5

6 7 8

Interni Al centro si noti la schermatura esterna a lamelle Il legno non è “coperto” internamente ma ha subito un trattamento sbiancante

31
6 7 8

10

Il lungo blocco centrale dell’edificio con lo sporto del tetto per l’ombreggiamento estivo

il sistema costruttivo

Il sistema impiegato per la realizzazione di queste residenze è in travi di legno lamellare di abete Pilastri e architravi sono stati dettagliatamente progettati e tagliati per essere poi assemblati in cantiere Lo schema costruttivo consente una parete più sottile e una sezione maggiorata dello strato isolante con migliori prestazioni termiche L’isolamento di questo sistema prevede l’utilizzo di un pannello di fibra di legno di abete monostrato legato con resina e ideato per le sole costruzioni in legno Il sistema è una variante del Blockhaus con stratigrafia della parete capovolta, ovvero: la struttura con elementi in legno massiccio sovrapposta è posizionata verso l’interno, mentre l’isolamento con interposta camera di ventilazione è all’esterno

impianti

Nel progetto per le residenze è prevista l’installazione di un impianto solare termico per la produzione di acqua calda sanitaria (2,69 m2), la predisposizione per un impianto fotovoltaico (potenza 4,4 kW per alloggio), una pompa di calore aria-acqua per il riscaldamento mentre la distribuzione del calore avviene tramite soffitto radiante È stata installata una centralina computerizzata di domotica per il controllo e la gestione di tutti gli impianti È previsto il recupero delle acque piovane e il loro riutilizzo per gli scarichi dei wc e l’irrigazione dei giardini

32 legnoarchitettura 02 9
facciata esposta a sud immersa negli uliveti
Veduta della
9 10

Le varie fasi del cantiere, dalla costruzione delle fondazioni aerate con cupolette alla realizzazione delle pareti esterne intonacate

33
Markus Tauber Architectura
F o o U c h E g g e r
Headquarter Lagundo

Due viste dell’edificio da nord-ovest Il rivestimento esterno, pur non essendo di legno, ne richiama la colorazione naturale

36 legnoarchitettura 02 progetti 1 2
F o o U c h E g g e r 1

Ubicazione: Lagundo (BZ)

Progetto: arch Markus TauberMarkus Tauber Architectura, Bressanone (BZ)

Strutture: Ingenieureteam Maia, Merano (BZ)

Direttore dei lavori: arch Markus Tauber, Bressanone (BZ)

Appaltatore: Holzhaus & Co KG, Silandro (BZ)

Lavori: maggio 2008 - giugno 2009

Superficie utile: 1 148,61 m2

Superficie coperta: 472,8 m2

Importo dell’opera: 1 850 000 €

Headquarter e showroom in legno e vetro

La nuova sede della ditta Karl Pichler di Lagundo, specializzata nella vendita di legnami pregiati, si presenta come un edificio moderno, volutamente compatto per esigenze di contenimento delle dispersioni termiche, composto da unità funzionali chiaramente definite e ordinate

L’edificio è pensato per essere, oltre che sostenibile, pratico e funzionale: un corpo sporgente in legno e vetro invita le persone a entrare nel foyer dal quale si può accedere allo showroom, dominato dal tema “legno” onnipresente, oppure salire le scale che portano al piano superiore dedicato agli uffici

L’ascensore e i vani accessori sono collocati in un elemento verticale posto a fianco dell’ingresso e della scala principale che conduce fino all’ultimo piano Da qui si ha accesso a uno spazio esterno, ricavato pavimentando una parte del tetto piano, utilizzabile per esposizioni ma anche come luogo di relax per i lavoratori

L’edificio è allineato, sul lato lungo, verso est e, parzialmente, verso sud, così da sfruttare per quanto possibile l’energia passiva del sole, nonostante il problema principale del comfort interno di edifici di questo tipo sia la protezione dal calore piuttosto che dal freddo A questo i progettisti hanno cercato di ovviare con un elevato isolamento e vetri con protezione dai raggi solari

In generale, grande importanza è stata data ad un’accurata progettazione di tutti gli aspetti di fisica tecnica del complesso, non solo quelli relativi al comfort termico ma anche a quello acustico La facciata è di tipo ventilato, le vetrate strutturali, visto anche il loro massiccio impiego nell’edificio, hanno tripli vetri

Il riscaldamento è demandato a un impianto con caldaia centrale a pellet, che come tale sfrutta materia prima rinnovabile e quindi con emissioni di CO2 praticamente neutrali

37
F o t o U r c h E g g e 2

Il foyer centrale che “buca”

tutte e tre le piante È ben visibile l’utilizzo del legno, anche come rivestimento interno, e del vetro, materiali che caratterizzano architettonicamente l’edificio

38 legnoarchitettura 02 progetti 3
±0,00 ±0,00 ±0,00 ±0,00 ±0,00 B B A A +3,60 B B A +7,00 B B A planimetria
pianta
F o o U c h E g g e r 3
pianta primo piano secondo piano

trasmittanza media elementi costruttivi

pareti esterne: U = 0,22 W/m2K solaio contro terra: U = 0,22 W/m2K copertura: U = 0,16 W/m2K superfici trasparenti: Uw = 0,7 W/m2K prestazioni energetiche

consumo energetico per riscaldamento e acqua calda: 37 kWh/m2 anno emissioni di CO2 evitate: 6,56 t/anno percentuale delle energie rinnovabili utilizzate sul totale: 70,54%

Vista del lato sud-ovest

39 4 Vista dell’entrata 5
sezione A-A
F o o U c h E g g e r F o o U c h E g g e r 45
sezione B-B

prospetto sud-ovest

prospetto sud-est

prospetto nord-ovest

prospetto nord-est

il sistema costruttivo

La struttura, in acciaio e legno, si basa su assi modulari fissi di 90 cm o multipli: le pareti sono realizzate con elementi prefabbricati in legno a telaio composto da montanti in legno massiccio e da tamponamenti interni in lastre di fibre di gesso ed esterni in pannelli DWD che soddisfanno le prescrizioni tecniche e statiche Nell’intercapedine tra i montanti è stata inserita la coibentazione termica e acustica

La struttura del tetto e dei solai è realizzata con elementi prefabbricati composti di tavole accatastate incollate tra loro – Brettstapel – con spessori di 20 cm per il tetto e di 20-24 cm per i solai interpiano Le traverse portanti in acciaio sono incassate e coperte da un pannello in legno massiccio così da lasciare la superficie inferiore perfettamente piana Per questo motivo anche l’illuminazione dello showroom è a incasso Il solaio poggia semplicemente sulle traverse in acciaio, coperte da pannelli in legno, e integra in modo non visibile l’areazione di tutti gli uffici e l’illuminazione del corridoio La parte inferiore è in legno a vista Il primo solaio è appeso a quello sovrastante con tiranti sottili in acciaio

I carichi verticali sono ripartiti, attraverso i solai in legno che superano una luce netta di 6,25 m, direttamente e rispettivamente nelle pareti a telaio e nelle colonne in acciaio I carichi di controventatura e rafforzamento sono neutralizzati attraverso l’esecuzione delle strutture del tetto e dei solai in forma di piastre che distribuiscono uniformemente i carichi nelle sottostrutture (ascensore, muri e colonne)

40 legnoarchitettura 02 progetti

Tetto piano (A): strato di ghiaia (grana 12-32 mm, spessore 100 mm); tessuto non tessuto di protezione 600 g/m2; strato di impermeabilizzazione in vetroresina OVC (1,5 mm); pannello OSB con pendenza del 2% (25 mm); camera d’aerazione sottotetto; isolamento in fibra di legno incollata (200 mm); barriera al vapore in alluminio con doppio strato bituminoso; soffitto a vista in pannelli “Brettstapel” (200 mm)

Parete esterna (B): pannello di facciata (6 mm); ventilazione; pannello DWD (16 mm); isolamento (200 mm); pannello in gessofibra (15 mm)

Parete contro terra (C): telo bugnato PE-HD; isolamento perimetrale in XPS (100 mm); strato di emulsione bituminosa (min 2,5 mm); parete in c a (300 mm)

Solaio interpiano (D): tavolato in legno (17 mm); pannello portante (34 mm); piedini di supporto a interasse di 60 cm (altezza variabile); pellicola in PE incollata; soffitto a vista in pannelli “Brettstapel” (200 mm)

Solaio interpiano (E): finitura pavimento in gres porcellanato (11 mm) posato a colla (4 mm); strato di posa dell’impianto di riscaldamento a pavimento (65 mm); isolamento contro i rumori da calpestio in PP (10 mm); pannello isolante XPS (80 mm); sottofondo in perlite (80 mm); struttura portante in c.a. (250 mm)

Pavimento attacco a terra (F): sigillatura in resina; pavimento continuo di tipo industriale (150 mm); vetroresina incollata, impermeabilizzata con strato bituminoso; strato inferiore in cls (100 mm); strato di livellamento; materiale di riempimento

Sezione trasversale (stratigrafie dall’esterno verso l’interno)

41
E F D B
C
F o o U c h E g g e r 6

6

Lo spazio centrale al primo piano con la luce naturale dall’alto

Il controsoffittamento dei solai ha permesso di incassare l’illuminazione, contribuendo così alla creazione di spazi dalle linee pulite e minimaliste.

7 8 9 10

Negli spazi interni legno e vetro caratterizzano gli ambienti

43
F o t o U i c h E g g e r F o o : U l c h E g g e r F o o U c h E g g e r F o o U c h E g g e r 7 8 9 10

Sezione di dettaglio (stratigrafie dall’esterno verso l’interno)

1 - pannello OSB (25 mm) con listello di legno (40/40 mm); 2 - apertura per l’aerazione del tetto ventilato;

3 - pannello OSB (25 mm) con listello di legno (40/40 mm); 4 - lamiera perforata in alluminio (1 mm) e rete posteriore nera antinsetto;

5 - rivestimento ultimo piano (fibra di legno, 80 mm; pannello DWD, 16 mm; telo tenuta all’aria; pannello di rivestimento facciata);

6 - anello di tenuta;

7 - isolamento di contorno;

8 - tavola di testa (48/360 mm)

9 - anello di tenuta; 10 - lamiera perforata in alluminio (1 mm) e rete posteriore nera antinsetto; 11 - rivestimento in legno (20 mm);

12 - isolante in XPS (160x160 mm);

13 -strato filtrante in ghiaia rotonda lavata; 14 - tubo di drenaggio e filtraggio e scolo acque; 15 - filtro in feltro (0,7 mm); 16 - fuga di sigillatura

Parete (A): pannello rivestimento esterno (6 mm); sottostruttura/intercapedine d’aria; telo di tenuta all’aria; pannello DWD (16 mm); isolamento termico/struttura portante in legno (200 mm); barriera al vapore (2,3 mm); cartongesso (15 mm)

Tetto ventilato (B): ghiaia (100 mm); feltro protettivo; strato impermeabile (1,5 mm); pannello OSB con pendenza (25 mm); ventilazione del tetto con pendenza e tavolato in legno (180/80 - 250/80 mm); fibra di legno (200 mm); barriera al vapore con doppio strato bituminoso; solaio in legno “Brettstapel” a vista (200 mm)

Solaio interpiano aggettante (C): pannello di rivestimento esterno (6 mm);

strato di tenuta all’aria; pannello DWD (16 mm); lana di legno (80 mm); struttura portante in legno “Brettstapel” (240/220 mm); piedini di sostegno pavimento doppio in fibra di gesso (35 mm); rivestimento in tavole di legno (17 mm);

Pavimentazione esterna (E): pannelli in cls (200 mm) con superficie lisciata; membrana di separazione in PE; strato di materiale di riporto (200 mm); materiale di sterro compattato

Pavimentazione (F): piastrelle di gres porcellanato (11 mm); strato allettamento (4 mm); massetto per riscaldamento a pavimento (65 mm); isolamento acustico (10 mm); isolamento termico (80 mm); strato di cls poroso e alloggiamento impianti (80 mm); struttura portante c a (250 mm)

Parete controterra (G): membrana alveolare di protezione della muratura; isolamento perimetrale in XPS (100 mm); strato di irrigidimento in malta cementizia e resina sintetica; struttura portante c.a. (300 mm)

Solaio controterra (H): manto esterno; pavimento continuo industriale (150 mm); strato impermeabilizzante in fibra di vetro con strato bituminoso; strato inferiore in c a (100 mm); strato di cemento magro (100 mm); strato materiale riciclato (200 mm); materiale di riporto costipato (300 mm)

44 legnoarchitettura 02 progetti
1
2 3 4 5 6 7 8 9 10 13 14 15 16 E F G H 11 12 B C A

Immagini di cantiere

È ben visibile la struttura mista acciaio-legno

Gli spazi destinati agli uffici dei dipendenti sono aperti ma grazie al montaggio di pareti attrezzate, opportunamente insonorizzate, il problema del rumore è stato ridotto al minimo.

Illuminazione e aerazione sono nascoste da un controsoffitto di legno

Da sinistra: il dormiente in legno su cui poggiano le pareti in legno, l’accurata posa dei serramenti, il pavimento “doppio” con i distanziatori per diminuire quanto più possibile i rumori da calpestio.

Due immagini del tettoterrazza in costruzione

Si notino a destra le aperture per la ventilazione

45
F o o ü r g e n E h e m

plankensteiner & steger architekten

Casa studio Brunico

48 legnoarchitettura 02 progetti 1 Vista da sud-est 2 Vista da sud-ovest 1 2 F o o J ü r g e n E h e m F o o ü g e n E h e m

Ubicazione: Brunico (BZ)

Progetto: arch Georg Plankensteiner e arch Anke Steger - plankensteiner & steger architekten, Brunico (BZ)

Strutture: ing Stefano Brunetti, Brunico (BZ)

Direttore dei lavori: arch. Georg Plankensteiner, Brunico (BZ)

Appaltatore: Plankensteiner Holzbau, Brunico (BZ)

Lavori: aprile 2005 - gennaio 2006

Superficie utile: 535 m2

Superficie verde: 24 m2

Importo dell’opera: 690 000 €

Lavorare e vivere nel legno

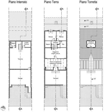
La casa studio, edificata in seguito alla demolizione di un edificio pericolante, è ubicata sulla passeggiata lungo il fiume Rienza, di fronte al centro storico della città di Brunico Il nuovo corpo di fabbrica, realizzato mantenendo lo stesso sedime come previsto dal progetto di recupero, è costituito da quattro piani di cui tre fuori terra: il piano interrato, che occupa tutto il lotto, è adibito a garage e ad archivio, l’ufficio open space, orientato verso sud, con quattro aree di lavoro è situato al piano terreno, mentre al primo piano trovano posto tre uffici divisibili mediante porte scorrevoli in vetro a tutta altezza La sala riunioni al secondo piano si caratterizza per le ampie vetrate che si aprono completamente su tre lati I vani accessori e la leggera scala in acciaio e legno, elemento di collegamento tra i quattro piani, sono collocati a nord

Progettato come edificio a basso consumo energetico e realizzato, per la parte fuori terra, in elementi prefabbricati di legno con travi in legno lamellare e solai in legno massiccio che ne formano la struttura portante, la casa studio è certificata CasaClima A+; tale obiettivo è stato raggiunto attraverso la forma compatta, le ampie vetrate speciali verso sud e ovest e grazie agli alti valori di isolamento termico, in cellulosa, dell’involucro Un impianto di ventilazione controllata permette di contenere le perdite termiche e di garantire un’ottima qualità del microclima interno in tutti gli ambienti; inoltre, in estate, i balconi sporgenti fungono da protezione solare, mentre in inverno le grandi aperture trasparenti consentono un’ottimale resa solare Il ridotto fabbisogno termico aggiuntivo necessario viene ricavato da una pompa di calore geotermica, utilizzata anche per il condizionamento in estivo

49

planimetria

50 legnoarchitettura 02 progetti 3 Il retro dell’edificio con i posti auto non coperti 4 Il lato ovest
pianta primo piano
3 F o o ü g e n E h e m
pianta secondo piano
51
prospetto nord
sud
prospetto est prospetto
4 F o t o J ü g e n E h e m
prospetto ovest
52 legnoarchitettura 02 progetti
53 F o t o J ü r g e n E h e i m

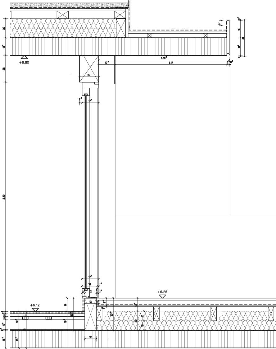
Sezione di dettaglio (stratigrafie dall’estradosso verso l’intradosso)

Terrazza esterna calpestabile: pavimento in legno; listellatura per appianare la pendenza (0-50 mm); impermeabilizzazione in PVC; pannello OSB (15 mm); listellatura per pendenza (16,1-11,1 cm, lunghezza 528,5 cm); isolamento in fibra di legno tra i listelli (10 cm); strato di isolamento continuo in fibra di legno (10 cm); barriera al vapore bituminata in alluminio; struttura portante in legno (184 mm)

trave in legno lamellare 280/200 mm

pendenza 0,34% INTERNO

- ESTERNO

trave 120x336 mm

vano dedicato al passaggio delle tubazioni per aerazione e riscaldamento

dettaglio della sezione trasversale (ultimo piano - terrazza)

pendenza del pavimento in legno finito 1%

il sistema costruttivo

La tecnologia a telaio di legno elaborata dalla ditta che fa capo allo studio plankensteiner&steger ha consentito di costruire l’edificio con la massima precisione, scegliendo tra numerose varianti e riducendo al minimo i tempi di montaggio, poiché le singole pareti sono state fornite già come elementi completi La tecnica del sistema a telaio, un’evoluzione del sistema a travi e pilastri, impiega strutture portanti il cui “cuore” è, appunto, l’intelaiatura, realizzata con legno di conifera essiccato a sezioni standard, mentre per le pareti è utilizzato legno massiccio per costruzioni (6x20 cm) La portata è garantita dal rivestimento rinforzante La coibentazione delle pareti, le barriere vapore, gli impianti e i rivestimenti interni sono eseguiti direttamente in cantiere

54 legnoarchitettura 02 progetti
TERRAZZA
55
5 6 7
5 6 7 F o o ü r g e n E h e m F o o ü r g e n E h e m F o o ü g e n E h e m
Alcune immagini degli interni In alcune parti si può riconoscere la struttura a telaio

Sezioni di dettaglio (stratigrafie dall’estradosso verso l’intradosso)

Tetto piano: strato di ghiaia (40-50 mm); impermeabilizzazione in PVC (13 mm ca ); pannello in legno (25 mm); listellatura per pendenza (80-30 mm); doppio strato isolante (2x100 mm); barriera al vapore; struttura portante in legno (184 mm)

Tettoia: impermeabilizzazione in PVC (13 mm ca ), incollata; pannello in legno (25 mm); listellatura per pendenza (80-20 mm); barriera al vapore; struttura portante in legno (184 mm)

pendenza 0,47%

pilastro in acciaio 100x100 mm

dettaglio del tetto piano

pendenza 0,32%

trave in legno lamellare 280/200 mm

pilastro in acciaio 150x150 mm

8

Un’immagine del primo piano durante il cantiere

trasmittanza media elementi costruttivi

pareti esterne: U = 0,18 W/m2K copertura: U = 0,15 W/m2K superfici trasparenti: Uw = 0,90 W/m2K

prestazioni energetiche

per riscaldamento e acqua calda: 25,20 kWh/m2 anno

56 legnoarchitettura 02 progetti
8

Vista dall’alto dell’edificio quasi ultimato

57 Prime fasi di cantiere
La struttura in legno al grezzo e l’ultimo piano Lo sbalzo al primo piano e l’edificio quasi completato (visto da ovest)
F o o G e o g P a n k e n s e n e

Condominio Leonardo Verona

Mauro

1 Vista da sud; si notino i collettori solari in

e i moduli fotovoltaici utilizzati come frangisole

2 Vista sud-ovest

60 legnoarchitettura 02 progetti
facciata
1

Ubicazione: Verona

Progetto: arch Mauro Rossaro, Rovereto (TN); arch Massimiliano Vanella, Trento

Strutture in c.a.: ing Giacomo Zanotti, Rovereto (TN)

Strutture in legno: ing Giacomo Zanotti, Rovereto (TN)

Direttore dei lavori: arch Mauro Rossaro, Rovereto (TN)

Appaltatore: DomusMetra S.r.l., Lugagnano (VR)

Lavori: marzo 2008 - febbraio 2009

Superficie utile: 310 m2

Superficie verde: 700 m2

Fotografie: DomusMetra S r l

Un condominio a emissioni zero

Bioarchitettura, sostenibilità e tecnologia sono gli aspetti fondamentali che hanno guidato l’immobiliare e i progettisti nella realizzazione di questo edificio plurifamiliare a basso consumo energetico, caratterizzato dalla forma compatta, dalle tecniche bioclimatiche e dall’utilizzo di tecnologie ad alto rendimento; in dettaglio, grazie ai diagrammi solari è stato possibile studiare l’adeguata esposizione delle superfici vetrate e, conseguentemente, anche la loro schermatura mediante aggetti e frangisole orientabili meccanicamente, e la posizione dei pannelli solari integrati in facciata

Altro elemento considerato al fine di realizzare un edificio energeticamente efficiente è stato l’isolamento termico Si è optato per una struttura fuori terra a telaio, completamente in legno e coibentata con fibra di legno, rifinita a intonaco o con doghe di larice non trattato, poiché questo sistema garantisce prestazioni energetiche molto superiori rispetto ad altri sistemi costruttivi Si è verificato non solamente l’aspetto della dispersione termica invernale ma anche l’efficienza estiva, attraverso il controllo dello sfasamento dell’onda termica

Pannelli solari termici in facciata e in copertura assicurano la produzione di acqua calda, mentre moduli fotovoltaici, posti sul lato sud come brise-soleil a protezione dell’involucro, producono l’energia necessaria al funzionamento delle due pompe di calore geotermiche che utilizzano come serbatoio termico a bassa temperatura la falda freatica e che garantiscono il riscaldamento e il raffrescamento delle unità immobiliari Ogni singolo ambiente interno è dotato di una centralina che controlla temperatura ed energia necessaria e regola l’impianto a seconda del mutare delle condizioni interne ed esterne Le acque piovane vengono raccolte in un serbatoio e riutilizzate per gli sciacquoni dei wc

61
2
62 legnoarchitettura 02 progetti 3
4
3 4
Due immagini dei giardini pensili sul tetto planimetria pianta primo piano pianta sottotetto

5

trasmittanza media elementi costruttivi

pareti esterne in larice: U = 0,19 W/m2K; sfasamento: 16,2 ore pareti esterne intonacate: U = 0,18 W/m2K; sfasamento: 17,6 ore solaio contro autorimessa: U = 0,16 W/m2K

copertura a falda: U = 0,21 W/m2K; sfasamento termico: 13,7 ore copertura a verde: U = 0,17 W/m2K; sfasamento termico: 15,3 ore superfici trasparenti: Uw = 1,0 W/m2K

consumi energetici

per riscaldamento: 22,51 kWh/m2 anno

Il lato nord chiuso, con poche aperture, a protezione dei venti invernali

63
5
prospetto est prospetto ovest prospetto nord prospetto sud

Parete esterna doghe (dall’esterno verso l’interno): doghe orizzontali in larice (3 cm) su sottostruttura (4x5 cm); barriera al vento; fibra di legno (6 cm); tavolato grezzo (2,5 cm); fibra di legno (14 cm); struttura a telaio in abete (14x6 cm); telo tenuta all’aria; tavolato grezzo (2,5 cm); intonaco in terra cruda su cannicciato (5 cm)

Parete esterna intonaco (dall’esterno verso l’interno): intonaco esterno (0,8 cm); fibra di legno (6 cm); tavolato grezzo (2,5 cm); fibra di legno (14 cm); struttura a telaio in abete (14x6 cm); telo tenuta all’aria; tavolato grezzo in diagonale (2,5 cm); intonaco in terra cruda su cannicciato (5 cm)

parete esterna con rivestimento in doghe di legno

Copertura (dall’interno verso l’esterno):

struttura in travi di abete massiccio; tavolato (2,5 cm); guaina impermeabile traspirante; fibra di legno (8+6+2,2 cm); guaina impermeabile traspirante; listello (5x12 cm) per camera di ventilazione; tavolato grezzo (2 cm); manto di copertura in lamiera di zinco titanio opaca

6

Parete esterna con finitura a doghe di legno

7 Posa dell’intonaco di argilla

8

La copertura curva lignea

9

La copertura piana prima dell’inverdimento

10

La maglia delle travi in abete massiccio

11

Il solaio del piano terra in c a

parete esterna intonacata

il sistema costruttivo

Gli elementi prefabbricati della parete sono formati da una struttura portante in massello di abete costituita da listoni di sezione 6x14 cm disposti sul perimetro ed in verticale con un passo di 62,5 cm Il telaio è irrigidito e chiuso sul lato esterno ed interno da un tavolato (2,5 cm) inchiodato a 45° e isolato nell’intercapedine con un materassino in fibra di legno pesante (14 cm) Un cappotto esterno in fibra di legno (8 cm) riveste completamente l’involucro ed elimina le minime differenze di trasmittanza dovute alla presenza delle travi perimetrali delle pareti Il telaio portante dei solaio è formato da travi e tavolato in massello di abete a vista: per assicurare un buon isolamento acustico sono state incrementate la massa e la rigidità della struttura portante tramite una cappa in cls collaborante e un pacchetto pavimento a secco con graniglia di marmo, pannello OSB sui magatelli, materassino in fibra di legno, strato separatore e massetto in cls con riscaldamento a pavimento L’edificio è caratterizzato da due tipi di copertura: una copertura ventilata sul perimetro realizzata con struttura in travi lamellari curve, lasciate a vista e isolata termicamente con 16 cm di pannelli in fibra di legno (densità 140 kg/m3, l =0,038 W/mK) collocati sopra le travi, e una copertura verde per la parte piana praticabile, costituita da travi in abete massiccio e tavolato a vista, 16 cm di pannelli in fibra di legno, guaina in poliolefine e stratigrafia per tetto verde intensivo con elemento drenante provvisto di accumulo d’acqua

64 legnoarchitettura 02 progetti
EST INT EST INT EST INT
copertura
6 7 8

Copertura a verde (dall’interno verso l’esterno): travi di abete massiccio; tavolato (2,5 cm); guaina impermeabile traspirante; fibra di legno (8+6 cm); guaina in poliolefina (1,5 mm); elemento di drenaggio con accumulo di acqua (6,2 cm); tetto verde estensivo (8 cm); sedum e piante grasse

Solaio interpiano (dall’estradosso verso l’intradosso): pavimento in legno (2 cm); caldana in alleggerito con riscaldamento (5 cm); strato separatore; fibra di legno (3 cm); pannello OSB (3 cm); vano impianti e soletta in argilla espansa (6+5 cm); connettori in acciaio; strato separatore; perlinato in abete (2 cm); travi in abete massiccio (16x20 cm o 16x24 cm)

Solaio verso garage (dall’estradosso verso l’intradosso): pavimento in legno (2 cm); massetto autolivellante in anidrite con impianto di riscaldamento (5 cm); guaina in polietilene; fibra di legno (4+4 cm); sottofondo alleggerito con impianti (6 cm); solaio a lastra in c a tipo predalles (4+20+5 cm) con blocchi in polistirene

12

La posa delle tubature per gli impianti sul solaio al primo piano

13

La posa dell’impianto radiante a pavimento

65
EST INT EST INT INT GARAGE copertura a verde solaio interpiano solaio verso garage 9 10 11 12 13

Sezione AA (nord-sud)

Dimensionamento degli aggetti esterni per garantire illuminazione diretta in inverno e ombreggiamento esterno: la posizione e l'inclinazione dei pannelli solari è studiata in modo da garantire adeguata esposizione sia in inverno che in estate

Sezione BB (est-ovest)

Un corretto controllo della esposizione delle superfici vetrate nei prospetti est e ovest non può essere garantito esclusivamente dagli aggetti esterni: per evitare periodi di eccessivo soleggiamento anche in periodi di mezza stagione si deve fare ricorso a sistemi frangisole orientabili meccanicamente

fonti rinnovabili

Fotovoltaico, solare termico e geotermia costituiscono, nell’edificio certificato CasaClima A+, un insieme integrato gestito da un sistema di controllo che regola i singoli ambienti attraverso una centralina; questa registra temperatura ed energia necessarie e modula l’impianto a seconda delle variazioni interne ed esterne L’impianto fotovoltaico (2,3 kWp) è stato dimensionato sulla base del fabbisogno energetico annuo delle due pompe di calore geotermiche (7,20 kW ciascuna) che utilizzano una falda freatica come serbatoio termico a bassa temperatura Collettori solari sono posti sia in facciata sud, per il massimo rendimento in inverno, sia sulla copertura a verde, con rendimento ottimale in primavera e autunno La distribuzione del calore e il sistema di raffrescamento avviene mediante pannelli radianti a pavimento

14

I moduli fotovoltaici sui brise-soleil e i collettori solari in facciata

15

Particolare dei pannelli fotovoltaici

66 legnoarchitettura 02 progetti
sezione A-A sezione B-B
14 15

La platea di fondazione con i dormienti in legno e la posa delle pareti prefabbricate del piano terra

La struttura al secondo piano e le strutture del sottotetto

Posa del manto sottotetto e della guaina del tetto verde intensivo

A sinistra: posa dell’isolamento in fibra di lino

A destra: predisposizione alla cappa collaborante in cls per l’irrigidimento del solaio in legno Notare i connettori a vite inclinati a 45°

67
F o o H a a d E s e n b e g e

Uffici Grosswilfersdorf (A)

ARCH°BUERO KALTENEGGER

Vista sud-est

70 legnoarchitettura 02 progetti 1
2
F o o H a a d E s e n b e r g e 1
L’entrata all’edificio È ben evidente la struttura portante a telaio

Form follows climate

Ubicazione: Grosswilfersdorf (A)

Progetto: ARCH°BUERO KALTENEGGER, Passail (A)

Strutture: Haas Fertigbau,

Grosswilfersdorf (A)

Direttore dei lavori: Hannes KohlHaas Fertigbau

Appaltatore: Haas Fertigbau, Falkenberg (D) - sede italiana Ora (BZ)

Lavori: 2003-2005

Superficie utile: 841,76 m2

Superficie coperta: 450,35 m2

Importo dell’opera: 2 500 000 €

L’edificio per uffici costruito da Haas Fertigbau, su progetto dello studio austriaco ARCH°BUERO

KALTENEGGER, è pensato per assicurare benessere termico senza ricorrere ad impianti di riscaldamento convenzionali, giungendo anzi a realizzare un edificio in standard passivo Partendo dalle condizioni climatiche del luogo, grazie ad un software per la simulazione del comportamento termico, lo studio è giunto alla forma finale, compatta e allungata, in cui sono state ottimizzate tutte le funzioni atte al risparmio energetico e al comfort degli spazi indoor Tutti gli uffici sono orientati a sud mentre nella fascia nord trovano posto gli spazi di servizio e la sala riunioni, completamente vetrata, per ricevere il massimo di illuminazione naturale, e affacciante su una zona verde; le piccole superfici rivolte a est e a ovest sono chiuse ed opache per evitare le dispersioni termiche

Le vetrate del lato sud non causano surriscaldamento poiché tra esse e la fascia degli uffici trova luogo una zona puffer, con presenza di verde, che di fatto mitiga l’aria presente portandola raffrescata agli uffici, oltre a fungere da “zona isolante” contro i rumori esterni

La copertura trasparente è costituita da moduli fotovoltaici vetro-vetro mentre elementi fotovoltaici veri e propri ombreggiano gli uffici, proteggendoli dai raggi solari nel periodo estivo L’impianto FV consente non solo l’autonomia dell’edificio ma anche quella di ulteriori 4 nuclei familiari

L’aerazione degli ambienti avviene con un efficace sistema di recupero del calore (90%); in periodo estivo, il raffrescamento si attua mediante aerazione notturna e spazi termici di tamponamento Sia nei periodi caldi che in quelli più freddi, l’installazione di canali interrati in cui passa l’aria da immettere negli ambienti permette, a seconda dei casi, di pre-riscaldare o pre-raffreddare l’aria stessa Il riscaldamento delle zone avviene, invece, tramite allacciamento alla locale rete di riscaldamento, prodotto da biomasse L’esito finale dell’edificio, sia nella sua valenza architettonica che in quella prestazionale, è stato reso possibile anche grazie all’uso del legno nella sua versione costruttiva intelaiata; tale scelta ha permesso non solo libertà compositiva ma sostenibilità in senso più ampio e risparmio energetico

71
F o o H a a l d E s e n b e g e 2

Piano interrato:

1 - ascensore; 2 - sottoscala; 3 - cantina; 4 - vano tecnico; 5 - parcheggi

Piano terra:

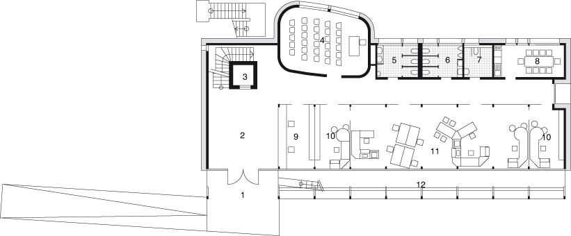
1 - entrata; 2 - foyer; 3 - ascensore; 4 - sala riunioni; 5 - wc donne; 6 - wc uomini; 7 - wc disabili; 8 - cucina; 9 - ufficio reception; 10 - ufficio direttore; 11 - ufficio per gruppi di lavoro; 12 - puffer termico-acustico

Primo piano:

1 - doppia altezza; 2 - ascensore; 3 - corridoio; 4 - ufficio; 5 - ufficio e segreteria; 6 - ufficio per gruppi di lavoro; 7 - sala tecnica computer; 8 - wc donne; 9 - sgabuzzino pulizie; 10 - wc uomini; 11 - cucina; 12 - ufficio del direttore; 13 - zona verde piantumata; 14 - puffer termico-acustico

pianta piano interrato

pianta piano terra

pianta primo piano

trasmittanza media elementi costruttivi

pareti esterne: U = 0,18 W/m2K

superfici trasparenti: Uw = 0,5 W/m2K

prestazioni energetiche

fabbisogno energetico: ca 9,5 kWh/m2 anno

72 legnoarchitettura 02 progetti

I lucernari, che si aprono in copertura per tutta la lunghezza dell’edificio, garantiscono un ottimo livello di illuminazione naturale, grazie anche all’utilizzo massiccio del vetro come elemento separatore di spazi

I lati corti dell’edificio sono stati pensati non solo opachi e altamente isolati ma anche privi, per quanto possibile, di aperture, per evitare inutili dispersioni termiche dell’involucro

Nella sezione trasversale a lato si vede come i raggi penetrino nell’edificio a seconda della stagione dell’anno

73
facciata sud facciata nord facciata ovest facciata est sezione trasversale
F o o H a a d E s e n b e r g e 3

sezione orizzontale della copertura

sezione orizzontale della facciata

Sezione trasversale della facciata sud vetrata

1 - modulo fotovoltaico (128,2x107,0 cm), 23 pezzi per ogni fila;

2 - 10 aperture (alzata serramento min 35 cm);

3 - vetro di protezione al rumore VSG 19/41; 4 - pannello di testa fissato alla struttura portante in legno; 5 - rampa rivestita in grigliato; 6 - massa di accumulo termico;

7 - 8 aperture (alzata serramento min 35 cm);

8 - cemento armato a vista; 9 - pilastro in c a

3

Una vista dell’interno dal primo piano, in arrivo dalle scale

Sulla sinistra si nota uno scorcio della zona piantumata a verde.

75
1 2 3 4 5 6 7 8 9

La sezione trasversale sulla sala riunioni mostra molto bene l’isolamento dell’involucro, sia da un punto di vista quantitativo (spessore delle pareti esterne) sia da quello qualitativo (l’isolamento costituisce una linea ininterrotta che interessa solaio del piano terra, copertura e superfici verticali opache)

il sistema costruttivo

Il sistema costruttivo dell’edificio per uffici di Grosswilfersdorf è un sistema a telaio e tamponamenti in legno

Travi e pilastri di legno lamellare opportunamente dimensionati costituiscono lo scheletro della struttura, che proprio grazie a questa scelta si è potuta realizzare con una forma così particolare, mentre le chiusure esterne sono realizzate con un brevetto della ditta costruttrice, una parete prefabbricata dalle alte prestazioni statiche e termoisolanti Le pareti sono state realizzate in fabbrica, secondo un preciso progetto, trasportate prefinite in cantiere e lì montate L’edificio è stato costruito in soli 7 mesi

Lo spessore finale è inferiore ai 30 cm e all’interno l’isolamento è dato da un doppio strato di fibra di legno con un basso valore di trasmittanza (0,18 W/m2K)

4

Un’immagine di cantiere in cui è ben visibile la struttura portante a telaio e la posa dell’isolante

A sinistra si nota il vano scale/ascensore in c a

4

76 legnoarchitettura 02 progetti
sezione trasversale sulla sala riunioni

La costruzione delle fondamenta e del piano interrato nonché del vano scale-ascensore in c a

La consegna delle pareti prefabbricate realizzate in fabbrica e quindi montate in loco

Due immagini degli interni durante le fasi di cantiere

La costruzione della vetrata a sud I vetri utilizzati, montati sulla struttura a telaio, sono tripli e basso-emissivi

77
F o t o R n o G i a d e o

Casa unifamiliare

fgp st.udio Chieti
80 legnoarchitettura 02 progetti 1 Vista lato nord-ovest 2 Vista lato sud-est 1 F o o R n o G a d i e o

Ubicazione: Giuliano Teatino (CH)

Progetto: fgp st udio, Napoli

Strutture: Riko Hise doo, Lubiana (SLO)

Direttore dei lavori: arch Paolo

Giardiello, Napoli

Certificazione energetica e studio termografico: arch Carmela PalmieriC.A.Sa. Associati - Costruire Abitare Sano, Pescara

Appaltatore: Architettura Lamellare srl, Torrevecchia Teatina (CH)

Lavori: giugno 2006-dicembre 2008

Superficie fondiaria: 10 000 m2

Superficie utile: 214 m2

Superficie verde: 9 800 m2 2

Legno + ambiente = sostenibilità

L’edificio residenziale si inserisce in un contesto agricolo che si è cercato di mantenere intatto: la costruzione, infatti, non ha prodotto impatti negativi sull’originario uliveto né sulle superfici esterne di cui è stata mantenuta la permeabilità totale

Il fabbricato è composto da un unico corpo rettangolare compatto con la facciata principale orientata a sud-est; mediante l’attento posizionamento delle aperture sui fronti contrapposti e in alto, in corrispondenza del vano scala, è stata favorita la ventilazione naturale passante orizzontale e verticale Le stesse aperture, molto ampie a sud e negli spazi giorno, garantiscono un alto livello di illuminazione naturale all’interno dell’edificio È stato effettuato il calcolo ai sensi della vigente normativa per verificare la rispondenza alle prescrizioni in materia di contenimento del consumo energetico riscontrando elevati valori di isolamento termico ed ottenendo la classe A di certificazione energetica Le pareti, infatti, sono in legno di tipo massiccio coibentate con fibra di legno in diverse densità così da ottenere un elevato valore di sfasamento dell’onda termica e un isolamento ottimale sia in estate sia in inverno

Il fabbricato è dotato di un impianto solare termico a tubi sottovuoto che produce acqua calda per uso sanitario e per l’integrazione al riscaldamento radiante a pavimento e di un impianto fotovoltaico a inseguimento solare connesso in rete Un impianto di recupero delle acque piovane ne permette il riuso per l’irrigazione degli spazi verdi

L’edificio è stato sottoposto a indagine termografica al fine di evidenziare eventuali infiltrazioni, ponti termici, scarso isolamento e condense I risultati hanno dimostrato che il fabbricato non soffre di particolari criticità e che i vari elementi dell’involucro presentano un andamento delle temperature abbastanza graduale

81
F o o : R i n o G a r d e o

I vani di servizio e di collegamento (corridoio e scala) sono disposti sul lato più freddo, verso nord-est, mentre a sud-est e a sud-ovest si aprono la zona giorno e le camere Il garage è completamente separato dall’edificio. Poche sono le aperture a nord, ad eccezione del lungo abbaino in corrispondenza della scala

pianta piano terra

pianta primo piano

facciata sud-ovest

facciata sud-est

facciata nord-est

facciata nord-ovest

82 legnoarchitettura 02 progetti
A A B B

pareti esterne: U = 0,24 W/m2K

solaio contro terra: U = 0,35 W/m2K copertura: U = 0,21 W/m2K superfici trasparenti: Uw = 1,3 W/m2K

prestazioni energetiche

per riscaldamento: 24,346 kWh/m2 anno per acqua calda: 6,879 kWh/m2 anno per riscaldamento e acqua calda: 31,224 kWh/m2 anno

il sistema costruttivo

Il sistema costruttivo si distingue per la parete monolitica in legno lamellare, prodotta con tecnologia a controllo numerico (essiccazione, incollaggio, piallatura ecc) La parete ha spessore di 100 mm ed è costituita un unico blocco di tavole di abete, saldate tra loro fino all’altezza desiderata con colla senza formaldeide secondo la normativa DIN 1052 Il legno è assemblato rispettando uno specifico livello di umidità (10 ± 2%) e le congiunzioni angolari sono realizzate con incastro maschio/femmina per assicurarne la stabilità Alla base della parete monolitica un elemento in legno di larice (100x50 mm) protegge dall’umidità di risaltita del terreno In fase di produzione in ogni parete vengono predisposti dei fori con diametro di 32 mm per le canalizzazioni dell’impianto elettrico ed eseguite le asole a misura per il successivo inserimento delle scatole elettriche L’isolamento termico e acustico viene realizzato con pannelli in fibra di legno di diversi spessori e di diverse densità: pannelli primari dello spessore di 100 mm e con densità di circa 150 kg/m3 e pannelli secondari con spessore di 22 mm e densità di circa 250 kg/m3

3

Struttura del soggiorno: si notano gli hold-down di aggancio

4

Particolare delle asole delle scatole elettriche

83
trasmittanza media elementi costruttivi
sezione A-A
3 4
sezione B-B sul vano scala
F o o : R n o G a d i e o 5

5

Il corridoio al piano superiore a servizio delle camere da letto

6 il ballatoio al piano superiore con la struttura del tetto a vista

7 La zona giorno al piano terra

8

Particolare di un interno con la struttura lasciata a vista e l’abbaino che dà luce al piano superiore

85
6 7 8 F o o R n o G a r d e l o F o o R n o G a d i e o F o o R n o G a r d e l o

A destra, alcune immagini

dell’indagine termografica effettuata

a - attacco della copertura alle pareti

b - il colmo della copertura

c- infissi del vano scala

d- parete sud

e - attacco a terra della parete sud

f - attacco a terra della parete ovest

studio termografico

Sono stati effettuati i sopralluoghi con una termocamera ad infrarossi, utile strumento per evidenziare infiltrazioni, ponti termici, presenza di punti con scarso isolamento o di condensa

L’indagine termografica condotta è stata finalizzata ad una verifica delle soluzioni progettuali scelte per le diverse componenti dell’involucro e della loro corretta posa in opera, pertanto si è proceduto nell’analisi dei punti critici della costruzione dalla copertura al basamento

Tenere sotto controllo l’andamento della temperatura all’interno di una stratigrafia significa controllare le condizioni che possono dar luogo a fenomeni di condensa mentre la rappresentazione dell’andamento delle temperature permette di individuare eventuali anomalie nel comportamento di un elemento In generale, si dovrebbe evitare un abbassamento troppo rapido delle temperature negli strati interni di una struttura e favorirne piuttosto una graduale diminuzione tra gli strati, evitando la presenza di discontinuità dell’elemento nel suo complesso

Dall’indagine svolta si è potuto constatare che i diversi elementi dell’involucro presentano un andamento delle temperature abbastanza graduale e non si evidenziano particolari anomalie Pertanto, il comportamento termico della struttura è abbastanza omogeneo e l’isolamento non presenta discontinuità significative Andando a osservare il comportamento della struttura in corrispondenza dei ponti termici, si riscontrano delle minime criticità all’attacco della struttura in legno alle travi rovesce della fondazione, al confine tra telaio degli infissi e parete e in corrispondenza del colmo ventilato della copertura Minime differenze di temperatura si riscontrano anche sulla parete sud ventilata in corrispondenza dei montanti interni di legno Tuttavia, complessivamente, va sottolineato che tutte le differenze di temperatura riscontrate nei punti di ponte termico dell’edificio esaminato sono di modesta entità e quindi assolutamente trascurabili dal punto di vista delle dispersioni connesse alla diversa tenuta della struttura in quei punti

86 legnoarchitettura 02 progetti
a b c d e f

Arrivo dei panneli prefabbricati in cantiere e posa delle strutture

delle

Posizionamento dei pannelli e struttura del tetto

Il basamento in c.a. e l’impianto fotovoltaico ad inseguimento solare

87
Particolare del ballatoio della scala e orditura travi del tetto

techné Prestazioni in periodo estivo

Le problematiche connesse al raffrescamento e al condizionamento estivo sono state portate all'attenzione dei progettisti e dei costruttori grazie alle recenti disposizioni legislative riguardanti il controllo dei consumi energetici in fase estiva negli edifici. Tuttavia, le prescrizioni hanno dato origine ad alcune perplessità legate sia all’eccessiva semplificazione di una norma che riguarda fenomeni complessi collegati a più parametri e difficilmente riconducibili a un unico indicatore di riferimento, sia alla penalizzazione degli edifici a struttura leggera In questo contesto, il Laboratorio di Progettazione Edilizia dell’Università degli Studi di Trento ha attivato una verifica su un edificio costruito a setti con pannelli pieni di legno a strati incrociati (X-lam), costituito da quattro case a schiera situate in provincia di Verona. La ricerca ha avuto come obiettivi l’analisi e la verifica dell’efficacia di sistemi solari passivi per il riscaldamento invernale e il raffrescamento estivo in clima temperato e la quantificazione dell’effettivo apporto di elementi massivi sul mantenimento di adeguate condizioni di comfort indoor in regime estivo

Prestazioni di costruzioni leggere in periodo estivo

Analisi di un edificio bioclimatico

Rossano Albatici

Ingegnere civile edile e ricercatore di Architettura Tecnica presso l’Università di Trento, svolge ricerche relative alla sostenibilità del progetto edilizio con particolare riferimento all’edilizia bioclimatica e al comfort abitativo

Presso il Laboratorio di Progettazione Edilizia dell’Università degli Studi di Trento sono attive alcune ricerche che hanno come obiettivi: l’analisi e la verifica dell’efficacia di sistemi solari passivi per il riscaldamento invernale e il raffrescamento estivo in clima temperato; la quantificazione dell’effettivo apporto di elementi massivi sul mantenimento di adeguate condizioni di comfort indoor in regime estivo

Le ricerche seguono una metodologia che si articola in cinque fasi principali: a definizione di un approccio standard al monitoraggio dei parametri microambientali dello spazio confinato in edifici residenziali e per il terziario; b monitoraggio termoigrometrico di edifici campione secondo la metodologia definita in precedenza tramite la registrazione in continuo dell’andamento temporale delle principali grandezze relative al comfort termoigrometrico degli utenti I rilievi sono effettuati in alcune stanze dell’edificio ritenute significative delle varie condizioni interne, per utilizzo e per esposizione; c modellazione dell’edificio con software di simulazione in regime dinamico considerando le condizioni climatiche esterne realmente misurate durante la sperimentazione; d calibrazione critica del modello sia in base all’effettivo comportamento dell’utente rilevato per mezzo di questionari, sia in base ai dati registrati durante il monitoraggio Una volta calibrato, il modello può essere ritenuto la copia virtuale “esatta” dell’edificio nel periodo considerato; e proposta di eventuali modifiche da apportare all’edificio e ai sistemi passivi a livello di forma, dimensione e materiali (con particolare riferimento alla massa e alla capacità termica degli elementi di involucro) utilizzando i modelli virtuali (data l’ovvia l’impossibilità di intervenire pesantemente in edifici già costruiti e in uso) al fine di migliorare l’efficienza dell’edificio e il grado di comfort interno

Facciata sud dell’edificio dove si notano le finestre della serra e, in basso, le finestre di captazione dell’aria esterna per il preraffrescamento nel piano seminterrato

90 legnoarchitettura 02 techné
Rossano Albatici

L’edificio sede della sperimentazione

La procedura sopra esposta è stata applicata a un edificio costituito da quattro case a schiera situate a Mezzane di Sotto in provincia di Verona (progettista: arch Arnaldo Savorelli – studio Solarch di Bussolengo - VR; costruttore: Progetto Ecosisthema di Verona) L’edificio è interessante poiché sono state utilizzate in clima temperato strategie bioclimatiche per il riscaldamento e il raffrescamento passivo nonché un sistema costruttivo a pannelli di legno, scelte generalmente tipiche di climi estivi meno severi

Da un punto di vista costruttivo, l’edificio è costituito da un piano seminterrato nel terreno in pendenza in calcestruzzo cementizio armato, mentre la parte fuori terra è a setti con pannelli pieni di legno ad assi incrociate, 12 cm di isolante in fibre naturali pressate e finiture interne in cartongesso La copertura è un classico tetto ventilato di legno con isolante dallo spessore di 10 cm

Nonostante sia stato progettato nel 2005, l’edificio rispetta i limiti normativi attualmente in vigore sia per

quanto riguarda la trasmittanza termica (limite di 0 34 W/m2K per zona climatica E), sia per quanto riguarda lo sfasamento e l’attenuazione termica che pongono l’edificio con qualità prestazionale “ottima” secondo la classificazione delle Linee guida nazionali per la certificazione energetica del 2009 Analogo discorso per il valore di YIE (trasmittanza termica periodica), minore del limite consigliato di 0,12 W/m2K, che è legato alla capacità dell’involucro di mitigare i picchi interni di temperatura nelle giornate calde estive

Dal punto di vista compositivo e del rapporto col sito, “l’idea progettuale è stata quella di lavorare sulla ventilazione per il raffrescamento estivo e su una serra apribile, sfruttando l’orientamento favorevole e l’assenza di nebbie, per il guadagno termico invernale I due dispositivi fondamentali per il funzionamento bioclimatico di ogni casa sono dunque il portico-serra a sud (inverno) e la successione interrato massivo-vano scale-torretta di ventilazione (estate) Nelle giornate soleggiate invernali il guadagno termico delle vetrate del soggiorno e della

Vista complessiva da sud. In primo piano le finestre della serra

91 Interno

Stratigrafia della parete

esterna

Spessore totale: 0 341 m

Massa: 152,54 kg/m2

U: 0,2376 W/m2K

Sfasamento: 16 h 44’

Attenuazione: 0,056

YIE (trasmittanza termica periodica) = 0,0133 W/m2K

Planimetria dell’intervento

Piante dell’edificio monitorato

Materiale

Intonaco

Fibra di legno

Parete di legno piena

Fibra di legno

Intercapedine aria

Cartongesso

Spessore [m]

Calore specifico [kJ/kgK] 0,84 2,1 2,1 2,1 1,004 0,92

serra è immagazzinato da una massa termica che è stata posizionata nella soletta di pavimento, tentando in questo modo di equilibrare il comportamento inerzialmente leggero della struttura in legno La situazione estiva è rovesciata La progettazione ha qui mirato a proteggere le vetrate del soggiorno a Sud dall’esposizione diretta ai raggi solari mediante il calcolo dell’arretramento dei vetri e alla creazione del corretto sporto di gronda sopra le finestrature La ventilazione diurna estiva (venti dominanti da sud) è progettata per espellere dalle torrette di ventilazione l’aria entrante dalle finestre dell’interrato

L’interrato in questo caso funziona come massa inerziale termica “spostata” rispetto alla casa in legno soprastante, permettendo un preraffrescamento dell’aria prima che questa vada a salire in casa, passando per il vano scale Di notte (venti dominanti da nord) l’aria più fresca scende dal versante collinare e attraversa tutta la casa passando dalle camere da letto” (dalla relazione del progettista, per gentile concessione)

Conduttività [W/mK] 0,3 0,045 0,13 0,04 0,2381 0,837

La ricerca

Studio del comfort termo igrometrico e dell’inerzia termica dell’involucro

Nella prima fase della ricerca sono state analizzate le condizioni di comfort termoigrometrico negli spazi confinati con i criteri del comfort adattivo A tal fine sono state monitorate in continuo alcune stanze dell’edificio (la taverna, la serra, il soggiorno, la camera da letto e la torretta di ventilazione) e i principali parametri meteorologici del sito L’analisi del comfort è stata condotta sia secondo la teoria di Brager e De Dear che correla la temperatura di comfort con la temperatura media mensile esterna, sia secondo quella di Humphrey e Nicol che tiene invece conto della media mobile della temperatura oraria esterna, teorizzazione recepita recentemente dalla norma UNI EN 15251:2008

Applicando entrambi gli approcci all’edificio in esame, ne risulta che nel periodo maggio-settembre in tutte le stanze monitorate si sono mantenute condizioni di comfort termico accettabili anche in assenza di un impianto

92 legnoarchitettura 02 techné
0,02 0,08 0,124 0,04 0,05 0,026
densità [kg/m3] 1 300 200 470 200 1 1 540

Particolare della correlazione fra chiusura orizzontale di base e chiusure verticale esterna (parete nord - percorso esterno)

Legenda: 1 - fibra di legno (4 cm); 2 - intercapedine per passaggio impianti; 3 - cartongesso; 4 - battiscopa; 5 - parete portante in legno (12,4 cm); 6 - fibra di legno (8 cm); 7 - intonaco (2 cm); 8 - vite di fissaggio; 9 - dado di fissaggio parete; 10 - pavimentazione in pietra; 11 - guaina; 12 - solaio (24 cm); 13 - guaina; 14 - massetto per impianti; 15 - spugnetta; 16 - isolante; 17 - riscaldamento a pavimento; 18 - pavimento in legno

Sezione trasversale dell’edificio con la rappresentazione indicativa dei flussi d’aria

di condizionamento e con temperature a volte superiori ai 30 °C È possibile notare che in luglio, periodo più caldo dell’anno, meno del 20% degli utenti è insoddisfatto considerando il 90% delle ore di comfort, percentuale che scende al 3% considerando l’80% di ore di comfort raggiunte nella giornata Inoltre, si sono rilevate condizioni di temperatura interna maggiori al limite superiore della fascia di comfort solo per 4 giorni (fatto dovuto all’assenza dell’utente e quindi in condizioni di serra sempre chiusa e assenza di ventilazione naturale)

La seconda fase della ricerca ha riguardato la definizione del modello virtuale in regime dinamico, la calibrazione del modello base (con i parametri reali dei materiali impiegati e tenendo conto dell’effettivo comportamento dell’utente) e le modifiche successive secondo 3 varianti:

a variante 1: aumento di massa della parete esterna (da 152 kg/m2 a 511 kg/m2) e della parete di separazione fra unità confinanti (da 160 kg/m2 a 398 kg/m2) mediante l’utilizzo di elementi in laterizio, mentre rimane inalterata

la copertura in legno e il solaio di base in calcestruzzo;

b variante 2: come variante 1, ma con aumento di massa della copertura (da 45 kg/m2 a 256 kg/m2) mediante l’utilizzo di un solaio laterocementizio (modello “tutto pesante”);

c variante 3: come modello base ma con riduzione della massa del solaio di base (da 252 kg/m2 a 113 kg/m2) mediante l’utilizzo di un solaio in legno

Con riferimento al mese di luglio, confrontando le diverse varianti si registrano delle diminuzioni di temperatura nella variante 1 e 2 a confronto con il modello base, ma comunque con picchi sempre inferiori a 0 6 °C e medie mai superiori a 0 4 °C In particolare, data la conformazione dell’edificio, le differenze sono minori man mano che ci sia allontana dalla zona serra e ci si avvicina al versante nord dove sono poste le stanze da letto È interessante notare come le maggiori differenze di temperatura si registrano nella variante 3 ma in senso opposto, ossia con aumenti di temperatura nella zona giorno (fino a un grado centigrado) a causa dalla diminuzione dell’inerzia

termica del solaio direttamente investito dalla radiazione solare incidente

Si può quindi concludere che in un edificio di legno in clima temperato sono raggiunte le condizioni di comfort termico estivo senza impianto di condizionamento e che l’utilizzo di materiali con maggiore peso specifico non ne avrebbe modificato la risposta prestazionale Il buon risultato raggiunto dipende molto dalla forma dell’edificio sia con riferimento al rapporto con il clima esterno, sia come conformazione interna degli spazi Una provocazione: se si considera infatti un edificio di forma parallelepipeda senza rapporto col contesto, con nessuna apertura a nord, due piccole a est e ovest e una più grande a sud, costruito con gli stessi materiale dell’edificio di Mezzane e nella stessa posizione geografica, e si simula l’andamento interno delle temperature con la variante base (edificio tal quale) e con la variante 2 (edificio con struttura pesante), si nota che le temperature massime giornaliere diminuiscono di molto, anche di 3 °C, così come quelle notturne Ciò depone a favore della massa come elemento in grado di smor-

93

La

terra dell’edificio a pannelli portanti in legno durante la costruzione

zare i picchi di temperatura interni in estate e a sfavore del materiale “leggero” legno A differenza dell’edificio di Mezzane, però, il parallelepipedo non è bioclimatico, ossia ha una forma qualsivoglia che non tiene conto del clima locale e non ne sfrutta le potenzialità, in particolare il raffrescamento passivo

Studio fluidodinamico

Per sottolineare l’importanza delle scelte progettuali “passive”, è stata condotta un’approfondita analisi fluidodinamica (alla quale si accenna qui brevemente) secondo due modalità: a verifica della progettazione tramite la procedure semplificate proposta dal manuale CIBSE che fornisce un procedimento analitico per il pre-dimensionamento delle aperture in un edificio ventilato naturalmente; b simulazione con software CFD (computational fluid dynamics) e modifica di alcune impostazioni progettuali per migliorare la performance dell’edificio

Con il metodo del CIBSE si sono valutate le portate d’aria minime e massime in entrata e in uscita dalle aperture secondo diverse modalità di utilizzo e sono state confermate le scelte progettuali in quanto le portate d’aria sono sempre risultate superiori ai minimi di normativa Con l’analisi CFD, più dettagliata e complessa, si sono potuti studiare i flussi di aria nelle varie zone dell’edificio (modulo e direzione) nonché la loro temperatura In questo caso è stata valutata l’effettiva efficienza del sistema di ventilazione naturale e l’inci-

denza della forma degli ambienti interni sull’andamento dei flussi di aria giornalieri e notturni La gestione dei flussi di aria all’interno di più ambienti con diversa forma, esposizione e finestrature è sempre complessa L’inserimento di una variante può portare benefici in una direzione e peggioramenti nell’altra Nel caso della sperimentazione a Mezzane, fra le varie modifiche proposte (innalzamento torre, restringimento base torre, apertura finestra a nord, eliminazione muretto del giardino pensile a sud) l’unica variante che porta benefici sicuri è l’ultima in quanto si evitano zone di ricircolo vicino alle finestre di ingresso dell’aria nella taverna aumentando la portata e direzionando meglio i flussi Questo a dimostrazione che la progettazione bioclimatica tiene conto di una molteplicità di fattori (non ultimo il comportamento dell’utente) per cui l’unico approccio vincente è la progettazione integrata

Conclusioni

I risultati della ricerca permettono di affermare che in un edificio con struttura a prevalente impiego di legno progettato secondo i principi dell’architettura bioclimatica possono essere garantite le condizioni di comfort termoigrometrico in regime estivo secondo le recenti teorie riguardanti gli edifici free-running, ossia non dotati di impianto di climatizzazione

In secondo luogo, si è provato che, a fronte di un aumento virtuale della massa dell’involucro edilizio a parità di trasmittanza termica, le variazioni di temperatura

94 legnoarchitettura 02 techné
fuori
parte

nelle stanze considerate sono minime e sostanzialmente inconsistenti per quanto concerne la condizione di comfort degli utenti

Si possono quindi sintetizzare alcune semplici conclusioni:

1 è importante proporre e sperimentare una progettazione architettonica integrata anche con l’ambiente e le sue potenzialità (architettura bioclimatica) attraverso l’impiego adeguato di sistemi passivi che minimizzino il ricorso a impianti di riscaldamento e raffrescamento;

2 massa sì ma dove serve Un buon comportamento in climi temperati dipende dalla capacità termica dell’involucro ma la massa offre il massimo vantaggio quando l’elemento è direttamente investito dalla radiazione solare e se è diffusa piuttosto che concentrata Inoltre, qualora l’edificio sia adeguatamente progettato con riferimento al clima esterno e con idonei sistemi passivi, l’influenza della massa di per sé può diventare minima e non è il fattore unico e determinante da prendere in considerazione nel periodo estivo; 3 i programmi di simulazione di tipo dinamico vanno utilizzati con grande cautela poiché richiedono l’inserimento di una grande quantità di dati riferiti a caratteristiche termofisiche dei materiali che non sono spesso note o i cui valori in condizioni reali di utilizzo sono spesso differenti da quelli calcolati L’effettiva prestazione dell’edificio, inoltre, dipende molto dal comportamento dell’utente e, in assenza di dati medi statistici, c’è il rischio di falsare i valori di output o, peggio, di “portarli” dove al progettista pare essere più opportuno

I grafici rappresentano l’andamento della temperatura interna nei giorni più caldi di luglio secondo le 3 varianti considerate nel modello virtuale e l’andamento delle temperature in un edificio con le stesse caratteristiche di involucro dell’edificio monitorato ma forma indipendente dal contesto ambientale

Sotto, la simulazione fluidodinamica con software CFD

95
Vista sud

sistemi elementi massicci senza colla e ferro

Il termine soligno® identifica un sistema strutturale ideato da una ditta altoatesina, la Reinverbund S.R.L., che ha creato un involucro in elementi prefabbricati totalmente in legno, senza l’uso di collanti o parti metalliche. Gli strati di legno, solitamente abete rosso o cirmolo proveniente da boschi certificati del luogo, sono collocati verticalmente e giuntati a pettine tra di loro, quindi uniti da incastri a coda di rondine

La nuova tecnica di stratificazione utilizzata, unica nel suo genere, presenta ottime proprietà statiche in termini di stabilità ed eccellenti proprietà insonorizzanti e termoequilibranti

Elementi massicci senza colla e ferro

Il sistema soligno® è un sistema costruttivo in legno massiccio in cui non si utilizzano chiodi o colle per i collegamenti, ma semplicemente incastri Ciò permette di realizzare edifici quanto più possibile bioecologici, con ottime proprietà statiche ed eccellenti proprietà insonorizzanti e termiche

In realtà questo tipo di costruzione è l’evoluzione di un sistema di laminazione del legno già in uso secoli fa in Scandinavia e ripreso oggi con metodi moderni

Gli elementi che compongono le varie parti dell’edificio (pareti, tetti, solai) sono realizzati con tavole in legno massiccio di forma rettangolare, affiancate verticalmente e giuntate a pettine I diversi strati di tavole sono a loro volta raccordati tra loro mediante tasselli in legno giuntati a coda di rondine

Gli elementi per pareti, concepiti come blocchi multistrato autoportanti, possono essere realizzati con legnami diversi e rimanere a vista a seconda delle scelte estetiche ed architettoniche; vengono prefabbricati nello stabilimento sottoforma di grandi pannelli, con un’ottima coibentazione termica Per non compromettere la sostenibilità acquisita a livello strutturale, è vivamente consigliato l’utilizzo di materiali edili quanto più possibili bioecologici Per questo motivo, all’interno delle pareti soligno® si utilizzano, se necessario, intonaci di argilla o a base di calce, quando la parete non rimanga in legno faccia a vista Per quanto riguarda la realizzazione e la finitura dell’esterno, l’utilizzo di un sistema isolante a cappotto è quello più utilizzato (più spesso fibra di legno) associato a facciate ventilate

Per quanto riguarda l’essenza legnosa utilizzata, si fa riferimento, salvo diverse richieste del committente, all’abete rosso locale altoatesino, all’abete bianco e al cirmolo, per il quale sono stati dimostrati i benefici effetti sulla salute del corpo umano

98 legnoarchitettura 02 sistemi
sistemi costruttivi

La ditta Reinverbund S R L , che ha fornito testi e immagini delle prossime pagine, è la dententrice del brevetto soligno®, ha sede a Prato allo Stelvio (BZ) e fa parte del Gruppo Rubner Haus Grazie alle ottime caratteristiche ecologiche del suo prodotto, è stata insignita nel 2009 del Premio Ecologico della Val Venosta

Fresature per impianti

I vari elementi del sistema (soprattutto le pareti) vengono consegnati, su richiesta, già dotati delle fresature necessarie per l’installazione degli impianti, aspetto questo che richiede una progettazione molto accurata A seconda che la parete su cui vengono fatte rimarrà con legno a vista o meno, le fresature vengono eseguite nella parte interna dello strato di legno più superficiale o in quella più esterna (vedi figura) L’alloggiamento necessario alle scatole (si tratta di usuale materiale elettrico, facilmente reperibile in commercio) contiene già le scanalature che permetteranno un ideale aggrappo al legno delle scatole stesse, così da facilitarne il montaggio

Impianto di riscaldamento/raffrescamento e installazione dei sanitari Al fine di ottenere un buon isolamento acustico dai rumori degli impianti, tutti i fissaggi devono essere realizzati in modo da isolarli acusticamente dalla struttura È importante prestare molta attenzione all’installazione corretta delle cassette wc e delle tubature, per la cui collocazione è vivamente consigliata la realizzazione di una controparte Tubature zincate di piccolo diametro possono essere collocate direttamente nelle pareti

I vantaggi della controparete dedicata sono i seguenti: elevato isolamento acustico, pratica collocazione, la parte strutturale dell’edificio non viene minimamente toccata dall’installazione, facilità di manutenzione

Da sinistra: casa Wallnöfer a Taufers i M (BZ); casa Folie a Dörfl/St Valentin a d H (BZ); casa Niederfriniger a Eyrs (BZ); l’interno di una camera dell’Hotel Helvetia a Niederdorf (BZ)

99

elementi massicci senza colla e ferro parete esterna

Stratigrafia della parete portante con cappotto esterno e parete interna rifinita con intonaco in argilla o a base di calce (dall’interno verso l’esterno)

- intonaco in argilla o calce con sottoposta stuoia di canne (30 mm)

- struttura portante in legno soligno® 180 NSi (180 mm)

- isolamento (l=0,04; peso specifico apparente=ca 155 kg/m3; 140 mm)

- intonaco esterno (10 mm)

Trasmittanza Sfasamento

Dati fisico-tecnici W/m2K ore –

lambda soligno® (secondo test dell’ETH Zürich)

0,15 25,2 0,097

Stratigrafia della parete portante con cappotto esterno su facciata ventilata e parete interna in legno faccia a vista (dall’interno verso l’esterno)

- struttura portante in legno soligno® 180 Si (180 mm)

- isolamento (l=0,04; peso specifico apparente=ca 155 kg/m3,160 mm)

- struttura portante della facciata

- listelli verticali (25 mm)

- rivestimento esterno in tavole di legno (25 mm)

Dati fisico-tecnici

Trasmittanza Sfasamento

lambda soligno® (secondo test dell’ETH Zürich)

W/m2K ore –

0,15 28,3 0,097

100 legnoarchitettura 02 sistemi
e s t e r n o i n t e r n o e s t e r n o i n t e r n o

elementi massicci senza colla e ferro solaio

Stratigrafia del solaio con intradosso in legno a vista e rivestimento all’estradosso in piastrelle (dall’estradosso verso l’intradosso)

- piastrelle incollate (15 mm)

- massetto (60 mm)

- carta oleata

- isolamento da rumori di calpestio (30 mm)

- assito di tavole in legno (30 mm)

- struttura portante soligno® 220 Si con riempimento tra le travi di pietrisco marmoreo (220 mm)

- finitura in legno a vista

Stratigrafia del solaio con intradosso in legno a vista e rivestimento all’estradosso in legno (dall’estradosso verso l’intradosso)

- pavimento in legno massiccio (25 mm)

- isolamento da rumori di calpestio con i listelli di collocamento (40 mm)

- assito di tavole in legno (30 mm)

- struttura portante soligno® 220 Si con riempimento tra le travi di pietrisco marmoreo (220 mm)

- finitura in legno a vista

estradosso

intradosso

estradosso intradosso

101

elementi massicci senza colla e ferro parete interna

Parete interna soligno®180

Le pareti interne del sistema possono essere lasciate prive di qualsivoglia isolamento e/o rivestimento oppure rivestite, a seconda dell’utilizzo successivo della parete stessa Nel disegno al centro, infatti, la parete è intonacata (sul lato sinistro) con intonaco a base di calce su stuoia di canne; sul lato destro, invece, la parete è rivestita con pannello Aquapanel, consigliato per l’applicazione successiva di piastrelle in zone umide come il bagno Nel caso in cui, come nelle stanze di albergo, l’aspetto dell’isolamento acustico riveste un’importanza fondamentale, gli elementi di parete vengono accoppiati e suddivisi da uno strato isolante, al fine di aumentare le prestazioni di isolamento acustico, come nell’esempio a fianco

Stratigrafia della parete interna di separazione doppia con legno faccia vista su entrambi i lati (da sinistra verso destra)

- soligno® 120 Si (120 mm)

- isolamento (l=0,04; peso spec apparente ca 60 kg/m3 40 mm)

- cavità (30 mm)

- soligno® 120 Si (120 mm)

isolamento acustico Rw, P (Iso 140-3) 56 dB

102 legnoarchitettura 02 sistemi

elementi massicci senza colla e ferro copertura

Stratigrafia della copertura con tetto spiovente (dall’estradosso verso l’intradosso)

- copertura in tegole

- listellatura per la collocazione delle tegole (40 mm)

- controlistellatura per la collocazione delle tegole (40 mm)

- orditura del sottotetto

- isolamento (l=0,04; peso spec apparente ca 140 kg/m3, 100 mm)

- strato di tenuta all’aria con tenuta all’umidità variabile

- isolamento (l=0,04; peso specifico ca 55 kg/m3, 160 mm)

- struttura portante soligno® 200 Si (220 mm)

Stratigrafia della copertura con tetto piano (dall’estradosso verso l’intradosso)

- strato di ghiaia/tetto verde

- impermeabilizzazione

- listellatura (25 mm)

- strato di ventilazione (100 mm)

- orditura del sottotetto

- isolamento (l=0,04; peso spec apparente ca 140 kg/m3, 100 mm)

- strato di tenuta all’aria con tenuta all’umidità variabile

- isolamento (l=0,04; peso specifico ca 55 kg/m3, 160 mm)

- struttura portante soligno® 200 Si (220 mm)

Soluzioni d’angolo

Cosa succede nel punto in cui le pareti del sistema s’incontrano, come ad esempio rappresentato nel dettaglio di pianta dell’immagine a lato?

Innanzitutto la soluzione viene studiata nella fase di progetto, al fine di realizzare già a livello di produzione pezzi precisi per essere montati in cantiere senza successive lavorazioni

La “linea verde” della figura rappresenta uno strato “di tenuta” che può essere applicato per rendere l’involucro quanto più possibile resistente all’eventuale penetrazione di acqua ma anche alle dispersioni termiche

La soluzione alternativa all’inserimento di una guaina di questo tipo (come potrebbe essere il feltro di juta consigliato dalla soligno®), consiste nel mettere in battuta al vivo gli elementi che si incontrano, a patto di effettuare all’esterno, lungo tutto la giunzione, una nastratura che garantisca l’integrità dell’involucro edilizio

estradosso

intradosso estradosso

intradosso

103

dettagli parete esterna-solaio

elementi massicci multistrato

superfici di legno massiccio suddivise in più strati, verticali all’interno, orizzontali e diagonali, unite da tasselli in legno senza uso di colle o di parti metalliche

travi e pilastri

elementi portanti lineari in legno con tamponamenti piani leggeri di irrigidimento

elementi massicci uniti a travetti portanti

tavole orizzontali, verticali e diagonali unite a strato – con travetti portanti interni – con viti di legno senza colle e parti metalliche

mattoni in legno

elementi modulari cavi di legno massiccio affiancati e sovrapposti ad incastro mediante spine di accoppiamento ed incastri a tenone e mortasa

pannelli portanti

legno massiccio a strati incrociati e incollati connessi con giunti a pettine

elementi massicci senza colla e ferro

strati di tavole in legno massiccio rettangolari, affiancate verticalmente, raccordati tra loro mediante tasselli in legno e giuntati a coda di rondine

elementi massicci multistrato

1 viti controfilettate (8x220)

2 pannello isolante in fibra di legno dura (con scanalatura e incastro) + strato di tenuta all’aria

3 listellatura esterna di rivestimento

4 parete esterna in legno lunare massiccio

5 blocco di montaggio in legno

Stratigrafia solaio

Dall’estradosso all’intradosso - pavimento di assi in legno lunare massiccio Thoma (23 mm)

- doppio strato isolante - striscia isolante

- solaio ThomaHolz100

Valori prestazionali

U = 0,2 W/m2K

Rw = 50 dB

REI = 120

parete tipo ThomaHolz100 (30,6 cm + 3,6 cm fibra di legno)

Da sinistra:

la scanalatura sagomata per accogliere una trave della struttura portante per i balconi; le pareti del piano terra attendono l’appoggio del solaio del piano superiore; il solaio del primo piano posato sopra la parete esterna, sulla quale verranno poi collocate le pareti esterne del primo piano

Disegno e foto: Kargruber-Stoll Srl, Monguelfo-Tesido (BZ)

L’attacco della struttura portante del solaio in legno massiccio avviene tramite incastro dello stesso con gli elementi che compongono la parete portante esterna, con apposita sagomatura degli stessi Delle viti in acciaio controfilettate (avvitate e fissate in maniera incrociata a 45°) garantiscono la rigidità di questo tipo di struttura che è indicata per costruzioni in zone sismiche All’estradosso del solaio si può predisporre l’alloggiamento per l’impianto di riscaldamento a pavimento, mentre all’intradosso il solaio in legno può rimanere a vista o essere rivestito da un controsoffitto

106 legnoarchitettura 02 dettagli
sagomatura, incastro, ancoraggio
interno esterno 3 2 1
4 5

1 vite Torx di fissaggio dell’elemento parete con l’elemento solaio

2 trave di bordo

3 OSB da posare in cantiere (22 mm)

4 smusso

5 pannello OSB

6 controlistellatura da posare in cantiere + fibra di legno (4-6 cm)

7 rivestimento esterno in tavole di legno

Stratigrafia parete

Dall’interno verso l’esterno

- fibrogesso (2x12,5 mm)

- intercapedine impianti coibentata con fibra di legno flessibile (60 mm)

- pannello OSB (15 mm)

- telaio in legno con isolamento in fibra di legno flessibile (160 mm)

- tavolato grezzo (25 mm)

- isolante (40 mm)

- telo antivento

- controlistellatura

- rivestimento esterno in legno

Valori prestazionali

U = 0,18 W/m2K

f = 21,7 h

YIE = 0,01 W/m2K

D2m,nt,w 48 dB

REI = 60

Da sinistra: viste interne dell’attacco del solaio sulla parete esterna; vista esterna del raccordo solaio-parete da completare

Disegno e foto:

holz&ko srl, Nova Ponente (BZ)

travi e pilastri

La connessione tra parete e solaio avviene con fissaggio meccanico tramite viti auto-foranti inserite con asse inclinato rispetto all’asse della parete o con angolari metallici Tale collegamento tra pareti e solaio garantisce grande rigidità e non presenta debolezze strutturali Perimetralmente al solaio è prevista una trave di bordo per assorbire gli sforzi di trazione Il rivestimento in legno – in corrispondenza del nodo – si posa in cantiere, togliendo parte del maschio dell’ultima perlina per montare la medesima Il solaio è finito con massetto, isolamento e riscaldamento a pavimento; all’intradosso, solitamente, è lasciato a vista

107
sagomatura, ancoraggio
esterno interno 1 2 3 5 6 7 4

elementi massicci con travetti portanti

1 parete esterna in legno massiccio

2 blocco di legno di montaggio

3 rinforzi antisismici

4 solaio interpiano

5 vite controfilettata per il fissaggio del solaio (8x200)

Stratigrafia parete

Dall’esterno all’interno

- intonaco di finitura in calce traspirante

- isolamento termico in fibra di legno (10 cm) con scanalatura ed incastro + membrana traspirante per la tenuta al vento

- freno al vapore

- parete in legno massiccio unita con viti in legno

- membrana traspirante per la tenuta all’aria

- intonaco di argilla su canna palustre

Stratigrafia solaio

Dall’estradosso all’intradosso - pavimento in tavolato di legno massiccio incastrato - feltro di lino o lana di pecora

- granulato di sughero nell’interspazio tra i listelli

- listelli nelle due direzioni

- spazio per gli impianti

- argilla cruda

- striscie isolanti

Valori prestazionali

U = 0,168 W/m2K

Rw > 50 dB

L’attacco della struttura portante del solaio in legno massiccio avviene interrompendo di fatto la continuità della parete portante esterna La tenuta dell’involucro è data dall’applicazione di uno strato continuo di freno al vapore, su cui viene applicato un isolamento a cappotto, più spesso sotto forma di fibra di legno Delle viti in acciaio controfilettate ed inserite in diagonale (incrociate) garantiscono la rigidità alla struttura, indicata anche per costruzioni in zone sismiche L’intradosso del solaio – che è di fatto una piastra – viene lasciato preferibilmente a vista

Da sinistra:

l’appoggio della piastra del solaio sulla parete; l’innesto della parete sul solaio (si noti il blocco di legno per il montaggio della parete); l’orditura portante delle travi del balcone.

Disegno e foto:

Casa-Salute Srl, Bolzano

108 legnoarchitettura 02 dettagli
ancoraggio
interno esterno
3 2 5 4
1

mattoni in legno

1 parete portante (moduli con cavità per impianti, isolati a struttura ultimata con cellulosa in fiocchi)

2 soglia, raccordo

3 componenti di assemblaggio e ancoraggio

4 struttura del solaio

Stratigrafia parete

Dall’esterno verso l’interno - rivestimento esterno

- camera di ventilazione - strato protettivo dell’isolamento

- isolamento

- tenuta all’aria

- elemento modulare strutturale isolato

- finitura interna

Valori prestazionali

U = 0,15 W/m2K

Rw = 45 dB

REI = 30-90

Da sinistra: appoggio degli elementi del solaio sulle pareti modulari; pareti prefabbricate con elementi di raccordo per il solaio; orditura del solaio

Disegno:

Holzer sas, Silandro (BZ)

Foto:

Studio MMPI - Marcello

Mazza+Iolanda Palumbo

Architetti, Lecco

La parete prefabbricata si raccorda al solaio attraverso dei moduli speciali creati appositamente Le travi strutturali del solaio si appoggiano ad un raccordo di altezza variabile (80-160 mm) e formano il piano di supporto per il modulo del basamento (h 80 mm), una sorta di dormiente preforato per le connessioni con i mattoni Il solaio e i pezzi speciali si connettono anche tramite fissaggio meccanico, ovvero tramite delle opportune viti

Questo tipo di parete richiede una progettazione molto oculata: a disposizione del progettista, infatti, vi sono elementi di diverse dimensioni e funzioni (moduli, base, architravi, moduli pieni) e trame/griglie orizzontali e verticali di riferimento

109
ancoraggio
sagomatura,
esterno interno 1 2 3 4 2

1 viti di fissaggio dell’elemento parete con elemento solaio

2 ferri angolari di fissaggio dell’elemento parete con elemento solaio

3 nastratura per tenuta all’aria

4 pannello porta intonaco in fibra di legno (parte prefabbricata)

5 pannello porta intonaco in fibra di legno (da posare in cantiere)

Stratigrafia parete

Dall’interno all’esterno

- fibrogesso (2x12,5 mm)

- intercapedine impianti coibentata con fibra di legno flessibile (60 mm)

- pannello X-lam 5 strati (85 mm)

- isolamento in fibra di legno con portaintonaco (100 mm)

- intonaco (8 mm)

Valori prestazionali

U = 0,21 W/m2K

f = 17,8 h

YIE = 0,01 W/m2K

D2m,nt,w ~ 46 db

pannelli portanti

Da sinistra: appoggio del solaio sulla parete esterna; raccordo solaio/parete con giunto ancora da rivestire; rivestimento interno del solaio

Disegno e foto: holz&ko srl, Nova Ponente (BZ)

Il solaio viene ancorato alla parete portante esterna mediante fissaggio con viti autoforanti ed elementi angolari chiodati e nastrati che creano un collegamento sufficientemente rigido per garantire un adeguato comportamento scatolare dell’edificio In alternativa si possono utilizzare bande forate che collegano, sul lato esterno, parete e solaio

Il solaio viene completato con massetto, isolamento termoacustico e impianto di riscaldamento a pavimento

L’intradosso può essere lasciato a vista o finito con listellatura e pannello di rivestimento

110 legnoarchitettura 02 dettagli
ancoraggio
interno esterno 2 1 3 4 5

elementi massicci senza colla e ferro

1 parete in legno massiccio soligno® 2 solaio in legno massiccio soligno®

Stratigrafia parete

Dall’interno verso l’esterno - parete portante soligno® - pannello in fibra di legno - rivestimento esterno

Valori prestazionali

U <= 0,15 W/m2K

Da sinistra: l’intradosso di un solaio interpiano; l’appoggio del solaio su una parete portante (sagomata per riceverlo); l’orditura portante di un solaio in fase di costruzione e il raccordo con la parete in elevazione

Disegno e foto: soligno® Reinverbund S.R.L., Prato allo Stelvio (BZ)

La soluzione dell’attacco della chiusura orizzontale sulla parete esterna portante avviene sagomando quest’ultima e approntandola per l’alloggiamento della trave portante del solaio Tra i vari elementi del sistema è opportuno collocare uno strato di “tenuta” (in verde nel disegno) che contribuisce all’integrità dell’involucro dal punto di vista delle perdite energetiche Sono previsti ancoraggi meccanici

111
sagomatura, incastro
esterno interno 1 2

Ampliamento

Comfort Architecten

Residenza privata

Martin Stauder

dahoam naturresidence

Manuel Benedikter

Haus Schuerer

Walter Werner Franz, Albert Willeit

Guesthouse

Enrico Iascone

Binder Woodcenter Executive Pavillon

Matteo Thun

Edificio unifamiliare PF burnazzi feltrin architetti, Paolo Pegoretti

03 next F o t o B u r n a z zF e t nP e g o r e tB a o n F o t o e n s W e b e F o t o L u c a D e G o r g e D a n e l a W e n d a n d t F o t o G ü n t e R i c h a r d W e t

Turn static files into dynamic content formats.

Create a flipbook
Issuu converts static files into: digital portfolios, online yearbooks, online catalogs, digital photo albums and more. Sign up and create your flipbook.