

incontri
The Oval Partnership progetti
The Oval Partnership traverso-vighy Jensen&Skodvin Arkitektkontor
Botton+Associati
Kengo Kuma & Associates
Carnoy-Crayon
Marco Biscontin techné certificazione del legno sistemi elementi massicci modulari
dettagli
solaio interpianoparete interna
LignoAlp, il partner per ingegnerizzare e costruire il vostro progetto di casa naturale
Il cuore di ogni progetto innovativo è il legno. E costruire in legno è nell’anima della nostra origine Altoatesina.
Per questo il progettista che sceglie LignoAlp trova un know how senza pari, dalla scelta dei materiali di qualità, alla tecnologia affinata in decenni di lavoro, all’ingegnerizzazione del vostro elaborato, fino a una costruzione finale eccellente. Una filiera altamente specializzata.
Il vostro cliente, poi, vivrà l’esperienza unica di “naturale benessere” in una realizzazione ecosostenibile, a basso impatto energetico e già orientata al futuro.
Possiamo realizzare il sogno del vostro cliente, naturalmente insieme.
Dall’eccellenza
architettonica di Matteo Thun & Partners
nasce Tortona 37, l’innovativo complesso polifunzionale che unisce il design all’efficienza energetica.
Unitherm Design
è un prodotto selezionato
ADI DESIGN INDEX 2010
facciate continue in rovere lamellare
per saperne di più su u nitherm design clicca: www.unitherm.it ed esplora la nostra divisione facciate continue!
per richiederci informazioni, cataloghi tecnici e fotografici delle nostre realizzazioni, contattaci al numero verde 800-042464 .
legnoarchitettura
rivista trimestrale
anno 3 – n 7, aprile 2012 ISSN 2039-0858
Numero di iscrizione al ROC: 8147
direttore responsabile
Ferdinando Gottard
redazione Lara Bassi, Lara Gariup
editore
EdicomEdizioni, Monfalcone (GO)
redazione e amministrazione
via 1° Maggio 117 34074 Monfalcone - Gorizia tel 0481 484488, fax 0481 485721
progetto grafico
Lara Bassi, Lara Gariup
stampa Grafiche Manzanesi, Manzano (UD)
Stampato interamente su carta con alto contenuto di fibre riciclate selezionate
prezzo di copertina 15,00 euro abbonamento 4 numeri
Italia: 50,00 euro - Estero: 100,00 euro Gli abbonamenti possono iniziare, salvo diversa indicazione, dal primo numero raggiungibile in qualsiasi periodo dell’anno
distribuzione in libreria
Joo Distribuzione Via F Argelati 35 – Milano
copertina
Casa Ceschi, traverso-vighy Foto: Alessandra Chemollo
È vietata la riproduzione, anche parziale, di articoli, disegni e foto se non espressamente autorizzata dall’editore
The Oval Partnership Ltd è un gruppo di professionisti che da anni lavora su progetti di vita sostenibili, occupandosi a 360° di architettura, pianificazione urbanistica e interior design; lo studio è attivo anche nel sud est asiatico proponendo un nuovo modo di lavorare fondato sui principi di inclusione, sostenibilità e innovazione
Oval Partnership Ltd ha realizzato diverse costruzioni in bambù sperimentandone le potenzialità anche in edifici multipiano; nell’intervista, uno dei direttori dello studio, il Dr Lin Hao, spiega i vantaggi dell’utilizzo di questo materiale e delle relative tecnologie oltre agli sviluppi futuri
Quali ragioni vi hanno spinto a utilizzare il bambù in diversi progetti e in maniera così innovativa?
Il bambù è un ottimo materiale da costruzione sostenibile Cresce rapidamente, assorbe anidride carbonica durante la sua vita ed è presente nella maggior parte delle province della Cina meridionale Il suo utilizzo strutturale aiuta a tenere basso il livello di carbonio nell’aria, costituisce quindi una soluzione a basso impatto, sicura e conveniente per le abitazioni rurali, generando opportunità economiche per le stesse realtà Nel caso del Centro sociale e rurale
KPMG di Cifeng, nel Sichuan, si è anche fortemente cercato di integrare la sostenibilità nell’edilizia pubblica e sviluppare il progetto assistendo imprese, privati e fondazioni filantropiche con l’ambizione di realizzare, con l’aiuto di fondi, servizi e il contributo di volontari, un creativo piano sociale e ambientale nelle aree meno sviluppate della Cina
La Bamboo House a Kunming (PRC) è il primo edificio multipiano costruito in bambù laminato Quali sviluppi vedete per questa tecnologia? Quali sono i suoi vantaggi e quali i suoi limiti per l’impiego nelle costruzioni? Il prossimo passo è quello di agevolare la creazione di un codice nazionale cinese di procedure per l’uso strutturale del bambù nell’edilizia abitativa Abbiamo però bisogno di condurre ulteriori test sul materiale e monitorare le prestazioni in fase d’uso di un prototipo di casa in bambù La forza e le caratteristiche estetiche di una struttura in bambù sono uniche La maggior parte delle caratteristiche fisiche di questo materiale sono migliori di quelle del legno (si veda la tabella di confronto tra il bambù ricostituito e due tipi di legno) Tecnicamente, il bambù è un’erba e, se non viene trattato adeguatamente, può presentare le stesse problematiche del legno, come l’attacco da parte di parassiti, il controllo dell’umidità e la resistenza al fuoco La carbonizzazione del bambù grezzo è una chiave per il controllo della qualità e consiste nel rimuovere la parte di amido contenuta nella pianta
INTEGER INN ECOHOTEL – EXPO Eco Town, Kunming (PRC), 2008-2009
In queste pagine, due immagini dell’Ecohotel realizzato da OP per la EXPO Eco-Town di Kunming (PRC) Tra le soluzioni sostenibili applicate: pareti altamente isolate, riscaldamento a pavimento, sfruttamento dell’energia solare attraverso pannelli fotovoltaici e solare termico, installazione di pompe di calore, ricambio dell’aria con sistema di recupero di calore, trattamento delle acqua grigie, sistema di gestione dei rifiuti, caldaie a biomassa, vetri bassoemissivi per i serramenti, finiture in bambù ricostituito
EXPO ECO-TOWN – Kunming (2003)
Si tratta di un progetto sperimentale focalizzato su quattro aree: conservazione della regione naturale dell’EXPO, comunità a basse emissioni di CO2, stile di vita sano e sostenibile, un nuovo tipo di turismo. Gli edifici definiscono l’ambiente circostante non solo in termini quantitativi e volumetrici ma anche in senso qualitativo ed esperienziale L’impatto ecologico del progetto è minimizzato grazie alla piantumazione di canneti
Il KPMG Center a Cifeng (PRC) è la prima struttura a utilizzare travi in bambù lamellare con una luce così elevata Quali difficoltà avete incontrato nella realizzazione?
Sebbene esista una forte tradizione nell’uso del legno nella storia architettonica della Cina, è piuttosto raro vedere edifici in legno nella Cina odierna
La difficoltà risiede nella mancanza di competenza nella produzione e nella costruzione di edifici in bambù/legno e nella questione della regolamentazione antincendio Nel caso del KPMG Center, uno specialista del bambù giapponese (impresario affidatario del progetto e realizzatore oltre che fornitore) ha supervisionato il processo costruttivo e la qualità sia in stabilimento che in cantiere Va anche ricordato, però, che la tecnica di incastro tenone/mortasa non è una novità per i cinesi
Pensate che l’enginereed bamboo possa avere lo stesso sviluppo che ha avuto l’engineered wood?
Tecnicamente, potrebbe essere lo stesso Nei progetti residenziali abbiamo incoraggiato l’uso della tecnologia più avanzata per produrre pali di bambù ricostituito con sezione da 2 pollici a 4 pollici per costruire la prima casa a due piani in bambù di questo tipo La costruzione della Bamboo House è basata su un telaio del tipo platform frame (simile al balloon frame), molto comune in Australia e nel Nord America dove utilizzano il legno nella struttura I ricercatori dell’Università della Scienza e della Tecnologia di Kunming hanno testato il campione di bambù ricostituito sotto vari aspetti, come la trazione, la compressione, l’instabilità ecc Gli ingegneri hanno dimensionato gli elementi strutturali della casa e hanno disegnato le connessioni basandosi sul “Canadian Code of Practice for Timber Housing” La casa è dotata di un sistema di rivestimento contro la pioggia
costituito da pannelli in bambù a incastro maschio/femmina Comunque, per quanto riguarda gli edifici pubblici, abbiamo anche testato il potenziale del bambù come materiale strutturale per grandi luci
La tecnica costruttiva trave-pilastro è simile a quella delle costruzioni in legno Nel caso del KPMG Center abbiamo usato un collegamento del tipo tenone/mortasa seguendo una tecnica tradizionale
Quali attenzioni richiede una costruzione in bambù?
Ci sono differenze rispetto a una costruzione in legno?
Dal punto di vista tecnico, se il materiale in bambù è ben trattato e prefabbricato in stabilimento, la manutenzione degli edifici è la stessa delle costruzioni in legno È meglio comunque non esporre, ovunque sia possibile, le parti in bambù alla pioggia, ed è per questo che abbiamo realizzato (nel KPMG Center, NdT) una pensilina sporgente per una migliore protezione
Credete che l’utilizzo strutturale del bambù possa avere una diffusione anche in aree dove non c’è una tradizione nell’utilizzo di questo materiale, come l’Europa o il Nord America?
La Cina ha iniziato a esportare impiallacciatura di bambù per i più importanti progetti internazionali, come per l’aeroporto Barajas in Spagna, vincitore del premio RIBA
Negli USA il materiale chiamato “Lamboo” non è un fenomeno nuovo Tuttavia, per competere con calcestruzzo e acciaio, il costo del bambù strutturale deve essere ridotto Ci sono oltre 100 specie di bambù attualmente utilizzate in Cina da produttori di mobili, oggetti e pannelli multistrato La resistenza finale del materiale dipende dalla specie e dal processo di fab-
bricazione È necessario testare un’ampia varietà di specie e di processi di fabbricazione per definire la gamma adatta per un uso strutturale Il risultato sarà la base per un codice sul bambù Una strategia per ricavare un codice di progettazione per il bambù strutturale può essere quella di cominciare con un codice di utilizzo per il legno strutturale e quindi ritoccarlo per adattarlo alle particolari proprietà del bambù Un’altra strategia è invece quella di mettere a punto un codice sul bambù partendo da zero La costruzione di un prototipo di casa rurale in bambù è un passo importante per testare l’applicazione del codice in una situazione reale I ricercatori continueranno a monitorare le prestazioni in fase d’uso della casa per un anno dopo il suo completamento Una volta ben testata e monitorata con elevati standard industriali, seguiranno il trasferimento delle conoscenze e la produzione di massa per ridurre i costi
Nel KPMG Center che pubblichiamo in questo numero, così come in altri progetti, è evidente l’attenzione
alla sostenibilità: qual è la vostra filosofia progettuale in questo senso?
L’idea è quella di trasformare “l’ordinario” in qualcosa che sia veramente verde, unico e significativo
Lo spirito d’iniziativa è quello di sviluppare una “creatività verde” attraverso la comprensione dell’arte della sostenibilità La pratica della sostenibilità deve rispondere alle priorità fondamentali del sociale, dell’economia e dell’ambiente Un buon progetto è un progetto sostenibile, che ha risonanza e ambizione
Quanta attenzione c’è alla sostenibilità del costruire in Cina e negli altri paesi del Sudest Asiatico?
La Cina, negli ultimi anni, ha inserito il concetto di “PIL Verde” nell’agenda nazionale Il governo cinese ha capito che il miracolo economico non sarà sostenibile se non riuscirà a risolvere i problemi sociali e ambientali che sono arrivati con la crescita Il governo cinese sta dunque cercando nuove forme di sviluppo che siano sostenibili
fattore Y
BAMBOO HOUSE – Kunming (2008-2009)
Uno dei primi esempi di edificio multipiano con struttura portante in bambù, con cui sono state realizzati anche i tamponamenti e tutte le finiture
La costruzione di questa casa ha messo in luce una volta di più tutte le potenzialità del bambù, soprattutto in un paese come la Cina, in cui tale materiale è reperibile pressoché ovunque e a prezzi molto convenienti
Tra le caratteristiche più green del bambù: la ricrescita molto elevata e la sua capacità di assorbire una gran quantità di CO2 dall’aria
bambù cedro
bambù ricostituito
Tabella di confronto tra le caratteristiche meccaniche del bambù e del legno di cedro.
Tabella di confronto tra le caratteristiche meccaniche del bambù ricostituito, del legno di cedro e del legno di quercia
LIJIANG JIETUOLIN ECOVILLAGE – Lijiang (2009-2010) Il progetto si collocherà nelle vicinanze della vecchia città di Lijiang, nel sud-ovest della Cina Come in molti altri masterplan dello studio OP, anche in questo caso è stata data priorità al rapporto con l’ambiente circostante. La forma degli edifici è concepita come una naturale estensione del paesaggio
Oltre il 30% dell’energia è consumata dal settore edilizio La regolamentazione cinese sul risparmio energetico è diventata più restrittiva nel corso degli ultimi 10 anni e si basa sempre di più sull’aspetto prestazionale piuttosto che su quello descrittivo Ad esempio, sono state fissate nuove normative edilizie che saranno messe in atto nella maggior parte del Paese, mirando a ridurre il consumo di energia del 50-60% rispetto al livello di riferimento
Il governo sta già realizzando progetti-pilota in alcune città selezionate, concedendo sgravi fiscali alle iniziative verdi Come spesso accade in Cina, la politica governativa ha l’influenza maggiore sulla situazione dell’industria Siamo all’inizio di un cambiamento paradigmatico in Cina riguardo lo sviluppo sostenibile
Tuttavia, il passaggio dalle aspettative degli stili di vita attuali a qualcosa di più sostenibile comporta radicali decisioni morali e politiche I termini entro cui contenere le emissioni di carbonio sono sempre più ristretti ed è necessario ridurre il gap informativo Per quanto riguarda il cambiamento ingegneristico, è necessario coinvolgere il maggior numero possibile di stakeholders in un programma di innovazione applicata a basso rischio in grado di soddisfare tutti i soggetti Noi come studio offriamo la soluzione che potrebbe integrare l’innovazione dal lato industriale e uno stile di vita sostenibile Il progetto del KPMG Center ha ricevuto manodopera gratuita, risorse e
sostegno finanziario da 30 imprese nazionali e internazionali, istituti di ricerca e agenzie governative attraverso lo strumento del partenariato
Quanto sono sensibili i governi e le autorità locali dei Paesi in cui operate alle tematiche ambientali? Esistono leggi che tutelano e favoriscono il costruire sostenibile? Il governo locale è una delle parti interessate agli immobili I programmi assistono i governi, le imprese, i privati e le fondazioni di beneficenza nell’ambizione di ideare programmi maggiormente creativi in campo sociale, ambientale e comunitario nelle zone meno sviluppate della Cina, con l’aiuto di fondi, servizi e volontariato Il XV Congresso (del Partito Comunista Cinese, NdT) ha approvato le dottrine dello Sviluppo Sostenibile e la costruzione di una Società Armoniosa Il Ministero delle Costruzioni (MoC) comprende l’importanza dello sviluppo delle capacità edilizie Conferenze annuali ed eventi commerciali sono ospitati in molte città per educare gli utenti e per promuovere i fornitori di materiali da costruzione e sistemi sostenibili e intelligenti Il KPMG Center è uno dei progetti sostenibili dimostrativi realizzato in collaborazione tra Cina e Regno Unito
Per approfondimenti: www ovalpartnership com
Si tratta della riqualificazione di un’intera area di Pechino (52 000 m2) il cui motto è stato quello delle 3R: reposition, redevelopment, regeneration al fine di lanciare la figura di Pechino come città mondiale
1
Lo spazio centrale aperto è utilizzato anche per attività non strettamente legate alla scuola o alla formazione
2
Un dettaglio della facciata rivolta a nord. Il bambù è presente come struttura portante e come rivestimento
La ricerca ha dimostrato che i prodotti di bambù utilizzati nel progetto sono CO2 neutral, aspetto questo dovuto al fatto che il bambù è un importante “fissatore” di CO2
Ubicazione: Cifeng, Sichuan (PRC)
Committente: China Children and Teenagers’ Fund (CCTF); KPMG China
Progetto: The Oval Partnership Ltd, Hong Kong - Bejing - London
Strutture: YBkouki Huang Hui
Construction Co Ltd
Direttore dei lavori: Sichuan Hongyun
Construction Co
Appaltatore: Huaxi Construction Group; Hongchen Construction Co Ltd ; Jialan Co Ltd
Lavori: 2010
Superficie utile: 450 m2
Superficie verde: 700 m2
Importo dell’opera: 1,2 milioni RMB
Il “KPMG CCTF Community Center” realizzato nel villaggio di Cifeng – provincia cinese del Sichuan – è un esempio di sostenibilità attuata attraverso innovazioni “green” e una vasta collaborazione internazionale, guidata dall’organizzazione KPMG China (sede cinese di un network globale di società di servizi professionali), che è anche il donatore principale, in partnership con il China Children and Teenagers’ Fund (CCTF) e la Chengdu Women’s Federation Il centro, che nasce con l’intento di promuovere lo sviluppo delle comunità rurali locali fortemente colpite dal terremoto che nel 2008 devastò la regione, è destinato alle attività extrascolastiche per i bambini dei dintorni e alla formazione professionale degli adulti Gli attori coinvolti sono 30, tra enti governativi e soggetti privati anche internazionali, tra cui lo studio The Oval Partnership Il progetto, premiato nel 2009 con la medaglia d’oro del “National Human Settlement Best Practice” e che, nel 2010, ha valso allo studio il “Green Building Award”, si connota per le scelte sostenibili ad ampio respiro che abbracciano non solo la sfera architettonica ma anche quella sociale, poiché l’intento è quello di favorire un’agricoltura biologica locale e la formazione professionale della popolazione di una zona rurale ancora non molto sviluppata dell’entroterra cinese
I principali materiali da costruzione provengono da risorse rinnovabili: il bambù per la struttura, prefabbricata in una fabbrica locale e proveniente da foreste sostenibili locali, utilizzato anche per le finiture di pareti e pavimenti; il legno riciclato per i serramenti; le balle di paglia ecologica per l’isolamento delle pareti e della copertura
L’edificio è uno dei primi al mondo con struttura portante lamellare in bambù (le travi hanno fino a 12 m di luce), ed è costruito con una tecnologia antisismica di ultima generazione Accanto all’aspetto meramente tecnologico, grande importanza è stata data a quello bioclimatico ponendo attenzione all’orientamento e alla forma dell’edificio La curvatura del tetto consente di catturare i raggi del sole durante tutto l’anno favorendo anche la ventilazione passante e rendendo quasi inutili ulteriori accorgimenti per riscaldamento, raffrescamento e illuminazione Per catturare quanta più luce naturale possibile sono stati installati lucernari tubolari nelle aule mentre l’illuminazione artificiale è fornita da lampade a LED a basso consumo
spazio pubblico aule di studi per i ragazzi stanza dei bambini biblioteca ufficio degli insegnanti stanza di intrattenimento della comunità e casa del tè aula di lezione aula dei meeting vani tecnici e logistica
La forma ad arco in pianta e in sezione abbraccia simbolicamente la natura e le persone
La struttura prefabbricata e modulare dell’edificio permetterà di cambiare, in futuro, la destinazione d’uso e quindi la disposizione interna degli spazi.
prospetto sud
prospetto nord
prospetto ovest
1 I lucernari tubolari portano luce naturale all’interno e bilanciano il livello indoor di illuminazione
2 Lampade a LED ad alta efficienza
3 Le finestrature collocate in alto, sulla facciata nord, permettono la ventilazione e l’illuminazione naturale
4 La ridotta superficie vetrata del lato nord permette di diminuire le perdite di calore, soprattutto nel periodo invernale
5 Il pavimento è sollevato dal terreno per favorire la ventilazione naturale e ridurre l’impatto della costruzione
6 Il solaio in calcestruzzo provvede a creare massa termica
7 La copertura curva favorisce il flusso d’aria
8 La ventilazione è di tipo passante con effetto camino
9 Le ampie superfici vetrate a sud favoriscono la penetrazione della luce naturale, i guadagni solari passivi in inverno nonché la vista sul paesaggio circostante
10 Il lato sud è opportunamente ombreggiato dalla pergola in bambù che corre lungo tutto il fronte
11 I serramenti in legno riciclato sono isolati termicamente e dotati di doppi vetri
12 Nel piazzale antistante il Centro, un sistema di drenaggio sostenibile permette il riutilizzo dell’acqua piovana per l’irrigazione agricola
3
Il fronte nord, chiuso e con una superficie vetrata ridotta
4
Il prospetto concavo sud del Centro e il piazzale antistante in cui è stato integrato il tempio del Dio della Terra, vecchio di 2000 anni e visibile sulla sinistra della foto
5
L’angolo di nord-est
6
Una delle aule dedicate ai bambini e ai ragazzi.
assonometria della struttura
sezione trasversale di dettaglio
Il Centro di Cifeng è realizzato con una struttura a telaio di bambù lamellare, parzialmente prefabbricata nelle vicinanze e montata in cantiere da artigiani locali La struttura semplice e modulare è concepita per adattarsi ai futuri cambiamenti d’uso I pilastri poggiano su fondazioni in cls armato e sono collegati alle travi della copertura con incastri tenone/mortasa e angolari metallici opportunamente dimensionati a seconda del tipo di nodo
Il bambù, utilizzato anche per le pavimentazioni esterne e interne e i rivestimenti, garantisce un basso impatto ambientale, resistenza sismica e costituisce una soluzione conveniente per le costruzioni in zone non solo rurali
Il bambù lamellare è composto da lamelle di bambù ottenute dal tronco, ricomposte tramite incollaggio e posizionate di piatto o di taglio Il potenziale di questo materiale e delle soluzioni progettuali utilizzate in questo edificio è rilevante anche per le opportunità economiche sviluppabili nei paesi asiatici, nei quali il bambù ha una lunga tradizione ma l’innovazione tecnologica è ancora poco sviluppata
Dotato di ottime proprietà meccaniche e con un elevato modulo di elasticità, è estremamente leggero e resistente
Oltre a ciò è considerato sostenibile poiché ha un rapidissimo ciclo di crescita ed è in grado di contrastare efficacemente l’inquinamento atmosferico, catturando una quantità di carbonio di gran lunga maggiore rispetto alle essenze legnose comunemente utilizzate in edilizia
pilastro
pilastro trave trave portante di copertura trave portante di copertura
vista laterale
vista superiore trave
vista posteriore
Le travi portanti della copertura vengono prefabbricate da manodopera locale e rifinite in cantiere I vari elementi sono congiunti tra di loro attraverso connessioni tenone/mortasa e con elementi metallici.
Alcuni momenti della posa e del montaggio di travi e pilastri. Le travi più lunghe raggiungono i 12 m
Le orditure primaria e secondaria della copertura sono state posate.
A sinistra, una vista dell’intradosso della copertura che rimarrà a vista con i pannelli di tamponamento in bambù A destra, i lucernari tubolari che portano luce naturale negli ambienti interni del Centro.
1
La zona studio al piano terra con, a destra, la scala che sale dalla zona interrata e il pannello in vetro sabbiato che chiude la vecchia apertura commerciale sul fronte strada e consente l’illuminazione naturale dell’ambiente e del piano inferiore cieco.
2
Il piano inferiore, interamente adibita a studio professionale
3
La zona living al primo piano
Ubicazione: Vicenza
Progetto: traverso-vighy architetti associati - Giovanni Traverso e Paola Vighy, Vicenza
Strutture: ing. Franco Grazioli - Life engineering s r l , Vicenza
Direttore dei lavori: Giovanni Traverso, Vicenza
Appaltatore: Bios Edilizia, Isola Vicentina (VI)
Date progetto: dicembre 2009febbraio 2010
Lavori: maggio 2010-gennaio 2011
Superficie utile: 290 m2
Importo dell’opera: 300 000 €
Percorrendo la piccola via del centro quasi non si percepisce la trasformazione operata sul fabbricato L’attenzione nel preservare l’involucro storico, fortemente legato al tessuto urbano e addossato all’antica cinta muraria di Vicenza, ha limitato i segni del nuovo intervento Ma è all’interno che il cambiamento diventa evidente e sorprendente L’edificio è stato completamente svuotato e una nuova struttura – uno scheletro di legno lamellare di larice che si sviluppa per tutta l’altezza del fabbricato – è stata inserita nel nudo involucro definendone la distribuzione degli spazi e instaurando con esso una collaborazione strutturale al fine di migliorarne la resistenza sismica La muratura perimetrale e la struttura in legno – telai, solai e copertura – cooperano strutturalmente ma rimangono elementi concettualmente e costruttivamente indipendenti Le partiture interne, compromesse dalla ristrutturazione operata negli anni ‘50, sono state eliminate durante la fase di restauro ed è stato scavato un piano interrato che ha consentito di riportare alla luce la base delle mura cittadine del XII secolo
La scelta del legno per la struttura verticale, i solai intermedi e la copertura consente una lettura chiara del nuovo intervento differenziando contenitore e contenuto, la parte storica e quella nuova, e si sposa efficacemente con i materiali antichi della muratura (pietra e laterizio) La cura artigianale dei dettagli valorizza il tutto utilizzando la struttura in legno, i nodi costruttivi e le giunzioni metalliche quali elementi di un linguaggio schietto e asciutto Oltre alla riqualificazione energetica, grande attenzione è stata riservata all’illuminazione al fine di sfruttare al massimo la luce naturale e ridurre i consumi di elettricità Attenzione evidente soprattutto nel piano interrato: il pannello in vetro sabbiato che chiude la vecchia apertura commerciale affacciata sulla strada consente alla luce naturale di illuminare lo spazio cieco dello studio mentre l’illuminazione incassata a terra valorizza la pietra delle antiche mura
La pianta, grazie al sistema costruttivo, è gestita in maniera libera a tutti i livelli L’edificio ospita due appartamenti (un monolocale al piano terra e uno più grande su tre livelli) e uno studio professionale suddiviso tra piano terra e piano interrato.
trasmittanza media elementi costruttivi
pareti esterne: U = 0,21 W/m2K solaio contro terra: U = 0,193 W/m2K copertura: U = 0,18 W/m2K serramenti: Uw = 1,2 W/m2K
prestazioni energetiche
consumo energetico per riscaldamento e acqua calda: 45,6 kW/m2 anno consumo energetico per raffrescamento estivo: 6,6 kW/m2 anno emissioni di CO2 evitate: 21 888 kg/anno
4 5
La facciata è stata restaurata; i serramenti sono arretrati ai piani superiori mentre un pannello in vetro sabbiato a filo della parete chiude la vecchia apertura commerciale al piano terra
L’edificio, classificato in classe A, è coibentato internamente con un isolante multistrato accoppiato a pannelli di terra cruda con finitura a calce La terra cruda ha elevata massa termica ed è in grado di regolare l’umidità all’interno dell’ambiente, migliorando il comfort. Per il riscaldamento e il raffrescamento sono utilizzati pannelli radianti a pavimento annegati nel massetto e terminali idronici localizzati
Copertura, dall’estradosso:
- manto di copertura in coppi su ondulina ventilata
- guaina impermeabilizzante
- pannello OSB (20 mm)
- isolamento in pannelli di canapa (50 + 50 mm) intervallati da doppia orditura di murali (50x50 mm)
- guaina freno al vapore
- tavelle in cotto (600x300x35 mm)
- murali in larice (50x50) ogni 600 mm
Parete esterna, dall’esterno:
- intonaco (10 mm)
- parete esistente in mattoni (320-340 mm)
- isolante termoriflettente con struttura in morali (45x45) ogni 60 cm
- pannello in terra cruda, paglia e fibre d’orzo come controparete (20 mm)
- intonaco a calce rasata (5 mm)
Solaio controterra, dall’estradosso:
- pavimento in tavole di larice (15 mm)
- pacchetto pannelli radianti (75 mm)
- materassino fonoisolante (10 mm)
- massetto impianti (60 mm)
- guaina impermeabilizzante
- platea controterra in c.a. (350 mm)
- strato di magrone (50 mm)
- terreno
1 grondaia acciaio inox
2 profilo in acciaio verniciato (100x200 mm)
3 profilo sagomato in larice
4 cordolo in c a
5 profilo a L (80x60 mm)
6 davanzale in pietra esistente
7 serramento con apertura ad anta e vasistas
8 controtelaio (45 mm)
9 supporto angolare in acciaio verniciato
10 portale in legno lamellare
11 trave lamellare (60x250 mm)
6
La struttura prefabbricata in legno ha consentito di realizzare un intervento strutturalmente leggero e reversibile, razionalizzare le fasi di esecuzione e di montaggio contenendo i tempi e i costi
A inserirsi nelle pareti dell’edificio svuotato è una nuova struttura, uno scheletro di legno lamellare di larice che si sviluppa per tutta l’altezza della costruzione, collabora con la muratura a fini antisismici, supporta i solai in legno dei vari piani e l’orditura, in legno e profilati cavi in acciaio verniciato, della copertura La gran parte della nuova struttura è costituita da elementi binati in legno lamellare, collegati tra loro attraverso piastre in acciaio e fissati con barre filettate e dadi ciechi La prefabbricazione ha richiesto grande attenzione e precisione in tutte le fasi del lavoro (rilievo dell’esistente, progettazione, esecuzione)
L’involucro originario, così come tutte le parti di valore storico, sono state restaurate con tecniche tradizionali utilizzando leganti a base di calce e prodotti protettivi a base di cera d’api I muri sono stati coibentati internamente con uno speciale isolante multistrato con pellicola termoriflettente (spesso solo 30 mm, ha consentito di ottenere un buon isolamento riducendo la perdita di superfice interna), accoppiato a pannelli di terra cruda finiti a calce che permettono un ottimo controllo igrometrico; le finiture interne e di completamento sono state eseguite utilizzando principalmente legno di larice e mattoni di canapa, ottimi isolanti termici e acustici
6
La scala centrale che serve i diversi piani ha struttura portante in acciaio verniciato di bianco
Il modello a lato mostra il rapporto di collaborazione tra le pareti in muratura che compongono l’involucro, e che sono state oggetto di un restauro conservativo, e la nuova struttura a telaio in legno lamellare
La struttura della copertura rielabora la tradizione costruttiva utilizzando un’orditura mista in acciaio e legno sulla quale sono posate tavelle in cotto di 60x30x3,5 cm.
La coibentazione
è in pannelli di canapa (50+50 mm).
Il manto di copertura
è in coppi posati su ondulina ventilata
Solaio interpiano, dall’estradosso:
- pavimento in tavole di larice (15 mm)
- pacchetto pannelli radianti (90 mm)
- materassino fonoisolante (10 mm)
- massetto impianti (60 mm)
- cappa collaborante in cls (50 mm)
- tavolato in abete maschiato (120x20 mm)
1 controtelaio (70 mm)
2 guaina impermeabilizzante
3 scossalina acciaio inox 10/10
4 cappotto in EPS grigio (100 mm) e finitura esterna in resina colore bianco (10 mm)
5 serramento con apertura ad anta e vasistas
6 controtelaio (70 mm)
7 intonaco a calce rasata (5 mm)
8 tramezzo in forati (100 mm)
9 profilo in acciaio verniciato (100x200 mm)
10 trave lamellare (150x180 mm)
11 scossalina perforata per passaggio aria acciaio inox 10/10
A sinistra, vista dell’involucro dell’edificio verso la copertura, svuotato dei solai e delle partizioni interne A destra, rinforzo della struttura perimetrale della zona interrata
Assemblaggio della struttura costituita da elementi di legno lamellare accoppiati mediante piastre d’acciaio e fissaggio con barre filettate e dadi ciechi.
A sinistra, la struttura del vano scala e del solaio in legno al primo piano. A destra, l’ultimo piano: in evidenza l’orditura portante della scala e della copertura
Da sinistra, la struttura della copertura in travi lamellari e profilati in acciaio verniciato; il rivestimento dei muri con pannelli in terra cruda; stesura dell’intonaco a calce.
1
Il fronte nord dell’abbazia
verso il mare e la facciata vetrata che dalla stessa chiesa porta al refettorio
2
Una vista da sud-est del complesso monastico, in fase di ultimazione dei lavori.
Secondo il progetto, nel giardino che si vede in primo piano verranno piantati dei noccioli contorti L’edificio sulla destra, con la doppia falda molto pendente, è quello che ospita al piano terra la biblioteca e al primo piano lo scriptorium
Sullo sfondo, la serialità delle celle-dormitorio delle monache.
Ubicazione: Isola di Tautra, Trondheimsfjord (N)
Committente: Monache Cistercensi
Progetto: JSA Jensen & Skodvin
Arkitektkontor as - Jan Olav Jensen, Børre Skodvin, Torstein Koch, Torunn Golberg, Martin Draleke, Aslak Hanshuus, Kaja Poulsen, Siri Moseng, AnneLise Bjerkan, Oslo (N)
Strutture: Dr Techn Kristoffer Apeland AS Progetto paesaggistico: le suore e professionisti locali
Date progetto: 2003-2004
Lavori: 2004-2006
Superficie area: 2 000 m2
Fotografie: Jensen & Skodvin Architects
Il nuovo monastero di Tautra, un’isola nel fiordo di Trondheim, è stato commissionato da un gruppo di suore cistercensi di diversi paesi, la maggior parte statunitensi, unite dall’idea di continuare la tradizione dell’ordine sull’isola che già nel 1200 ospitava un complesso monastico di cui rimangono solo le rovine Il monastero per 18 suore è completato da una piccola chiesa e da tutti i servizi necessari all’autosostentamento della comunità La struttura si sviluppa orizzontalmente su un unico piano, a eccezione delle celle e della chiesa, ed è caratterizzato da una particolare organizzazione degli spazi, concepita studiando il modo di lavorare e di vivere delle monache, che ha consentito di ridurre del 30% il programma originale Dato che le suore quando sono riunite nelle sale principali sono tutte assieme, gli spazi sono utilizzati per lo più una alla volta e quindi le sale possono fungere anche da spazio di distribuzione Le porte poste sui lati lunghi delle stanze collegano i diversi ambienti eliminando la necessità di corridoi (a parte quelli delle celle e delle stanze studio) e riducendo al minimo gli spazi di distribuzione Il progetto consiste quindi in un sistema di ambienti di dimensioni diverse, a seconda delle necessità, collegati agli angoli e inframezzati da corti che danno origine a sette giardini Tranne che per le celle, non vi sono moduli che si ripetono in pianta; prevale la flessibilità sia nell’organizzazione degli spazi sia nella struttura Quest’ultima, lasciata volutamente a vista, ad esclusione dell’ala delle celle e degli studi, non è basata su un modulo che si ripete ma è condizionata dalle necessità spaziali La distanza tra i pilastri varia a seconda delle dimensioni delle stanze e i controventamenti, di conseguenza, hanno inclinazioni diverse Il carattere introverso della vita quotidiana delle monache si riflette nell’architettura I giardini interni danno luce e creano un senso di privacy e di esclusione; al tempo stesso l’apertura di alcune viste spettacolari sul fiordo, consente come per esempio attraverso la parete vetrata del refettorio, un silenzioso sguardo verso il mare e le montagne dall’altro lato
Un corridoio coperto separa uno dei giardini più estesi all’interno all’abbazia e che si intravede sulla sinistra, da quello che, secondo progetto, dovrebbe diventare un giardino zen.
5 uffici
Giardini:
1 Giardino delle erbe da lavorare nell’adiacente laboratorio
2 Giardino del refettorio con fiori
3 Podere con noccioli contorti e ciotoli su terreno piantumato
4 Giardino dell’abbazia con sottofondo in terreno, alberi di pino e fontana
5 Giardino della Sala del Capitolo con piano in cemento e specchio d’acqua
6 Cappella: giardino Zen con sabbia, ghiaia e fiori
7 Giardino interno della chiesa con fiori
8 Alberi da frutto e piante di frutti di bosco
9 Salita della Chiesa con il piano cementato e alberi di betulla
10 Giardino della chiesa
Raccordo tetto piano-parete:
1 doppio strato di guaina antivento in cellulosa
2 cartongesso (15 mm)
3 controparete isolata (48x48 mm)
4 barriera al vapore
5 trave portante (148x148 mm)
6 separazione in tutti i raccordi tra compensato e il legno lamellare (4 mm)
7 travi a vista solo nello scriptorium
Parete esterna, finitura in legno, dall’interno:
- rivestimento (15 mm)
- montante in legno lamellare di abete con isolamento (48 mm)
- barriera al vapore
- montante in legno lamellare di abete e isolamento (148 mm)
- compensato (18 mm)
- guaina in cellulosa di tenuta al vento
- listelli per ventilazione parete (23x36 mm)
- controlistelli per ventilazione parete (36x48 mm)
- rivestimento in listelli (19 mm)
Il refettorio, lungo e stretto, invita al raccoglimento
La grande vetrata rivolta a nord permette a ogni commensale di contemplare lo spettacolo della natura in ogni stagione dell’anno
Copertura uffici, dall’estradosso:
- copertura del tetto in rame con aggraffatura
- supporto morbido per il rivestimento del tetto
- compensato (18 mm)
- camera di aerazione (48x48 mm)
- tenuta all’aria (guaina in cellulosa)
- travi lamellari (250 mm)
- barriera al vapore
- listelli (23x36 mm)
- soffitto
La struttura di montanti e travi, apparentemente complessa, realizzata con abete lamellare in sezione quadrata (215x215 mm), segue le necessità e le dimensioni dei diversi ambienti Il sistema di telai che costituisce la struttura portante non ha un interasse costante o modulare e le diagonali di irrigidimento sono state inserite semplicemente dove le necessità statiche ne imponevano la presenza, collegando un nodo al livello del pavimento con uno al primo orizzontamento
Le pareti interne delle chiostrine sono rivestite con tavole verticali di legno di abete rosso Il rivestimento esterno in ardesia locale protegge la struttura dalle intemperie e mostra con chiarezza la sua funzione non portante Le lastre hanno dimensione fissa per sfruttare al meglio le dimensioni dei blocchi di cava ed economizzarne il taglio Le finestre sulle pareti esterne seguono la logica del rivestimento: hanno l’altezza fissa delle lastre di piestra, mentre la larghezza è variabile
Soluzione del cornicione del blocco uffici:
1 rivestimento in rame con aggraffatura
2 compensato (15 mm)
3 camera di ventilazione con listello (23x36 mm)
4 doppio strato di guaina in cellulosa (tenuta all’aria)
5 compensato (18 mm)
Parete esterna, finitura in ardesia, dall’interno:
- rivestimento (15 mm)
- montante in legno lamellare di abete con isolamento (48 mm)
- barriera al vapore
- montante in legno lamellare di abete e isolamento (148 mm)
- compensato (18 mm)
- guaina di tenuta al vento in cellulosa
- rivestimento in lastre di ardesia
L’apparente complessità del sistema costruttivo trova il suo apice nel tetto della chiesa, dove la percezione della struttura viene alterata dall’inserimento di una terza e quarta orditura (non ortogonali ai telai principali) i cui travetti a 45° formano una sorta di brise soleil per controllare la luce naturale che penetra all’interno dalla copertura interamente vetrata La struttura deve essere vista come una successione di strati in cui i più esterni fungono da protezione per quelli più interni senza nasconderli, essendo essi la parte distintiva dell’immagine architettonica
Soluzione del cornicione
della chiesa:
1 profilo FW 50+ per vetrate continue
2 sistema di drenaggio sovrapposto e continuo per il profilo della vetrata
3 membrana
4 scolo
5 profilo e isolamento
6 barriera al vapore
7 compensato (18 mm)
8 trave legno lamellare (275x70 mm)
9 isolamento
6
Dettaglio della chiesa
I vari tagli delle lastre d’ardesia definiscono le dimensioni delle finestre attraverso le quali, anche dall’esterno, è ben riconoscibile la struttura portante interna
7
La fitta trama della struttura di copertura della chiesa si riflette sulla vetrata che dà verso uno dei tanti giardini interni presenti all’interno dell’abbazia
A lato, immagini del montaggio dei telai portanti in legno e della struttura del tetto della chiesa
8
La sala capitolare: le travi del tetto e la struttura delle pareti rimangono a vista
9
Il laboratorio delle monache e, sullo sfondo, uno dei giardini dell’abbazia ancora incolto ma che dovrebbe ospitare, secondo progetto, dei pini e anche una fontana
10
Un’immagine dell’interno della chiesa
Rimanendo sempre ben evidente la trama della struttura portante, si notano subito anche la variazione del passo dei pilastri e la conseguente variazione dei controventamenti, laddove richiesti da esigenze statiche.
La struttura del monastero: a travi e pilastri portanti si contrappongono le strutture più esili delle pareti interne Anche la pendenza delle falde dei tetti è stata diversificata per dare movimento al complesso chiuso sui quattro lati.
Le staffe in acciaio su cui si inseriranno i montanti in legno e la struttura rialzata del fronte a nord
A sinistra: l’intelaiatura della chiesa e del campanile e il fronte nord del monastero.
A destra: la copertura in rame dell’affaccio a ovest; in fondo, l’area delle celle in attesa della posa del rivestimento in legno
A sinistra, in alto: il lungo corpo degli uffici a sud con la posa del telo di tenuta all’aria e dei listelli per la ventilazione sotto manto In fondo a destra l’orditura delle travi di copertura della sala del Capitolo A sinistra, in basso: lavori quasi ultimati per gli uffici (mancano il rivestimento in ardesia e i serramenti), mentre prende forma il volume della chiesa (a destra)
A destra: posa dei primi telai dell’abbazia
1
I profondi portici sul lato sud diventano “aule all’aperto” nella bella stagione
2 Vista della scuola da sud-ovest
3
La corte a ovest è caratterizzata da un portico che corre tutt’intorno all’edificio
In primo piano, il verde estensivo della copertura
Il portico ha anche la funzione di proteggere, durante il periodo estivo, le pareti e le superfici vetrate dall’eccessivo irraggiamento; in inverno, data la diversa inclinazione dei raggi solari, è invece possibile sfruttare gli apporti solari gratuiti.
3
Ubicazione: Cesano Maderno (MB)
Progetto: arch Doriano Botton, ing Claudia Botton, arch Matteo Veneroni
- Studio BOTTON+ASSOCIATI, Bovisio
Masciago (MB)
Strutture: arch Luigi Fumagalli, Bovisio Masciago (MB)
Progettazione energetica e direzione
lavori: arch Doriano Botton
Appaltatore: Impresa Edile Fratelli Faletra srl, Lissone (MB)
Lavori: giugno 2010-settembre 2011
Superficie fondiaria: 5 570 m2
Superficie utile: 1 021,32 m2
Superficie verde: 4.170 m2
Importo dell’opera: 1 850 000 €
Fotografie: BOTTON+ASSOCIATI
La scuola materna sorge in un quartiere alla periferia di Cesano Maderno nell’ambito di un programma integrato di intervento, redatto secondo principi di integrazione con il contesto ambientale e di sostenibilità energetica, che prevede anche un intervento residenziale, un parco urbano, percorsi ciclopedonali affiancati da corridoi ecologici e la riqualificazione viabilistica di un tratto di strada provinciale
L’idea alla base del progetto è far vivere il bambino in un ambiente a sua misura e protetto ma ricco di esperienze spaziali e sensoriali, oltre che educativo per quanto riguarda la sensibilità verso il rispetto ambientale e il concetto di sostenibilità L’edificio è pensato come un insieme di percorsi in continuità tra interno ed esterno che, attraverso serramenti scorrevoli e dispositivi che variano la trasparenza delle separazioni verticali, può modificare il suo rapporto di permeabilità con l’esterno e, a seconda delle necessità delle attività educative, ampliare e diversificare le soluzioni spaziali includendo o meno gli ambienti didattici coperti e quelli del giardino Si può così passare da una completa apertura che permette una continuità totale tra il parco e le sale della scuola fino alla definizione tradizionale dei singoli spazi funzionali L’edificio, realizzato con un sistema stratificato a secco, ha struttura portante con pareti in Xlam e copertura realizzata con travi e travetti in legno lamellare La classe energetica A del sistema di certificazione Cened Lombardia (il fabbisogno energetico annuo per il riscaldamento è di 8,1 W/m3) è stata ottenuta grazie allo studio bioclimatico, alla coibentazione, al tetto verde e a soluzioni tecnologiche (impianto solare termico e fotovoltaico, sistema geotermico, unità di trattamento dell’aria con recupero di calore) che rendono la scuola efficiente dal punto di vista energetico e ambientale
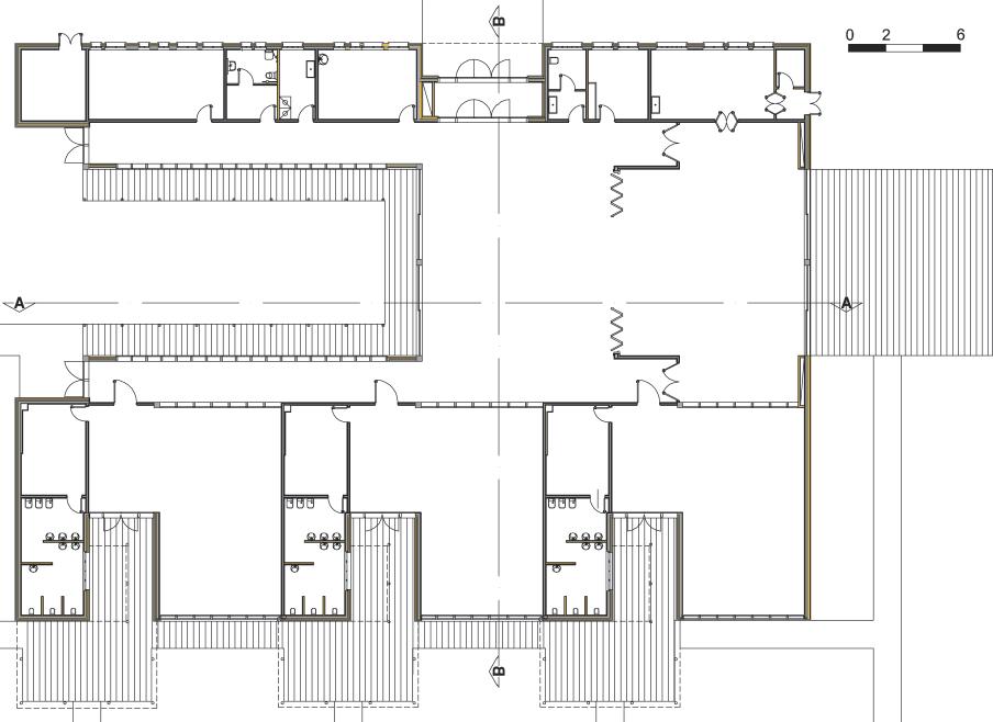
Legenda pianta:
1 locale tecnico
2 aula insegnanti
3 bagno insegnanti
4 spogliatoio
5 lavanderia
6 locale assistente visite mediche
7 pulizia allievi
8 deposito
9 porzionamento vivande
10 attività libere
11 mensa
12 attività speciali
13 attività ordinate
14 bagni
15 lezioni all’aperto
Nella distribuzione interna degli spazi si possono individuare tre zone
La prima (NO) è quella dei servizi con l’ingresso in posizione centrale, affiancato dai locali di supporto alla didattica.
Nella seconda zona trovano spazio la mensa e la sala delle attività libere
La terza (SE) accoglie le aule per le attività ordinate e il blocco spogliatoi/servizi igienici
prospetto nord-est
prospetto nord-ovest
prospetto sud-est
prospetto sud-ovest
trasmittanza media elementi costruttivi
pareti esterne, U = 0,19 W/m2K solaio contro terra, U = 0,22 W/m2K copertura, U = 0,17 W/m2K superfici trasparenti, Uw = 1,3 W/m2K
fabbisogno energetico per riscaldamento e acqua calda: 8,1 W/m3 anno fabbisogno energetico per raffrescamento estivo: 4,8 W/m3 anno emissioni di CO2: 3,2 kg/m3 anno
4 5
La mensa e la sala delle attività libere sono separate da pannelli mobili a tutta altezza che permettono all’occorrenza di creare un unico grande ambiente
6
Il fronte nord, con le aperture di diverse dimensioni e a diverse altezze
7
Le finestre del fronte nord, collocate a diversa altezza, consentono la vista esterna anche ai piccoli fruitori dell’edificio
Copertura, dall’intradosso:
- lastra in cartongesso (20 mm)
- freno al vapore
- fibra di legno naturale (80+80 mm)
- camera d’aria (50 mm)
- tavole di abete (20 mm)
- manto impermeabilizzante con guaina bituminosa armata in poliestere
- feltro protettivo ad accumulo (50 mm)
- strato drenante
- telo filtrante (2 mm)
- substrato
- superficie vegetativa (50 mm)
Pavimento contro terra, dall’estradosso:
- pavimento in gres porcellanato (9 mm);
- guaina antirumore e impermeabilizzante;
- rete elettrosaldata;
- impianto di riscaldamento a pavimento;
- massetto autolivellante (50 mm);
- polistirene estruso (50+50 mm);
- sottofondo alleggerito (110 mm);
- vespaio aerato con sistema iglù
1 pannelli fotovoltaici in silicio monocristallino
2 pannello X-lam (125 mm)
3 serramento con telaio in abete lamellare, guarnizioni in purene, vetro camera con riempimento in argon
4 polistirene ad alta densità (120 mm per i primi 60 cm di altezza)
A sinistra dall’alto, dettagli del tetto verde a bassa manutenzione, in particolare: la guaina bituminosa armata con funzione impermeabilizzante e il tessuto non tessuto; due immagini della posa dello strato di ghiaietto; il bordo del tetto a lavori ultimati con le piante tappezzanti perenni (sedum)
La vetrata di ogni aula è protetta da lamelle orientabili integrate nel serramento e da una pensilina aerea orizzontale, in continuità con la copertura verde, costituita da pannelli fotovoltaici monocristallini che forniscono l’energia rinnovabile necessaria per la scuola materna e coprono una buona parte dell’energia elettrica assorbita dalla pompa di calore geotermica e dai relativi ausiliari La potenza totale è di 1 210 kWh/m2a Collettori solari a tubi sottovuoto per la produzione di acqua calda sanitaria sono posizionati sulla copertura; l’impianto (1,22 m2) copre solo una piccola percentuale di energia primaria poiché la sua applicazione è a scopo didattico La scuola non è allacciata alla rete del gas e per il riscaldamento è utilizzato un sistema geotermico, del tipo “a bassa entalpia”, costituito da 6 sonde geotermiche verticali (100 m) a cui è associata una pompa di calore (con un coefficiente di prestazione pari a 3,58) e pannelli radianti a pavimento; il sistema garantisce anche il raffrescamento Il tutto è integrato da un sistema di ventilazione meccanica controllata dotato di un’unità compatta con recuperatore di calore statico a flusso incrociato e recuperatore entalpico Il sistema consente di recuperare oltre l’80% dell’energia dell’aria in espulsione L’aria fuoriesce attraverso il vespaio aerato aumentandone così la ventilazione, accorgimento che garantisce un vespaio più asciutto e una riduzione della concentrazione di gas radon Gli impianti e i materiali che rendono l’edificio ecocompatibile, e che possono rappresentare per i piccoli fruitori un primo approccio con il rispetto dell’ambiente, sono lasciati a vista A fini didattici è stato previsto anche un pannello per il monitoraggio di una serie di parametri quali i consumi, la produzione di energia, ecc
8
Un dettaglio della pensilina sul lato sud-est con struttura in legno e lastre in cristallo con celle fotovoltaiche monocristalline integrate
Parete portante esterna, dall’interno:
- doppia lastra in cartongesso (12+12 mm)
- lana di roccia densità
40 kg/m3 con intercapedine (70 mm)
- pannello X-lam (125 mm)
- fibra di legno naturale (60+60 mm)
- barriera al vento (telo biologico)
- rivestimento in larice
Parete interna strutturale:
- doppia lastra in cartongesso (12+12 mm)
- lana di roccia densità
40 kg/m3 con intercapedine (27 mm)
- pannello X-lam (81 mm)
- lana di roccia densità
40 kg/m3 con intercapedine (27 mm)
- doppia lastra in cartongesso (12+12 mm)
1 pilastro in legno lamellare
2 serramento scorrevole
9
L’interno di una delle aule rivolte a sud-est.
Il serramento è dotato di lamelle frangisole regolabili.
10
Lo spazio dedicato alle attività libere è ampliabile, non solo visivamente, verso l’esterno grazie alle finestrature scorrevoli che occupano quasi tutto lo spazio della parete
La struttura e gli impianti sono volutamente a vista a fini didattici
A sinistra, realizzazione delle fondazioni con il vespaio a cupolette e le tubazioni per l’espulsione dell’aria viziata
A destra, le pareti in X-lam e le travi portanti del tetto in legno lamellare
A sinistra, il montaggio della parete a nord-ovest, con le bucature già predisposte per le finestre. A destra, una parte della struttura del solaio di copertura
A sinistra, la costruzione del tetto procede con la posa delle travi secondarie.
A destra, la coibentazione interna in lana di roccia e l’intelaiatura delle contropareti nelle quali sono alloggiati gli impianti
A sinistra, la pensilina fotovoltaica vista dal basso. A destra, il tetto verde estensivo e la pensilina fotovoltaica
A sinistra, gli scavi attorno all’edificio per la posa delle sonde geotermiche orizzontali
A destra, l’impianto di riscaldamento radiante a pavimento
Ingresso a sud La struttura portante anche all’esterno si dilata verso l’alto creando un supporto continuo per la copertura.
Ubicazione: Kureha-cho, Toyama-shi, Toyama Prefecture (J)
Progetto: Kengo Kuma & Associates, Tokyo (J)
Strutture: Ejiri Structual Engineers, Tokyo (J)
Lavori: ottobre 2012-luglio 2011
Superficie utile: 197,73 m2
Superficie fondiaria: 1 484,02 m2
Fotografie: Kengo Kuma & Associates
Realizzare un’architettura organica come una foresta è l’idea alla base di questo caffé-ristorante giapponese che richiama il Jenga, un gioco da tavolo costituito da elementi di legno impilati a formare una torre
La sala da pranzo del ristorante, che sorge in un un prato verde nella zona rurale della città di Toyama, è racchiusa da una scatola di vetro di grandi dimensioni avvolta da una particolarissima e leggera struttura in legno realizzata semplicemente sovrapponendo travi di legno di sezione quadrata una sull’altra I blocchi di legno sono accatastati perpendicolarmente tra di loro sul piano orizzontale a formare una griglia, generando una sorta di pilastri cavi che si assottigliano verso il pavimento e che, in un fluire dinamico, si aprono verso la copertura; in questo modo la posizione delle “cataste” di legno determina l’apertura o la chiusura della vista verso l’esterno fungendo da protezione solare, grazie anche alla sporgenza della parte superiore La copertura poggia sulle griglie verticali in legno ed è realizzata in lamiera piegata coibentata
Le precedenti esperienze progettuali del GC Prostho Museum Research Center di Kasugai o del Yusuhara Wooden Bridge Museum a Kochi hanno consentito allo studio di Kengo Kuma di sviluppare uno spazio fluido e organico con pochi elementi La separazione tra interno ed esterno è data solo dalle pareti in vetro a tutta altezza che separano anche le pile in legno della sala da quelle al di fuori La costruzione si caratterizza inoltre per il suo ridotto impatto ambientale: i blocchi sono di legno comune di provenienza locale e privi di trattamenti speciali; il metodo costruttivo semplice e poco costoso permette lo smontaggio dell’edificio in caso di un suo spostamento e l’eventuale riciclaggio dei singoli materiali
Il metodo costruttivo sfrutta appieno le caratteristiche di flessibilità della struttura in legno Le travi, con sezione quadrata di 105 mm, sono impilate l’una sull’altra perpendicolarmente a formare una struttura a pianta quadrata o rettangolare che si apre verso il tetto, diventando parte della sagoma della copertura Un tondino in acciaio dello spessore di 30 mm, ancorato alla piastra di fondazione e fissato in cima, corre verticalmente attraverso gli elementi di legno impilati, assicurando efficacia e staticità all’edificio La copertura è ancorata alla parte superiore della struttura in legno tramite elementi metallici, un sistema semplice ed economico che assicura anche un facile disassemblaggio
1
La struttura in legno sul fronte strada funge da balcone, schermatura solare e supporto per il verde verticale
2 Il prospetto verso il giardino, dove i colori delle facciate sono invertiti rispetto al fronte strada, e il tetto verde con i collettori solari
Ubicazione: Molenbeek-Saint-Jean, Bruxelles Capitale (B)
Progetto: arch Damien Carnoy - CarnoyCrayon, Wavre (B)
Strutture: ing Delvaux Luc, Louvain-laNeuve (B)
Consulente: MK Engineering, Bruxelles (B)
Direttore dei lavori: arch. David Dardenne
Appaltatore: De Graeve SA, Namur (B)
Lavori: febbraio 2009-aprile 2010
Superficie fondiaria: 1.025 m2
Superficie edificabile: 504 m2
Superficie verde: 422 m2 (giardini) + 425,5 m2 (tetto verde)
Fotografie: Damien Carnoy
Nel 2006 un gruppo di famiglie in difficoltà finanziaria e sociale, per lo più di origine straniera o in corso di emancipazione, si riunisce nell’associazione l’Espoir e avvia un progetto ambizioso: realizzare la propria casa attraverso un concorso con la richiesta di appartamenti con 2 o 5 camere, energeticamente passivi e di costo inferiore a 1 200 euro/m2 Il progetto vincitore, l’unico interamente in legno, si articola in 14 duplex distribuiti su due file sovrapposte di 7 unità abitative; la prima serie di appartamenti si presenta con colori vivaci e personalizzati sul lato strada e con colore neutro dal lato giardino, mentre questa scelta cromatica si inverte per la seconda serie dove il colore appare sul giardino e il neutro verso la strada, così da far percepire solo sette case alla volta e di ridurre visivamente l’impatto del complesso Sul fronte strada una iper-struttura arborescente, destinata a essere coperta dalla vegetazione, funge da balcone, creando al contempo l’ombreggiatura necessaria per il comfort estivo
La sfida economica del progetto è stata raggiunta coniugando isolamento, peso e modularità L’ossatura a telaio dell’edificio ha permesso di coibentare ampiamente la struttura e conseguire lo standard passivo senza importanti sovracosti La stessa ossatura in legno, molto leggera, ha consentito di ridurre il costo delle fondazioni nonostante la scarsa qualità del suolo L’utilizzo di travature regolari e modulari di 5 m ha permesso di ottimizzare l’impiego del materiale pur rispondendo al programma di diversificazione delle superfici (da 75 a 130 m2) voluto dai committenti
Grazie allo standard passivo gli impianti sono ridotti al minimo: la ventilazione meccanica controllata con scambiatore a piastra e con resistenza elettrica garantisce il riscaldamento e il raffrescamento degli appartamenti; 40 m2 di collettori solari, coadiuvati da una caldaia a condensazione, producono acqua calda sanitaria Infine, in una cisterna da 10 000 litri è raccolta l’acqua piovana utilizzata per innaffiare i giardini e la vegetazione di facciata
trasmittanza media elementi costruttivi
pareti esterne: U = 0,16 W/m2K
solaio contro vano non riscaldato: U = O,16 W/m2K copertura: U = 0,11 W/m2K serramenti: Uw = 0,83 W/m2K
prestazioni energetiche
per riscaldamento: 15 kWh/m2anno
L’edificio è la prima e unica costruzione interamente in legno di queste dimensioni in Belgio: quattro piani di circa 500 m2 senza alcuna parete o elemento in laterizio o in cemento, a eccezione del livello interrato dove sono collocati i parcheggi sotterranei Il peso totale della costruzione (piano interrato in calcestruzzo armato + 4 piani in legno) non supera il peso della terra di scavo
La struttura delle pareti esterne (facciate e copertura) è realizzata in travi composite a I Steicojoist (con nervatura molto resistente in legno impiallacciato a 9 strati incollati a croce), mentre i muri portanti interni sono realizzati con travi Kerto® su montanti in legno massiccio Il controventamento della scatola portante è assicurato dai pannelli DFP (legno compensato di abete Douglas) che fungono anche da impermeabilizzazione
La tenuta all’aria delle facciate è assicurata dai pannelli OSB; per il tetto verde, di tipo estensivo, è stata utilizzata una membrana in grado di modificare la propria permeabilità alla diffusione a seconda delle condizioni climatiche, mentre l’impermeabilizzazione è realizzata con EPDM in posa libera su tavole di legno non adiacenti La tenuta all’aria globale del test Blower Door ha mostrato un risultato di 0,50 h-1 a 50 Pa La finitura delle pareti esterne è realizzata con intonaco minerale di vari colori su pannelli ventilati o con rivestimento in legno di cedro Le pavimentazioni interne sono realizzate in linoleum naturale, scelto per le sue proprietà ecologiche e acustiche
Stratigrafia della parete esterna, dall’interno: - pannello in cartongesso - intercapedine
- pannello OSB - struttura portante e isolamento in cellulosa - pannello DFP - intercapedine con sottostruttura - rivestimento esterno in legno di cedro
Stratigrafia del solaio verso il vano non riscaldato, dall’interno: - pavimento in legno massiccio - isolamento acustico - pannello OSB - struttura portante con isolamento in cellulosa - guaina impermeabile - soletta in cemento
Stratigrafia della copertura, dall’esterno: - pacchetto tetto verde estensivo - impermebilizzazione in EPDM - tavolato di legno - doppio strato di coibentazione tra travi con sezioni a I - membrana freno vapore - cartongesso
Dai dettagli a lato è possibile notare come la coibentazione acustica (1) separi fisicamente la struttura del solaio all’estradosso dal rivestimento dello stesso, un doppio strato di pannelli di gesso e pavimento in legno massiccio Il pavimento a sua volta è staccato dalla lastra di cartongesso di finitura interna della parete da un elemento (2) di isolamento acustico
Un altro elemento isolante stacca la doppia lastra di cartongesso del soffitto dalla parete portante (3), soluzione questa che si ripete anche tra due unità immobiliari diverse
Considerando soprattutto le problematicità che possono insorgere dalla condivisione dello stesso fabbricato da parte di molte famiglie, grande importanza è stata riservata all’isolamento acustico Nell’edificio è stata messa in opera la tecnica della “massa-molla-massa” con sdoppiamento dell’ossatura per facce scollegate In seguito sono state effettuate le misurazioni da parte del CSTC (Centro Scientifico e Tecnico per la Costruzione, Belgio) per verificare la performance in opera Il risultato ottenuto è stato il seguente: per i rumori aerei, tutte le misure registrate mostrano un risultato compreso tra 53 e 59 dB e questo colloca l’edificio nella categoria del confort richiesta dalla normativa Per i rumori da choc, i valori misurati mostrano risultati compresi tra 39 e 52 dB e ciò posiziona l’edificio nella categoria comfort acustico superiore
nodo parete-copertura
nodo parete-solaio
La fondazione in c a e la platea impermeabilizzata con gli elementi in legno della struttura portante
Due fasi di cantiere: il complesso è costruito in opera senza alcun elemento prefabbricato
A sinistra, l’orditura delle travi a I della copertura e la nastratura dei pannelli DFP.
A destra, realizzazione dell’ultimo blocco dei duplex.
Posa dell’assito di copertura e dettaglio delle tubazioni della VMC
Insufflaggio della cellulosa e l’impianto solare termico prima della realizzazione del tetto verde
Il fronte sud verso la strada Il progetto prevedeva la sistemazione di verde verticale fra una vetrina e l’altra ma ragioni economiche ne hanno impedito la realizzazione.
Ubicazione: Pordenone
Committente: Ciclotime snc di Lena Lucio & C
Progetto: arch Marco Biscontin, Pordenone
Strutture: ing Loris Borean, Pordenone
Termotecnico: p i Davide Parisi (calcolo PHPP), Bressanone (BZ)
Direttore dei lavori: arch Marco Biscontin
Impresa costruttrice: Chiaradia, Caneva (PN)
Struttura in legno: G Cozzarin S r l , Cordenons (PN)
Impianto idraulico: Bruno Sanson, Pordenone
Impianto elettrico: Lumiere Snc Di Truant
Lucio & C , S Martino al Tagliamento (PN)
Lavori: maggio-dicembre 2011
Superficie fondiaria: 450 m2
Ubicato in un piccolo lotto nella zona nord del centro di Pordenone, l’edificio si sviluppa su due livelli fuori terra e un piano scantinato, destinati ad accogliere un negozio di biciclette e un mini appartamento servito anche da un accesso indipendente esterno
Il volume è identificato da una sorta di lastra metallica che marca il piano intermedio e salendo si piega su se stessa delineando la copertura Un elemento che definisce la forma architettonica fornendo anche una corretta schermatura estiva all’appartamento e, soprattutto, al negozio le cui vetrine, esposte a sud, non hanno potuto essere schermate da elementi sul serramento per la necessità di garantire la libera visione dei prodotti esposti In caso di necessità, un sistema di schermatura avvolgibile, incassato all’intradosso della parte più esterna della terrazza-aggetto del piano superiore, provvede all’ombreggiamento Gli studi solari eseguiti hanno consentito anche di orientare al meglio il fabbricato, ottimizzarne l’aspetto energetico e garantire il diritto al sole agli edifici confinanti a nord Al primo piano la residenza è arretrata e l’aggetto pronunciato del tetto scherma le aperture vetrate, i fronti nord e ovest sono chiusi e la parte orientale si restringe riducendo l’impatto solare in estate
L’edificio è realizzato in pannelli X-lam ed è stato progettato secondo lo standard passivhaus, a garanzia di un ridotto fabbisogno energetico testimoniato anche dall’altissima tenuta all’aria (n50 = 0,19 h-1) L’utilizzo di materiali quali il legno, la fibra di gesso, il sughero bruno espanso e la calce idraulica naturale ha permesso la realizzazione di un involucro traspirante rimarcando l’attenzione alla sostenibilità che caratterizza l’intero progetto
Dal punto di vista termo-impiantistico è stato sufficiente installare un impianto di ventilazione meccanica controllata con recupero di calore (efficienza 90%); a breve sarà installato un impianto fotovoltaico sulla copertura mentre un impianto di recupero delle acque piovane provvede all’alimentazione delle cassette dei wc La scenografica illuminazione notturna con luci a led incassate a terra differenzia i due piani attraverso il colore
trasmittanza media elementi costruttivi
pareti esterne: U = 0,16 W/m2K
solaio contro scantinato: U = O,24 W/m2K
copertura: U = 0,21 W/m2K
serramenti: Uw = 0,83 W/m2K
prestazioni energetiche
fabbisogno energetico per riscaldamento 8 kWh/m2 anno (secondo PHPP) fabbisogno energetico per raffrescamento estivo 5 kWh/m2 anno (secondo PHPP)
3
Il negozio di biciclette al piano terra.
4
Il fronte est con la scala d’accesso all’appartamento al primo piano
5
Il ballatoio al primo piano
Coibentazione della fondazione con pannelli di vetro cellulare
7 Posa dell’isolamento in pannelli di sughero; la membrana bugnata evita il contatto diretto con le fondazioni
Poiché il negozio è costruito a confine su due lati (ovest e nord) e su questi il terreno confinante si trova a un livello superiore alla quota del pavimento del piano terra, si è dovuto procedere alla messa in sicurezza della parte strutturale lignea (X-lam a 3 e a 5 strati) con adeguate protezioni che comprendono anche la posa sfalsata di isolanti a tenuta all’acqua (vetro cellulare) I pannelli in X-lam poggiano su un dormiente costituito da un morale di larice fissato sul solaio in laterocemento, previa posa di una guaina di protezione dall’umidità Ogni giunzione fra i pannelli è stata realizzata con adeguate guarnizioni e relativa nastratura al fine di garantire sia la tenuta all’aria che la funzione di freno vapore Se si esclude il vetro cellulare impiegato per la coibentazione contro terra, per tutte le altre parti dell’edificio (pareti, copertura, solaio del piano terra e del primo piano) è stato utilizzato il sughero, mentre i massetti alleggeriti sono in calce e sughero e ospitano le canalizzazioni degli impianti
La terrazza a sud è costruita in maniera tale da essere facilmente ispezionabile in caso di perdite anche grazie all’uso di doghe in legno combinate in pannelli asportabili Il tetto è realizzato in alluminio aggraffato mentre i serramenti sono in legno-alluminio con doppia camera
Solaio contro scantinato, dall’interno:
- piastrelle (2 cm)
- massetto (5 cm)
- massetto alleggerito calce/sughero (8 cm)
- telo
- isolamento in sughero (12 cm)
- solaio predalles (25 cm)
1 striscia perimetrale di separazione
2 elemento metallico per il fissaggio dell’X-lam
3 barriera al vapore
4 plastica bugnata
5 guarnizione
6 dormiente in larice (13x10 cm)
7 isolamento in vetro cellulare
8
Il balcone al piano superiore affacciato a sud Nella pavimentazione è incassata l’illuminazione a led
Copertura, dall’esterno:
- rivestimento in lamiera aggraffata
- barriera al vapore
- tavole grezze distanziate (2,5 cm)
- ventilazione - listelli (6 cm)
- telo traspirante
- listello in sughero (6x6 cm)
- sughero (14+6 cm)
- freno vapore
- pannello X-lam con lato inferiore a vista
Parete, dall’esterno:
- rasatura
- sughero (16 cm)
- freno vapore
- pannello X-lam (13 cm)
- intercapedine
- rivestimento fibra di gesso
1 nastro
2 guarnizione
3 freno al vapore
4 risvolto telo traspirante su travetti
L’ampio sporto di gronda
Posa dell’isolante in copertura.
A sinistra, il montaggio dei pannelli in X-lam delle pareti con il fissaggio al solaio in cls tramite hold-down
A destra, la realizzazione del primo solaio
La posa delle pareti del primo piano.
A sinistra, il primo piano interamente ricoperto dal freno vapore prima della posa dell’isolamento in sughero.
La struttura del balcone al primo piano.
A sinistra, una vista dell’intradosso del balcone al primo piano con il freno vapore e l’isolamento in pannelli di sughero
A destra, coibentazione della copertura con un triplo strato incrociato di pannelli di sughero.
A sinistra, l’intradosso del solaio in legno al piano terra, che rimarrà a vista
A destra, l’interno dell’edificio al primo piano e la posa dello strato isolante
8 aree specializzate, 1950 espositori, 96.580 mq di esposizione netta, 253.533 visitatori professionali, 70 associazioni di categoria, 240 convegni. Strutture, involucro edilizio, serramenti, architettura d’interni, spazi verdi, software e cantiere. A MADE expo soluzioni innovative e sostenibili realizzano oggi il futuro dell’architettura.
Per poter vendere e usare in cantiere un materiale edile è necessario ottemperare agli obblighi di legge che prevedono l’attestazione delle prestazioni e la garanzia della sicurezza in fase di costruzione e durante la vita utile dello stesso. A queste regole non si sottrae il legno per il quale le norme UNI, EN, ETAG, e non da ultimo le NTC, richiedono specifiche certificazioni.
Seppur brevemente, qui di seguito si cercano di chiarire il panorama e l’iter procedurale ai quali i materiali lignei da costruzione devono sottostare, dal legno massiccio al lamellare, dal bilama e trilama all’X-lam. Infine, le qualifiche e le responsabilità delle aziende che acquistano materie prime per realizzare parti di un’opera secondo quanto previsto dalla normativa italiana.
Andrea ZenariAndrea Zenari
Dottore in Scienze Forestali ed Ambientali, Università di Padova; Perito ed Esperto categoria Legno, Camera di Commercio di Vicenza; Docente a corsi in materia di Marcatura Ce, Tecnologia del Legno, Federlegno e Associazioni Artigiani; Ispettore per la Marcatura Ce, Holzcert Austria
Le Norme Tecniche per le Costruzioni DM 14 01 2008 prevedono che tutti i prodotti impiegati nelle costruzioni siano certificati in conformità alle norme armonizzate La certificazione dei diversi prodotti da costruzione a base di legno seguono un iter previsto dalla Direttiva Prodotti da Costruzione CPD 89/106 I prodotti normalmente impiegati sono molteplici e di seguito sono descritte gli obblighi di legge da ottemperare affinché un prodotto possa essere venduto ed accettato in cantiere nell’ottica che questo garantisca le prestazioni richieste e il principio fondamentale della sicurezza nei confronti di chi lo usa o ci abita dentro
Il legno massiccio
Il legno massiccio è il materiale impiegato nelle costruzioni da quando l’uomo ha iniziato a costruire e da allora è il materiale più diffuso nell’edilizia Si ottiene per segagione longitudinale del tronco e sfrutta la resistenza meccanica delle fibre del legno in senso longitudinale La conformità del legno massiccio è data attraverso la classificazione a vista (soltanto in pochi casi anche con la classificazione a macchina) La certificazione del legno massiccio avviene in un sistema di attestazione 2+ attraverso il quale un Notified Body valuta l’adeguatezza del sistema di controllo instaurato dal produttore e, a seguito dell’ispezione di valutazione, ne rilascia il certificato che autorizza il produttore a marcare CE le travi Per questa tipologia di prodotto è necessaria un’ulteriore visita ispettiva di sorveglianza annuale
La situazione è leggermente diversa per quanto riguarda il legno massiccio nei formati Uso Fiume e Uso Trieste
La circolare delle NTC al punto 11 7 2, ha previsto una variante per la produzione di legno massiccio con se-
zioni irregolari e recita quanto segue: "in aggiunta a quanto prescritto per il legno massiccio, le travi con forme di lavorazione irregolari che comportino smussi o sezioni diverse lungo l’asse longitudinale dell’elemento, devono essere lavorate e classificate in base alla resistenza, in conformità a specifiche normative di comprovata validità In assenza di specifiche prescrizioni, per quanto riguarda la classificazione del materiale, si potrà fare riferimento a quanto previsto per gli elementi a sezione rettangolare, senza considerare le prescrizioni sugli smussi e sulla variazione della sezione trasversale, purché nel calcolo si tenga conto dell’effettiva geometria delle sezioni trasversali" Pertanto molti produttori hanno scelto la strada di classificare i prodotti Uso
Fiume e Uso Trieste seguendo quanto previsto dalla circolare per il legno massiccio
Allo scopo di valorizzare le travi Uso Fiume e Uso Trieste, in Italia è sorto nel 2011 un Consorzio ad hoc che
ha provveduto a redigere un CUAP (Common Understanding of Assessment Procedure) e successivamente ha chiesto il rilascio del benestare tecnico europeo ETA Dal 24 06 2011 è iniziato il periodo di validità dell’ETA 11/0219 che darà la possibilità ai soli produttori che fanno parte del Consorzio di marcare CE le travi Uso Fiume e Uso Trieste dopo avere ottenuto la certificazione del Factory Production Control da parte di un Notified Body Il relativo certificato per la marcatura CE, materialmente, è molto simile a quello del legno massiccio con il riferimento all’ETA 11/0219 La classificazione a vista si basa su quanto previsto dalla norma UNI 11035-3
Le definizioni date dalla norma UNI 1103 sono:
• “Trave Uso Fiume: Trave a sezione quadrata o rettangolare ottenuta da un tronco mediante squadratura meccanica, continua e parallela dal calcio alla punta su quattro facce a spessore costante con smussi e con-
Nella pagina a fianco: tetto in legno massiccio
Pagina a fianco: tetto in legno di castagno in Liguria
Classe determinata a vista
Classe di resistenza meccanica (UNI EN 338)
Nodi
Fibratura
Legno cariato
Smusso
Fessure
Cipollature
Cretti
Deformazioni Arcuatura
Deformazioni Falcatura
Deformazioni Svergolamento
Presenza di midollo
Eccentricità
Rastremazione
Attacco da insetti
Classificazione a vista del castagno
S D24
d < 1/2
d < 7 cm; D < 15 cm
Inclinazione < 1/6 (16,2%)
Mai ammesso
S < 1/3 della faccia
Da ritiro sempre ammesse, se passanti tra due lati massimo 2*base
Ammesse solo se il raggio della cipollatura < 1/3 base e parametro rispettato di eccentricità
Mai ammesse
10 mm/ 2 m
8 mm/ 2 m
1 mm/ 2,5 cm / 2 m
Nessuna restrizione
Da valutare solo in caso di presenza di cipollatura che deve essere E<1/6 della base
Non ammessa
Ammessi solo i fori di colore nero con diametro massimo 2 mm, è necessario che l’attacco sia esaurito
tenente il midollo”
• “Trave Uso Trieste: Trave a sezione quadrata o rettangolare ottenuta da tronco mediante squadratura meccanica, continua dal calcio alla punta su quattro facce seguendo la rastremazione del tronco, con smussi e contenente il midollo”
Il legno lamellare
Il legno lamellare è prodotto attraverso la sovrapposizione di tavole dello stesso spessore in senso longitudinale e incollate tra di loro Le tavole sono anche giuntate di testa con il collaudato sistema adottato nella produzione del legno lamellare chiamato "finger joint" Questo metodo consiste nella possibilità di aumentare le superfici di appoggio tra le due teste che saranno vincolate ancora con collante I collanti impiegati sono normalmente di due tipi: la colla melaminica e la colla poliuretanica A questo punto incontriamo una sostanziale differenza con il legno massiccio che è la presenza di colla e soprattutto l’emissione della formaldeide che per forza di cose questi collanti devono avere all’interno e che viene emessa a partire dalle fasi di cristallizzazione L’emissione di formaldeide si ha in entrambe le tipologie di collante nella classe E1 e questo è, comunque, il valore consentito dalla legge italiana come limite massimo all’interno delle abitazioni In realtà la colla poliuretanica ha un livello di emissione leggermente più basso della colla melaminica, ma un vuoto normativo europeo le equivale nella classe E1 Il legno lamellare è oggi prodotto in conformità alla EN 14080 la quale prevede attualmente un minimo di 4 lamelle e uno spessore massimo delle lamelle di 45 mm
Bilama e Trilama
Gli elementi strutturali in legno massiccio, utilizzati come trave inflessa, ottenuti per incollaggio nel senso longitudinale di due o tre elementi, ognuno dei quali
eventualmente giuntato con giunti a dita e che presentano, a differenza di quanto avviene per il lamellare, il piano di laminazione parallelo al piano di sollecitazione, devono essere conformi alle UNI EN 385:2003 e UNI EN 338:2004 (lo prevede la Circolare alle NTC al capitolo 11 7 3) La norma EN 385 disciplina il controllo del processo di produzione degli impianti di incollaggio della giunzione a pettine (finger joint)
Con buona probabilità, a partire dalla fine del 2012, le travi bilama e trilama saranno messe in commercio marcate CE in conformità alla norma EN 14080, in quanto è in atto la definizione dei termini di corrispondenza al legno lamellare da parte del CEN TC 124 WG3 (gruppo europeo che si occupa della scrittura della norma armonizzata)
X-lam
Il capitolo 11 1 al punto C delle NTC precisa che nel caso in cui non sia prevista una norma armonizzata per un determinato prodotto è necessario che il fabbricante provveda alla marcatura CE in conformità a Benestare Tecnici Europei (ETA) Questo è il caso del pannello in X-lam che può essere considerato il prodotto più tecnologico che abbiamo nel settore del legno da costruzione ed è il “top di gamma” dei prodotti ingegnerizzati
La definizione, che con molta probabilità dovrebbe essere inserita nella norma armonizzate in fase di studio da parte del CEN TC 124 WG3 e che sarà completata tra qualche anno, è la seguente: “prodotto in legno composto da almeno tre strati incollati ortogonalmente, composto da lamelle classificate secondo la resistenza”
Il metodo produttivo si basa sulla sovrapposizione di strati dispari (solo in alcuni casi pari) di tavole con un’inclinazione di 90 gradi Ciò che fa la differenza nella produzione è proprio la colla che deve avere un grande potere di incollaggio delle facce delle tavole di legno
ma, soprattutto, deve poter resistere ai movimenti dovuti all’igroscopicità del legno e ai casi (da evitare) in cui il pannello si trovi, per vari motivi, a contatto con l’acqua Le tavole sono anche giuntate di testa con il collaudato sistema “finger joint”, già precedentemente descritto nella produzione del legno lamellare L’iter per l’ottenimento della certificazione si basa sulla valutazione e caratterizzazione in laboratorio (in pratica le prove iniziali di tipo: ITT) di un determinato quantitativo (circa 100 mc) di pannelli di diverse dimensioni seguendo un particolare piano di campionamento Successivamente, i valori caratteristici di resistenza meccanica, di resistenza al fuoco e di resistenza all’aria sono elaborati e, in base ai risultati ottenuti, viene redatto il Benestare Tecnico Europeo che deve essere approvato dai membri dell’EOTA attraverso una consultazione pubblica che dura 60 giorni Al termine dell’iter, il produttore riceve il proprio Benestare Tecnico il quale è pubblicato nel sito ufficiale dell’Eota:
www eota eu L’ETA ha validità 5 anni, poi deve essere rinnovata In seguito è necessario, però, che il produttore si sottoponga alla verifica del factory production control, in pratica al controllo della produzione in fabbrica da parte del Notified Body Al termine dell’ispezione, l’azienda riceve la certificazione CE e solo dopo potrà mettere in commercio il pannello X-lam in conformità a quanto previsto dalle NTC
La marcatura CE
Anche per ottenere la certificazione per la marcatura CE delle case in legno è previsto l’ottenimento di un European Tecnical Approval (ETA) L’iter di certificazione si basa sulla linea guida ETAG 007 ed ETAG 012 In
questo caso l’azienda deve predisporre le sezioni tipo di pareti, solai e tetti, legate a un metodo costruttivo che vuole certificare, e queste devono essere sottoposte ai test di resistenza meccanica, di resistenza al fuoco, etc
Una volta ottenuti i risultati dei test, l’Approval Body redige la bozza di ETA la quale verrà inviata all’EOTA in consultazione pubblica per 60 giorni Al termine di questo periodo, senza che vi siano state contestazioni, l’ETA diverrà definitiva Per concludere il processo, l’azienda dovrà sottoporsi a visita ispettiva da parte del Notified Body che rilascerà il certificato per la Marcatura CE
DIN 4074-1:2008 tavole di conifera di abete rosso e pino silvestre Centro, Nord ed Est Europa
Classe determinata a vista
Classe di resistenza meccanica (UNI EN 338)
Nodo singolo
Nodi di gruppo
Nodi a baffo
Nodo sul bordo (su tavole per la produzione di legno lamellare non vi è nessun limite)
Spessore anelli
Fibratura
Legno azzurrato
Legno rosato e legno di reazione
Legno cariato
Smusso
Fessure da ritiro (solo con UR<20%)
Cipollature, cretti e vischio
Deformazioni Arcuatura e falcatura (solo con UR<20%)
Deformazioni Svergolamento (solo con UR<20%)
Imbarcamento (solo con UR<20%)
Presenza di midollo
Attacco da insetti
Classificazione a vista din 4074-1
S13
C30
d≤ 1/5
d≤ 1/5
d≤ 1/3
d≤ 1/3
S<4 mm
Inclinazione <7%
S<1/5
S<1/4
S10
C24
d≤ 1/3
d≤ 1/3
d≤ 2/3
d≤ 1/2
Inclinazione <12%
Ammesso
S<2/5
Mai ammesso
S7
C18
d≤ 1/2
d≤ 2/3
Nessun limite
d≤ 2/3
S<6 mm
Inclinazione <16%
fessurazioni da ritiro non hanno bisogno di essere prese in considerazione
Mai ammesso
8 mm/ 2 m 1 mm/ 2,5 cm*b / 2 m
1/50
Solo su tavole con b>12 cm
1/30
S<3/5 12 mm / 2 m 2 mm/ 2,5 cm*b / 2 m
1/20
Nessuna restrizione
Ammessi solo i fori di colore nero con diametro massimo 2 mm, è necessario che l’attacco sia esaurito
A sinistra: tettoia con travi uso Fiume in abete
In basso a sinistra: struttura esterna in legno lamellare
Sotto: realizzazione di una casa in X-lam
delle case o pareti in legno
La marcatura CE dei prodotti dovrebbe avvenire su ogni singolo pezzo, tuttavia alcune norme armonizzate prevedono la variante che permette di omettere la marcatura CE sui prodotti per motivi estetici In ogni caso l’identificazione deve accompagnare i documenti commerciali in modo che i preposti ai controlli possano conoscere e verificare le caratteristiche prestazionali dei prodotti in esame I produttori, i successivi intermediari e gli utilizzatori finali devono assicurare una corretta archiviazione della documentazione di accompagnamento dei materiali garantendone la disponibilità per almeno 10 anni e devono mantenere evidenti le marchiature o etichette di riconoscimento per la rintracciabilità del prodotto
Qualifiche e responsabilità
Caso diverso e previsto solamente dalla normativa italiana è la necessità di Qualifica per le aziende che acquistano un prodotto marcato CE e lo lavorano, in uno stabilimento, ai fini della realizzazione delle parti di un’opera La Qualifica dei centri di trasformazione definita nelle NTC del 2005 era stata cancellata dalle NTC 2008, ma ne è stata citata l’esigenza nuovamente con la circolare delle NTC del febbraio 2009 ed era, inizialmente, necessaria solamente per gli elementi in legno, cioè per travi di legno massiccio o incollato realizzato dai centri di produzione qualificati dal Ministero Tuttavia, per necessità di sicurezza, ne è stata estesa l’esigenza anche ai prodotti in legno e pertanto tutti gli stabilimenti, nei quali viene effettuata la lavorazione degli elementi base (quindi anche i prodotti marcati CE) per dare loro la configurazione finale in opera (intagli, forature, applicazione di piastre metalliche, etc ), sia di legno massiccio che lamellare, sono da considerarsi a tutti gli effetti dei Centri di lavorazione o trasformazione Come tali devono documentare la loro attività al Servizio Tecnico Centrale, il quale, ultimata favorevolmente l’istruttoria, rilascia un Attestato di denuncia di attività recante il riferimento al prodotto, alla ditta, allo stabilimento, al marchio Circa quest’ultimo aspetto, si precisa che ogni Centro di lavorazione deve depositare presso il Servizio Tecnico Centrale il disegno del proprio marchio che deve essere impresso in modo per-
Classe determinata a vista
Classe di resistenza meccanica (UNI EN 338)
Nodi
Spessore anelli
Fibratura
Legno azzurrato
Legno rosato e legno di reazione
Legno cariato
Smusso
Fessure da ritiro (solo con UR<20%)
Cipollature, cretti e vischio
Deformazioni Arcuatura e falcatura (solo con UR<20%)
Deformazioni Svergolamento (solo con UR<20%)
Presenza di midollo
Attacco da insetti
Classificazione a vista din 4074-1 per conifere
S13
C30
d≤ 1/5
S<4 mm
Inclinazione <7%
S<1/5
S<1/5 della faccia p<2/5
Solo su travi con b>12 cm
Centro, Nord ed Est Europa
S10
C24
d≤ 2/5
Ammesso
S7
C16 solo per ABAL-LADC C18 solo per PCAB-PNSY d≤ 3/5
S<6 mm
Inclinazione <12%
S<2/5
Mai ammesso
S<1/4 della faccia p<1/2
Mai ammesse
8 mm/ 2 m 1 mm/ 2,5 cm*b / 2 m
Nessuna restrizione
Ammessi solo i fori di colore nero con diametro massimo 2 mm, è necessario che l’attacco sia esaurito
manente (anche mediante etichettatura etc ) su ogni elemento lavorato Qualora, sia presso gli utilizzatori sia presso i commercianti, l’unità marchiata (pezzo singolo o lotto) sia scorporata, per cui una parte o il tutto perde l’originale marchiatura del prodotto, è responsabilità sia degli utilizzatori sia dei commercianti documentare la provenienza mediante i documenti di accompagnamento del materiale e gli estremi del deposito del marchio presso il Servizio Tecnico Centrale Tutte le forniture di legno strutturale devono essere accompagnate da una copia dell’attestato di qualificazione del Servizio Tecnico Centrale del Consiglio Superiore dei Lavori Pubblici, sul quale sarà indicato il riferimento del documento di trasporto Le forniture effettuate da un commerciante o da un trasformatore intermedio devono essere accompagnate da copia dei documenti rilasciati dal Trasformatore e completati con il riferimento al documento di trasporto del commerciante o trasformatore intermedio
La copertina del libro Classificare il legno, di Andrea Zenari, edito da Ribera Legno
Misurazione dell’inclinazione della fessura da ritiro
approfondimento rassegna espositiva seminari tecnici
Flessibilità, standardizzazione e durabilità contraddistinguono questo sistema in legno che garantisce grande libertà e creatività progettuale Realizzati con lamelle di abete incollate, gli elementi permettono la costruzione di edifici massivi in cui tutti i pezzi, conformi alle normative europee in materia di statica, antisismica, isolamento termoacustico e prevenzione incendio, si assemblano facilmente, con la possibilità di rispondere a esigenze specifiche Il sistema si connota per la molteplicità di elementi, controllati singolarmente in fase di produzione al fine di assicurarne la massima qualità e durata negli anni, utilizzabili per pareti portanti e di tamponamento, solai e coperture a falda o piane.
Il sistema costruttivo Lignotrend è costituito da un sistema strutturale in legno, formato da elementi prefabbricati modulari a tavole incrociate che prevede un elemento specifico per ogni tipo di partizione (pareti, solai e copertura)
Ogni elemento permette di ottimizzare le caratteristiche prestazionali della partizione in termini di trasmittanza (parete tipo 0,123 W/m2K), regolazione termoigrometrica (parete a diffusione libera) e isolamento acustico (Rw 52 dB) Per risolvere i problemi legati all’assorbimento acustico negli ambienti in cui è importante tenere sotto controllo i valori del tempo di riverbero e per i problemi di elevato spessore di isolamento, il sistema si avvale di elementi specifici; tra questi, il sistema U*psi, di cui si parla nelle pagine successive, è pensato per raggiungere valori di trasmittanza inferiori a 0,10 W/m²K e valori di sfasamento superiori alle 20 ore
La modularità consente di assemblare fra loro gli elementi per raggiungere la forma desiderata, lasciando libero spazio alla creatività del progettista La conformazione spaziale degli elementi è studiata al fine di amplificare le caratteristiche di regolazione termoigrometrica e di filtro biologico proprie del legno
Gli elementi sono costruiti con cavità già predisposte per ospitare all’interno del loro spessore le canalizzazioni impiantistiche, eliminando la necessità di eseguire tracce dopo la posa
La struttura a tavole incrociate degli elementi conferisce caratteristiche statiche eccellenti permettendo al singolo elemento e al complesso strutturale di resistere a sollecitazioni sismiche di notevole intensità
I pannelli sono stabili nella forma e non risentono delle variazioni igrometriche dell’ambiente Grazie all’elevata stabilità nel tempo è possibile rivestire le superfici con qualunque finitura senza rischiare che queste subiscano cavillature o distacchi
Gli elementi portanti, sia verticali che orizzontali, sono assemblati in cantiere o in officina, secondo criteri di trasportabilità ed economicità operativa Ogni elemento è dotato di un certificato di utilizzo che garantisce il rispetto della normativa nazionale ed europea in termini di isolamento termico, isolamento acustico, resistenza al fuoco e norme antisismiche
Adria Legno Service (Morciano di Romagna, RN), opera dal 1977 nel commercio del legname da lavoro e da costruzione Da qualche anno è importatore per l’Italia del sistema tedesco Lignotrend
La Lignotrend Produktions GmbH (Weilheim-Bannholz, D) ha sviluppato dal 1991 un sistema costruttivo partendo dall’incollaggio incrociato di lamelle di legno massiccio per creare elementi portanti.
I disegni e le fotografie nelle pagine successive sono di proprietà della Lignotrend Produktions GmbH.
L’acustica
Questo metodo costruttivo propone una serie di elementi acustici che si utilizzano come rivestimento per solai e pareti e possono essere applicati su strutture in legno, in laterizio e in calcestruzzo Gli elementi sono composti da tre strati: nella parte a vista, attraverso una fresatura nel primo strato, si crea un effetto ottico a listelli paralleli fra loro Lo strato intermedio (trasversale) è orientato ad angolo retto rispetto allo strato di copertura assicurando un’elevata stabilità Lo strato posteriore è formato da tre tavole poste longitudinalmente
Nello strato trasversale è inserito del materiale fonoassorbente: il 50% della superficie è rivestita con materiale fonoassorbente a elevata efficienza a banda larga, generalmente fibra di legno, o in alternativa con strati di legnomagnesite per una maggiore resistenza al fuoco Grazie a questo posizionamento, anche modificando la superficie a vista con tinteggiature o levigature, il pannello mantiene inalterate nel tempo le sue proprietà fonoassorbenti
Gli spazi intermedi fra gli strati posteriori migliorano le proprietà fonoassorbenti e grazie alla spazzolatura della superficie si raggiunge un’ulteriore vantaggiosa dispersione del rumore
Lungo le giunzioni laterali gli elementi hanno una profilatura maschio e femmina non visibile e quelli con lunghezza standard sono profilati anche nella parte frontale Gli elementi hanno dimensioni di 292x62,5 cm con possibilità di aumentare la lunghezza fino a un massimo di 8 m
La finitura è in abete rosso o bianco (umidità del legno: 9 ± 2%)
Sotto, l’intradosso di un solaio con rivestimento acustico
In basso, da sinistra: alcuni esempi di realizzazioni con il sistema Lignotrend (fonte: Adria Legno Service)
sezione orizzontale
LIGNO Fux 4S
assonometria
Elemento strutturale in legno massiccio laminato per pareti portanti, sempre utilizzato con un rivestimento (di solito pannelli di gesso)
90 mm
spessore
resistenza termica
0,51 m2K/W larghezza
625 mm
conduttività termica equivalente (λD) 0,178 W/mK altezza standard*
2480-2980 mm
strato d'aria equivalente (sd) 0,78 m peso 30,7 kg/m2
resistenza al passaggio del vapore acqueo (µ) 8,7 densità 341 kg/m3
resistenza al fuoco REI 30 con superficie finita listello di collegamento 115/20 mm Rw ca 40 dB**
* si possono avere altezze più elevate con elementi fabbricati in continuo
** 12,5 mm lastra in gesso + LIGNO Fux 4S 90 mm + 12,5 mm lastra in gesso
assonometria
sezioni orizzontale
LIGNO Fux 6
Elemento strutturale in legno massiccio laminato con superficie finita (pannelli di gesso) in fase di produzione dell'elemento per pareti portanti spessore 127 mm
resistenza termica 0,69 m2K/W larghezza
625 mm
conduttività termica equivalente (λD) 0,184 W/mK altezza standard* 2480-2980 mm
strato d'aria equivalente (sd) 2,32 m peso 40 kg/m2
resistenza al passaggio del vapore acqueo (µ) 18,4 densità 315 kg/m3
resistenza al fuoco REI 30 con superficie finita listello di collegamento 115/20 mm Rw ca 39 dB**
* si possono avere altezze più elevate con elementi fabbricati in continuo
** 12,5 mm lastra in gesso + LIGNO Fux 6 127 mm
sezione orizzontale
LIGNO Lux 5
Elemento strutturale in legno massiccio laminato con superficie finita (pannelli di gesso) in fase di produzione dell'elemento per pareti portanti spessore
110 mm
resistenza termica
0,71 m2K/W larghezza
625 mm
conduttività termica equivalente (λD) 0,153 W/mK altezza standard* 2480-2980 mm
strato d'aria equivalente (sd) 1,5 m peso 40,7 kg/m2
resistenza al passaggio del vapore acqueo (µ) 13,8 densità 370 kg/m3
resistenza al fuoco REI 30 con superficie finita listello di collegamento 115/20 mm
* si possono avere altezze più elevate con elementi fabbricati in continuo
Elemento strutturale in legno massiccio laminato per pareti portanti e facciata passiva con montante U*psi, rivestimento esterno in legno
- intonaco interno
- lastra di gesso (12,5 mm)
- parete LIGNO Fux 4 S (90 mm)
esterno interno
- tenuta all’aria
- elemento U*psi (200/240/300/360 mm) e isolamento in cellulosa sfusa
- pannello in fibra di legno con faccia esterna impermeabilizzata con lattice (28/35 mm)
- camera di ventilazione con listelli (30 mm)
- rivestimento (25 mm)
Lignotrend
U*psi F (200 mm)
fibra legno (28 mm)
U*psi F (240 mm)
fibra legno (28 mm)
U*psi F (300 mm)
fibra legno (28 mm)
U*psi F (360 mm)
fibra legno (28 mm)
U*psi F (200 mm)
fibra legno (35 mm)
U*psi F (240 mm)
fibra legno (35 mm)
U*psi F (300 mm)
fibra legno (35 mm)
U*psi F (360 mm)
fibra legno (35 mm)
Elemento strutturale in legno massiccio laminato per pareti portanti e facciata passiva con montante U*psi, rivestimento esterno in intonaco
- intonaco interno
- lastra di gesso (12,5 mm)
- parete LIGNO Fux 4 S (90 mm)
- tenuta all’aria
- elemento U*psi (200/240/300/360 mm) e isolamento in cellulosa sfusa
- pannello in fibra di legno con faccia esterna impermeabilizzata con lattice (40/60 mm)
- camera di ventilazione con listelli (30 mm)
- rivestimento (25 mm)
Lignotrend
U*psi F (200 mm)
fibra legno (40 mm)
U*psi F (240 mm)
fibra legno (40 mm)
U*psi F (300 mm)
fibra legno (40 mm)
U*psi F (360 mm)
fibra legno (40 mm)
U*psi F (200 mm)
fibra legno (60 mm)
U*psi F (240 mm)
fibra legno (60 mm)
U*psi F (300 mm)
fibra legno (60 mm)
U*psi F (360 mm)
fibra legno (60 mm)
Spessore totale (mm)
U*psi
È un elemento distanziatore in legno che consente la posa in facciata dell’isolamento al fine di aumentare la prestazione energetica della parete In sezione i singoli distanziatori hanno forma di I e creano dei compartimenti entro cui viene posto in opera l’isolamento (pannelli flessibili in fibra di legno, canapa, fibre minerali) Nel caso la coibentazione sia realizzata con isolante insufflato (cellulosa), per assicurare una densità costante e continua, un velo in tessuto non tessuto separa i singoli elementi Limitando la sezione dei traversi allo stretto necessario secondo esigenze statiche, vengono inoltre minimizzati i ponti termici
Esistono tre varianti del montante utilizzabili per i muri portanti (tipo T), per le contropareti (tipo F) o le partizioni interne (tipo I) Il tipo T è pensato come montante per pareti con struttura in legno, per nuove costruzioni o ristrutturazioni, e può essere utilizzato come contropuntone nei tetti Esso assorbe i carichi del rivestimento esterno: il montante interno è direttamente portante, mentre quello esterno assorbe i carichi della facciata tramite i traversi dell’elemento Il tipo F si utilizza nelle contropareti e può essere abbinato a murature in legno, in laterizio o in cls, sia in nuove costruzioni che nelle ristrutturazioni Il tipo I viene usato per le pareti interne
Dati elemento Tipo T altezza peso lunghezza
240-300-360 mm
5-5,2-5,3 kg/m 2 940-12 000 mm
120-158-200-240-300-360 mm
2,2-2,3-2,3-2,4-2,5-2,6 kg/m 2 940 mm
I solai sono realizzati con 3 o 4 ossature incollate su una piastra costituita da due strati di assi incrociate perpendicolarmente, fornendo con ciò stabilità alla struttura portante Le cavità tra le costole sono sfruttate per il passaggio degli impianti e riempite con graniglia minerale I fianchi degli elementi che costituiscono il solaio sono sagomati così da facilitarne l’assemblaggio mediante l’utilizzo di una tavola di collegamento che irrigidisce l’elemento aumentandone le proprietà statiche
Dati elemento solaio base D Q3
larghezza utile mm
Nel caso in cui si abbia una struttura mista con travi portanti in acciaio, la sagomatura dei fianchi degli elementi del solaio seguirà il profilo della trave che “scomparirà” nel solaio stesso; mentre nel caso di travi portanti in legno, si potranno avere dei collegamenti a incastro oppure tramite viti a filettatura continua incrociate I vari tipi di solaio possono essere usati con qualsiasi tipo di struttura, legno massiccio o a telaio, laterizio, calcestruzzo Un’ulteriore tipologia di elementi consente la realizzazione anche di strutture di copertura altezza mm
lunghezza massima raccomandata m peso senza strato supplementare kg/m2 peso senza strato supplementare e con riempimento graniglia kg/m2
resistenza termica senza strato supplementare m2K/W
conduttività termica equivalente senza strato supplementare e con riempimento graniglia (λD) W/mK
resistenza al passaggio del vapore acqueo µmin
resistenza al fuoco
REI 30
625
Sezione trasversale standard con superficie d’intradosso chiusa, sezione standard
Sezione trasversale con superficie d’intradosso chiusa e strato supplementare Z1 che garantisce maggiore resistenza al fuoco
Sezione trasversale con superficie d’intradosso con fughe, senza materiale fonoassorbente
Dati elemento solaio base D Q4
larghezza utile mm
altezza mm
lunghezza massima raccomandata m
peso senza strato supplementare kg/m2
peso senza strato supplementare e con riempimento graniglia kg/m2
resistenza termica senza strato supplementare m2K/W conduttività termica equivalente senza strato supplementare e con riempimento graniglia (λD) W/mK
resistenza al passaggio del vapore acqueo µmin resistenza al fuoco
Sezione trasversale standard con superficie d’intradosso chiusa
Sezione trasversale con superficie d’intradosso chiusa e strato supplementare Z1 che garantisce maggiore resistenza al fuoco
Sezione trasversale con superficie d’intradosso con fughe, senza materiale fonoassorbente
mattoni in legno
elementi modulari cavi di legno massiccio affiancati e sovrapposti a incastro mediante spine di accoppiamento e incastri a tenone e mortasa
elementi massicci multistrato
superfici di legno massiccio suddivise in più strati, verticali all’interno, orizzontali e diagonali, unite da tasselli in legno senza uso di colle o parti metalliche
elementi massicci modulari
elementi modulari portanti verticali e orizzontali in legno massiccio a strati incollati combinati in maniera diversa a seconda delle necessità architettoniche e impiantistiche
elementi in legno-calcestruzzo
pareti preassemblate in legno-calcestruzzo, costituite da una struttura interna intelaiata in legno connessa a una lastra esterna in cls
travi e montanti
elementi portanti lineari in legno con tamponamenti piani leggeri di irrigidimento
pannelli portanti
legno massiccio a strati incrociati e incollati connessi con giunto a pettine
1 corrente orizzontale
2 modulo cappello
3 modulo base
4 isolamento acustico
Stratigrafia parete:
- pannello terra cruda per un migliore isolamento acustico
- parete Steko® (eventualmente riempita con fibra di cellulosa o con granulato di sughero)
- pannello terra cruda
Stratigrafia solaio (dall’estradosso):
- finitura pavimento
- livellamento sottofondo pavimento
- massetto
- lastra solaio in legno
- trave portante solaio
- isolamento
- lastra solaio in legno
Da sinistra: si riconosce il modulo cappello che chiude in alto la parete divisoria interna nonchè il solaio, di tipo massiccio; nelle due immagini successive, uno strato di feltro con funzione di isolamento acustico è posato alla sommità della parete divisoria
Disegno e foto: Holzer sas, Silandro (BZ)
Il dettaglio mostra solo una delle molteplici soluzioni che il sistema costituito da mattoni di legno permette di realizzare Il solaio, coibentato e con misura modulare, si appoggia alla parete sottostante, il cui ultimo elemento è il modulo cappello, ed è separato dalla parete superiore da un giunto di separazione
La parete del piano superiore è rifinita con un pannello di terra cruda per migliorarne la prestazione acustica e appoggia direttamente con il modulo base sulla lastra all’estradosso del solaio Massetto e pavimento sono separati acusticamente dalla parete mediante isolamento perimetrale
1 giunto pannelli realizzato con malta tixotropica fibrorinforzata
2 travetto L L (sezione indicativa 80x200 mm)
Stratigrafia parete:
- doppia lastra cartongesso
- vano tecnico
- pannello tecnico in legno
- lana di roccia
- caldana in cls e montanti in legno lamellare
- lana di roccia
- pannello tecnico in legno
- vano tecnico
- doppia lastra cartongesso
Stratigrafia solaio
(dall’estradosso):
- finitura pavimento
- pannello radiante e livellamento sottofondo pavimento
- materassino acustico anticalpestio
- massetto livellamento
- caldana in cls
- assito
- travetto
Valori prestazionali parete:
Rw = 66 dB
Da sinistra: due momenti della posa di una parete preassemblata in legnocalcestruzzo AriaTM; le pareti dall’interno subito dopo la posa
Disegno e foto:
Wood Beton spa, Iseo (BS)
Il nodo definito dal dettaglio soprastante, riferito a una soluzione di separazione tra due unità immobiliari, è relativo al sistema misto legno-cls ARIATM, sistema preassemblato altamente prestazionale che garantisce un elevato risparmio energetico unito al comfort ambientale
Il solaio interno si appoggia ai travetti L L (2) incassati nello spessore della parete Il nucleo della parete interna inferiore in cls è separato dalla parte centrale della parete superiore con medesima stratigrafia, a lei strutturalmente collegata, da un giunto realizzato con malta tixotropica fibrorinforzata
1 tavola di collegamento tra gli elementi prefabbricati del solaio per creare continuità strutturale, fissata con adeguata ferramenta 2 passaggio impianti
Stratigrafia della parete:
- pannello in cartongesso/fibrogesso (18 mm)
- parete portante LIGNO Fux 4S
- strato di tenuta all’aria
- doppio strato continuo in fibrogesso (2x18 mm)
- strato d’aria (10/100 mm)
- doppio strato continuo in fibrogesso (2x18 mm)
- strato di tenuta all’aria
- parete portante
LIGNO Fux 4S
- pannello in cartongesso/fibrogesso (18 mm)
Stratigrafia del solaio (dall’estradosso):
- rivestimento
- massetto a umido (30 mm)
- isolamento dai rumori da calpestio in fibra di legno (31/30 mm)
- lastra isolante in fibra di legno (15 mm)
- solaio portante LIGNO
Decke Q3 o Q4
- riempimento tra le travi del solaio: graniglia di calcare
Da sinistra: le pareti interne ancora al grezzo, fortemente caratterizzate per la loro struttura e la posa di un solaio
Disegno e foto:
Adria Legno Service S r l , Morciano di Romagna (RN)
Il disegno riporta la parete interna separatoria tra due unità abitative, nella realizzazione della quale è stata posta particolare attenzione alla risoluzione dei problemi della trasmissione dei rumori Dal punto di vista costruttivo, le pareti terminano e iniziano con elementi speciali; il solaio viene appoggiato sulla parete sottostante e collegato a essa tramite viti da legno opportunamente dimensionate Nel pacchetto del solaio viene posato un doppio strato isolante contro i rumori da calpestio che, assieme al riempimento delle cavità con ghiaia calcarea, garantisce un ottimo isolamento acustico tra un piano e l’altro Stesso risultato tra le due unità abitative è raggiunto grazie allo strato d’aria separatore (o in alternativa con isolante morbido) che può variare tra i 10 e i 100 mm
1 striscia fonoisolante dentellata in EPDM
2 guaina bituminosa
3 lastra in EPS
4 struttura portante
5 freno vapore
Stratigrafia parete interna:
- finitura
- doppio strato fibrogesso (20 mm)
- struttura a telaio coibentata con fibra di legno 70 kg/m3 (120 mm)
- doppio strato fibrogesso (20 mm)
- finitura
Stratigrafia del solaio (dall’estradosso):
- pavimentazione legno (15 mm)
- massetto autolivellante (40 mm)
- fibra di legno
- massetto impianti (60 mm)
- pannello OSB (15 mm)
- struttura solaio in abete (100x200 mm) e fibra di canapa
- pannello OSB (15 mm)
- travetti
- pannello fibrogesso
Da sinistra: posa della striscia dentellata in EPDM; dettaglio dell’appoggio del solaio alle due pareti interne; parete interna e solaio Brettstapel
Disegno e foto:
Bevilaqua Adriano SrlAB Legno, Tradate (VA)
L’attacco della parete interna all’estradosso del solaio avviene previa interposizione di una striscia isolante in EPDM dentellata che abbatte i rumori per trasmissione Per proteggere la parete si applicano guaine bituminose sia in corrispondenza del massetto impianti che al piano del massetto del pavimento e si posa una lastra in EPS in corrispondenza del fibrogesso, evitando così che quest’ultima assorba l’umidità in eccesso presente nei massetti All’intradosso del solaio si interpone la fascia dentellata in EPDM per abbattere i rumori da calpestio evitando continuità di materiali tra ambienti La trave portante del solaio e il freno vapore applicato all’intradosso sono necessariamente continui, ma la finitura in fibrogesso è interrotta
1 striscia dentellata fonoisolante in EPDM 2 guaina
Stratigrafia della parete:
- doppia lastra in cartongesso
- pannello lana di roccia
- parete in X-lam
- pannello lana di roccia
- doppia lastra in cartongesso
Stratigrafia del solaio con pannelli portanti (dall’estradosso):
- pavimentazione
- massetto impianti
- pannello in polistirene per pavimento radiante
- materassino fonoisolante
- alleggerito
- pannello X-lam (140 mm)
- controsoffitto
Stratigrafia del solaio con travi (dall’estradosso):
- pavimentazione
- massetto impianti
- pannello in polistirene per pavimento radiante
- materassino fonoisolante
- alleggerito
- c a - perlinato
- arcareccio in legno di abete
Da sinistra: parete con striscia dentellata fonoisolante; solaio in pannelli portanti con bordo sagomato e la striscia dentellata fonoisolante; pareti interne portanti sagomate per accogliere gli arcarecci del solaio
Disegno e foto: Natural Building, San Biagio di Callalta (TV)
Il nodo tra la parete interna e il solaio nella struttura a pannelli portanti avviene mediante appoggio e fissaggio Prima del montaggio della parete, all’estradosso del solaio viene posato un profilo dentellato fonoisolante, interposto anche nell’appoggio del solaio alla parete sottostante
Con il sistema a pannelli portanti è possibile utilizzare anche un solaio con travi e perline: in questo caso le due pareti poggiano l’una sull’altra con interposizione del profilo fonoisolante di cui sopra Il massetto collaborante viene eseguito in una seconda fase e quindi interrotto dalla parete portante ma a questo collegata mediante apposite connessioni meccaniche
1 passaggio impianti
2 parete ThomaHolz100 a vista
Stratigrafia parete interna (da sinistra):
- intonaco in argilla (0,5 cm)
- pannelli in argilla con impianto di riscaldamento a parete (2,5 cm)
- listellatura di supporto (2,4 cm)
- pannelli di isolamento acustico (6 cm)
- parete ThomaHolz100 (17 cm)
Stratigrafia solaio con riscaldamento a pavimento (dall’estradosso):
- piastrelle (1 cm)
- riscaldamento a pavimento (7 cm)
- barriera al vapore
- strato di isolamento acustico in fibra di legno (4 cm)
- massetto (8 cm)
- carta antispolvero
- solaio ThomaHolz100 (21,2 cm)
- listellatura 4/6 + isolamento acustico (6 cm)
- listellatura 3/5 + isolamento acustico (5 cm)
- rivestimento in perline di legno (1,8 cm)
Da sinistra: vista dall’intradosso dell’appoggio del solaio sulle pareti interne; sulla destra dell’immagine si vede come la parete è stata sagomata per accogliere il solaio; in evidenza lo strato di barriera al vapore tra parete e solaio.
Disegno e foto: Kargruber-Stoll Srl, Monguelfo-Tesido (BZ)
1 2
Il disegno riporta una doppia soluzione di rivestimento per l’estradosso dei solai: con finitura in legno a sinistra e con finitura in piastrelle sopra l’impianto radiante a destra I solai massicci ThomaHolz100 vengono appoggiati alla parete interna di separazione che può rimanere a vista, come nella destra del disegno, o essere rivestita Oltre che tramite incastro, gli elementi del solaio vengono uniti anche da una vite tuttofiletto opportunamente dimensionata Nel disegno sopra riportato, lo strato predisposto per accogliere le tubature degli impianti è collocato sotto il solaio e isolato acusticamente
Supermercato Spar
LOVE architecture and urbanism
NO99 Straw Theatre
Salto AB
Biblioteca di Vennesla
Helen & Hard
Dune House
Jarmund/Vigsnæs AS Arkitekter MNAL
Casa unifamiliare
Stefan Hitthaler
Rifugio Baita Tonda
Marcello Lubian
Residenza privata
Enrico Iascone