legnoarchitettura 18

Page 1

legnoarchitettura

rivista trimestrale

anno VI – n 18, gennaio 2015 ISSN 2039-0858

Numero di iscrizione al ROC: 8147

direttore responsabile

Ferdinando Gottard

redazione Lara Bassi, Lara Gariup

editore

EdicomEdizioni, Monfalcone (GO)

redazione e amministrazione

via 1° Maggio 117

34074 Monfalcone - Gorizia tel 0481 484488, fax 0481 485721

progetto grafico

Lara Bassi, Lara Gariup

stampa Grafiche Manzanesi, Manzano (UD)

Stampato interamente su carta con alto contenuto di fibre riciclate selezionate

prezzo di copertina 15,00 euro abbonamento 4 numeri

Italia: 50,00 euro - Estero: 100,00 euro

Gli abbonamenti possono iniziare, salvo diversa indicazione, dal primo numero raggiungibile in qualsiasi periodo dell’anno

distribuzione in libreria

Joo Distribuzione

Via F Argelati 35 – Milano

copertina

Elisabeth and Helmut Uhl Foundation, modostudio

Foto: © Laura Egger

È vietata la riproduzione, anche parziale, di articoli, disegni e foto se non espressamente autorizzata dall’editore

De Leon & Primmer

Hello Wood 2014 Il legno: equilibrista per natura Elementi

Foto Søren Harder N elsen Foto: Francesco Scipioni
18 legnoarchitettura
Foto Robert Hamer
6 87 97 105
legno
legno incontri techné sistemi dettagli 46 56
multistrato con viti in
Rinforzo di solai in

Wild Turkey Bourbon Visitor Center De Leon & Primmer Architecture Workshop 12

Elisabeth and Helmut Uhl Foundation 24 modostudio

Split View Mountain Lodge 36

Reiulf Ramstad Arkitekter

Ristorante “mammaròssa” 46

Studio Candeloro Architects, 1AX Architetti Associati

Kew House 3 Vibe Design Group 56

Ufogel Jungmann & Aberjung Design Agency 66

Peanuts Nursery UID architects 76

66 24 12 36 F o o : © U D p h o t o H r o s h U e d a F o o © L a u a E g g e r Foto: Lukas Jungmann
12 progetti F o t o C o u r e s y o f D e L e o n & P r m m e r A r c h t e c t u e W o k s h o p 76

De Leon & Primmer

Con sede a Louisville (KY) lo studio De Leon & Primmer Architecture Workshop fin dagli esordi ha focalizzato la sua attività soprattutto su progetti pubblici, trovando ispirazione nelle tradizioni costruttive e nei materiali locali E proprio per tale motivo, i due soci, pluripremiati per i loro lavori, hanno scelto di operare in una città di medie dimensioni del centro degli Stati Uniti allo scopo di poter sperimentare e studiare il rapporto che si instaura tra territorio e architettura

Queste e altre questioni sono affrontate nell’intervista a uno dei due co-fondatori, l’arch Roberto De Leon

Saint Andrews Episcopal Church, Glasgow - Kentucky Utilizzando una semplice impronta rettangolare con struttura in legno ripetitiva, il fabbricato della nuova chiesa filtra, riverbera, cattura e stratifica le differenti qualità della luce attraverso l’uso attento di lucernari, vetri e superfici chiare, semitrasparenti e riflettenti. Questo trasforma lo spazio del culto, tradizionalmente rivolto verso l’interno, in una stanza esterna coperta Rigore, limitazione e budget modesto stanno alla base dell’approccio creativo della Saint Andrew’s Episcopal Church dove “economia significa anche innovazione”

Il vostro lavoro si caratterizza per una forte attenzione alla sostenibilità: cosa significa progettare secondo un approccio sostenibile e olistico? È sufficiente utilizzare materiali a basso impatto ambientale, sostenibili? Siamo fermamente convinti che la progettazione sostenibile è necessariamente radicata in una comprensione più articolata dello specifico sito di progetto e del clima Siamo sempre favorevoli a utilizzare strategie passive – piuttosto che i sistemi e prodotti meccanizzati – che si basano su elementi come la luce

naturale, le caratteristiche del vento e il controllo solare secondo l’orientamento del sito Per noi questo è un approccio più impegnativo, ma che alla fine si traduce in un progetto che è strettamente radicato nel suo “posto”, che si basa sulla tipologia costruttiva tradizionale e sui materiali locali e che non può, quindi, essere situato in nessun altro luogo

Nella storia degli Stati Uniti, il legno è uno tra i principali materiali da costruzione: quanto di questa tradizione vernacolare si ritrova

6 legnoarchitettura 18 incontri
incontri

Wild Turkey Visitor Center, Louisville

Il nuovo centro visite della Wild Turkey Bourbon Distillery si contraddistingue per la dualità tra l’esterno semplice e scuro e l’interno molto articolato e complesso strutturalmente, dove la luce naturale gioca con i colori e le fibrature del legno.

Mason Lane farm Operations Facility, Goshen.

Progettazione di due edifici a uso agrigolo.

Il complesso si caratterizza per il rivestimento della facciata del fienile (una struttura a telaio in legno), realizzata con un materiale, il bambù, raro nella tradizione costruttiva locale, ma a crescita spontanea nelle vicinanze del sito

La facciata è il risultato di uno studio accurato delle peculiarità fisiche del materiale e della funzione dello stesso all’interno del progetto.

L’edificio, insignito nel 2013 dall’American Institute of Architects con il National Honor Award, è il primo edificio agricolo certificato LEED con livello Gold

nei vostri progetti?

Il nostro studio ritiene che il termine “vernacolare” sia il punto di partenza, una premessa concettuale Per noi questo concetto serve da ponte per iniziare qualcosa che è contestualmente familiare e comune, per poi trasformarla in qualcosa di sconosciuto e inaspettato, in un tentativo di porre una questione autentica Ci capita di usare il legno in molti dei nostri progetti perché questo è un materiale da costruzione tradizionale che può essere di provenienza locale

Quali sono le potenzialità del materiale legno nell’architettura? E quale valore aggiunto può apportare a un progetto, in particolare ai vostri lavori?

In realtà tendiamo, quando possibile, a evitare l’utilizzo del legno nei nostri progetti perché il legno da costruzione è ricavato da alberi che hanno impiegato molti anni per crescere e di solito proviene da foreste non gestite in modo sostenibile Nell’esempio del Wild Turkey Bourbon Visitor Center, tutto il legno è in realtà legname segato convenzionale (spessore 2 pollici), ma utilizzato in modo da evocare le qualità del legno

Potreste darci una vostra personale definizione del materiale “legno”?

Questa è un’ottima domanda perché ci sono così tanti aspetti del legno come materiale Direi che “legno” è qualsiasi materiale proveniente da una pianta fibrosa, compresi anche i materiali derivati da tutti i processi

meccanizzati di lavorazione, cosicché si può spaziare dal legno di grandi dimensioni ai pannelli particellari fino alla polpa di cellulosa Come studio, siamo sempre in cerca di modi diversi di considerare il legno come materiale da costruzione In un progetto attualmente in costruzione stiamo usando il legno nella sua forma più sottile, un impiallacciato flessibile che è realizzato come se fosse una lamiera stirata

Nel progetto che pubblichiamo su questo numero, il Wild Turkey Visitor Center, il legno è utilizzato come rivestimento esterno, semplice e scuro, che tuttavia nasconde una struttura lignea interna, molto complessa e articolata, a suddividere spazi e funzioni interne Quale è stata la vostra ispirazione per questo differente utilizzo del legno, semplice all’esterno e complesso all’interno?

Il concetto costruttivo è basato sui contrasti e la dualità Il progetto è stato abbastanza impegnativo per il fatto che c’erano molte scale differenti a cui rispondere – il paesaggio panoramico, le grandi “rickhouses” (depositi di invecchiamento) utilizzate per invecchiare le botti di bourbon e, naturalmente, la scala del visitatore Abbiamo mantenuto una forma semplice per l’edificio in modo che esso avrebbe potuto essere memorizzato visivamente in questo paesaggio, ma abbiamo usato dettagli più complessi che avrebbero potuto essere visibili solo a distanza ravvicinata, come la filigrana del rivestimento esterno e l’elemento a traliccio per accedere alla sala di degu-

8 legnoarchitettura 18
incontri

stazione panoramica Quindi, in questo senso, il progetto è allo stesso tempo semplice e complesso

Nel Mason Lane Farm Operations Facility avete utilizzato bambù che cresce spontaneamente a poche miglia di distanza dal sito per creare un reticolato in facciata dalla duplice funzione estetica e operativa, reinterpretando la forma vernacolare del granaio. Perché avete scelto il bambù per una delle due strutture e in che modo l’avete impiegato?

Questo è interessante perché originariamente non avevamo intenzione di utilizzare il bambù, ma avevamo bisogno per l’edificio di una pelle porosa che permettesse alle brezze di fluire attraverso consentendo al fieno conservato di asciugarsi Esiste una “canna del Kentucky” che cresce spontaneamente nella nostra regione, un bambù dallo stelo molto sottile che è abbastanza invasivo, quasi un’erbaccia Abbiamo notato che, con un interessante parallelo con il fieno che è asciugato e conservato all’interno dell’edificio, entrambi (fieno e bambù) sono tipi di erbe

Per puro caso poi, ci è capitato di essere un vivaio di

bambù molto vicino al sito del progetto e ci è sembrato

un segno del destino che il bambù potesse essere il materiale ideale per la nostra facciata

L’installazione del reticolo di bambù come pelle esterna è il risultato della collaborazione tra il nostro ufficio e il costruttore Invece di utilizzare dispositivi di fissaggio meccanici che tendevano a scheggiare il bambù, abbiamo scoperto che legare steli intrecciati con fascette zincate era un modo molto veloce e molto semplice per installare la facciata

Utilizzate spesso sistemi costruttivi semplici e convenzionali: quali sono i motivi, i vantaggi e i limiti di questa scelta?

I sistemi e i materiali da costruzione prefabbricati e convenzionali sono economici e facilmente reperibili

Inoltre, stabiliscono anche un elemento di rigore nel nostro processo ideativo perché possiedono una logica intrinseca o un quadro di riferimento per come tipicamente sono destinati a essere utilizzati Per il nostro studio, la sfida (e il divertimento) è giocare con queste strutture e ripensare a nuove possibilità e potenzialità

Yew Dell Botanical Garden

Visitor Center, Crestwood

Recupero di un fienile esistente per il tabacco e trasformazione in centro visite nell’Orto Botanico

Yew Dell

La nuova struttura è stata progettata secondo il concetto “edificio nell’edificio” recuperando e ristrutturando il guscio del fienile esistente e suddividendo gli spazi interni con grandi pareti vetrate che lasciano filtrare la luce naturale all’interno e consentono, aprendosi, di ventilare le zone lavorative Il rivestimento interno ed esterno in legno amplifica le caratteristiche tradizionali e innovative del fabbricato.

9

Everett House, Louisville

Riqualificazione e ampliamento di una residenza del 1930

Rispettando le linee guida per il recupero degli edifici storici della città di Louisville e rispondendo alle esigenze dei giovani proprietari, De leon & Primmer hanno progettato un ampliamento dell’edificio sulla parte posteriore del lotto, realizzando un volume in legno che massimizza le strategie progettuali passive

Viewing Ladder, Crestwood, Kentucky

Questa piattaforma panoramica è realizzata in legno di sequoia e acciaio, materiali che creano una dualità percettiva: a scala territoriale sembra piccola, fragile e delicata – all’interno del contesto – ma grande e robusta a livello dell’osservatore

Quanto il territorio, il paesaggio e il clima condizionano l’architettura dei vostri progetti?

I nostri progetti sono completamente influenzati da tutti questi elementi e il nostro processo di progettazione inizia sempre con il lavoro direttamente sul sito È importante per noi essere completamente immersi nel contesto del progetto e non è insolito per il nostro studio portare i nostri computer e i tavoli portatili sul luogo del progetto

La vostra attività di progettazione si focalizza, in particolar modo, su progetti pubblici, realizzati anche per enti no-profit. Perché avete scelto questo tipo di attività?

Anche se lavoriamo su molte tipologie differenti di progetti, i nostri progetti pubblici e per la comunità sono particolarmente gratificanti in quanto abbiamo la possibilità di aiutare clienti che aiutano gli altri Questi progetti tendono anche a offrire sfide uniche, con budget molto modesti, e di conseguenza il nostro studio deve essere innovativo attraverso il risparmio

Come è nato lo studio De Leon & Primmer?

Sappiamo che vi siete laureati in California, ma poi avete deciso di fondare il vostro studio nel Kentucky. Cosa vi ha spinto a prendere questa decisione?

De Leon & Primmer Architecture Workshop è stato fondato da me e Ross Primmer, un collega della scuola di specializzazione a Harvard (Harvard University Graduate School of Design, ndr) Al contrario di molti dei nostri compagni di corso di quel tempo che hanno continuato a lavorare per studi in altre nazioni, noi abbiamo scelto di focalizzare la nostra attività in una città americana di livello intermedio, che è passata da un’economia industriale a un’economia basata sui servizi La dimensione di Louisville ci ha permesso di immergerci molto rapidamente all’interno della comunità e di essere in grado di contribuire architettonicamente in modo più significativo, una volta usciti dalla scuola Per noi, Louisville e la regione del Kentucky hanno rappresentato anche un ambiente di prova per studiare e ri-pensare al linguaggio vernacolare locale e regionale

Per approfondimenti: deleon-primmer.com

10 legnoarchitettura 18
incontri

United Mail Corporate Headquarter, Louisville

L’ampliamento e rinnovo della sede della società di spedizioni utilizza comuni materiali industriali per far fronte al budget limitato All’interno, una originale struttura impilata in legno, la TOT box (“think outside the box” room) funge area conferenze, una scultura all’interno della sede per “pensare fuori dagli schemi”.

11

Lawrenceburg (USA)

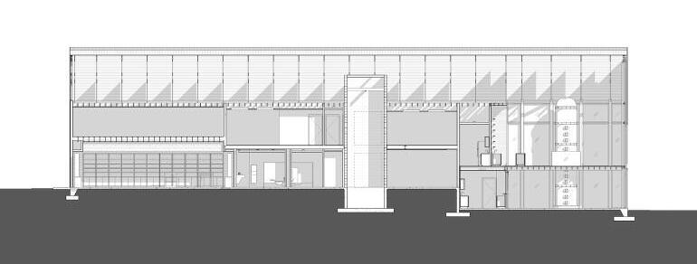
De Leon & Primmer Architecture Workshop Wild Turkey
Bourbon Visitor Center

1

A sud ovest l’ingresso vetrato è protetto dall’irraggiamento solare mediante uno sporto orizzontale sulle due esposizioni

2 Vista da nord. Pannelli di legno dalla trama diagonale alternata rivestono sia le pareti sia la copertura.

3

Le ampie vetrate a est offrono ai visitatori viste panoramiche sul fiume Kentucky e il paesaggio circostante

14 legnoarchitettura 18 progetti 2 1

3

Ubicazione: Lawrenceburg, Kentucky (USA)

Committente: Gruppo Campari (Campari America)

Progetto: arch Roberto De Leon, arch M Ross Primmer, arch Lindsey

Stoughton, arch David Mayo - De Leon & Primmer Architecture Workshop, Louisville, Kentucky (USA)

Strutture: Stanley D. Lindsey & Associates, Brentwood Tennessee (USA)

Appaltatore: Lichtefeld Inc , Louisville, Kentucky (USA)

Fine Lavori: 2013

Superficie netta: ca 849,13 m2 (9 140 s f )

Importo dell’opera: 4 000 000 $

Fotografie: Courtesy of De Leon & Primmer Architecture Workshop

Reinterpretazione del fienile

Simbolo del rebranding dello storico marchio di bourbon, il nuovo Centro Visitatori della Wild Turkey Distillery offre agli ospiti spazi dedicati a esposizioni, eventi, assaggi e vendite, all’interno di un involucro che per forma e materiali utilizzati rimanda ai tipici fienili di questa zona del Kentucky Ma in questo progetto il continuo richiamo alla tradizione non è banale, anzi: il nuovo e il tipico convivono creando una costante dicotomia espressiva Il semplice ed evocativo profilo di un fienile per l’essiccazione del tabacco, un landmark chiaramente riconoscibile, è reinterpretato grazie a piccole doghe scure di cedro che formano i pannelli del rivestimento esterno dalle trame diagonali alternate; riflettendo la luce da vari angoli, la texture anima la superficie contrapponendosi alla semplicità del volume Sui timpani delle facciate a est e ovest, il reticolo delle doghe è distanziato così da consentire il passaggio della luce naturale in una dualità di pieni e vuoti, che di notte fa brillare il Centro come una lanterna di filigrana All’estremità est, invece, il rivestimento esterno lascia spazio a una parete interamente vetrata che offre ai visitatori una magnifica vista sul fiume

All’interno l’alternarsi di zone opache e luminose e la tavolozza di colori chiari e scuri e di trame strutturali rafforzano ancora il concetto del contrasto che permea l’intero progetto La struttura in legno a telaio racchiude un grande spazio interno con capriate a forbice a vista e organizzato attorno a una rampa centrale – vera spina dorsale compositiva e spaziale dell’edificio – con gli elementi strutturali trattati con prodotti naturali e finiti longitudinalmente dalle stesse doghe scure del rivestimento esterno La lunga passerella, che strizza l’occhio ai ponti che attraversano il vicino fiume Kentucky, conduce alla sala assaggi vetrata con affaccio sullo stesso fiume e il paesaggio circostante Pannelli di legno recuperati da vecchi fienili e granai, in rovere colorato e carbonizzato, e antiche scaffalature delineano l’area della reception, cui si accede da sud ovest da un ingresso vetrato segnato da una tettoia che rompe la grande dimensione della struttura riportandola a misura d’uomo Tettoia riproposta anche nell’angolo sud verso l’area destinata agli eventi all’aperto

15
pianta del piano terra pianta del piano degli assaggi sezione trasversale sulla zona assaggi
16 legnoarchitettura 18 progetti
sezione trasversale sull’entrata

La tasting room al primo piano con le ampie vetrate parzialmente schermate dal reticolo esterno in doghe di legno diagonali I piani dei tavolini della sala sono realizzati con i fondi delle botti di bourbon

17
sezione longitudinale lungo la zona esibizione sezione longitudinale lungo il corridoio di servizio sezione longitudinale attraverso la zona amministrativa

La

struttura

L’edificio è realizzato con sistema a telaio realizzato in opera Platform Frame, formato da pareti e solai con intelaiature di legno di piccole dimensioni, poste a passo costante, alle quali vengono inchiodati o avvitati pannelli di legno strutturali Il sistema è così chiamato poiché la realizzazione delle strutture del primo solaio, che fungono da “piattaforma”, sono indispensabili per la costruzione del piano successivo I fronti est e ovest sono dotati di una sottostruttura metallica, al fine di irrigidire l’insieme e, a est, ospitare il sistema vetrato della facciata verso il fiume; il solaio della sala degli assaggi è supportato da travi IPE in acciaio dipinto di nero

Capriate a forbice con piastre metalliche brunite e avvitatura cromata costituiscono la struttura portante del tetto dell’intero volume, mentre la passerella interna, che conduce alla sala assaggi, è racchiusa all’interno in una struttura lignea a doppia altezza con montanti binati ed elementi diagonali e un reticolo a doghe orizzontali dipinto di colore scuro

alla
al
18 legnoarchitettura 18 progetti
galleria che porta
sala assaggi
primo piano

L’area al piano terra ospita mostre lungo il corridoio che porta allo spazio dei sistemi interattivi dove è possibile approfondire la conoscenza del bourbon Lo spazio è caratterizzato dalla struttura a vista della copertura e dalla lunga passerella semichiusa con montanti a traliccio che conduce alla sala degli assaggi al livello superiore

La zona di mescita del bourbon e, a sinistra, la lunga galleria che dall’ingresso porta al primo piano

19
20 legnoarchitettura 18 progetti
21

Sezione orizzontale sul rivestimento esterno:

1 elemento a L saldato sul telaio strutturale in legno a creare gli appoggi per i correntini di supporto al rivestimento

2 correntino inchiodato e fissato su tutti e quattro gli angoli

3 elementi di rivestimento posizionati a 45° e fissati con viti a testa svasata

4 traliccio a L saldato al telaio strutturale in legno

5 cerniera a cilindro saldata

Dettaglio in pianta in corrispondenza dell’interruzione verticale dei pannelli di rivestimento:

1 telaio strutturale in legno

2 gocciolatoio con bordo sporgente

3 sottili strisce di legno a livellare le superfici del rivestimento di legno per evitare umidità

4 guaina esterna

5 elemento prefinito di separazione verticale tra i pannelli di rivestimento

6 telaio in legno scuro

Dettaglio in pianta della struttura di rivestimento, dall’esterno:

- rivestimento in legno fresato con profilo sottostante

- rivestimento in legno fresato

- sottili strisce di legno a livellare le superfici del rivestimento di legno per evitare umidità

- barriera all’aria

- guaina esterna

1 elemento angolare prefinito, non sporgente oltre la linea del rivestimento

2 estremità obliqua di tutti i rivestimenti in legno

22 legnoarchitettura 18 progetti
1 2 3 4 5 1 2 3 4 5 6 1 2 22
1

A sinistra, l’intelaiatura metallica della facciata vetrata a est, gli elementi in c a per il sostegno della rampa interna e le prime strutture in legno messe in opera

A destra, dettaglio del traliccio metallico e, in secondo piano, il corpo in c.a. del vano ascensore.

A sinistra, realizzazione del piano terra e del primo solaio con sistema platform frame A destra, tamponamento della struttura in legno intelaiata.

A sinistra, posa del telo di tenuta all’aria sulle pareti esterne e sistemazione dell’assito in copertura. A destra, vista da est con in evidenza la struttura in legno dello spazio per gli assaggi e quella metallica della facciata

A lato, dettaglio delle piastre a stella imbullonate delle capriate a forbice. In basso a sinistra, la copertura della zona degli uffici e del magazzino; a destra, la struttura di copertura in travi a vista della passerella

23

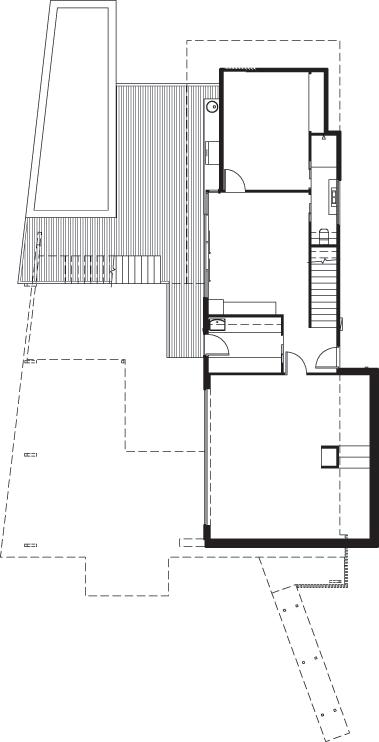
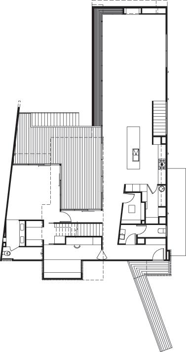
Elisabeth and Helmut Uhl Foundation

Laives

modostudio

1

Il blocco compatto a due piani accoglie le camere da letto e le aree per gli incontri e gli eventi; sull’ingresso si protende il volume della serra vetrata

2

Lo spazio della mensa, rivestito da scandole realizzate a mano, si apre verso la valle con grandi vetrate Sulla terrazza, dalla pavimentazione in legno spicca il taglio trapezoidale del lucernario che porta luce alla scala sottostante

26 legnoarchitettura 18 progetti 1

2

Ubicazione: Laives (BZ)

Committente: Elisabeth und Helmut Uhl Stiftung, Gräfelfing (D)

Progetto: modostudio, Roma

Team di progettazione: Fabio Cibinel, Roberto Laurenti, Giorgio Martocchia, modostudio, Roma

Strutture: ing Gilberto Sarti, Sarti Ingegneria, Rimini

Impianti meccanici e consulenti

CasaClima: p i Thomas Dissertori, Appiano sulla Strada del Vino (BZ); Arch. Alberto Micheletti, Bolzano

Direttore dei lavori: arch Marco De Fonzo, Merano (BZ)

Appaltatore: Kargruber-Stoll GmBH, Monguelfo/Tesido (BZ)

Progetto-Lavori: 2009-2014

Superficie lorda: 1450 m2

Fotografie: © Laura Egger

Fondazione con vista

La nuova sede della fondazione Elisabeth e Helmut Uhl, un’organizzazione non profit che ha lo scopo di far progredire le arti e le scienze, è il frutto di un concorso internazionale ristretto, bandito nel 2009 e al quale hanno partecipato 15 team di architetti provenienti da Italia, Svizzera, Austria e Germania, vinto da modostudio

L’edificio è situato nel comune di Laives, sul declivio di una montagna con una spettacolare vista panoramica Il progetto vincitore ha cercato di preservare l’ambiente circostante ricalcando planimetricamente l’impianto dei due vecchi edifici preesistenti, un fienile e una casa diroccati di cui sono stati riutilizzati anche alcuni materiali La sede della fondazione si caratterizza per l’articolazione dei volumi del livello superiore, il corpo della mensa rivestito in scandole di legno e quello vetrato della serra che ospita le attività di ricerca, entrambi ruotati a 45 gradi rispetto al corpo sottostante e con un leggero slittamento diagonale La struttura inferiore a due piani, tagliata in due da una scala illuminata zenitalmente da un grande lucernario trapezoidale a livello della copertura a terrazza, accoglie le camere e gli spazi per gli incontri/eventi Un piccolo fabbricato adiacente è stato destinato a residenza

La parte inferiore del complesso è realizzata con un sistema strutturale in legno a pannelli massicci, i cui strati sono uniti tramite cavicchi in legno evitando l’impiego di colle o elementi metallici I materiali utilizzati richiamano la storia e la cultura del luogo: il larice delle scandole è stato tagliato a mano così da permettere alle fibre del legno di rimanere intatte, l’intonaco a calce è tipico degli edifici rurali della zona e la pietra è presente nelle chiese e nei castelli della valle Un sistema meccanizzato consente di controllare le imposte scorrevoli –rivestite da scandole come il resto della facciata – delle grandi aperture al piano superiore, azionabili singolarmente o contemporaneamente

Classificato in classe A CasaClima, l’edificio si contraddistingue per la mancanza di un impianto di ventilazione meccanica controllata e la possibilità di usare l’aria calda generata dal volume vetrato della serra che funge da zona buffer

L’impianto di riscaldamento, con pannelli radianti, è dotato di una cisterna coibentata da 20 000 litri alimentata dal solare termico e da una caldaia a biomassa

27
28 legnoarchitettura 18 progetti
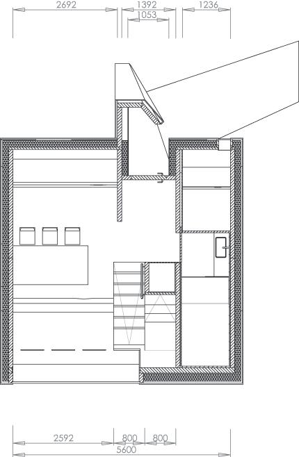
pianta livello +3,94 m pianta livello 0 m pianta livello -3 m

trasmittanza media elementi costruttivi

pareti esterne in legno massiccio e intonaco: U = 0,17 W/m2K

solaio verso scantinato non riscaldato: U = 0,34 W/m2K

solaio contro terreno: U = 0,18 W/m2K

solaio esterno: U = 0,17 W/m2K

copertura a falda: U = 0,19 W/m2K

prestazioni energetiche

fabbisogno energetico per riscaldamento: 26 kWh/m2 anno (standard CasaClima) fabbisogno di potenza di riscaldamento: 18 kW (standard CasaClima)

L’ampia serra vetrata, accumulatore di calore utilizzabile all’interno dell’edificio, sporge dalla copertura del corpo inferiore destinato a uso agricolo.

sezione longitudinale

sezione trasversale

29
3

3

Dettaglio dei due volumi superiori e del lucernario sulla scala

4

Vista da est della mensa e della serra, entrambe a sbalzo sullo piano inferiore.

5

Il corpo della mensa offre un fronte completamente chiuso (nord-est) e uno aperto sul paesaggio (nordovest); le imposte scorrevoli a soffietto sono azionabili singolarmente o tutte assieme mediante un sistema meccanico Il volume sottostante è caratterizzato dalla finitura a intonaco a calce e dalle fasce marcapiano in pietra.

31 4 5

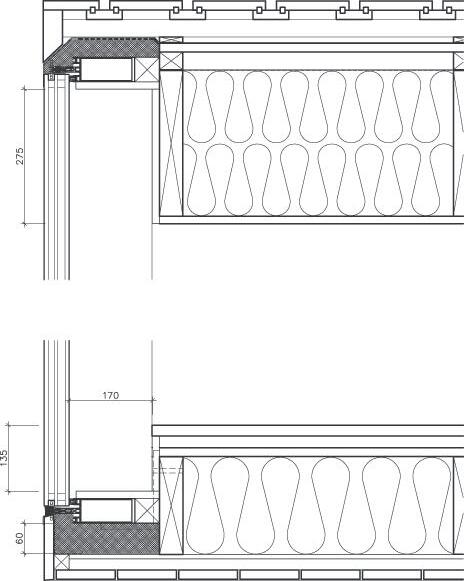
Solaio terrazza, dall’esterno:

- listoni in legno di larice da esterno e piedini di sostegno (100 mm)

- massetto di pendenza (80 mm)

- doppia guaina

- pannello isolante in fibra di legno (120 mm)

- solaio in legno massiccio (212 mm)

- controsoffitto con struttura in legno (25 mm) e pannello di gessofibra (15 mm)

1 pietrame

gocciolatoio

3 rasatura impermeabilizzante

4 XPS

5 rete in acciaio con ancoraggio

6 rivestimento in pietra

7 profilo in acciaio zincato

8 lattoneria

Solaio su cantina non riscaldata, dall’estradosso:

- pavimento in listoni di legno

- assi in legno e fibra di legno

- pannello isolante in fibra di legno

- pannello strutturale in fibra di legno

- ghiaino di marmo

- doppia barriera al vapore

- solaio cls (212 mm)

- intonaco (40 mm)

Parete esterna, dall’esterno:

- finitura (8 mm)

- rasatura su rete (10 mm)

- isolamento termico in fibra di legno (80 mm)

- parete in pannelli interamente in legno massiccio, a vista (364 mm)

1 paraspigolo a filo muro

2 rete in acciaio con ancoraggio

3 XPS

4 rivestimento in pietra

dettaglio della terrazza
32 legnoarchitettura 18 progetti
1 3 5 7 2 4 6 8 1 3 2 4
2
dettaglio del solaio della cantina

Stratigrafia solaio interpiano, dall’estradosso:

- listoni in legno di larice (20 mm)

- assi in legno e fibra di legno (60 mm)

- pannello acustico in fibra di legno

- pannello strutturale in fibra di legno

- ghiaino di marmo

- solaio in legno massiccio (212 mm)

- controsoffitto con struttura in legno (25 mm) e pannello di gessofibra (15 mm)

1 paraspigolo a filo muro

2 rete in acciaio con ancoraggio

3 rivestimento in pietra

4 XPS

5 gocciolatoio

6 profilo in acciaio zincato

7 imbotte in legno

8 barriera al vapore

9 imbotte in legno

10 rete in acciaio con ancoraggio

11 rivestimento in pietra

12 XPS

13 profilo in acciaio zincato

L’articolazione del volume esterno della mensa è ripresa all’interno attraverso la forma sagomata del controsoffitto in legno.

33
1 3 5 7 2 4 6 8 9 11 13 10 12 5
dettagli dei solai intermedi

La scala, che taglia in due il blocco compatto delle camere e degli spazi incontro, è inondata dalla luce naturale proveniente dal lucernario e dalle aperture sulla valle

struttura

La struttura verticale è realizzata con pannelli massicci (sistema Thoma Holz100) costituiti da un nucleo portante e strati di tavole incrociati in orizzontale, verticale e diagonale, in modo continuo e senza intercapedini L’unione dei diversi strati è garantita mediante cavicchi in legno essiccati e inseriti a pressione in fori che attraversano completamente il pannello I cavicchi, assorbendo umidità, si gonfiano e bloccano permanentemente gli strati È così possibile realizzare pannelli interamente il legno senza utilizzo di collanti o parti metalliche Anche i solai sono in pannelli interamente lignei, formati in questo caso da strati di travi e assi

34 legnoarchitettura 18 progetti

Costruzione della serra vetrata e completamento della copertura dello spazio agricolo

Due fasi di montaggio della struttura del volume delle camere e delle aree comuni, realizzato in pannelli di legno privi di colle e connessioni metalliche.

L’impianto misto della copertura della mensa: travi in acciaio, pannelli massicci, travi e assito in legno Sulle pareti perimetrali si notano i cavicchi in legno che tengono assieme i diversi strati dei pannelli portanti

35

Split View Mountain Lodge

Havsdalen (N)

Reiulf Ramstad Arkitekter

1

Una vista scorciata di due dei tre corpi che si allargano sul paesaggio

A terra, s’intravvede l’ingresso, mimetizzato nel rivestimento in doghe di legno, ai piani seminterrati dove sono stati sistemati gli spazi per il cambio degli indumenti da sci.

2

La casetta vista da nord-est

38 legnoarchitettura 18 progetti 1

Ubicazione: Havsdalen (N)

Progetto: Reiulf Ramstad Arkitekter, Oslo (N)

Strutture: Jon Skappel

Appaltatore: Morten Sjemmedal

Lavori: 2011-2013

Superficie utile: 130 m2

Fotografie: Søren Harder Nielsen, Reiulf Ramstad Arkitekter

Vacanze in montagna

Annidata tra le colline ondulate vicino a Havsdalen, famosa località sciistica nella Valle di Hallingdal, in Norvegia, la Split View Mountain Lodge è una casa per vacanze progettata dallo studio RRA di Oslo e commissionata da una famiglia di 5 persone

La costruzione richiama l’architettura tradizionale norvegese e le case nei dintorni ma con una forma chiara e decisa – sottolineata dal rivestimento continuo in legno all’esterno, che ingrigirà nel tempo, e all’interno – che dialoga e si armonizza con l’ambiente circostante

La committenza aveva fornito un programma chiaro e preciso per il loro rifugio: 4 camere da letto, aree living e pranzo separate, una sala per i teenager della famiglia e un soppalco per i più piccoli In più, un piccolo annesso per ospitare gli eventuali ospiti e i nonni in visita

La risposta dello studio Reiulf Ramstad è stata un volume che si compone di un corpo principale, ospitante la maggior parte delle camere da letto, e che si biforca in due zone living, ciascuna delle quali con una parete finale completamente vetrata e aperta sul paesaggio

Una piccola dependance separata per gli amici e i parenti in visita, costituita da una camera e un bagno, prolunga idealmente il corpo principale al quale è collegata solo dalla pavimentazione esterna di legno

Le stanze di servizio per il cambio degli scarponi e dell’abbigliamento outdoor si inseriscono sotto i volumi vetrati a sbalzo delle zone living; da qui si accede ai locali dell’abitazione attraverso la scala interna di legno

La forma estrusa della struttura incornicia le viste principali, mentre aperture più piccole, strategicamente posizionate lungo il volume, offrono ulteriori scorci dei dintorni I livelli elevati delle zone soggiorno e pranzo forniscono agli occupanti un buon grado di privacy, favorito anche dalle ampie nicchie, ricavate all’interno delle pareti esterne in vari punti della pianta, dove sedersi o sdraiarsi La struttura in legno è a telaio e realizzata off site, mentre le finiture finali sono state fatte in cantiere Il legno impiegato è pino norvegese di origine locale

39
2

Lungo il corridoio del corpo principale, chiuse da porte scorrevoli, sono collocate le camere da letto e un bagnocon sauna La camera da letto matrimoniale è illuminata dadue finestre ai lati del letto; le camere dei figli hanno un letto a castello per gli amici in visita. In fondo al lungo corpo rettangolare, chiuso da un timpano vetrato, è collocata la sala per i teenager della famiglia, con uno spazio soppalcato accessibile dalla scala posta nel corridoio

pianta del piano principale

pianta del piano seminterrato

sezione longitudinale

sezioni trasversali

40 legnoarchitettura 18 progetti

prospetto est

prospetto ovest

prospetto nord

prospetto sud

A

Vista da sud con il corpo della zona notte concluso dal timpano vetrato che consente la vista sulla pista da sci sinistra, il volume staccato destinato agli ospiti

3 4

Il bow-wind antistante

la camera da letto matrimoniale è stato allestito come un’alcova, con imbottiture e cuscini

Copertura, dall’estradosso:

- tavolato superiore di rivestimento (148 mm)

- tavolato inferiore di rivestimento (73 mm)

- tavolato d’appoggio (36 mm)

- strato d’aria (11 mm)

- barriera al vapore

- pannello truciolare (18 mm)

- tavolato d’appoggio (36 mm)

- telo di tenuta all’aria

- isolamento in lana di roccia

- pannello di chiusura in legno

1 triplo vetro

Solaio, dall’estradosso:

- pavimentazione in pino (22 mm)

- sistema radiante a pavimento (24 mm)

- OSB (18 mm)

- trave portante con interposto isolamento (148 mm)

- elemento antivento

- listellatura (22 mm)

- doghe di pino non trattate

Parete, dall’interno:

- rivestimento interno in legno

- struttura a telaio con interposto isolamento (48 mm)

- barriera al vapore

- struttura a telaio portante con interposto isolamento (148 mm)

- pannello asfaltato impermeabilizzante (12 mm)

- telo di tenuta all’aria

- strato d’aria della parete ventilata (11 mm)

- listellatura (36x48 mm)

- rivestimento esterno in doghe di pino non trattato

1 tavolato inferiore del rivestimento della copertura

2 rivestimento parete esterna

42 legnoarchitettura 18 progetti
3
1
5 4

5 6

La zona relax pensata per i teenager della famiglia all’estremità sud-est della zona notte; il soppalco, pensato per i più piccoli, amplia lo spazio fruibile

Doghe di legno con un ridotto numero di nodi e giunzioni minime rivestono omogeneamente l’interno.

43 6 5

La zona living si sdoppia in cucina/sala da pranzo (a sinistra) e soggiorno (a destra) Sulla destra, la scala che porta al piano seminterrato, con le stanze per il cambio degli scarponi e dell’abbigliamento per lo sci e le escursioni.

Il tavolo della cucina a sbalzo, in cls rinforzato con fibra di vetro, è ancorato al camino doppio

8

Una lettura architettonica alternativa dello spazio richiama la metafora della cattedrale, sottolineata dalle luci simili a candelieri e sospese a diverse altezze, e dalle alcove intervallate lungo le pareti.

44 legnoarchitettura 18
7
La sala da pranzo
7 8

A sinistra, dettaglio di uno dei serramenti a tutta altezza e l’isolamento in lana di roccia della parete Accanto, fase di rivestimento delle pareti interne; sulla destra è visibile la struttura a telaio dei divisori tra le camere.

A sinistra, posa dell’isolamento alle pareti e della barriera al vapore della copertura, nella zona living. Accanto e sotto, lavori di finitura degli esterni, con ancora a vista il telo di tenuta all’aria

45

Studio Candeloro Architects

1AX Architetti Associati

Ristorante “mamma ròssa”

Avezzano

1 Le
pranzo all’aperto 2 La
3 L’ingresso 48 legnoarchitettura 18 progetti 2 1
vetrate lungo la zona
sala del ristorante.

Ubicazione: Avezzano (AQ)

Progetto e strutture: Studio Candeloro

Architects, Avezzano (AQ);

1AX Architetti Associati, Roma

Direzione lavori: Studio Candeloro

Architects

Strutture in legno: Sistem Costruzioni

Srl, Modena

Lavori: luglio 2011-aprile 2012

Superficie utile: 369,87 m2

Importo dell’opera: 829 500 €

Fotografie: Francesco Scipioni

Introverse esperienze

Il progetto mammaròssa nasce con lo scopo di creare un contenitore per eventi eno-gastronomici e culturali in equilibrio tra tradizione e innovazione

Il contesto, costituito da preesistenze piuttosto disomogenee e scarso pregio architettonico, ha indirizzato il progetto verso la realizzazione di un guscio protetto e separato dall’ambiente esterno Un edificio introverso, che custodisce ampi spazi caratterizzati dal calore del legno all’interno dei quali sperimentare le esperienze sensoriali offerte dalla cucina del ristorante

L’elemento architettonico generatore di tutto l’impianto è costituito da un muro separatore il quale, partendo dall’accesso carrabile, si piega e si richiude a formare una corte cintata (la zona pranzo all’aperto) e che, allo stesso tempo, trattiene e racchiude alcuni volumi combinati tra loro I blocchi delle due sale principali, disposti intorno al nucleo della cucina, formano un incrocio “navata-transetto” che costituisce il cuore della composizione architettonica, caratterizzata dalle altezze interne proporzionali alla lunghezza dei differenti ambienti

Il materiale principale utilizzato è il legno in tutte le sue declinazioni: dalla struttura portante verticale, costituita da pannelli X-lam, alle travi di copertura in lamellare, ai rivestimenti interni delle pareti in pannelli di abete trattato, per finire agli elementi di arredo, quali il bancone, i tavoli e le sedie, in rovere e faggio curvato

All’interno la forte presenza del legno è ulteriormente valorizzata dal contrasto con il pavimento in cemento industriale resinato, mentre all’esterno le superfici bianche intonacate che rivestono l’isolamento a cappotto si alternano alle pareti finite con listelli di larice in un equilibrio che sottolinea la composizione volumetrica

L’edificio è stato progettato per ridurre il consumo di energia e di risorse, grazie all’involucro ben coibentato, alle aperture disposte in modo da minimizzare le dispersioni termiche verso nord e usufruire dei venti di brezza per il raffrescamento passivo, oltre che mediante l’integrazione di pannelli solari termici sulla copertura del blocco cucina

49
3

Legenda:

1 ingresso

2 sala principale

3 sala enoteca

4 zona pranzo all’aperto

5 cucina

6 servizi

7 parcheggi

sezione trasversale sull’ingresso

dati prestazionali energetici parziali

indice involucro per raffrescamento, EPe,invol, 28,93

indice involucro per riscaldamento, EPe,invol, 74,80

indice energia primaria per riscaldamento (EPi), 76,88 rendimento medio stagionale impianto (hg), 96,69

indice energia primaria per acqua calda sanitaria (EPacs), 10,57

50 legnoarchitettura 18 progetti
1 2 3 4 5 6 7 6

prospetto sud

prospetto est (ingresso)

prospetto ovest

prospetto nord

51
Dettaglio del fronte est con l’ingresso al ristorante

sistema costruttivo

Le strutture portanti dell’edificio sono di tipo misto: fondazioni e pareti del livello seminterrato in calcestruzzo armato, strutture in elevazione e copertura in pannelli portanti di tipo “X-lam” e pilastri e travi in legno lamellare

La realizzazione di un piano seminterrato si è resa necessaria sia per motivi funzionali-architettonici (vi sono stati ricavati una cantina, il deposito alimenti e un locale tecnico), sia perché l’edificio è situato molto vicino a quella che era la sponda del lago Fucino, prosciugato alla fine del XIX secolo per sfruttarne a fini agricoli i terreni risultanti Poiché questo ambito, nei suoi strati più superficiali, si caratterizza geologicamente come una composizione di sabbie e argille con estrema tendenza alla liquefazione in caso di sisma (il Comune di Avezzano è interamente ricadente in zona sismica di tipo 1), è piuttosto problematico eseguire una semplice platea in c a sulla quale poggiare il fabbricato in legno Si è optato, quindi, dato il costo dei pali necessari a dare stabilità alla fondazione, per la costruzione di un livello interrato che “superasse” lo strato di terreno tendente alla liquefazione Il seminterrato, al momento utilizzato solo parzialmente, ospiterà in futuro una sala degustazioni e una scuola di cucina

52 legnoarchitettura 18 progetti

La sala principale del ristorante

La struttura in legno è costituita per la maggior parte da pannelli in X-lam Questi sono stati posati su una “traveradice” in legno posizionata, con l’aiuto di uno strumento di precisione, sulla soletta in c a Sotto la trave, dopo il suo corretto livellamento, è stata versata della malta antiritiro di completamento I pannelli in X-lam sono stati fissati alla soletta in calcestruzzo armato mediante hold-down metallici di diverse dimensioni e resi solidali tra loro mediante l’impiego di chiodi Anker e apposite viti autoforanti

In alcuni parti dell’edificio, ad esempio in corrispondenza delle vetrate che si aprono sulla corte interna, i pannelli portanti sono stati sostituiti da pilastri in legno

La copertura piana è realizzata con pannelli strutturali supportati, data l’ampiezza delle luci del solaio, da travi in legno lamellare

La coibentazione delle pareti e della copertura è in lana di roccia; una controparete interna, con sottostruttura metallica e uno strato isolante in lana di roccia, ospita l’alloggiamento delle reti impiantistiche elettrica e termoidraulica

53

Balaustra, parete esterna, dall’esterno:

- doghe verticali (25 mm)

- listoni (40x70/400 mm)

- guaina traspirante

- lana di roccia 60 (100 kg/m3) interposta a livelli verticali (60x70/670 mm)

- lana di roccia 60 (100 kg/m3) interposta a livelli orizzontali (60x70/670 mm)

- struttura portante in X-lam 5 strati

- lana di roccia (60 mm, 40 kg/m3) con telaio in acciaio zincato

- fibrogesso (12,5 mm)

- cartongesso (12,5 mm)

- scossalina

Solaio, dall’estradosso:

- doppia guaina

- OSB (20 mm)

- listelli (base 40 mm, altezza variabile)

- lana di roccia (100+100 100 kg/m3) interposta a livelli

- freno a vapore

- doppio tavolato (25+28 mm)

Parete interna:

- cartongesso (12,5 mm)

- fibrogesso (12,5 mm)

- lana di roccia (60 mm, 40 kg/m3) con telaio in acciaio zincato

- struttura portante in X-lam 5 strati

- lana di roccia (60 mm, 40 kg/m3) con telaio in acciaio zincato

- fibrogesso (12,5 mm)

- cartongesso (12,5 mm)

1 trave in legno lamellare

Accanto, la costruzione della copertura

A destra, dettaglio dell’isolamento della copertura in lana di roccia

54 legnoarchitettura 18 progetti 1

A sinistra, le fondazioni dell’edificio in c a

A destra, dettaglio di uno dei dormienti per la posa delle pareti in X-lam

Due momenti della posa delle pareti in X-lam

A destra si notano i pannelli con la predisposizione per l’alloggiamento delle travi in lamellare.

La sala pranzo principale con la struttura al grezzo e a lavori avanzati, ripresa da due punti contrapposti, con le tubazioni degli impianti a soffitto.

A sinistra, le condutture della ventilazione meccanica controllata.

A destra, la struttura in acciaio zincato della controparete interna con la predisposizione degli impianti

A sinistra, posa dell’isolamento esterno in lana di roccia e della guaina traspirante

A destra, la membrana impermeabile traspirante prima della posa del rivestimento a doghe

55

Kew House 3

Melbourne (AUS)

Vibe
Design Group

1

A sud i volumi si incastrano a creare una geometria articolata, sottolineata anche dal diverso orientamento del rivestimento ligneo La parte a sbalzo è sostenuta da pilastri inclinati in acciaio che trovano ispirazione nei mobili porta stereo degli anni ‘60 e ‘70.

2

L’area giorno si apre verso la piscina e il giardino con una grande vetrata obliqua La finitura esterna è in pannelli di fibrocemento

3

Una rampa sopraelevata in legno conduce all’ingresso completamente vetrato.

58 legnoarchitettura 18 progetti 2 1

Ubicazione: Kew, Melbourne (AU)

Progetto: Vibe Design Group, Hawthorn, Melbourne (AU)

Strutture: Cardno Grogan Richards, Fitzroy, Melbourne (AU)

Direzione lavori: Icon Synergy, Hawthorn, Melbourne (AU)

Lavori: novembre 2009-febbraio 2011

Superficie lotto: 694 m2

Superficie netta: 321 m2

Superficie esterna abitabile: 91 m2

Fotografie: Robert Hamer

Versatile eucalipto

In uno tra i quartiere più eleganti di Melbourne, caratterizzato da ville costruite nel periodo Art Decò e immersa in un contesto alberato, sorge questa abitazione la cui articolata volumetria deriva dalla sovrapposizione e compenetrazione due parallelepipedi Ma la costruzione si caratterizza anche per l’utilizzo di diverse specie di eucalipto Il rivestimento esterno è in doghe di Silvertop Ash (Eucalyptus sieberi), scelto per la provenienza locale e per la capacità di ingrigire con il tempo, donando all’edificio un senso di appartenenza all’ambiente circostante La rampa di accesso è realizzata in Corymbia maculata (Eucalyptus maculata) mentre i pavimenti sono in Eucalyptus microcorys ed Eucalyptus maculata L’accesso avviene attraverso una rampa che conduce a un ingresso completamente vetrato, schermato agli angoli a tutela delle zone più private A ovest lo sbalzo è sostenuto da pilastri inclinati di acciaio che richiamano i mobili retrò porta stereo degli anni ‘60 e ‘70, fonte di ispirazione anche per il fronte principale, mentre il volume superiore ospita le camere da letto

All’interno si viene accolti da una parete, completamente rivestita di pannelli impiallacciati in legno con porte a scomparsa, le cui venature verticali creano la sensazione di essere di fronte al tronco di un albero Questo nucleo centrale, con il guardaroba, un bagno di servizio, una piccola cantina e gli armadi incassati della cucina, è il fulcro attorno a cui si sviluppa tutta l’organizzazione funzionale del piano di mezzo, dall’ampia zona giorno alle aree più chiuse e riservate delle camere da letto e della zona studio/biblioteca Dalla cucina, il volume dell’area living, rivestito esternamente in fibrocemento, si proietta verso nord, contrastando con il retrostante guscio di legno; l’ampio taglio obliquo della finestra incassata nella struttura a protezione dell’irraggiamento solare porta lo sguardo alla piscina, al giardino e alla zona relax

Anche in questo caso il legno è l’elemento dominante, utilizzato come finitura delle pavimentazioni esterne e come rivestimento a doghe verticali del piano terra

L’edificio, realizzato con una struttura in legno a telaio con parti in acciaio, è progettato per sfruttare al meglio gli apporti solari gratuiti e per garantire il raffrescamento attraverso la ventilazione naturale L’acqua piovana, raccolta in un serbatoio di 6 000 litri, è utilizzata per i si-

59
3
sezione trasversale 60 legnoarchitettura 18 progetti
pianta del piano terra pianta del primo piano pianta del secondo piano pianta della copertura

La passerella in eucalipto porta all’ingresso della casa, protetto e schermato da una griglia di travetti e montanti

prestazioni energetiche

per riscaldamento = 32,3 kWh/m2 per raffrescamento = 8,8 kWh/m2

emissioni di CO2 evitate = 12 995 kg (telaio e travi portanti in legno, struttura in acciaio, rivestimenti esterni e interni, pavimenti e terrazze esterne)

Il calcolo è stato effettuato sulla base della seguente formula: 1 kg (legno) x 0,45 (contenuto di carbonio in 1 kg di legno) x 3,67 (CO2/C, rapporto tra anidride carbonica e carbonio)

61

La lunga finestra dell’area

living è arretrata rispetto al filo della facciata al fine di riparare l’ambiente interno dall’irraggiamento solare

62 legnoarchitettura 18 progetti

Sporgenza (A)

Traverse di legno (45x45), distanziate tra di loro di 45 mm, poggiano su travetti (90x45) e coprono la parte strutturale dello sporto Al di sotto di quest’ultimo, doghe in legno (70X45) distanziate di 45 mm costituiscono il sistema di rivestimento

Solaio esterno (B)

Pali armati di fondazione 100x100 in c a con protezione dalle termiti e travi in legno di cipresso formano la struttura della pavimentazione (legno o pietra)

Copertura (C)

La struttura portante isolata è in travi Joist a I (200x45) e travi lineari (45x90)

Parete (D)

La parete interna è a telaio finita con cartongesso da 10 mm. L’inclinazione della parete è creata con un’intelaiatura di sostegno in acciaio, struttura in travetti di legno e facciata ventilata in lastre di fibrocemento Il bancale della finestra è in alluminio

Solaio interpiano (E)

La struttura portante è realizzata in travi Joist a I (300x63) e tamponamento con pannelli in legno; il pavimento interno, a incastro maschio femmina, è in Eucalyptus Microcorys (specie nativa e comune del Nuovo Galles del Sud e del Queensland); il rivestimento esterno è in doghe di eucalipto

Silvertop Ash (Eucalyptus sieberi, specie molto diffusa nel sud-est dell’Australia), distanziate di 75 mm.

Parete primo livello (F)

La parete a telaio isolata è tamponata con pannelli di legno 45x90 e finita con rivestimento in doghe di eucalipto Silvertop Ash distanziate di 75 mm

Solaio contro terra (G)

Platea in c a su terreno e protezione anti termiti per struttura in legno. Rispetto al piano finito del solaio il terreno è più basso di 150 mm

Muro di contenimento verso terreno (H)

Il muro è realizzato con doppio laterizio da 300 mm con intercapedine

A ridosso del muro un sistema di drenaggio permette la raccolta dell’acqua piovana nel serbatoio di stoccaggio

63
sezione di dettaglio QQ
C D E F A B H G lounge lounge movie room / bed 4 movie room / bed 4
sezione di dettaglio YY

Copertura della pergola

d’ingresso (A)

Le travi, non trattate, della pergola di ingresso hanno dimensioni 120x4 e sostengono una copertura in vetro mediante agganci in acciaio

La grondaia in acciaio sul lato est di ingresso è appositamente studiata.

Pavimento d’ingresso (B)

Il piano di calpestio in legno ha il bordo zincato; la piastra è fissata mediante bulloni

1 piatto in acciaio galvanizzato per il fissaggio con viti degli elementi in legno della pergola

2 asta filettata con dadi e rondelle a 1000 mm dal piano di calpestio

Sul prospetto nord le aperture vetrate del volume rivestito in fibrocemento creano una continuità visiva con la parete vetrata della cucina.

64 legnoarchitettura 18
A 11 2 B entry 1 sezione di dettaglio ZZ

Due immagini della struttura mista acciaio e legno della parte a sbalzo sostenuta da pilastri di acciaio

L’ossatura della zona living con al piano terra le aree di servizio La struttura intelaiata in legno è integrata da elementi in acciaio.

Le tre fotografie a lato evidenziano la realizzazione del volume al terzo livello, completamente in legno.

Posa del rivestimento a doghe verticali e orizzontali sul telo di tenuta all’aria

65

Architekturbüro Jungmann & Aberjung Design Agency

Ufogel

Nußdorf-Debant (A)

68 legnoarchitettura 18 progetti
lato
la
fumaria in rame della stufa 2
2 1
1 Il
ovest, con
canna
L’angolo nord-est con l’ingresso 3 Il lato sud con la grande vetrata panoramica.

3

Ubicazione: Nußdorf-Debant (A)

Progetto: arch DI Peter JungmannArchitekturbüro Jungmann; DI Lukas Jungmann - Aberjung Design Agency, Lienz (A)

Strutture: Holzbau Unterrainer GmbH, Ainet (A)

Direttore dei lavori: arch DI Peter Jungmann, DI Lukas Jungmann

Lavori: settembre 2011-maggio 2012

Superficie fondiaria: 500 m2

Superficie utile: 45 m2 (60 m2)

Superficie verde: 500 m2

Importo dell’opera: 180.000 €

Fotografie: Lukas Jungmann

Un UFO di legno sulle Alpi austriache

Situato su un pendio erboso nel paese di Nußdorf presso Lienz, nel Tirolo orientale, questo piccolo e inusuale edificio in legno è una casa per vacanze che può ospitare fino a 4 persone in meno di 50 m2 di superficie calpestabile

Sollevata da terra tramite una struttura metallica a sei gambe ancorata a pali di fondazione, la costruzione è realizzata interamente in legno, rivestita all’interno con pannelli a vista e, all’esterno, con tradizionali scandole di larice

Il nome che gli è stato dato, Ufogel, ha un suo significato semantico poiché può sembrare sia un oggetto alieno atterrato sul prato sia un uccello (Vogel in tedesco) preistorico dalle forme bizzarre e arcaiche

Prefabbricato in officina e realizzato con elementi strutturali in X-lam con legname di provenienza locale, l’edificio è stato costruito in tempi brevi minimizzando gli sprechi

Una tettoia (la coda o il becco dell’uccello preistorico?) ripara l’ingresso che si raggiunge con pochi, larghi scalini

Internamente, lo spazio si sviluppa su 45 m2 calpestabili ed è ammobiliato in modo essenziale e funzionale con un angolo cucina, provvisto di una panca a scomparsa per guadagnare ulteriore spazio, se necessario, un wc con doccia, una camera da letto matrimoniale affiancata da un vano con un ulteriore letto e un soppalco con vista panoramica sulle Alpi

La casetta è riscaldata attraverso un impianto radiante a pavimento, supportato da una stufa a legna dalle forme moderne

Il progetto nasce in realtà all’interno di un concorso per un bivacco, di cui mantiene ancora qualche eco nelle forme interne, chiuse da un guscio rotondeggiante e protettivo, ma si sviluppa poi in una direzione imprevedibile: una casa per vacanze da affittare Una casa che può anche essere ordinata e acquistata, una sorta di prototipo replicabile e realizzabile pressoché ovunque, anche sull’acqua

69
pianta livello d’entrata
Legenda: 1 ingresso 2 blocco cucina 3 zona living 4 zona di relax presso la finestra 5 dispensa 6 wc 7 bagno 8 doccia 9 camera da letto principale 10 camera da letto aggiuntiva 11 spazio vuoto 1 2 3 4 5 6 7 8 9 10 11 11
pianta livello superiore Vista da est

prestazioni energetiche

fabbisogno energetico per riscaldamento: 65,14 kWh/m2 anno

71
sezione EE sezione FF

Fasi del piano di costruzione

1 realizzazione dei pali di fondazione metallici (“gambe dell’uccello”)

2 posa del solaio di base su struttura in travi d’acciaio HE

3 posa delle pareti portanti prefabbricate in X-lam

4 posa del solaio intermedio

5 posa delle pareti interne secondarie

6 posa dell’involucro

7 posa della copertura

8 costruzione degli abbaini

9 posa del “becco” d’ingresso

10 posa delle scale interne

11 posa dei telai delle finestre

12 posa dei telai delle finestre

13 posa delle superfici vetrate

14 posa dell’isolamento esterno a cappotto (160 mm)

15 posa del rivestimento esterno in scandole di legno

72 legnoarchitettura 18 progetti
piano di costruzione

4

La camera da letto principale

5

Lo spazio per il relax, ricavato a mezza altezza tra la zona living e le camere da letto al livello superiore, con vista sulle Alpi del Tirolo.

6

La zona living al livello più basso; sulla destra, il blocco cucina

La stufa a legna dal design moderno è di supporto al sistema di riscaldamento radiante a pavimento, collegato al teleriscaldamento

73 4 5 6

La scala che conduce al livello superiore, dove sono collocati i letti e il bagno, e il livello di mezzo, pensato per fungere da zona relax con vista panoramica

74 legnoarchitettura 18 progetti
75

UID architects

Peanuts Nursery

Fukuyama (J)

1 1 2 Due viste dell’area gioco dell’asilo 78 legnoarchitettura 18 progetti 2

Ubicazione: Fukuyama-City, Hiroshima (J)

Progetto: Keisuke Maeda - UID architects, Fukuyama-City, Hiroshima (J)

Strutture: Yasutaka Konishi - Konishi

Structural Engineers

Progettazione del verde: Toshiya

Ogino - Toshiya Ogino Environment

Design Office

Appaltatore: Kakuta Hiroki - Home Co. Ltd

Lavori: agosto 2011-marzo 2013

Superficie utile: 118,74 m2

Superficie verde: 1 501,81 m2

Fotografie: © UID photo: Hiroshi Ueda

Una nocciolina come asilo

Quella dell’arachide è la metafora adatta per definire la scuola dell’infanzia Tsukushi di Fukuyama (J), non lontano da Hiroshima, che lo studio UID architects ha realizzato un paio di anni fa

La piccola costruzione è caratterizzata dalle pareti curve, dall’ampio utilizzo del legno lasciato a vista e dalle grandi finestre che riempiono lo spazio di luce naturale L’asilo, inoltre, è circondato da un giardino che i bambini sono incoraggiati a esplorare per connettersi con la natura, nelle varie stagioni dell’anno L’utilizzo di forme organiche, invece che di angoli rigidi, rispecchia le ondulazioni e le forme dell’ambiente circostante, oltre che le convinzioni concettuali dell’architetto, per il quale gli esseri umani e tutte le altre creature esistono come parte integrante di un ambiente e l’architettura, come parte di un luogo in cui stare, esiste a sua volta come uno scenario nell’ambiente

Progettato sovrapponendo due cerchi a creare, appunto, la forma di una nocciolina americana, la struttura aperta e piena di luce permette ai suoi piccoli fruitori di fare esperienza del cambio delle stagioni e del divenire della natura

L’architetto ha pensato anche alle proporzioni degli ambienti: per esempio alle modulazioni dello spazio, soprattutto nella sezione che segue le variazioni di livello del terreno, e che rendono l’ambiente “mobile”, così come lo è natura, mai ferma ma in divenire

Dal punto di vista della distribuzione interna, si tratta di un open space in cui trovano luogo sia la parte più “amministrativa” (con bagni e uffici) sia gli spazi dedicati propriamente ai bambini Ciò permette anche, alle educatrici e al personale, un controllo visivo continuo dei piccoli, ad esempio grazie alle scrivanie dell’amministrazione alla stessa altezza della stanza gioco dei bambini

79

Legenda:

1 entrata

2 stanza dei bimbi più piccoli

3 armadio

4 stanza per l’allattamento

5 ufficio

6 stanza del bagno

7 dispensa

8 foresta delle esplorazioni

9 galleria pianta

3 Vista del lato sud dell’asilo 80 legnoarchitettura 18 progetti 3

Il sistema costruttivo dell’asilo nido di Fukuyama è dato da un telaio in legno lamellare, in cui i montanti danno l’impressione di essere dei setti monolitici in lamellare, di forma rastremata, e le travi sono curve, a seguire la pianta dell’edificio. In realtà, i setti sono a loro volta realizzati con una struttura a telaio e rivestiti con doghe di legno che presentano fughe di spessore minimo

4

Una parte del camminamento perimetrale interno, con le panche tra i setti portanti in telaio ma rivestiti in doghe di legno di cedro, così da dare l’impressione di setti monolitici

81
4
assonometria costruttiva

Parete, dall’esterno:

- pannelli in legno di cedro (15 mm)

- controlistelli orizzontali (15x45 mm)

- listelli verticali (15x45 mm)

- membrana traspirante impermeabile

- legno compensato strutturale (12 mm)

- isolamento in lana di vetro (100 mm)

1 fermavetro

2 lucernario con vetro di sicurezza isolante basso emissivo (8+6+8)

3 guida per la tenda

4 schermatura in legno lamellare

5 compensato strutturale (28 mm)

6 pavimentazione

7 calcestruzzo finito a frattazzo con rivestimento impermeabile traspirante

8 panca in compensato strutturale (28 mm), vernice protettiva trasparente

9 dislivello realizzato con malta idraulica

10 riscaldamento a pavimento e isolamento termico (50 mm)

5 6

Il percorso perimetrale interno che circonda la zona dedicata ai giochi La natura entra a tutti gli effetti nell’edificio.

Le panche, poste tra un setto e l’altro, sono di differente altezza per adattarsi ai bambini di diversa età

82 legnoarchitettura 18 progetti 1 2 3 4 5 6 7 8 9 10 1 5
dettaglio costruttivo
83 6

Accanto, l’armatura della fondazione

A destra, un fase avanzata delle fondazioni, con l’impermeabilizzazione esterna e le basi per le strutture lignee verticali

La struttura portante

a telaio di legno coadiuvata da travi metalliche.

Gli elementi verticali non sono ancora stati rivestiti con le doghe, che conferiranno loro l’aspetto di setti lignei

1 calcestruzzo con finitura a frattazzo con rivestimento impermeabile traspirante

2 struttura impermeabile in compensato (9 mm)

3 pavimentazione in legno di cedro con vernice protettiva, isolamento (45 mm)

Copertura, dall’estradosso:

- impermeabilizzazione in plastica fibrorinforzata

- pannello in calcio silicato (5 mm)

- struttura impermeabile in compensato (9 mm)

- isolamento in fibra di legno (50 mm)

84 legnoarchitettura 18 progetti
1

La struttura portante del tetto piano in fase di montaggio

A sinistra, le travi portanti della copertura in legno lamellare; i montanti verticali, coperti poi da doghe, sono invece in legno massiccio

A destra, un momento della tradizionale cerimonia giapponese di buon auspicio durante la quale vengono gettati dei dolcetti di riso ai bambini, i quali, prendendoli, augurano un buon esito della costruzione, sia dal punto di vista della sicurezza che della riuscita estetica.

85
2 3 1
sezione longitudinale di dettaglio

techné Hello Wood

Da cinque anni in Ungheria ogni estate viene organizzata una settimana dedicata al legno, in particolare alla realizzazione di opere d’arte, strutture architettoniche, oggetti, concept spaziali che mettono in evidenza tutte le caratteristiche fisiche e meccaniche di tale materiale.

In questo breve periodo di tempo i futuri designer e architetti sviluppano e creano un progetto coadiuvati da capisquadra provenienti da studi di progettazione internazionali, condividendo esperienze lavorative e quotidianità L’obiettivo è potenziare la creatività indipendentemente dalla tecnologia informatica e dar vita a un nuovo modo di studiare l’architettura, unendo teoria e pratica in progetti che apparentemente sembrano semplici

In tutte le edizioni è stato stabilito un tema sul quale le varie squadre hanno dovuto cimentarsi, sfruttando al meglio le potenzialità e la versatilità del materiale.

Nel 2014 i partecipanti a questo campus hanno affrontato il concetto di “equilibrio” ideando e costruendo installazioni molto diverse tra di loro e declinando il concetto di equilibrio sotto molteplici aspetti.

Ma Hello Wood, questo il nome del progetto, non è soltanto questo!

Hello Wood 2014 Il legno: equilibrista per natura

Sopra, in primo piano l’installazione Cornwalk, sullo sfondo, il Tumbleweed (foto: Tamás Bujnovszky / © Hello Wood)

Ispirato al successo del danese Wood Festival, nel 2010 è nato in Ungheria Hello Wood, un programma artistico internazionale che integra varie discipline quali arte, design, architettura e scienza e che propone ogni anno un tema differente su cui lavorare Hello Wood, infatti, coordina ogni estate un campo estivo di una settimana dedicato alla progettazione e costruzione di installazioni in legno, coinvolgendo giovani studenti di architettura e di design che, supportati da professionisti internazionali dallo sviluppo del progetto alla fine del workshop, acquisiscono un’esperienza professionale grazie al lavoro di squadra L’obiettivo finale di Hello Wood è dunque fornire un’opportunità agli studenti per sperimentare concretamente gli apprendimenti teorici e imparare un nuovo modo di approcciarsi all’architettura, all’arte, al design con contenuti e pratiche che completano il tradizionale sistema educativo delle Università

Oltre al laboratorio estivo, Hello Wood realizza una serie di installazioni per manifestazioni o spazi pubblici e organizza un Hello Wood Junior Camp, dove bambini/adolescenti (9-14 anni) e ragazzi (15-19 anni) hanno la possibilità di scegliere uno dei workshop che maggiormente si avvicina ai loro interessi (fotografia, film, animazione, moda, architettura, design e grafica) Hello Wood Factory (WOOF), infine, fornisce l’opportunità a giovani archi-

Hello Wood Team
88 legnoarchitettura 18 techné

tetti e designer di tradurre le loro idee concretamente sotto la guida di professionisti riconosciuti (per progetti multidisciplinari e/o concorsi internazionali); questa possibilità ha l’obiettivo di costituire un team consolidato di progettisti di campi diversi – tra cui anche economisti, sociologi, ingegneri – che possano attuare le migliori soluzioni secondo una prospettiva più ampia e non limitata al puro e semplice design

Nella prima edizione del 2010 di Hello Wood, che ha visto la partecipazione di 22 studenti, sono state create 6 opere, contraddistinte per qualità architettonica, strutturale e artistica; più che raddoppiati i partecipanti nel 2011, 55 studenti provenienti da 11 Università unghe-

resi ed europee, che hanno realizzato lavori, esposti in seguito al Valley of Arts Festival a Kapolcs, al Sziget Festival e infine al Design Week di Budapest L’anno seguente, il 2012, il laboratorio internazionale si è svolto a Dédestapolcsány nella provincia di Borsod, con quasi 200 partecipanti che hanno progettato opere d’arte per alcuni villaggi preselezionati al fine di sostenere la vita quotidiana di questi piccoli centri abitati grazie al valore estetico e funzionale di questi lavori Hello Wood 2013 ha dato l’opportunità a 120 giovani designers e progettisti di interfacciarsi con le migliori menti creative affrontando la sfida lanciata dagli organizzatori, Step C lo s e r!, ovvero cercare di rafforzare i legami tra per-

sone, natura e ambiente costruito e, al contempo, motivare le giovani forze creative a uscire dal loro mondo moderno, urbano e digitale

2014: giocare/divertirsi con l’EQUILIBRIO

Oltre 100 studenti giunti da 30 nazioni sono stati chiamati a realizzare 14 installazioni sul tema dell’Equilibrio, uno stato e una situazione che noi, nelle nostre affrettate vite odierne, abbiamo perso di vista A guidare gli studenti e a rivestire il ruolo di capisquadra sono stati gli studi Miralles-Tagliabue EMBT, Somewhere Something con sede a Los Angeles, MJÖLK dalla Cechia, MOOMOO dalla Polonia, CODA da Barcellona, OPVIS di Rotterdam, EXPEDITIO da Belgrado e Sporaarchitects dall’Ungheria, per citarne solo alcuni Il piccolo progetto universitario del 2010 si è quindi trasformato in una comunità internazionale che per una settimana all’anno vive in simbiosi personale e professionale plasmando tale esperienza per renderla fonte di ispirazione per l’avvenire La concretizzazione dell’idea in un progetto, la sua realizzazione, i giorni passati sul campo sono importanti tanto quanto il risultato finale, in quanto i giovani futuri architetti o designer sono posti allo stesso livello di architetti e di designer di fama internazionale e lavorano per sette giorni a stretto contatto gli uni con gli altri a un progetto da costruire entro la fine della settimana Ambientato per il secondo anno nella bucolica cornice di Csórompuszta, la sfida del “giocare con l’equilibrio” ha prodotto idee e lavori che hanno messo al centro della ricerca l’equilibrio, generato soprattutto da concetti opposti, ma che hanno suscitato anche divertimento tra i partecipanti Vediamo in breve i 14 progetti

Hello Wood è stato fondato da due architetti e un designer ungheresi Péter Pozsár (Reflekt Studio), docente presso l’Università di Arte e Design Moholy-Nagy, nei suoi progetti coinvolge sempre committenti e popolazione poiché l’architettura deve impattare il meno possibile sulla società.

András Huszár (HA Architects) ha organizzato una serie di seminari sull’architettura in legno per MOME (Moholy Nagy Mu vészeti EgyetemUniversità di Arte e Design Moholy-Nagy) durante il Valley of Arts Festival e il DEMO Camp; nei progetti di Hello Wood porta la sua esperienza, le idee e l’energia del costruire insieme.

Dávid Ráday (Proud), art director di Hello Wood, è proprietario e direttore creativo di uno studio che si occupa della realizzazione di pellicole creative

Nóra Vásony, responsabile della comunicazione del progetto Hello Wood, ha acquisito una grande esperienza dai suoi precedenti lavori, in particolare presso Joshua/G2 a Londra.

A sinistra, un dettaglio dell’installazione FAbrick, in alto, l’interno di Spikefort (foto: Tamás Bujnovszky / © Hello Wood).

89

Sopra, una foto all’imbrunire dello SPACEship

A destra, il Forcefields, pensato per adattarsi a qualsisasi tipo di terreno. Sotto, le pareti a fisarmonica dell’Accordion.

(foto: Tamás Bujnovszky / © Hello Wood)

SPACEship

A parere dei due capitani del team, András Cseh di CZITA Architects (HU) e Jelena Pejkovic di ExpeditioBelgrado (SRB), “l’equilibrio è una scienza missilistica” che è quasi impossibile da raggiungere; il legno, per quanto sia un bellissimo materiale naturale con imperfezioni dovute alla presenza di nodi e fibre, non è teoricamente adatto a costruire una navicella spaziale ultra tecnologica Tuttavia, attraverso il significato di dualità, è possibile raggiungere la singolarità mediante un processo di astrazione: grazie a questo concetto, la squadra ha realizzato un’opera cinetica posta in equilibrio su una base e bilanciata dagli “astronauti” stessi (da 2 a 10 persone) che decidono se ricercare l’equilibrio o far muovere l’astronave

Accordion

Elias Lindhoff (SE) e Sebastian Mardi (DK), durante questi anni di partecipazione al camp di Hello Wood, hanno portato avanti una ricerca sulle possibilità strutturali del legno come materiale da costruzione, sfruttandone le capacità portanti e la resistenza alla trazione

Da questo percorso nasce l’idea, condivisa insieme ai giovani partecipanti e realizzata senza l’aiuto di sistemi informatici e meccanici, di costruire un piccolo padiglione a forma di croce con pareti trasparenti A un corpo centrale formato da travi di legno pesanti, ma allo stesso tempo flessibili, che si tengono in equilibrio strutturale tra tensione e rigidità, si contrappone un rivestimento esterno, molto leggero, che ricorda il mantice di una fisarmonica, costruito solamente con legature e senza connessioni metalliche

L’edificio così realizzato è in costante contatto fisico con l’ambiente grazie alla luce e al vento che gioca con la struttura leggera come l’aria con il mantice della fisarmonica L’obiettivo è far sperimentare all’utente il peso, la leggerezza, la duttilità di un elemento architettonico, che può essere scalato fino in cima per godere del paesaggio o che crea uno spazio silenzioso dotato di panchine al suo interno

Forcefields

Per ricercare l’equilibrio tra progettazione parametrica e concretizzazione del progetto con materiali e tecniche tradizionali, la squadra dell’arch Biayna Bogosian dello studio californiano Something Somewhere ha creato un’installazione flessibile costituita da una piattaforma sopraelevata di piani inclinati e da montanti cilindrici di differente lunghezza che possono essere spostati e infilati in altri fori predisposti sul basamento Questo cambiamento di posizione consente all’opera di adattarsi alla conformazione di qualsiasi terreno e, di conseguenza, di mutare la propria forma, in una sorta di adeguamento ambientale che ben ricorda l’adattamento delle piante all’habitat in cui esse si sviluppano

A dimostrazione di tale concetto, l’equilibrio che si

90 legnoarchitettura 18 techné

adatta al sito, il team ha scelto una zona in pendenza dove è stato possibile muovere i bastoni e cambiare l’aspetto dell’installazione, la quale prevede un’area piana da usarsi come posto a sedere per chi vuole stare da solo e zone inclinate per coloro che, invece, vogliono scoprirne la dinamicità

Spikefort

Bence Pap (Studio Lynn) e Oliver Sales (DOP ARCHITECTURE), i capi squadra di questo progetto, hanno coinvolto gli studenti ancora prima dell’inizio della settimana di workshop chiedendo loro di definire il concetto e la forma di una struttura simile a una torre Il risultato è una suggestiva struttura che si sviluppa in verticale, costruita per rispondere alla direzione del vento con una facciata che, benché fissata con sicurezza alla costruzione, può ondeggiare L’installazione, sviluppata in altezza, ha una colonna vertebrale interna, ben visibile e identificabile, che le fornisce l’equilibrio, mentre all’esterno la pelle è composta da elementi che formano un caleidoscopio in costante movimento basculante La torre esplora dunque l’equilibrio tra interno ed esterno grazie a una organizzazione interna ben definita, mediante l’uso di piattaforme con posti a sedere e di scale che ne permettono la scalata, e con un rivestimento esterno solo apparentemente caotico

Odyssey” il quale, come un totem, trascende il tempo e lo spazio Allo stesso modo, anche questo strumento è come un totem le cui corde giganti formano suoni antichi; Woodwox è, infatti, una struttura viva che allarga la percezione del suono a tutta l’area del campus quando le sue corde emettono onde vibranti alla ricerca dell’equilibrio diffondendo una voce unica; ma non solo: considerando che è possibile anche ascoltare la voce dello strumento dal suo interno, si sperimenta l’equilibrio direttamente all’interno della cassa armonica in cui è possibile entrare Per la realizzazione di questa opera è stata chiesta la consulenza tecnica di professionisti del suono e di costruttori di strumenti musicali, i quali non sono stati in grado di aiutare la squadra nel loro progetto a causa delle imponenti dimensioni dello strumento

Cornwalk

Sotto la guida di Ákos Juhász (il nuovo responsabile dello studio di architettura MOME di Budapest) e di Dániel Eke (KÖZTI) è nata questa installazione ispirata dal paesaggio e contestualizzata nel sito: una semplice rampa di 40 metri che sale sopra un campo di granoturco su cui sembra galleggiare e stare in equilibrio È una linea diritta nel mais che inizia da un terreno leg-

Sopra, lo strumento musicale di grandi dimensioni del Woodwox mentre viene testato da alcuni visitatori A sinistra, la torre dello Spikefort. Sotto, un dettaglio del Cornwalk. (foto: Tamás Bujnovszky / © Hello Wood)

La realizzazione di uno strumento in legno a corda sovradimensionato permette di ricercare l’equilibrio tra la natura e l’essere umano È questa l’idea del team (Vadász Orsolya - Sporaarchitects; Szabó Bulcsú, Szakál Andrea - BLOKK; Építész Műhely; Barcza Gergő) che prende ispirazione dal monolite nero di “2001: A Space

Woodwox

Il Mochi di ispirazione giapponese in primo piano e, sullo sfondo, la “palla” del Tumbleweed

(foto: Tamás Bujnovszky / © Hello Wood)

Sopra, una parte del percorso del Labyrinth, realizzato con due soli tipi di elementi lignei (foto: Tamás Bujnovszky / © Hello Wood)

germente in pendenza e che sale verso il sole nascente 440 gambe, semplici telai ad A realizzati senza alcuno strumento di misura e costituiti da elementi legati a quattro a quattro, sostengono la struttura, modificandosi gradualmente in lunghezza così da incrementare l’altezza della rampa che scompare in mezzo alle alte piante di mais L’obiettivo di donare non solo un’esperienza speciale a chi percorre la “camminata”, che sembra perdersi nel vuoto, ma anche creare una coreografia unica è stato raggiunto

Mochi

Assieme al team leader, lo spagnolo Pep Tornabell (CODA), gli studenti hanno realizzato un’installazione che gioca con la flessibilità del legno, nello specifico con sottili strisce al fine di creare una struttura leggera e autoportante che esprime con la sua forma l’equilibrio tra la forza del legno come materiale e la forza di gravità che agisce su di esso Il progetto, infatti, esplora come il materiale “legno” possa dare origine alla forma attraverso la sua topologia, connettendo le caratteristiche della materia, in questo caso la direzione delle fibre, con il suo possibile rendimento in termini meccanici Prendendo il nome dal dolce giapponese mochi

che, realizzato con un tipo di riso appiccicoso chiamato mochigome, esprime l’equilibrio tra viscosità ed elasticità, il prodotto finale non è una struttura fragile, pur essendo flessibile e compatta È un esperimento per testare, visto che il legno è stato utilizzato in modo da creare tensioni attive nella struttura, come le proprietà di un materiale caratterizzino la forma e come esse si adattino ai punti di connessione e agli archi interni Il risultato è una struttura reticolare curvilinea morbida e stabile che potrebbe diventare un luogo di socialità

Labirynth

Per lo studio EMBT Miralles Tagliabue, presente a Hello Wood 2014 con Salvador Gilber Sanz, la sfida del progetto è stata la costruzione dell’installazione senza far uso di viti, chiodi o altri supporti, se non in legno, e l’utilizzo di solo due differenti misure di sezioni di legno, una per la struttura e una per la piattaforma Nonostante queste limitazioni, gli studenti hanno creato un’opera relativamente complessa, una piattaforma sopraelevata che si snoda tra gli alberi e il cui scopo è offrire una vista del sole al tramonto Labirynth è stato costruito in modo da non abusare dell’equilibrio naturale e artificiale, lasciando che il labirinto simboleggi l’abbandono all’equilibrio interiore dell’uomo come nei labirinti di ispirazione greca, dove l’uomo cerca se stesso La struttura che regge la piattaforma è una successione non regolare di telai, costituiti da elementi di diversa lunghezza (2,5 e 5 m), uniti tra di loro mediante particolari nodi a incastro e cavicchi di legno, tutto a sostenere la passerella formata da elementi di 1,5 e 3 metri

Fireball

Fin dalle lezioni alla scuola primaria, i due architetti di Mjölk Architects (CZ), Jan Mach & Jan Vondrák, hanno sempre sognato i viaggi di esplorazione, gli astronauti e gli inventori In particolare, hanno posto l’attenzione sui primi aeronauti – i fratelli Montgolfier – da cui hanno tratto ispirazione per creare durante il workshop una sorta di hangar esagonale da cui far decollare, grazie

92 legnoarchitettura 18 techné

all’aria calda, delle piccole e leggere sfere di tessuto

L’installazione è costituita da una serie di profili in legno calcolati secondo una geometria predefinita, incollati nella loro forma finale e rivestiti con una tela sottile ricavata dallo spazio che ha ospitato i seminari di Hello Wood Grazie al calore prodotto da alcune cucine a gas con adattatori di luce, il palloncino luminoso a forma di diamante ha effettivamente preso il volo

FAbrick

L’equilibrio deve essere mantenuto anche nell’Ambiente e pertanto è necessario non sprecare alcuna risorsa È questa la motivazione da cui nasce il lavoro del team capitanato da Moomoo Architects (PL), rappresentati nel campus da Lukasz Pastuszka, ovvero la riutilizzazione del materiale ligneo scartato dalle altre squadre, creando due muri alla ricerca dell’equilibrio Le due pa-

reti si caratterizzano per due superfici completamente diverse, una con i bordi esterni grezzi, affilati e caotici dove si sottolinea l’aspetto diverso e irregolare dei materiali usati dalle varie squadre, l’altra liscia e levigata dove ogni singolo pezzo raccolto è leggibile E in questa dicotomia si ristabilisce l’equilibrio con l’ambiente, adoperando tutto il materiale scartato e generando anche un altro tipo di equilibrio, quello tra tutti i team di lavoro, in quanto FAbrick rappresenta il lavoro di tutti!

Barny

Secondo l’architetto e artista olandese Frank Havermans, l’architettura contemporanea affonda le sue radici nell’architettura rurale, comune per tipologia a tutte le popolazioni, anche se i materiali disponibili e le tecniche costruttive ne segnano le differenze peculiari e geografiche

Con l’emergere di un nuovo stile di vita le vecchie fattorie sono state modernizzate, determinando una nuova cultura del paesaggio, dove gli antichi edifici e i metodi costruttivi sono stati persi di vista Tuttavia, attraverso lo studio di metodologie, che possono apparire superate, è possibile imparare e affinare le tecniche Barny è questo, una rilettura dei vecchi fienili, la cui

struttura rimane a vista: solo tre fotogrammi ritti senza pareti, solitari, in equilibrio in mezzo al campo a testimonianza del patrimonio architettonico

Con il legno multistrato sono stati costruiti tre tralicci che non devono sostenere un tetto ma devono enfatizzare in modo autonomo ciò che normalmente è nascosto dalle pareti

Shower Power

L’idea per questa installazione è da ricercarsi nell’esperienza di Hello Wood 2013 e, in particolare, nel fatto che i progettisti hanno lavorato ogni giorno sotto il sole estivo senza potersi rinfrescare Per tale motivo, Suzana Milinovic e Rufus van den Ban dell’Università di Delft (NL) hanno pensato all’equilibrio come il giusto bilanciamento tra lavoro e relax, creando una “installazione-doccia” che aiutasse gli architetti e gli studenti a rinfrescarsi dopo una giornata di lavoro

A partire dal concetto che il legno non è un materiale impermeabile, si è deciso di seguire il percorso dell’acqua dall’alto, realizzando una struttura con una copertura da cui l’acqua scende verso il basso creando piccoli ruscelli La squadra ha costruito uno spazio multifunzionale che prevede una doccia, una vasca e un

In alto, l’installazione FAbrick, creata recuperando il materiale di scarto delle altre installazioni di Hello Wood

A sinistra, la leggerezza della struttura del Fireball, che ospita dei palloncini di tessuto pronti per varcare i cieli. Sopra, un’immagine notturna dell’archetipo del fienile, il Barny (foto: Tamás Bujnovszky / © Hello Wood)

93

A destra, la Showerpower (foto: Tamás Bujnovszky / © Hello Wood)

Sotto, l’area ricreativa

di Hello Wood, il Playground (foto: Tamás Bujnovszky

Tamás Bujnovszky – Simon Platter / © Hello Wood).

In basso, l’installazione

Tumbleweed e, sullo sfondo, una parte della Cornwalk (foto: Tamás Bujnovszky / © Hello Wood)

catino, le cui forme nascono dal flusso seguito dall’acqua

Playground

I responsabili (Architecture Uncomfortable Workshop, Karolina Szabados, Lukács Szederkényi, Gergo Szacsvay, Dénes Emil Ghyczy, Péter Boronkay) hanno notato che nelle precedenti edizioni di Hello Wood i partecipanti effettuavano piccole pause durante le quali costruivano giochi e giocattoli Pertanto il progetto Playground si è focalizzato sulla creazione di una serie di giochi (oltre 20) da utilizzare in una specifica area dove tutto è possibile Una sola regola: i partecipanti al gioco dovevano entrare nello spazio predisposto lasciandosi alle spalle tutte le costrizione della loro evoluzione caratteriale ritornando bambini, in modo tale che il gioco fosse l’unico protagonista e che le regole nascessero spontaneamente La ricerca dell’equilibrio per questo team è stata l’esplorazione del modo in cui elementi puri dello spazio si integrano con il gioco, con l’oggetto, alla ricerca del fattore più significativo, ovvero il senso di appartenenza a una squadra

Tumbleweed

Csaba Hatvany è il “resident artist’” di questa edizione di Hello Wood 2014 Tra i proprietari del sito di Csórompuszta, dove vive stabilmente, egli ha deciso di realizzare una sorta di “asciuga erbacce” che sembra improvvisato, ma che in realtà è sostenuto da una geometria complessa Dalle sue opere, che testano nuovi agganci, nascono strutture intrecciate e sculture che si muovono, e dalla natura, nasce Tumbleweed, una installazione composta da 90 barre cilindriche di legno intrecciate, leggera come la carta, ma resistente come il legno, una dualità che mantiene l’opera sempre in equilibrio

94 legnoarchitettura 18
Fasi della costruzione di alcune delle
installazioni
di Hello Wood
95
(foto: Tamás Bujnovszky / © Hello Wood)

Elementi multistrato con viti di legno

Tutto inizia in un paesino della Foresta Nera, nel sud della Germania, dove una ditta a conduzione familiare propone una tecnica che unisce gli strati di legno in modo innovativo: un pannello X-Lam in cui le tavole, a orientamento orizzontale, verticale e diagonale, sono unite con viti di legno di faggio Una filettatura all’interno del fori predisposti nei pannelli permette l’inserimento preciso delle viti di faggio che non trapassano il pannello ma, arrestandosi a circa metà dell’ultimo strato, lasciano intatta la superficie interna della parete consentendo di lasciarla a vista

Il legno utilizzato per la realizzazione di tutti gli elementi strutturali del sistema viene tagliato in inverno, essiccato per alcuni mesi all’aria aperta e successivamente in forno

Le caratteristiche più evidenti di questo sistema costruttivo, grazie anche agli accorgimenti in fase di posa, possono essere riassunte nella grande capacità di isolamento sia termico sia acustico, nell’elevata stabilità e nella sicurezza antincendio. Il sistema brevettato a pannelli portanti con viti non passanti è l’unico del suo genere ad avere ottenuto, nel 2011, il Benestare Tecnico Europeo ETA 11/0338.

sistemi

Elementi multistrato con viti di legno

Il sistema Nur-Holz, evoluzione ecologica e tecnologica del pannello multistrato X-Lam, è caratterizzato da un’elevata sostenibilità dovuta all’utilizzo di solo legno di prima scelta (nur Holz = solo legno, in tedesco) e alla metodologia di produzione dei singoli elementi e della costruzione del manufatto edilizio

La materia prima, legno di conifera della Foresta Nera, proviene esclusivamente da piantagioni certificate PEFC e le sue qualità sono preservate poiché viene raccolto solo durante il periodo invernale ed essiccato a lungo e in modo naturale, rendendolo così resistente all’attacco di funghi e insetti, senza l’utilizzo di prodotti chimici Lo sviluppo di questa soluzione, partito dalle conoscenze tramandate sulle costruzioni in legno e dalle capacità imprenditoriali, ha portato i componenti del sistema a essere testati in numerose prove e quindi sviluppati fino a essere pronti per il mondo delle costruzioni

Gli elementi base dei singoli pannelli strutturali, siano essi pareti o solai, sono realizzati con tavole di legno di conifera di diverso spessore, disposte in modo incrociato, che vengono collegate le une alle altre attraverso viti di faggio indurito per formare elementi strutturali compatti in legno massiccio E proprio grazie all’impiego di viti di faggio è possibile rinunciare a colla, metallo o tasselli, mantenendo l’unitarietà di materiale

Durante la costruzione dei pannelli vengono effettuati i fori filettati in cui poi verranno avvitate le viti di faggio che, una volta inserite, sfruttano il passaggio di umidità del legno come ulteriore fattore di stabilizzazione Le viti, infatti, hanno un’umidità inferiore rispetto a quella presente nelle tavole (6-8% contro il 12-13% delle tavole) e, gonfiandosi a causa del bilanciamento dell’umidità, creano un’ulteriore forza di tenuta Le viti consentono di evitare i fori passanti arrivando a metà dell’ultimo strato di tavole così da garantire una faccia del pannello gradevole anche se lasciata a vista

Dal punto di vista della produzione, dopo essere stato nella camera di aerazione e quindi di essiccazione, il legno viene lavorato senza venire in contatto con elementi di natura sintetica, sostanze chimiche, colle o pellicole

Una volta effettuata la stratificazione delle tavole, incrociate tra di loro a 90° e a 45°, dei macchinari CNC praticano

98 legnoarchitettura 18 sistemi sistemi costruttivi

Nur-Holz è marchio registrato dalla ditta Rombach, una falegnameria a conduzione famigliare dal 1934 Il sistema nasce ufficialmente nel 2009 e si presenta come uno dei più ecologici presenti sul mercato per quel che riguarda le costruzioni in legno massiccio In Italia, il istema Nur-Holz è commercializzato da Casa Salute, con sede a Magré (BZ)

I disegni e le immagini delle pagine seguenti sono stati messi a disposizione da Rombach Holzbau e Casa Salute.

i fori filettati in cui verranno inserite le viti di faggio, producendo pannelli di dimensioni massime di 3,2 x 9 m Poiché il sistema di produzione è altamente meccanizzato e si lavora solo su progetto, già in questa fase è previsto il taglio di porte e finestre, permettendo un risparmio di materiale fino al 30% Il taglio degli elementi è demandato a macchinari che sfruttano la tecnologia laser per la demarcazione dei profili Il pannello passa quindi in un macchinario che elimina le teste delle viti, fresa le superfici ed effettua, se necessario, le scanalature e le canaline per il passaggio degli impianti Per impedire il passaggio dell’aria attraverso il pannello, si pialla un profilo maschio-femmina nelle tavole di finitura più esterne

I pannelli portanti per pareti e solai I pannelli sono costituiti – a seconda del tipo – da almeno tre strati di tavole Per i diversi utilizzi nelle pareti, nei solai e nelle coperture, sono stati sviluppati 24 diversi elementi con spessori tra i 12 e i 35 cm Per la produzione degli elementi è utilizzato legno di conifere (abete rosso, abete bianco, pino, larice, douglasia) della classe di resistenza C24 (minimo il 90% delle tavole portanti) e C16 (al massimo il 10%) Le tavole montate per la lunghezza senza giunti di contatto, con uno spessore compreso tra 18 e 100 mm, sono larghe tra i 140 e i 210 mm Tra le tavole di uno strato è permessa la presenza di fughe fino a 10 mm

Gli strati superficiali del pannello sono sempre disposti in senso longitudinale negli elementi per tetti e solai, quindi nella direzione di sollecitazione dell’elemento, mentre, nelle pareti, lo strato più esterno può anche essere disposto orizzontalmente

I singoli strati di tavole (larghe tra 160 e 190 mm) hanno uno spessore tra i 19 e gli 80 mm e, all’interno di uno stesso elemento portante, possono avere spessori differenti; le tavole che costituiscono gli elementi centrali dei pannelli più sollecitati a livello statico hanno uno spessore maggiore Accanto agli strati portanti disposti in senso longitudinale possono essere collocati strati non portanti, posati con un angolo di 90° oppure 45° rispetto agli strati disposti in senso longitudinale

Le barre che tengono unite le tavole presentano un filetto (diam interno 20 mm; diam esterno 22 mm) e vengono avvitate in fori preforati (diam 20 mm); tali fori possono essere profondi fino a 10 mm in meno dello spessore dell’elemento Le barre filettate vengono inserite con distanze variabili, entro griglie prespaziate, per un totale di circa 20 barre a metro quadro (per le soluzioni standard) Posizione e numero delle barre sono tuttavia definiti secondo calcolo statico per ogni singolo elemento portante; per questo motivo, un taglio “libero” dei pannelli standard non è consentito Le viti in legno possono essere disposte in modo differente; ai quattro lati degli elementi per pareti e alle due estremità, collocate nella direzione di sollecitazione, è infatti sempre previsto un maggior numero di viti, mentre all’interno degli elementi il loro numero è inferiore

Nella pagina a fianco, l’ampliamento di una casa, con negozo al piano terra, nei Paesi Bassi

Qui sotto, dall’alto, l’ampliamento dell’albergo Regina, Forte dei Marmi (LU); l’interno della sede di Casa Salute a Magré (BZ); un dettaglio delle viti di legno filettate

99

elementi multistrato con viti di legno attacco a terra

Parete esterna, dall’interno:

- parete in legno massiccio Nur-Holz con finitura interna a vista - freno a vapore - isolamento termico in fibra di legno (14 cm) con scanalatura e incastri con funzione di barriera al vento - intonaco traspirante

1 lastra in materiale isolante idrorepellente a protezione dei primi 20 cm del muro di legno

2 soglia di montaggio (6x6 cm) con vite torx di ancoraggio al c a

3 guaina impermeabilizzante

4 lamiera metallica di protezione

5 solaio in c a

6 muro in c a

A destra, alcuni rendering di una parete al piano terra

Nella parte che verrà rivestita (quella esterna) sono visibili le viti mentre la parte interna a vista ne è priva

100 legnoarchitettura 18 sistemi
esterno 2
interno
4 1 3 6 5

elementi multistrato con viti di legno attacco a terra

A destra, dall’alto, l’appoggio della parete sul dormiente fissato al solaio; dettaglio della soluzione d’angolo di due pareti portanti; il foro in un solaio per il passaggio di una canna fumaria e, nella parete sulla destra, il foro quadrangolare per il passaggio della ventilazione; un dettaglio del solaio sagomato del primo piano della sede di Casa Salute di Magrè

Sotto, fase iniziale di un cantiere con l’erezione delle pareti portanti esterne

Dettaglio soglia:

1 lamiera metallica di protezione

2 pannello in vetro cellulare

3 guaina impermeabilizzante

4 isolamento termico

5 massetto con pendenza

6 balcone in c a

7 soglia di montaggio in legno (80/80 mm)

8 torx (8 mm)

9 ancoraggio alla parete in c a

101
esterno interno
2 4 1 3 6 8 5 7 3 9

elementi multistrato con viti di legno pareti

Parete esterna, dall’esterno:

- intonaco di finitura in calce traspirante

- isolamento termico in fibra di legno (10 cm), con scanalatura e incastri con funzione di barriera al vento

- parete in legno massiccio Nur-Holz (30,5 cm)

- carta di tenuta all’aria

- intonaco di argilla su canna palustre

Solaio interpiano, dall'estradosso:

- granulato di sughero interposto tra i listelli

- listelli nelle due direzioni

- granulato di calce tra i listelli

- strisce isolanti

- solaio Nur-Holz

1 freno al vapore

Nei rendering a lato sono già visibili le superfici che verranno rivestite (estradosso dei solai) perché sono quelle in cui si vedono le teste delle viti filettate in legno 2 4 1 3 65

- pavimento in tavolato di legno massiccio a incastro

2 viti controfilettate per fissaggio solaio (8x220), avvitate e fissate incrociate a 45%

3 rinforzi antisismici

4 blocco di legno di montaggio

5 feltro di lino o lana di pecora

6 spazio per gli impianti

A sinistra, viti torx che garantiscono l’unione delle pareti in verticale (parete-parete) e in orizzontale (parete-solaio).

102 legnoarchitettura 18 sistemi

elementi multistrato con viti di legno copertura

Copertura, dall’estradosso:

- tegole in laterizio

- listelli porta tegole

- listelli per ventilazione

- guaina traspirante al vapore ma impermeabile all’acqua piovana

- isolamento termico in fibra di legno (14 cm)

- freno al vapore

- solaio copertura in legno massiccio Nur-Holz (17,9/20,8/25 cm)

1 trave di bordo

2 griglia per ventilazione

3 lamiera salvagoccia

4 canale di gronda

5 perlinatura di gronda

6 travetto di gronda

Sulla base delle prove di flessione condotte dal Karlsruher Institut für Technologie (KIT) sono state esaminate la resistenza e la deformabilità degli elementi Nur-Holz per pareti e solai, considerati come lastre Grazie ai parametri di rigidezza ottenuti dalle curve carico-deformazione, è stato determinato il modulo di scorrimento delle viti in legno massiccio, inclusi gli strati intermedi Al termine di tutti i test, al sistema è stata concessa la Certificazione Tecnica Europea ETA, che permette alla ditta produttrice di marcare i suoi pannelli con il marchio CE 2

A sinistra, alcune immagini della posa della copertura.

103
4 1 3 6 5

rinforzo di solai in legno

I solai, intesi come elementi strutturali, hanno due principali caratteristiche: - la capacità di portare carichi senza deformarsi; - la capacità di collegare e stabilizzare le pareti.

La maggior parte delle volte che si decide di intervenire per effettuare un rinforzo si è spinti dalla necessità di irrobustire il solaio per la prima di queste funzioni. Ma una corretta progettazione è quella che tiene conto di entrambe le esigenze e prevede l’adeguato funzionamento sia per i carichi statici, quelli quotidiani, sia per i carichi dinamici, come ad esempio le sollecitazioni generate da un sisma

In quest’ottica risulta molto efficace la scelta della tecnica di rinforzo con la soletta armata collaborante. Essa si è dimostrata da tempo molto efficace come modo per irrigidire il solaio e aumentarne la capacità portante. Con qualche attenzione aggiuntiva permette anche un miglioramento del comportamento antisismico del fabbricato.

dettagli

Progettazione statica e progettazione antisismica

Tecnaria S p A è una società specializzata nella ideazione e produzione di connettori per solai misti legnocalcestruzzo, acciaiocalcestruzzo e laterocemento-calcestruzzo; sempre molto sensibile alle richieste in continua evoluzione del mercato dell’edilizia

Nel corso degli anni si è specializzata maggiormente nelle tecniche di rinforzo di solai esistenti, completando e facendo certificare la gamma dei propri prodotti

L’intervento di rinforzo di un solaio esistente va concepito tenendo conto di due esigenze principali

Quella di irrobustire il solaio e quello di migliorare la resistenza sismica del fabbricato

Una tecnica che permette di perseguire entrambi gli obiettivi è quella del collegamento delle travi del solaio a una soletta in calcestruzzo collaborante tramite connettori

Maggiore capacità portante

La maggiore capacità portante e la maggiore rigidezza del solaio sono garantiti dal fatto che la struttura, grazie a questo intervento, aumenta di dimensioni Essa, infatti, non è più costituita dai soli singoli travetti, bensì dall’unione tra travetti e soletta Questo comporta l’incremento di rigidezza e l’aumento di resistenza, con conseguente maggiore capacità portante

Migliore comportamento antisismico

Per quel che riguarda il miglioramento delle prestazioni antisismiche, si tenga presente che i solai esistenti spesso non sono adeguati perché troppo deformabili e mal collegati alle pareti

La normativa italiana indica i due requisiti di un solaio in un edificio costruito con criteri antisismici: il comportamento rigido del solaio (rigidezza di piano) e il collegamento con le strutture verticali (continuità strutturale)

La presenza di entrambi questi fattori permette all’edificio di avere una caratteristica importante ai fini antisismici, ovvero il cosiddetto comportamento scatolare In virtù di esso, le singole differenti pareti verticali e il solaio realizzano un unico corpo che risponde al meglio alle sollecitazioni di tipo sismico

Il solaio trattiene le pareti evitandone il ribaltamento e incanala la forza sismica sulle pareti dotate della massima resistenza

106 legnoarchitettura 18 dettagli rinforzo di solai in legno

Questo è il primo requisito delle normativa antisismica e l’unico che riguarda i solai: soddisfarlo permette di limitare in maniera notevole i danni in casi di terremoto

Molto spesso il legame tra il solaio e le pareti è realizzato semplicemente tramite l’appoggio del solaio sulla muratura Il peso sulle pareti perimetrali può generare l’attrito sufficiente a creare il legame che sarà sufficiente per la vita “ordinaria” dell’edificio

Nel caso di eventi eccezionali come trombe d’aria o terremoti, l’unione fornita dal semplice attrito non è idonea a supportare forti azioni combinate dirette verso l’alto e lateralmente In tali situazioni il solaio perde il legame con le pareti, che diventano setti verticali solamente appoggiati al terreno e sollecitati lateralmente In questa situazione il collasso è inevitabile

1 Pareti svettanti: grande rischio di crollo

2 Pareti legate: elevata resistenza Comportamento scatolare

3 Le pareti parallele al sisma sono le più resistenti e possono dare il loro contributo resistente Le pareti trasversali all’azione del sisma sono trattenute e non crollano fuori dal proprio piano

Connettori CTL BASE e CTL MAXI Tecnaria

L’efficacia del connettore è assicurata dalla piastra di base che funge da supporto del piolo Essa è modellata come un rampone, consentendo così una elevata aderenza al legno e assorbendo al meglio gli sforzi di taglio; prove di laboratorio hanno evidenziato efficacia di questo accorgimento Il fissaggio è completamente meccanico, pertanto non sono necessarie resine o additivi chimici, cosa che rende il processo di connessione veloce, economico, pulito e reversibile

Sotto, dall’alto, CTL BASE; altezze gambo: 30, 40, 60, 70,80, 105, 125, 150, 175 e 200 mm; lunghezza viti: 70, 100 e 120 mm.

CTL MAXI; altezze gambo: 30, 40, 60, 70, 80,105, 125, 150, 175 e 200 mm; lunghezza viti: 100, 120 e 140 mm

Ideale per l’applicazione di barre di collegamento muratura-solaio

è la Resina RTEC400

Tecnaria, un formulato epossidico bi-componente ad alto valore di aderenza per fissaggi pesanti su calcestruzzo, muratura e legno

CE ed è qualificata anche per azioni sismiche categoria C2 123

È fornita in cartucce da 400 ml, ha doppia marcatura

107

Riduzione dei carichi

1

Esempio di solaio esistente con evidenziata stratigrafia pesante Vi sono infatti 8 cm di sottofondo e la pavimentazione

2

Test su Connettore Base. Questo è uno dei numerosi campioni in legno sui quali sono stati posati due connettori e una soletta in calcestruzzo. Tali campioni sono stati sottoposti a una forza trasversale ed è stata misurata resistenza e scorrimento relativo Nel campione, a fine prova, è stato rimosso il calcestruzzo per vedere l’efficacia dei ramponi

3

Set di prova: un campione legnocalcestruzzo sotto la pressa, con gli strumenti per la misura di forza e di spostamento

4

Risultati delle prove. Grafici caricospostamento dei connettori posati direttamente su trave, su tavolato da 2 cm di spessore o su tavolato da 4 cm di spessore

L’importanza della leggerezza

Durante un sisma le masse del fabbricato oscillano, tale movimento genera forze orizzontali che agiscono sulle pareti in modo proporzionale alle masse stesse Per questo semplice motivo è bene contenere il più possibile il peso degli elementi presenti nell’edificio Ciò non vuol dire che sia conveniente ridurre la struttura portante o rinunciare a elementi strutturali; sarà invece appropriato che siano gli elementi di finitura, come sottofondi e pavimenti, a essere leggeri

Intervento con soletta collaborante su un solaio esistente con riduzione dei carichi

Si può pensare che l’intervento di rinforzo di solaio con soletta collaborante porti ad un incremento di peso Infatti una soletta di 5 cm di spessore in calcestruzzo normale pesa circa 125 kg/m2 e una in calcestruzzo con inerti leggeri 70 kg/m2

Ma si deve tenere presente che il carico totale è composto anche dal peso delle finiture portate, di solito sottofondi, massetti, pavimentazioni e muri divisori Ponendo attenzione a ridurre i carichi portati, il peso totale può facilmente essere minore di quello originario Sottofondi e massetti possono essere a base di inerti leggeri, i pavimenti in legno, le pareti divisorie in cartongesso o in gasbeton Nel mercato dei prodotti da costruzioni è possibile reperire soluzioni leggere per tutte le esigenze

Un esempio

Solaio esistente con travi e tavolato in legno e strato di finitura con pavimentazione ceramica e sottofondo (vedi immagine 1, in alto) Si interviene rimuovendo tutto il materiale pesante presente, creando una soletta in calcestruzzo collaborante alleggerito e riposizionando un sottofondo e la pavimentazione

Alla fine dell’intervento, il peso del solaio rinforzato con la soletta collaborante è minore di quello del solaio prima dell’intervento

Stato di fatto

Solaio in legno

Sottofondo sabbia e cemento

Piastrelle ceramiche e colla

Muri divisori in tramezzi forati

Carico

Progetto

Solaio in legno

Soletta in calcestruzzo alleggerito

Sottofondo alleggerito

Parquet

Muri divisori in cartongesso

Carico totale progetto

4 108 legnoarchitettura 18 dettagli
solai in legno
rinforzo di
1 2
stato di fatto kg/m2 30 140 50 100 320
totale
Differenza di carico kg/m2 30 80 90 15 60 275 -45 3

L’importanza della certificazione

Tecnaria ha sottoposto i propri connettori Base e Maxi a un’accurata indagine sperimentale secondo le normative prescritte dall’Eurocodice 5 Le caratteristiche di deformabilità e resistenza del connettore fissato su legno sono state indagate sperimentalmente presso il CNR di Firenze - Istituto per la Ricerca sul Legno: “Valutazione del comportamento di connettori Tecnaria secondo normativa Eurocodice 5” [Gennaio 2001] e il laboratorio sperimentale per le prove sui materiali da costruzione della Facoltà di Ingegneria dell’Istituto di Scienza e Tecnica delle Costruzioni dell’Università di Padova (“Valutazione del comportamento di connettori Tecnaria secondo normativa Eurocodice 5” [Marzo 1995 - Settembre 1995 - Giugno 1996]) Nel giugno 2009 Tecnaria ha ottenuto anche l’Avis Technique, certificazione tecnica europea per i connettori Base e Maxi I prodotti Tecnaria e l’intero metodo di progettazione di solai misti legno e calcestruzzo sono stati certificati dall’organizzazione indipendente francese CSTB, Centre Scientifique et Technique du Bâtiment, membro del EOTA, Organizzazione Europea per le Approvazioni Tecniche

del Castello inferiore di Marostica (VI)

1

Tipico solaio in legno a semplice orditura rinforzato Sono visibili tutti gli elementi di un corretto rinforzo statico e antisismico: soletta in cls, rete elettrosaldata, connettori Tecnaria e barre di collegamento solettamuratura. I connettori usati in questo caso sono i CTL MAXI 12/40 posati sul tavolato.

2

Vista del solaio dal lato inferiore. Molto spesso è necessario puntellare il solaio per tutta la durata della maturazione del calcestruzzo

3

Fase di lavorazione intermedia Si possono notare

la stesura di un telo protettivo del tavolato e la preparazione dei fori nella parete

4

La fase di getto della soletta, dopo la posa della rete elettrosaldata con sovrapposizione di maglie tra un foglio e l’altro

5

Il solaio allo stato attuale.

109 12 3 4 5
Ballatoio

Realizzazioni

1

Il progettista ha scelto di creare un solaio alla Sansovina, con travi in legno e tavole sovrastanti poste in direzione parallela alle travi stesse I connettori risultano così posati direttamente sulla trave Per queste applicazioni Tecnaria ha sviluppato una gamma di altezze differenti dei propri connettori.

2

Realizzazione del solaio nuovo con mantenimento dei muri perimetrali esistenti

Il piano del solaio

4

Puntellamento del solaio

5

Al fine di evitare l’assorbimento dell’acqua di impasto da parte del tavolato si è scelto di posare il telo Centuria®. Questo telo, studiato appositamente per questo genere di applicazioni, ha la caratteristica di essere impermeabile nella superficie superiore, ma traspirante nella superficie inferiore In questo modo, se ci dovesse essere elevata umidità negli ambienti sotto al solaio, questa non condenserà sulla faccia inferiore del telo

In questo cantiere, per semplificare la posa, è stato fornita una staggia di legno in grado di comprimere il telo in posizione

6

La posa dei connettori.

110 legnoarchitettura 18 dettagli
rinforzo di solai in legno
1
3
2 3 5 4 6

1

Tipico solaio a doppia orditura

Le travi principali sono da connettere così come i travetti

La connessione delle travi principali può essere fatta casserando, tra un travetto e l’altro, lo spazio sopra la trave.

2

Connessione della trave principale con doppia fila di connettori Il doppio trapano con supporto permette di fare due prefori per l’applicazione del connettore Maxi in una unica operazione e operare in piedi

3

Trave principale di solaio a doppia orditura in fase di lavorazione Si notano i connettori posti in doppia fila e la siglillatura di fessure tra la trave e le tavole di contenimento del getto

4

Solaio a doppia orditura dal basso con i travi principali e i travetti secondari orditi trasversalmente

A - Connettore su trave principale con armatura di collegamento alla parte superiore della soletta.

B - Connettore su trave principale senza armatura di collegamento

111 1 2 3 4
A B

Strandparken Wingårdhs Arkitektkontor AB

Matrousjka House Burobill

JACER – training center 3+1 architekti

Hostal Ritoque Gabriel Rudolphy, Alejandro Soffia

Scuola L’Aurora Bachelet

ITI Studio

19 next F o o P a v e P á n i č k a F o o S t n B o l a e r F o o : T o dR k a d S ö d e s t ö m

Turn static files into dynamic content formats.

Create a flipbook
Issuu converts static files into: digital portfolios, online yearbooks, online catalogs, digital photo albums and more. Sign up and create your flipbook.