legnoarchitettura 23

Page 1

legnoarchitettura

incontri

Mario Cucinella progetti

Mario Cucinella Architects

Artec AS dECOi architects

Encore Heureux Architects

Ahrbom & Partner

Arkitektkontor aut. architektur und tirol, ./studio3

Guillaume Ramillien Architecture techné il progetto MOB:OM strutture padiglione KA300 sistemi

EdicomEdizioni

primolam®
Trimestrale anno VII n° 23 aprile 2016 Euro 15,00 Registrazione Trib Gorizia n 4 del 23 07 2010 Poste italiane S p A Spedizione in a p D L 353/2003 (conv in L 27/02/2004 n 46) ar t 1, comma 1 NE/UD
23 I S S N 2 0 3 90 8 5 8

legnoarchitettura

rivista trimestrale

anno VII – n 23, aprile 2016 ISSN 2039-0858

Numero di iscrizione al ROC: 8147

direttore responsabile

Ferdinando Gottard

redazione Lara Bassi, Lara Gariup

editore

EdicomEdizioni, Monfalcone (GO)

redazione e amministrazione

via 1° Maggio 117

34074 Monfalcone - Gorizia

tel 0481 484488, fax 0481 485721

progetto grafico

Lara Bassi, Lara Gariup

stampa Grafiche Manzanesi, Manzano (UD)

Stampato interamente su carta con alto contenuto di fibre riciclate selezionate

prezzo di copertina 15,00 euro abbonamento 4 numeri

Italia: 50,00 euro - Estero: 100,00 euro

Gli abbonamenti possono iniziare, salvo diversa indicazione, dal primo numero raggiungibile in qualsiasi periodo dell’anno distribuzione in libreria

Joo Distribuzione

Via F Argelati 35 – Milano

copertina

Nido d’infanzia a Guastalla (RE), Mario Cucinella Architects

Foto: Moreno Maggi

È vietata la riproduzione, anche parziale, di articoli, disegni e foto se non espressamente autorizzata dall’editore

74 Foto: Moreno Magg Foto: © Anton Grassl Foto Pasca Amoyel 23 legnoarchitettura
Mario Cucinella 4 87 97 105 il progetto Mob:oM padiglione KA300 primolam® incontri techné strutture sistemi 36

Nido d’infanzia Mario Cucinella Architects 12

TREET Artec AS 24

One Main Office dECOi architects 36

Circular Pavilion Encore Heureux Architectes 46

Ulls Hus - Kuben 54

Ahrbom & Partner Arkitektkontor

bilding aut. architektur und tirol, ./studio3 64

Centro Christian Marin 74

Guillaume Ramillien Architecture

54 24 12 F o o © C y l e W e i n e r F o o Åk e E s o n L i n d m a n Foto: © Gunter Richard Wett
12 progetti F o t o D a v d V a l d e b 46 64

Mario Cucinella

Fondatore dello studio MCA Architects, Mario Cucinella è un architetto riconosciuto per il suo interesse verso i temi legati alla progettazione ambientale e alla sostenibilità in architettura

In questa intervista descrive il suo approccio verso il legno e le ragioni per cui lo ha utilizzato in diversi suoi lavori, a partire dal recupero di un edificio del Centro di ricerca di Ispra fino all’asilo di Guastalla e al progetto in corso per la Fondazione Città della Pace per i Bambini” in Basilicata con struttura in legno rivestita da pannelli di canapa e copertura di ombreggiamento in canne di bambù locale

Nido d’infanzia a Guastalla (RE)

La struttura sostituisce due nidi comunali d’infanzia danneggiati dal terremoto del maggio 2012

Una sequenza di portali in legno sagomati costituisce l’ossatura portante definendo gli spazi interni

Lei è un architetto noto per il suo impegno verso la sostenibilità, l’utilizzo del legno che vediamo in alcune delle sue realizzazioni rientra in questa maniera di guardare all’architettura?

Il nostro impegno in questo senso esiste ormai da molto tempo e riguarda numerosi aspetti: non è solo una questione di materiali ma anche un argomento legato all’efficienza dell’edificio, alla riduzione dei consumi energetici e delle emissioni; il tema della

sostenibilità è molto ampio

Oggi molta attenzione è data ai processi costruttivi e alla tipologia di materiale utilizzato e il legno ha delle caratteristiche molto importanti: ormai quasi tutta la produzione del legno rientra in processi di rigenerazione delle foreste, ci sono dei piani per rigenerare il legno che viene consumato, c’è una filiera del legno che è stata molto attenta e che a mio avviso ha fatto anche un grande passo avanti rispetto a quella che po-

4 legnoarchitettura 23 incontri
incontri
F o o M o e n o M a g g
F o o M o r e n o M a g g

Ispra Eco Centre (19941996)

La ristrutturazione della mensa ha previsto la realizzazione di una copertura ombreggiante in legno lamellare e nuovi lucernai e facciate per favorire la ventilazione naturale e una riduzione dei consumi energetici.

teva essere la tradizione del legno; oggi il legno è una materia ad alto contenuto tecnologico e di conoscenza Per me è importante considerare il legno per i suoi aspetti qualitativi, per la qualità della materia, per il fatto che sia un materiale naturale che crea una relazione con le persone nello spazio – come nel caso del nido di Guastalla – e una relazione di tipo ancestrale, che le persone hanno sempre avuto con le materie vive; quindi, da questo punto di vista, si va anche al di là della sostenibilità Mi piace usare il legno quando credo che dia il meglio di sé, rappresentando molto bene sia la tecnologia, sia il sistema costruttivo, sia questo rapporto con le persone

Quando è iniziato il suo percorso con il legno? Qual è il primo edificio in cui l’ha utilizzato?

Il primo lavoro che abbiamo fatto con il legno credo che dati 1994 quando facemmo il recupero di un edificio per il Centro di ricerche Europeo di Ispra vicino a Varese, in cui realizzammo una copertura in lame di legno lamellare di più di 5 000 metri quadri Venne usato il legno per ombreggiare l’edificio ma allo stesso tempo per creare un rapporto tra questa grande copertura, i giardini e il parco La copertura passava attraverso gli alberi così la stessa materia ritrasformata diventava invece un parasole, una protezione solare, trasformando l’edificio esistente in un nuovo edificio

Quali pensa possano essere i vantaggi principali del legno anche rispetto ad altri materiali?

I vantaggi sono legati al tema produttivo, alla modalità con cui si produce il materiale: che sia sotto forma di travi, di pannelli o di finestre il legno ha una versatilità nell’ambito delle costruzioni molto interessante sia legata alla rapidità del montaggio ma anche al suo DNA di provenienza da una risorsa rinnovabile Non ultimo c’è anche un aspetto psicologico e tattile legato all’esperienza che abbiamo vissuto tutti entrando in baite di legno di montagna, in cui si ritrova all’interno un certo senso di sicurezza e di qualità della natura che avvolge lo spazio

Ci sono dunque due livelli, uno percettivo-psicologico

6 legnoarchitettura 23 F o o N o m e C o g n o m e
incontri M C A A c h v e F o t o J e a n d e C a l a n

e l’altro materico-sensoriale, e ce n’è poi un terzo, tecnologico, che è invece legato a tutta questa filiera che negli ultimi anni ha fatto grandi passi avanti sia riguardo il sistema di produzione sia riguardo il sistema del montaggio delle pannellature; tutta la filiera del legno è stata forse l’esempio più interessante di come una materia tradizionale si trasforma in una materia di innovazione e questo è un passaggio storico molto bello

Dal punto di vista progettuale, la particolarità del materiale e le sue caratteristiche richiedono un approccio molto differente, nella sua esperienza, rispetto alle altre soluzioni costruttive?

Al di là di quello che può essere l’aspetto estetico della materia, per lavorare il legno dal punto di vista costruttivo sono ovviamente necessarie delle competenze tecniche, un po’ come avviene per le carpenterie metalliche: le si può disegnare ma poi ci vuole il carpentiere, ci vuole l’ingegnere che fa strutture metalliche Per questo dico che la filiera è una filiera interessante perché, oltre ai produttori, sono nati anche tanti studi di ingegneria che si occupano proprio della progettazione del legno È molto importante l’apporto che possono dare le competenze degli specialisti del legno perché, essendo una materia che deriva da una risorsa rinnovabile, bisogna usarla per la sua natura; non si può usare il materiale in modo non sostenibile e sprecarlo Ci vogliono competenze che aiutino a ottimizzare la materia, che ne conoscano il comportamento nel tempo, che conoscano gli aspetti legati alle giunzioni che sono un tema importante È necessaria anche la collaborazione con le aziende che hanno costruito nel tempo l’esperienza, l’ottimizzazione dell’uso dei diversi componenti Da tempo sono un grande fautore di questa importante complicità e relazione col mondo del costruire per realizzare progetti I progetti li dobbiamo costruire e quindi avere un dialogo con chi fabbrica, lavora, taglia, produce, ecc : è un elemento determinante per la qualità dell’opera, senza che questo tolga nulla al nostro lavoro

Pensa che il legno, che oggi conosce una grande diffusione, possa essere un materiale utilizzabile in ogni tipo di progetto e contesto? Quali sono secondo lei i limiti?

C’è una sfida tecnologica che mi sembra interessante: oggi i limiti che vedo riguardano sempre più le questioni legate alla costruzione di torri La filiera delle costruzioni è un mondo molto ampio in cui si usano i materiali più diversi e le scelte si fanno per ragioni di natura economica, tecnologica, di vicinanza, di rapidità, di performance Il legno gioca un ruolo molto importante all’interno di questo grande mondo delle costruzioni perché ha saputo rinnovarsi, ha saputo trasformare la tradizione in innovazione Ci sono ovvia-

mente cose che in legno si possono fare e altre che non si possono fare Credo che vada compreso molto bene qual è il potenziale che un materiale ha in senso assoluto, sfruttandolo per queste sue potenzialità Non mancano però alcune contraddizioni come, per esempio, quando si fanno le case di legno e poi si intonacano, allora sorge un problema, non si può usare il legno e poi rivestirlo o intonacarlo: la materia del legno è bella da esprimere anche e soprattutto dal punto di vista estetico Penso agli edifici realizzati dopo il terremoto in Abruzzo, si sono fatte case di legno rivestite in cemento o di intonaco, oppure case di cemento rivestite di legno: questo non va bene, ed evidenzia una certa confusione Credo che sarebbe molto bello se il legno continuasse a fare il legno Forse in questo grande caos legato all’innovazione o alla modernità bisognerebbe ritornare a far sì che i materiali facciano semplicemente il loro lavoro

C’è anche il tema della modificazione, del cambiamento del materiale nel corso del tempo Il bello del legno è che conserva dentro di sé una sua vitalità, nonostante venga tagliato e messo in produzione È un materiale che col tempo reagisce, cambia colore, scurisce; si può anche trattare, ma siamo più vicini all’idea di un materiale vivo che cambia in funzione delle condizioni del clima, dell’esposizione al sole, all’ombra, al vento, alla pioggia: è un’idea che ci appartiene da secoli Ci sono delle baite svizzere o sulle nostre montagne che sono secolari e non sono certo brutte Molti aspetti nella cultura dell’architettura sono legati all’idea di perfezione industriale che nasce da un meccanismo del Novecento in cui il prodotto deve essere perfetto come il primo giorno in cui è stato posato; poi la verità non è quella perché anche edifici in acciaio, in cemento o in vetro negli anni cambiano, a meno di costi di manutenzione spropositati Andiamo nella direzione della sostenibilità nel capire che gli edifici in qualche modo invecchiano come invecchiano le persone, si stabilizzano, cambiano col o r e , h a n n o a n c h e u n a q u a l i t à e s t e t i c a c h e si modifica

Costruire in legno significa costruire a secco e, nella maggior parte dei casi, significa anche costruzione più o meno prefabbricata Qual è il suo approccio verso la prefabbricazione?

Credo che ci sia un’area di confine abbastanza ampia perché da una parte il legno è entrato in una logica di innovazione, e l’innovazione non è solo nella materia, ma anche negli strumenti di lavoro L’asilo di Guastalla è stato disegnato nel nostro ufficio, sono stati disegnati i portali e spediti i disegni all’azienda Rubner che ha tagliato il legno direttamente su un banco laser; la prefabbricazione è un concetto, da una parte del secolo

7

Centro per l’infanzia per Um al Nasser, Striscia di Gaza (2011-2012)

Il progetto è stato elaborato da Arcò - Architettura & Cooperazione con la collaborazione di Mario Cucinella Architects

La struttura è in legno con pareti realizzate con sacchi di terra. La facilità del metodo costruttivo ha consentito l’impiego di manodopera locale anche non specializzata

scorso, ma oggi, grazie a questa evoluzione degli strumenti, si può parlare di una prefabbricazione quasi taylor made, cioè di una cosa che si fa apposta per un progetto Si fa il progetto del taglio del legno per quel segmento, per quell’edificio specifico perché oggi sia gli strumenti di progettazione sia gli strumenti di lavorazione del legno offrono grandi possibilità pure nel settore della prefabbricazione Prefabbricare è una maniera di ottimizzare, di rendere rapidi i meccanismi, di avere anche sicurezza dal punto di vista della qualità della finitura e dei giunti, perché prefabbricare in officina dà delle garanzie diverse che non lavorare solo in un cantiere Questo è un altro degli aspetti qualitativi, il problema è che la parola prefabbricare è una parola che appartiene un po’ ai decenni passati, al pensiero di realizzare un pannello e di fare sempre quello; oggi, ormai, col mondo digitale il pannello lo si taglia facendo pezzi ogni volta diversi, pur sempre dentro un processo chiamato industriale ma che è anche artigianale È quello che ho chiamato una volta prefabbricazione mon amour, è una nuova prefabbricazione, un nuovo modo di lavorare tra il mondo della progettazione e il mondo del costruire Di mezzo c’è un percorso di strumenti che stanno diventando sempre più importanti e che migliorano il nostro lavoro e il lavoro dell’impresa

Negli ultimi anni si sono visti moltissimi edifici in legno nel settore scolastico, il nido di Guastalla ne è un esempio Quali sono le potenzialità e i vantaggi di questo tipo di soluzione costruttiva in questo ambito? Bisogna innanzitutto chiarire che non c’è un atteggiamento di scontro o una polemica con altri sistemi costruttivi Il legno, se è usato proprio nella sua natura, ha molti vantaggi che in una scuola sono molto importanti La sicurezza sismica è la prima cosa, essendo un materiale elastico che si adatta al movimento, quindi già di per sé ha una caratteristica interessante; poi c’è una sicurezza di natura ambientale, essendo un materiale naturale, si può toccare Nell’esporlo, specialmente a Guastalla, il discorso rivolto alle maestre e alle famiglie riguardava il fatto che un bambino fino a tre anni il mondo lo conosce perché lo tocca, lo annusa, fa operazioni conoscitive e di esplorazione; quindi il legno è un materiale che se usato propriamente, in maniera naturale, costituisce un modo per scoprire un materiale importantissimo nella vita dell’uomo Se è trattato bene, quindi non ha altri tipi di finitura, è un materiale che si presta molto per la sicurezza, dato che non occorre intonacare con il rischio che l’intonaco si stacchi, quando un pezzo arriva è finito e certificato, ha tutta una serie di vantaggi che magari in altri ambiti costruttivi sono più difficili da ot-

8 legnoarchitettura 23
incontri A r c h v o A R C òV e n o d T e r a

tenere; ciò non toglie che riguardo le scuole quello che leggiamo è causa di una pessima manutenzione, perché negli edifici se non si fa una manutenzione costante si possono avere conseguenze anche sulla vita delle persone

Il legno è poi anche un materiale etico, che comunica calore, relazione; nella scuola ha anche molto senso, si può colorare si possono fare molte cose Vedevo molto bene per Guastalla questa duttilità della forma; i portali, tagliati in quel modo, non li avrei potuti fare se non in legno perché si presta a questo tipo di tagli, a questo tipo di progetto che ha una forte relazione con la forma Poi il legno è possibile piegarlo, realizzare pareti curve, rivestirle, si posso fare molte cose rispetto ad altri materiali che, per la loro diversa natura, non hanno queste possibilità

Ha utilizzato il legno anche nella sede dell’ARPA a Ferrara Secondo lei è un materiale che più di altri può esprimere l’attenzione verso la sostenibilità, o comunicarla meglio?

C’è sicuramente un’opinione pubblica che vede nell’uso del legno un rapporto più sano, perché è intrinseca l’idea di un materiale che viene dalla natura e quindi la relazione forte, mentre oggi un edificio fatto in cemento è percepito come più ostile anche se il ce-

Il volume a sezione triangolare si ispira alle cataste di legname con all’interno forme curve che riprendono i profili delle montagne del Pollino Il progetto prevede l’utilizzo di strategie energetiche attive e passive e l’impiego di legno derivante dal disboscamento del parco.

9
Parco Nazionale del Pollino, centro polifunzionale di Campotenese, Morano Calabro (CS) (2009 - in corso)
M C A A c h v e M C A A r c h i v e M C A A c h i v e

La nuova sede dell’Agenzia Regionale per la Prevenzione e l’Ambiente a Ferrara è caratterizzata in copertura da una serie di condotti per l’illuminazione naturale che favoriscono anche la ventilazione naturale riducendo la necessità di raffrescamento meccanico degli ambienti

mento ha fatto grandi passi avanti negli ultimi anni e ha avuto una grande evoluzione

Un edificio dedicato alla prevenzione ambientale, secondo me, aveva bisogno che fosse costruito di legno perché gli edifici pubblici come le scuole, come l’ARPA, come gli edifici dove c’è accoglienza al pubblico o dove il pubblico lavora sono una prima forma di educazione civile Com’è fatto un edificio, quello che trasmette è una prima forma di educazione; il rispetto della natura, il rispetto ambientale, la sicurezza sismica, il fatto di essere in un ambiente ben progettato sono una forma di qualità che noi dobbiamo alla società civile Un edificio dedicato alla prevenzione dei rischi ambientali ha molto senso che sia fatto con criteri di sostenibilità, non solo a livello di performance ma anche a riguardo delle materie e della modalità con cui è costruito È un edificio che ha 112 camini alti fino a 8 metri, sono tutti fatti con telai di legno e sono stati montati in cantiere; un cantiere che è stato faticoso perché l’appalto pubblico in Italia non garantisce la qualità dei processi né i tempi di realizzazione Detto questo, è rapido, veloce, i pannelli avevano l’isolamento termico ed erano predisposti per il montaggio Il fatto che il materiale nel tempo cambierà colore, che all’interno la luce sarà più calda perché è filtrata dai camini in legno sarà una sua qualità intrinseca

L’intervento sull’esistente è una delle grandi sfide che abbiamo di fronte Guardando anche al progetto per il complesso A L E R di via Russoli a Milano, quali sono le potenzialità del legno per l’intervento su edifici esistenti anche non in legno?

Nel caso del progetto ALER costruire due piani sopra l’edificio esistente generava un problema di gestione del cantiere e di trasporto dei materiali La possibilità

10 legnoarchitettura 23 incontri
F o t o M o r e n o M a g g F o t o M o r e n o M a g g M C A A c h v e

di realizzarlo in legno risultava un espediente comodo ed efficace: la struttura è più leggera, si può appoggiare per punti, si prefabbrica tutta in officina; i vantaggi sono enormi anche dal punto di vista prestazionale perché un pannello in legno prefabbricato e già montato e assemblato è già di per sé una grandissima performance

Per esempio, il settore dei serramenti in legno ha subito una grande evoluzione e ha ricevuto un grandissimo interesse anche a livello progettuale: si potrebbero certe volte ammorbidire e migliorare gli edifici degli anni ‘70, ‘80 che sono stati costruiti male, con i serramenti in alluminio senza taglio termico; la sostituzione di questi elementi è parte di questo processo di recupero, ed è anche un modo per armonizzare di più questo rapporto tra questi edifici e il contesto climatico

Sta lavorando a qualche nuovo progetto che utilizzi il legno come materiale costruttivo?

Stiamo realizzando un importante progetto a Scanzano Jonico, in Basilicata Il progetto nasce per volontà della Fondazione Città della Pace per i Bambini, creata dal premio Nobel per la Pace Betty Williams e ha lo scopo di creare un rifugio sicuro e una risposta alla domanda di integrazione delle famiglie di rifugiati L’area di questo sito era stata destinata al deposito di scorie nucleari, ma grazie ad un’azione e lotta di resilienza da parte della comunità locale e grazie all’aiuto di Betty

Williams, è stato invece donato al fine di realizzare la “Città dei Bambini” Il progetto assume così un grande valore sia sociale che ambientale Profondamente integrato al paesaggio, è costruito con una struttura in legno rivestita di pannelli in canapa proveniente da una produzione agricola ad economia circolare oltre all’uso della terra cruda La copertura di ombreggiamento è realizzata in canne di bambù locale ispirata alla tradizione dei cestai Rinasce una filiera del prodotto ed una nuova economia ecologica (intervista a cura di Ferdinando Gottard)

Riqualificazione e ampliamento del complesso residenziale A L E R in via Russoli a Milano Il progetto, vincitore di un concorso, prevede, oltre alla riqualificazione, anche la realizzazione di residenze per studenti sulla copertura utilizzando sistemi costruttivi prefabbricati.

11
M C A A r c h v e R e n d e r E n g r a m S t u d o

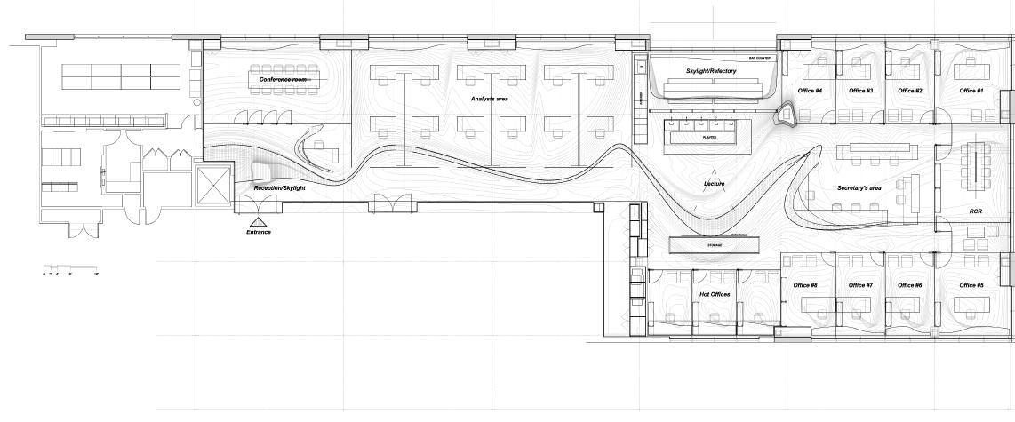
Nido d’infanzia Guastalla

Architects
Mario Cucinella
F o o M o r e n o M a g g
1 Il fronte sud-est 2
principale 14 legnoarchitettura 23 progetti 2 1 F o o F a u s t o F r o n z o s F o t o M o e n o M a g g i
Il patio con l’ingresso

Ubicazione: Guastalla (RE)

Progetto: Mario Cucinella Architects

Strutture: Geoequipe Studio Tecnico

Associato

Consulenza paesaggistica: Marilena

Baggio

Progettazione Elettrica e Meccanica: Area Engineering srl

Acustica: ing Enrico Manzi

Lavori edili: Scisciani e Frascarelli

Impresa Edile

Strutture in legno: Rubner Holzbau SpA

Impianti: Saitec Company srl

Infissi: Promo SpA

Lavori: giugno 2014-settembre 2015

Superficie utile: 1.400 m2

Superficie verde: 6 000 m2

Importo dell’opera: 1 650,00 €/m2

Uno spazio sagomato dalla struttura

È uno spazio sicuramente stimolante e affascinante quello del nuovo nido di Guastalla che sostituisce i due nidi comunali danneggiati dal sisma del maggio 2012

La struttura lignea, una sequenza di portali che riprende i filari degli alberi e i tracciati dei campi coltivati, disegna internamente spazi morbidamente definiti da sagome curvilinee, quasi delle quinte che longitudinalmente evocano uno spazio protetto, il ventre di una balena o una tana, mentre trasversalmente direzionano lo sguardo verso l’ambiente esterno Il volume, ad esclusione delle due protuberanze degli spazi di servizio sul lato nord-ovest, è inscritto all’interno di un parallelepipedo la cui monoliticità è scardinata proprio dai telai che ne costituiscono l’impianto, conferendo all’insieme un senso di leggerezza accentuato dalla trasparenza delle chiusure vetrate che favoriscono il dialogo con la natura e l’interazione tra le attività all’interno e quelle all’esterno Gli elementi architettonici del nuovo asilo nido d’infanzia, come la forma degli interni, la loro organizzazione, la scelta dei materiali, l’insieme delle percezioni sensoriali legate alla luce, ai colori, alle sonorità, alle suggestioni tattili, sono concepiti tenendo conto degli aspetti pedagogici ed educativi legati alla crescita del bambino I percorsi interni tra le aule e i laboratori si articolano sinuosamente con slarghi, aree di gioco e di relazione, nicchie dove sostare, elementi trasparenti per guardare verso l’esterno o sbirciare le attività degli altri bambini La sinuosità caratterizza anche il percorso sensoriale esterno all’edificio, determinando spazi protetti per le attività dei bimbi, degli educatori e dei genitori

Il legno, scelto perché è un materiale sicuro e ideale per mantenere l’isolamento termico dell’edificio, crea un ambiente caldo e naturale, la cui apparente semplicità cela una sofisticata attenzione progettuale e costruttiva (F G )

15
16 legnoarchitettura 23 progetti
F o o F a u s o F o n o s i AB AB 3
planimetria

trasversale A-A

sezione trasversale B-B

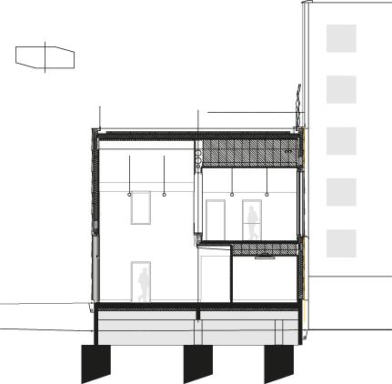
sistema costruttivo

La struttura è costituita da 50 portali in legno lamellare (sezione160 mm) di 18 m x 4,5 m disposti parallelamente con passo di 1,56 m e tagliati con macchine a controllo numerico in sagome una diversa dall’altra Ogni elemento è costituito da travi e pilastri, con all’esterno un portale autoportante con scossalina metallica di protezione Per i telai in legno lamellare è stato utilizzato legno di abete (Picea Abies) con classe di resistenza GL28c per i pilastri e GL32h per le travi I pilastri sono incernierati alla base e con il nodo trave-pilastro schematizzato come incastro La controventatura di falda è garantita dal pannello strutturale prefabbricato mentre la controventatura fuori dal piano del telaio è garantita dalla presenza delle pareti prefabbricate nella parte posteriore e da una serie di controventi in acciaio a croce di sant’Andrea nella parte frontale dove è presente il vetro Il nodo trave/colonna è giuntato con barre filettate metalliche incollate nella testa del pilastro e agganciate mediante bulloni nelle travi Tale giunzione, schematizzabile come un incastro, ha permesso una elevatissima prefabbricazione negli stabilimenti di produzione e una estrema velocità di montaggio, oltre a consentire di nascondere alla vista ogni elemento metallico Il giunto pilastro-fondazione utilizza una “scarpetta” metallica, collegata mediante lama interna e spinotti all’elemento in legno e vincolata alla fondazione mediante tirafondi metallici annegati nel getto strutturale La fondazione, una platea in cls armato, è di tipo superficiale parzialmente compensata, sufficientemente rigida in modo da distribuire uniformemente i carichi puntuali della struttura sul terreno Particolare attenzione è stata posta al controllo della deformabilità, ridotta al minimo visto il tipo di struttura con presenza di lastre in vetro tra i portali in legno lamellare

La copertura è costituita da pannelli pre-assemblati composti da controsoffitto in perlinato scanalato, tavolato superiore in OSB, barriera al vapore, struttura portante H 18 cm (GL22h), coibentazione in lana di roccia densità 70 kg/mc e spessore 16 cm, tavolato superiore in OSB, impermeabilizzazione con guaina in PVC Le pareti opache sui lati corti e sul retro hanno ossatura portante, coibentazione in lana di roccia di densità 70-100kg/mc e spessore 16 cm, tavolato a tre strati sul lato interno e rivestimento ventilato in listelli di larice su quello esterno I due volumi sul retro sono realizzati con struttura in cls armato e gettato in opera, tamponati con blocchi in laterizio ad alto potere isolante e rivestimento in listelli verticali di larice 60x40 mm con passo 6 cm La copertura è coibentata dall’esterno e impermeabilizzata con guaine bituminose

3

Sezioni.

17
sezione

trasmittanza media elementi costruttivi

copertura: U = 0,177 W/m2°C

involucro trasparente: U = 1,35 W/m2°C

prestazioni energetiche

fabbisogno energetico calcolato: EPi 5,75 kWh/m2 anno

4
della
degli
18 legnoarchitettura 23 progetti
L’interno prima
sistemazione
arredi
A
dettaglio A - sezione modulo di facciata su collegamenti con volume educatrici e servizi
19 F o o : M o r e n o M a g g 4

5 5 6 7

Viste degli interni

Le vetrate a sud sono schermate da tende a rullo

impianti

A completamento delle scelte progettuali adottate per l’involucro sono satte scelte soluzioni impiantistiche in grado di soddisfare le esigenze funzionali in termini di benessere ambientale, integrazione con il contesto, risparmio energetico e sviluppo sostenibile, manutenzione e gestione, verifica degli standard scolastici L’impianto di riscaldamento è del tipo a pannelli radianti con posa a pavimento suddiviso per zone (ogni ambiente è dotato di termostato per la regolazione della temperatura) alimentato da un refrigeratore di liquido monoblocco in pompa di calore aria/acqua, per la produzione di acqua refrigerata durante l’estate e acqua calda durante l’inverno, con potenza frigorifera di 96,3 kW e potenza termica di 89,5 kW L’impianto di riscaldamento a pompa di calore è integrato all’occorrenza da una caldaia a condensazione di potenza al focolare pari a 31,4 kW

La produzione di acqua calda sanitaria avviene anche mediante l’ausilio di un impianto solare termico centralizzato installato sulla copertura, costituito da 4 collettori a tubi sottovuoto e 1 bollitore verticale in acciaio di 1 500 litri di capacità A integrazione del sistema ACS interviene a seconda delle necessità la caldaia a condensazione da 35 kW prevista Sulla copertura è installato anche un impianto fotovoltaico in grado di coprire parte della domanda energetica globale per riscaldamento e raffrescamento

Il rinnovo dell’aria è garantito in tutte le sezioni e nelle aree comuni da un impianto di ventilazione con recuperatori di calore a flussi incrociati, accoppiati al deumidificatore per applicazione in climatizzazione radiante Il recuperatore è dotato di due ventilatori centrifughi a doppia aspirazione, uno sulla mandata e uno lato espulsione

L’impianto di illuminazione artificiale utilizza lampade ad alta efficienza (LED e fluorescenti) Gli spazi di passaggio e i servizi igienici sono muniti di rilevatori di presenza che permettono l’accensione temporizzata automatica della luce Le lampade delle aule sono munite di sensori di luce diurna che ne regolano l’intensità in funzione della luce naturale presente con un grande risparmio in termini energetici ed economici

L’edificio integra anche un impianto di recupero delle acque meteoriche, riutilizzate per l’irrigazione delle aree verdi e per gli usi non potabili quali WC e lavanderia Il serbatoio di accumulo di 10 000 litri, corrugato per una maggiore resistenza all’interro, è realizzato in PE riciclabile al 100% , completo di filtro in inox, prolunga telescopica, stazione di pompaggio e galleggiante posto all’interno dell’accumulo principale che segnale la mancanza di acqua

20 legnoarchitettura 23 progetti
F o t o F a u s t o F r o n z o s
21 F o t o F a u s t o F r o n z o s F o o M o r e n o M a g g 6 7

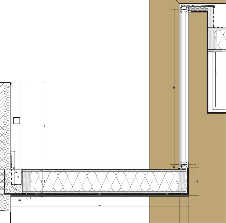
Dettaglio costruttivo della sezione trasversale e particolare dell’interno con i portali in legno lamellare di abete

1 scossalina metallica arretrata rispetto al filo esterno

2 vetro superiore traslucido

3 tenda interna filtrante motorizzata

4 controvento in metallo tirante diam. 16 mm

5 staffa di fissaggio del portale esterno

6 pilastro esterno in legno lamellare

7 vetro verticale trasparente

8 portale interno in legno lamellare sagomato

9 mobile contenitore con sportello

10 pavimento in doghe di legno ricomposto

22 legnoarchitettura 23 progetti
F o o M o e n o M a g g 1 2 3 5 4 6 7 8 9 10

A sinistra, montaggio degli elementi pilastro in legno lamellare già provvisti di barre filettate metalliche per la giunzione con le travi

A destra, completamento di uno dei portali

A sinistra, le pareti sagomate in X-lam

A destra, dettaglio dei portali con la “scarpetta” metallica di collegamento alla fondazione e le staffe per l’ancoraggio del portale autoportante che si sovrappone esternamente alla struttura

La struttura portante completa della copertura e dei controventi in acciaio a croce di sant’Andrea

23
M C A A r c h v e M C A A r c h v e M C A A c h v e M C A A c h v e M C A A c h v e

Artec AS TREET

Bergen (N)

F o t o D a v d V a l d e b

1

La zona giorno di un appartamento tipo Le travi che penetrano nello spazio interno fanno parte dei livelli definiti power storeys, una struttura in lamellare che è unita al reticolo esterno a capriate.

2

La trave del livello di rinforzo viene sfruttata anche dal punto di vista del design, diventando appoggio per il tavolo vetrato

3

Uno dei balconi di cui è dotata ciascuna unità abitativa Strutturalmente essi sono indipendenti dall’ossatura portante e dai moduli che costituiscono gli appartamenti, essendo appesi a una sovrastruttura di facciata

26 legnoarchitettura 23 progetti 2 1 F o o M o t e n P e d e r s e nn v s o F o o M o r e n P e d e s e nn v s o

Ubicazione: Bergen (N)

Progetto: ARTEC AS, Bergen (N)

Strutture: Sweco AS, Bergen (N)

Moduli prefabbricati: Kodumaja, Tartu (EE)

Lamellare e X-lam: Moelven, Moelv (N)

Lavori: aprile 2014 - dicembre 2015

Superficie totale: 5 850 m2

Il più alto edificio in legno del mondo, per ora

Con i suoi 14 piani che ospitano 62 appartamenti, una palestra e una terrazza sul tetto, Treet (“albero” in norvegese) è, attualmente, il più alto edificio al mondo in legno; un progetto ambizioso, che si inserisce nella lunga tradizione di fabbricati in legno del Paese scandinavo e il cui obiettivo è dimostrare la possibilità di costruire abitazioni urbane ad alta densità, utilizzando materiali ecocompatibili, e lo sviluppo di nuovi sistemi strutturali per spingersi in altezza A rimarcare tali concetti, la struttura, costituita da un telaio in lamellare esterno e moduli impilati in X-lam, doveva innanzitutto essere lasciata a vista e non protetta; tuttavia, considerando il clima estremamente umido di Bergen (centro abitato dove sorge Treet), si è preferito adottare facciate vetrate su due fronti e un rivestimento in Corten sugli altri due Tale soluzione ha permesso di migliorare anche l’isolamento acustico, visto il traffico veicolare del vicino viadotto che oltrepassa il Puddefiorden, e di fornire a ogni unità immobiliare un balcone I telai in lamellare dell’ossatura portante sono stati preassemblati in fabbrica, smontati, portati sul sito, rimontati e posti in opera, mentre i moduli, anch’essi prefabbricati, sono giunti dall’Estonia dove sono stati prodotti, già completi della cucina, degli elettrodomestici, dei bagni e degli impianti Anche il vano scale e ascensore è realizzato in X-lam Una delle sfide del costruire un edificio 49,4 m di altezza (misurata a partire dal livello d’ingresso) era evitare le oscillazioni della struttura a causa del forte vento Rispetto a fabbricati in acciaio o calcestruzzo, infatti, gli edifici in legno sono più leggeri e, vista l’altezza del Treet, era necessario contenere questo effetto a livelli accettabili: la soluzione individuata dal team di strutturisti è stata l’inserimento di un carico sul tetto, una piattaforma in cemento con funzione di terrazza fruibile da tutti i condòmini Anche la questione antincendio è stata attentamente valutata, non esistendo soluzioni predeterminate che potessero essere direttamente applicate sono state sviluppate e documentate soluzioni specifiche per questo progetto I due principali fornitori, Kodumaja e Moelven, sono stati coinvolti fin dalle fasi iniziali del progetto e hanno contribuito notevolmente al suo sviluppo La particolare soluzione strutturale e costruttiva messa a punto ne consente la ripetibilità e anche un’ulteriore crescita in altezza

27
F o t o M o r e n P e d e s e nn v i s o
3
28 legnoarchitettura 23 progetti
pianta piano tipo pianta power storey fronte est con rivestimento in Corten fronte est con struttura in evidenza

prevenzione antincendio

Il rapporto delle strategie antincendio di questo edificio afferma che il sistema portante principale deve resistere 90 minuti al fuoco senza collassare, mentre i sistemi secondari di carico, come i corridoi e le balconate, devono resistere 60 minuti all’esposizione al fuoco

La progettazione strutturale antincendio è stata effettuata secondo l’Eurocodice 5 È stato usato il metodo così chiamato della ‘sezione trasversale ridotta’, che determina l’effettiva residua sezione trasversale dopo la carbonizzazione Un tasso nominale di carbonizzazione di 0,7 mm/minuto porta a una velocità di carbonizzazione di 63 mm dopo 90 minuti; a ciò si aggiungono altri 7 mm per ottenere l’effettiva residua sezione trasversale Conseguentemente tutti i connettori in acciaio, piastre e tasselli, sono posti a una distanza minima di 70 mm dalla superficie esterna e tutti gli spazi tra le connessione degli elementi in legno sono sigillati con riempitivi a prova di fuoco

Tra le misure di protezione citiamo anche la compartimentazione degli spazi, pitture anti-fiamma sul legno utilizzato nelle vie di fuga, sistemi a pioggia a elevata pressione nei vani delle scale di sicurezza, oltre agli sprinkler presenti in tutto l’edificio, nonché un’ulteriore coibentazione delle facciate in acciaio corten per evitare la propagazione del fuoco nell’intercapedine tra il rivestimento e gli elementi modulari Un contributo è dato anche dai solai prefabbricati in calcestruzzo in grado di fornire un favorevole sezionamento in caso di incendio Esclusivamente le pareti in X-lam e i pavimenti/soffitti delle terrazze non sono state trattate o rivestite ma solo protette da un sistema automatico di estinzione a pioggia

29
sezione AA

struttura

Sopra, i componenti in legno dell’edificio.

Da sinistra: i moduli prefabbricati; il telaio in lamellare; il vano scale e ascensore in X-lam; il complesso degli elementi a telaio e in X-lam che formano la reale struttura portante del fabbricato

Il design della struttura può essere facilmente spiegato immaginando un armadio rack con un telaio esterno e cassetti che si inseriscono al suo interno; nel caso del Treet lo scheletro esterno si configura in grandi capriate di legno lamellare e i cassetti in moduli prefabbricati

Il tutto suddiviso in blocchi di quattro piani di altezza intervallati dai cosiddetti power storeys, piani rinforzati collegati alla struttura visibile in facciata Una soluzione ripetibile che consente costruzioni anche più alte

La struttura in legno si eleva sopra una parte interrata in calcestruzzo armato che accoglie i garage, le cantine e i locali tecnici e che, a sua volta, è ancorata a pali di fondazione verticali e diagonali infissi nel terreno Il sistema portante consiste in un’ossatura esterna in lamellare (le capriate) posto lungo le facciate, che garantisce la rigidità necessaria all’edificio, e in moduli prefabbricati in X-lam, che costituiscono il volume abitativo, impilati per un’altezza di quattro piani I livelli 1-4 dei moduli non sono vincolati al telaio portante che li circonda e poggiano sul solaio superiore del blocco di fondazione Il livello 5, chiamato power storey, è un piano in lamellare rinforzato che, connesso alle capriate della facciata e non gravante sui moduli abitativi sottostanti, sostiene all’estradosso un solaio prefabbricato in calcestruzzo con funzione di base per i successivi quattro livelli di moduli impilati (6-9) Anche i moduli dal livello 6 al 9 non sono collegati al telaio esterno e in nessun altro punto se non alla base in calcestruzzo; il sistema in seguito viene ripetuto con un nuovo power storey al livello 10 e con i moduli superiori, livelli 11-14 Pure il tetto è un solaio costituito da elementi prefabbricati in calcestruzzo i quali, uniti alle capriate, aumentano la massa dell’edificio, migliorandone il comportamento dinamico I power storeys sono collegati ai moduli sottostanti con tiranti Tutti gli elementi in lamellare sono collegati mediante piastre in acciaio (con connettori a scomparsa) e tasselli, una giunzione ad alta resistenza comunemente usata nei ponti e nei grandi edifici (in Norvegia normalmente si usano piastre di acciaio da 8 mm e

tasselli da 12 mm) In considerazione della confidenza ed esperienza degli strutturisti e dei produttori del lamellare con questo tipo di attacchi, non sono state prese in considerazioni soluzioni alternative

La base dell’edificio è un rettangolo di 23x21 m Gli elementi portanti hanno le seguenti dimensioni tipiche: sezione trasversale di un montante in lamellare 405x650 mm e 495x495 mm, sezione trasversale della tipica diagonale del sistema di capriate 405x405 mm; moduli 4x8,7 m e 5,3x8,7 m Teoricamente, tra i moduli abitativi e le capriate lamellari c’è una distanza di 34 mm, sufficiente ad assicurare le necessarie tolleranze costruttive ed evitare interferenze nei possibili movimenti orizzontali dei moduli e delle capriate

Per determinare i carichi di progetto, ci si è basati sugli Eurocodici con riferimento agli allegati nazionali per la Norvegia Il carico del vento risulta essere la forza dominante (velocità V = 44,8 m/s e pressione q = 1,26 kN/m2) ed è stato applicato come un carico statico transitorio su tutte le quattro facciate dell’edificio; è stato considerato anche il carico del vento in direzione diagonale (45°, 135°)

Dal punto di vista sismico, Bergen si trova in una zona della Norvegia soggetta a terremoti, ma l’accelerazione al suolo (ag40Hz = 0,9 m/s2) è piccola se comparata a quella di molte altre nazioni, con un’accelerazione di progetto pari a 0,7 m/s2 Inoltre, secondo i regolamenti norvegesi, quando prevale la forza del vento, non è necessario includere le azioni sismiche nella progettazione, come nel caso di questo caso edificio

La struttura in legno è chiusa da vetrate o rivestita in Corten, sia per incrementarne la durabilità e ridurne la manutenzione, sia per ragioni anticendio Solo una piccola parte del rivestimento in legno della facciata (lamelle di pino nordico con trattamento a base di rame) è esposto agli agenti atmosferici, e cioè quelle superfici facilmente accessibili per la manutenzione, visto che queste richiedono frequenti trattamenti ignifughi

La facciata vetrata è supportata da un telaio in X-lam che sorregge anche le terrazze degli appartamenti

30 legnoarchitettura 23 progetti

Prefabbricazione in laboratorio dell’intera intelaiatura esterna a capriate in lamellare L’ossatura verrà poi divisa in tre parti, trasportata in cantiere e riassemblata

A sinistra, dettaglio dell’edificio con gli elementi portanti e i due power storeys al 5° e al 10° livello A destra, fissaggio del rivestimento in Corten.

Ultimazione della posa della facciata vetrata.

31
F o o R u n e A b r a h a m s e n F o t o A R T E C F o t o A R T E C F o o A R T E C
32 legnoarchitettura 23 progetti 4 F o o D a v d V a l d e b
33 F o o D a v d V a l d e b F o o C P h o t o 5 6

Immagini dell’intero edificio visto dal cavalcavia e dal fiordo

6

Dettaglio della facciata in corrispondenza dell’entrata

7

Il balcone vetrato consente di godere dell’affaccio privilegiato sul fiordo, fungendo, al contempo, anche da spazio abitativo

assemblaggio

L’ottimizzazione della logistica e delle procedure di posa si è resa necessaria al fine gestire al meglio un cantiere delle dimensioni del Treet che sostanzialmente ha richiesto l’assemblaggio di elementi prefabbricati In realtà la struttura dei telai portanti nella sua interezza è stata assemblata una prima volta in fabbrica per una verifica geometrica e strutturale, in seguito smontata per facilitarne il trasporto e, infine, ricomposta in sito in tre parti, che hanno segnato le tre fasi di montaggio Anche i moduli, arrivati via mare dall’Estonia con tre spedizioni successive, sono stati installati in tre momenti; questi elementi compatti, prodotti da abete rosso norvegese, sono stati progettati e costruiti secondo standard passivi e sono giunti in cantiere già dotati di parte degli arredi, degli impianti e di una protezione esterna, poi rimossa, che ne garantiva la durabilità anche se esposti alle condizioni climatiche esterne durante l’assemblaggio Il vano della scala principale e dell’ascensore è stato prefabbricato in tre parti (ognuna dell’altezza di 5 piani), innalzate con una gru a torre e montate in circa 10 minuti Si sono utilizzati gru a torre e ponteggi mobili per installare la struttura in cantiere e le coperture temporanee per proteggere gli appartamenti, le giunzioni e il legno dall’umidità durante il processo costruttivo Un modello passo per passo è stato realizzato appositamente per garantire la corretta costruzione dell’edificio

A lato, due fotografie del cantiere del Treet, da cui è possibile notare la struttura esterna portante a capriate che resterà a vista, assieme ai power storeys ai livelli 5 e 10 e i moduli impilati Si vede, inoltre, l’ulteriore coibentazione posata al di sopra degli elementi modulari All’ultimo piano prende forma il grande spazio della terrazza comune

34 legnoarchitettura 23 progetti 4 5
7 F o o : M o r e n P e d e s e nI n v s o F o o A R T E C F o o A R T E C

Qui a lato sono schematizzate le fasi di posa della struttura

A partire da sinistra in alto, i primi quattro livelli di moduli impilati sul piano di fondazione e la prima parte della struttura esterna a capriate con il piano di rinforzo in lamellare

Questo schema si ripete per altre due volte

Nella terza fase, il piano di rinforzo è sostituito da un solaio rigido che svolgerà la funzione di terrazza comune

Le ultime fasi riguardano la posa della sovrastruttura di facciata per realizzare i balconi e del rivestimento vetrato in corrispondenza di questi ultimi e in Corten sui fronti opachi

35
dECOi architects
Main Office
MA (USA) F o o © A n t o n G a s s
One
Cambridge,

1

Nell’ampio open space gli uffici si aprono verso il Charles River e sulla zona centrale della città di Boston Il design parametrico delle scrivanie richiama il movimento curvilineo del soffitto.

2

Dettaglio del desk dell’area segreteria: il pavimento, senza soluzione di continuità, si fa arredo e le curve del soffitto sembrano scendere fino a terra

Nel 2015 il progetto ha vinto il premio del pubblico agli A+Award nella categoria Architecture + Materials

38 legnoarchitettura 23 progetti 1 F o o © A n t o n G a s s

2

Ubicazione: Cambridge, Boston, MA (USA)

Progetto: dECOi architects - Mark Goulthorpe, Raphael Crespin (capi progetto); Gabriel Blue Cira, Matt Trimble, Priyanka Shah, Boston (USA)

MIT: Kaustuv de Biswas, Boston (USA)

Analisi matematiche: prof Alex Scott, Oxford University (GB)

Consulenti: Gensler Associates - Helen Heitman, Pablo Garcia, Boston (USA)

Appaltatore: Tricore - Paul Jacobson, Hanover (USA)

Arredi: CWKeller - Shawn Keller, Plaistow (USA)

Lavori: 2009

Deformazioni parametriche

Il rinnovamento degli uffici di un gruppo di investimenti in edifici verdi ed energie rinnovabili, One Main a Boston, affonda le sue radici in due precedenti lavori dei progettisti incaricati, In the Shadow of Ledoux del 1993, una scultura che cerca di unire i concetti di “pubblico” e di “privato” e la Miran Gallery del 2003, un rinnovamento interno di un atelier In particolare nell’opera scultorea, ispirandosi a due progetti di Claude-Nicolas Ledoux (Maison des Gardes Forestiers e Maison des Bains de la Ville de Chaux), gli architetti hanno dato forma per la prima volta al concetto di “spazio che penetra l’architettura” – e non viceversa – grazie a un oggetto dalla complessa sagoma curvilinea E queste forme curvilinee si ritrovano proprio nella trasformazione degli uffici One Main, dove due superfici “attive”, il piano di calpestio e il soffitto, a partire da una grande colonna defilata si animano e si articolano a seconda della funzione che via via svolgono; il pavimento diventa il desk di ricevimento oppure una panchina o si rialza a sostenere le lunghe e ampie vetrate degli uffici open space e della segreteria; il soffitto si incurva, si dilata, si specchia nelle forme sinuose delle maniglie delle porte, delle scrivanie, si deforma e si svasa nelle grate di aerazione e in corrispondenza degli attacchi delle luci o delle prese Tranne le sedute, ogni oggetto all’interno di questo ampio spazio aperto è realizzato con compensato di abete: scaffali, contenitori dei computer, maniglie, tavoli, scrivanie, panche sono la dimostrazione tangibile di un possibile approccio alla rigenerazione di edifici costruiti alla fine dell’epoca industriale attraverso l’utilizzo di materiali a basso impatto e processi a bassa energia L’idea su cui si fonda il progetto è combinare un materiale sostenibile, qual è il compensato di abete derivante da boschi coltivati in modo sostenibile, con la tecnologia di taglio mediante macchine a controllo numerico (CNC), una prassi ai giorni nostri consolidata, ma che nel 2009 – anno di elaborazione della riqualificazione – era innovativa, soprattutto poiché le informazioni digitali di fresatura sono state fornite al produttore direttamente dagli architetti che hanno sviluppato il progetto in ambiente CAD-CAM In pratica i progettisti sulla base dei loro disegni hanno creato degli algoritmi automatizzati per la generazione dei file di taglio, passando, senza soluzione di continuità, dalla progettazione alla fabbricazione

39
F o t o © A n o n G r a s s l

pavimento e mobilio integrato

Analisi delle inflessioni delle superfici e degli angoli e vista completa del rivestimento del pavimento con gli arredi

pianta con linee di livello

40 legnoarchitettura 23 progetti
soffitto

lavorazione e assemblaggio

Il materiale utilizzato nel One Main è multistrato di abete rosso della Finlandia coltivato in maniera sostenibile La quantità di carbonio sequestrato durante la crescita dell’albero eccede di molto la quantità di carbonio rilasciata per il consumo di energia dovuto al trasporto e alla fabbricazione, poiché per il taglio e l’assemblaggio vengono utilizzate solitamente macchine leggere ed efficienti Il progetto ha contemplato la lavorazione di 1 200 pannelli di compensato di 4x12 piedi (ca 1,22x3,66 m) e di 1,5 pollici (3,81 cm) di spessore, fresati mediante un unico router CNC triassiale, per oltre un milione di piedi lineari tagliati Per facilitare il compito del produttore, gli architetti hanno sviluppato una serie di protocolli informatici che hanno analizzato la geometria della superficie del progetto e automaticamente l’hanno divisa in parti, indicando così agli utensili di taglio i percorsi da seguire Tutti i singoli elementi sono stati prefabbricati con minime tolleranze e con sprechi di materiale bassissimi (circa il 10%, ridotto in poltiglia e riciclato)

Le singole lamelle sono state unite in sezioni e rifinite in laboratorio, portate all’ultimo piano del fabbricato mediante una gru e montate all’interno dell’edificio Il procedimento di assemblaggio si è rivelato quindi relativamente semplice data la precisione del taglio Il pavimento è stato montato su una sottostruttura, mentre le parti che compongono il soffitto sono agganciate mediante tiranti a travetti in acciaio ancorate al solaio superiore esistente

Dalla zona riunioni, con il grande tavolo sulla destra, si notano alcuni dettagli del progetto: la struttura di pavimentazione si innalza a formare una panchina, si rialza per sostenere le vetrate di separazione degli uffici, si apre per far uscire le scrivanie. Allo stesso modo, il soffitto si dilata per accogliere gli alloggiamenti delle luci e delle griglie di areazione e si fessura per sostenere, a sua volta, le vetrate

41
F o o © A n t o n G a s s

Taglio con macchina CNC a tre assi dei singoli componenti della struttura e fresatura di uno dei pannelli degli arredi

Elementi in attesa di essere assemblati in parti prefabbricate A destra, due segmenti della grande colonna posta nella zona della segreteria.

Operazioni di finitura di una parte prefabbricata del desk di ingresso.

42 legnoarchitettura 23 progetti

Assonometria di un ufficio tipo: il pavimento è montato su listelli mentre il soffitto è appeso alle travi portanti del solaio di copertura, gli impianti sono alloggiati nello spazio tra soffitto e solaio

A sinistra, dettaglio e immagine del sistema di sostegno degli elementi del soffitto:

1 profilo metallico a U fissato all’intradosso del solaio di copertura

2 dado scanalato con gruppo molla

3 vite ad anello

4 anello di collegamento

5 tirante con occhiello

6 morsetto di blocco

7 tenditore

8 anello di collegamento

9 vite a testa cilindrica con rondella piatta e dado di bloccaggio

43
assonometria di un ufficio tipo
1 2 3 4 5 6 7 8 9

sezione di alcuni degli elementi tipici costituenti un ufficio

44 legnoarchitettura 23 progetti
prospettiva del diagramma della colonna d’ingresso

Due fasi del sollevamento delle parti prefabbricate della struttura interna, dal livello del terreno all’ultimo piano del palazzo che accoglie gli uffici oggetto della riqualificazione

Installazione degli elementi del soffitto mediante tiranti al solaio superiore; la struttura lignea maschera lo spazio per gli impianti di ventilazione ed elettrico.

I lavori di montaggio dei componenti della struttura interna sono stati eseguiti pressoché in parallelo. Il pavimento è posato su listelli e controlistelli.

A sinistra, per la posa e il fissaggio si utilizzano scale a pioli e piccoli mezzi mobili

A destra, dettaglio della curvatura della pavimentazione a formare delle panchine in corrispondenza delle vetrate

45
F o o © C r u s C o r n u

Circular Pavilion

Parigi (F)

Heureux Architectes
Encore

1

Il fronte secondario del padiglione: porte riciclate su tutta la facciata danno forma alla geometria del rivestimento

2

Il prospetto principale con la terrazza che colma il lieve dislivello della piazza che lo ospita.

3

Il piccolo edificio temporaneo completamente chiuso; alle spalle, la cattedrale di Notre-Dame

Montato sullo spiazzo antistante l’Hôtel de Ville, il Padiglione ha ospitato, fino a tutto dicembre 2015, mostre, laboratori e incontri. All’inizio del 2016, è stato smontato e rimontato nel 14° Arrondissement, dove viene usato come circolo per un’associazione sportiva

48 legnoarchitettura 23 progetti 2 1 F o t o © C r e W e n e F o o © C y u s C o n u

3

Ubicazione: Parigi (F)

Progetto: Nicola Delon e Julien Choppin

- Encore Heureux Architectes, Parigi (F)

Responsabile del progetto: Sonia VuEncore Heureux Architectes

Assistenti: Mathilde Billet, Emmanuelle

Cassot e Guillaume Bland - Encore Heureux Architectes

Committente: Alexandre Labasse per Pavillon de l’Arsenal, Parigi (F)

Carpenteria: Cruard, Simplé (F)

Lavori: Settembre-Ottobre 2015

Superficie utile: 70 m2

Immagini di cantiere: Pavillon de l’Arsenale e Hencore Heureux

Architectes

Per un’architettura a zero rifiuti

Contrariamente a quanto fa pensare il suo nome, il Circular Pavilion non ha niente di tondo Il nome, infatti, richiama il processo che segue i principi dell’economia circolare, secondo cui i rifiuti di uno diventano le risorse di altri; per rimarcare questo concetto e per dimostrare la potenzialità delle operazioni di riuso in architettura, il piccolo fabbricato temporaneo è stato realizzato in concomitanza con la conferenza sul cambiamento climatico delle Nazioni Unite, tenutasi a Parigi tra il 30 novembre e l’11 dicembre del 2015

Non è la pianta dell’edificio – un trapezio di 70 m2 completamente libero all’interno – o la sua struttura in legno a telaio a rendere singolare il Padiglione, bensì la tipologia e la provenienza dei materiali con cui è stato realizzato, ovvero rifiuti presi da cantieri aperti, ordini sbagliati e merci non utilizzate: ognuno degli elementi del progetto ha la sua storia 180 porte di quercia, recuperate da una ristrutturazione di una serie di residenze nel 19° Arrondissement e posate secondo un disegno a spina di pesce che segue la linea zigzagante della copertura, caratterizzano la sua inusuale facciata; il telaio strutturale in legno è realizzato con materiali in esubero del cantiere di una casa di riposo, mentre la pavimentazione e le tamponature delle pareti sono costituiti da vecchi listelli e pannelli di compensato provenienti da un edificio in costruzione e da allestimenti di mostre Per la coibentazione si è usata lana minerale rimossa dal tetto di un supermercato e per la terrazza esterna il legno derivante dall’evento ParisPlage, che fin dal 2006 trasforma le rive della Senna in spiagge temporanee All’interno, le sedie utilizzate per seminari e dibattiti sono state raccolte dai rifiuti ingombranti della capitale francese, sistemate e ridipinte Altri elementi utilizzati includono plexiglass, ordinato erroneamente dalla municipalità parigina, e luci sospese fornite dal magazzino pubblico competente per l’illuminazione

49
F o o : © C y l e W e n e

pianta

sezione longitudinale

il concetto di riuso

Voluto dal Centre d’Information, de Documentation et d’Exposition d’Urbanisme ed d’Architecture de Paris et de la Métropole Parisienne e frutto di un processo sperimentale, il Circular Pavilion ha dimostrato che è possibile usare materiali provenienti dal recupero e avere accesso a materiali nuovi inutilizzati Dall’esperienza maturata con il progetto emerge che è basilare creare nuove relazioni con chi dirige i cantieri di riqualificazione e demolizione degli edifici, i quali hanno la responsabilità della gestione dei materiali stessi, e porre maggiore attenzione alle materie prime e ai materiali derivati; ciò permetterebbe di ridurre il nostro consumo di risorse primarie, così come di evitare la produzione e l’accumulo di rifiuti che poi devono essere trattati o smaltiti

50 legnoarchitettura 23 progetti

4

Le tamponature delle pareti interne sono state realizzate con elementi provenienti dall’installazione di mostre, la struttura con legname inutilizzato di cantiere e le lampade dal magazzino della Municipalità di Parigi.

5

L’area interna del padiglione: le sedie sono state recuperate dai rifiuti ingombranti, aggiustate e dipinte di bianco

51 4 5 F o t o © C y u s C o n u t F o t o © C y r u s C o r n u t

impermeabilizzazione e rivestimento

Lo schema a lato rappresenta le “fonti” da cui derivano i vari materiali usati per il Circular Pavilion

1 illuminazione urbana

2 corpo illuminante

3 edificio residenziale

4 porte di ingresso in quercia

5 rifiuti ingombranti

6 sedie in legno

7 spiaggia di Parigi

8 rivestimento in legno del bordo della spiaggia

9 supermercato

10 isolante in lana di roccia

52 legnoarchitettura 23 progetti
struttura portante in legno isolamento
2 4 1 3 6 8 5 7 10 9

Per quanto temporaneo, il padiglione è stato costruito a regola d’arte

Nella foto accanto si nota il telaio portante in legno che rimane all’esterno della struttura nella parte inferiore, mentre superiormente è stato posato il telo di tenuta all’aria e i listelli, che fungeranno da supporto per le porte che costituiscono il rivestimento

A sinistra, le porte pronte per l’installazione; a destra, la realizzazione del rivestimento nella parte superiore di una delle due facciate lunghe.

L’interno del padiglione con l’ossatura in legno ancora in vista. Si sta completando la coibentazione tra i montanti (a sinistra, nella foto, è già realizzata) e il rivestimento con lastre di cartongesso

53

Ulls HusKuben

Uppsala (S)

Ahrbom & Partner Arkitektkontor
F o o : Å k e E s o n L n d m a n

1

Due ali della Facoltà di Scienze Agrarie dalla corte interna: a differenza del Kuben, che si intravede alle spalle con il suo rivestimento nero, questa parte del complesso universitario è solamente rivestita in legno, mentre la struttura è realizzata in acciaio e calcestruzzo.

2

Uno dei due ingressi principali del Kuben Sui fronti strada, l’edificio si eleva per cinque piani, dalla corte interna per sei livelli

3

L’ingresso è totalmente vetrato. Gli ultimi tre piani sono rivestiti in pannelli di legno in massello di abete rosso dipinti di nero.

56 legnoarchitettura 23 progetti 2 1 F o t o Å k e E : s o n L i n d m a n F o o Å k e E s o n L n d m a n

Ubicazione: Ultuna, Uppsala (S)

Progetto: Ahrbom & Partner

Arkitektkontor, Stoccolma (S)

Strutture: Bjerking, Stoccolma (S)

Direttore dei lavori: Akademiska Hus, Uppsala (S)

Appaltatore: PEAB, Förslöv (S)

Lavori: maggio 2012 - gennaio 2015

Area edificio: 24.000 m2

Area Kuben: 6 000 m2

Area verde: 3 000 m2

Legno3

All’interno del Campus di Ultuna, il nuovo edificio dell’università svedese di Scienze Agricole, Ulls Hus, si distingue per un volume di sei piani, in parte vetrato e in parte rivestito da pannelli di colore nero, che ne indica l’ingresso Questo fabbricato, il cui nome – Kuben o Cube –richiama la sua forma, è totalmente realizzato in legno con una struttura a telaio e pannelli massicci in X-lam

Tutto il complesso è frutto di un percorso progettuale decisamente articolato che ha visto, fin dall’inizio, gli architetti risoluti nel voler realizzare un edificio con struttura in legno e i committenti indecisi su tale soluzione o su una, più tradizionale, in acciaio e cemento, al punto tale che per alcune settimane progettisti architettonici e strutturali hanno lavorato, in dettaglio e parallelamente, su due progetti che prevedevano le due proposte strutturali Il compromesso finale ha visto la realizzazione del Kuben totalmente in legno e il restante fabbricato della facoltà con un telaio in acciaio e calcestruzzo, seppur rivestito da una facciata in doghe di legno verticali sulla corte interna Kuben segna dunque l’ingresso dell’intero campus di Ultuna, sovrastando di due piani tutti i fabbricati del quartiere e ospitando nei primi tre piani la hall e l’accoglienza (un volume totalmente aperto con una superficie di circa 1 000 m2) e gli uffici amministrativi e direzionali negli ultimi tre livelli Caratterizzata da una pianta quadrata leggermente distorta di 30 m per lato, la struttura è costruita attorno a una griglia di 7,2 m, suddivisa in moduli da 2,4 m che definiscono tutti gli elementi dell’edificio, dall’interasse dei pilastri portanti ai cassettoni della copertura dell’atrio, dalle partizioni interne ai rivestimenti dei pavimenti; gli unici elementi avulsi da tale schema sono la scultorea scala di sei piani, rivestita da pannelli laminati in legno di abete rosso a tre strati, e il vano degli ascensori, contraddistinto per tutti i sei piani da pannelli in MDF laccati in color grigio scuro lucido

L’obiettivo di questo rigoroso sistema progettuale è stato creare un ambiente calmo e armonioso, ma allo stesso tempo monumentale, che fosse all’altezza del suo ruolo di ingresso principale di una delle più importanti università del paese

57
F o o : Å k e E s o n L n d m a n
3

2

3 ala est

4 facoltà esistente

L’ingresso è pensato anche come spazio espositivo e lo stesso pavimento è diventato un’opera d’arte, precisamente “P Ull” dell’artista e docente svedese Sophie Tottie Essa è formata da più di 800 dischi di ottone di varie dimensioni che, inglobati nel pavimento terrazzato, richiamano un cielo scintillante di stelle. Per poter vedere l’opera nella sua interezza, è necessario salire alle balconate del secondo e terzo piano oppure sulla grande scala fino al sesto piano

1 entrata e ricezione

2 atrio con opera d’arte

3 negozio

4 aule

5 auditorium

6 studi architetti paesaggisti

7 mensa

8 entrata professori

9 studio modelli e pittura

10 laboratori

1 3 2 4 55 7 666 8 9 10 4 4 4 4 4 4 7 4
Kuben
1
Università di Scienze Agricole
58 legnoarchitettura 23 progetti pianta piano terra 1 2 3 4 planimetria della zona
Kuben

trasmittanza media elementi costruttivi

pareti esterne, 0,15 W/m2 solaio contro terra, 0,15 W/m2 copertura, 0,10 W/m2 finestre, 0,84 W/m2

prestazioni energetiche

per riscaldamento, 32 kWh/m2 per acqua calda, 8 kWh/m2 per raffrescamento,13 kWh/m2

1 ingresso da viale Almas

2 entrata e ricezione

3 zona living

4 area incontri e lounge “The shelf”

5 amministrazione

6 direzione

7 atrio con opera d’arte

8 passaggio verso la Facoltà esistente

9 locali tecnici

10 stanze computer e server

11 tetto giardino sull’ala est 12 passaggio Nitzelius

Vista dell’ala ovest della Facoltà dalla corte
59
1 2 4 5 5 7 6 8 9 11 10 12 9 3 F o o : Å k e E s o n L n d m a n
sezione del Kuben
Dida 60 legnoarchitettura 23 progetti 4 F o o Å k e E s o n L n d m a n

struttura e materiali

La struttura del Kuben è realizzata con un telaio in legno di pilastri e travi in lamellare di abete rosso svedese; per resistere alla forze laterali e del vento, essa è supportata da pannelli in X-lam, prodotti in Austria, e coadiuvata da controventi in acciaio Le connessioni tra pilastri e pannelli sono state eseguite principalmente con giunzioni a coltello nascoste e con viti a doppio filetto o solo con viti a doppio filetto Sia la scala, appesa alle travi del soffitto con tiranti in acciaio, che il vano ascensore sono realizzati totalmente in legno

Il progetto è costruito seguendo una griglia strutturale, basata su un modulo di 7,2 m (la distanza tra i pilastri) e suddivisa in sotto moduli da 2,4 m, leggibili soprattutto nel grande soffitto a cassettoni dell’atrio e degli uffici e nel pavimento in legno al terzo piano, dove il tavolato è ruotato alternativamente di 90° per creare un disegno a scacchiera Ogni elemento è adattato a questa griglia come, ad esempio, i pavimenti in pietra dell’area lounge di 60x60 cm e le partizioni vetrate di 1,2 m

La struttura in legno, internamente a vista, è stata trattata con una vernice che protegge dai raggi UV così da ridurre l’ingiallimento e con una finitura fuoco ritardante Per reperire quest’ultima, i progettisti hanno effettuato una lunga ricerca che li ha portati a utilizzare un prodotto appositamente sviluppato in Norvegia per la Concert Hall di Kristiansand All’esterno il materiale legno è utilizzato, come rivestimento degli ultimi tre piani dell’edificio, in massello di abete rosso, dipinto di nero e segato radialmente Questa tipologia di taglio del legno evita la fessurazione e la curvatura del legname, questione particolarmente importante nel progetto, visto che la pittura nera incrementa le differenze di temperatura a cui il rivestimento è quotidianamente soggetto a causa delle escursioni termiche

I battiscopa dei pavimenti che si affacciano sull’atrio e i soppalchi sono rivestiti con gli stessi pannelli di legno laminato a 3 strati della scala principale e le colonne in lamellare sono sagomate alla base per permettere l’inserimento a filo dello zoccolo in abete rosso L’acciaio strutturale e tutti gli impianti elettrici sono dipinti di un colore grigio scuro, mentre le tubazioni visibili sono state pitturate con colore “abete rosso” L’impianto di riscaldamento è realizzato con panche radianti o nascosto dietro le travi della facciata rivestita in legno

acustica

Una delle maggiori sfide del progetto del Kuben era ottenere una buona qualità sonora, vista la struttura in legno e il volume libero su tre livelli e ampiamente vetrato dell’ingresso I progettisti si sono avvalsi dell’aiuto di esperti acustici i quali hanno consigliato di inserire e inglobare all’interno di tutte le strutture orizzontali le misure acustiche Pertanto, materassini anticalpestio fanno parte del pacchetto costruttivo dei solai, mentre all’interno dei cassettoni dei soffitti sono appesi grandi pannelli in materiale fonoassorbente con funzione di assorbitori acustici Anche il rivestimento inferiore della scala nasconde assorbitori acustici, oltre a condutture elettriche e antincendio I risultati si sono rivelati eccellenti a tal punto che non si percepiscono suoni, ad esempio, quando qualcuno sale o scende la grande scala o usa scarpe con i tacchi

4

L’area di attesa della zona amministrazione e direzione.

5

Uno sguardo verso il soffitto dai piedi della scala, di cui si notano i tiranti di sostegno appesi al solaio Il modulo su cui è impostato il progetto è ben evidenziato dai cassettoni, rivestiti con pannelli acustici per attenuare il riverbero sonoro di questo ampio e alto spazio

61
5 F o o A h r b o m & P a t n e r

Parete, dall’esterno:

- pannelli di rivestimento in legno massello di abete rosso, tagliato radialmente (22x95 mm)

- controlistelli e listelli (28x70 mm)

- isolamento in lana di roccia (45 mm)

- lastra in cartongesso impermeabile (10 mm)

- isolamento in lana di roccia (195 mm) tra travetti (45x195 mm)

- pannello in X-lam (95 mm) per la stabilizzazione delle forze laterali e del vento

- barriera al vapore in PE (0,2 mm)

- isolamento in lana di roccia (195 mm) tra travetti (45x95 mm)

- compensato

- lastra di protezione al fuoco

Copertura, dall’estradosso:

- membrana termoadesiva di impermeabilizzazione con superficie esterna costituita da uno strato protettivo di ardesia naturale, con armatura interna in poliestere e aggiunta di polimeri

- pannelli in PIR con con facciata bituminosa rinforzata con fibra di vetro per tetti in pendenza

- isolamento in PIR ad alta prestazione

- membrana termoadesiva impermeabilizzante con armatura interna in poliestere e aggiunta di polimeri

- pannello in X-lam (125 mm)

- trave in lamellare con pannelli fonoassorbenti appesi

1 pannello copertura X-lam (125 mm)

2 trave in lamellare L40c (215x450 mm, s 800 mm)

3 elementi fono assorbenti appesi al solaio

4 trave in lamellare L40c (215x540 mm)

5 pannello X-lam (95 mm) per stabilizzazione laterale e al vento

6 pilastro in lamellare L40c (215x405 mm)

7 davanzale in pino massiccio (28 mm) e caditoie

8 linoleum, massetto cementizio (40 mm), materassino acustico (20 mm)

9 pannello solaio X-lam (182 mm)

10 trave in lamellare L40c (215x450 mm, s 2400 mm)

11 doppio pilastro in lamellare L40c (215x405 mm)

12 termoconvettore

13 tenda da sole verticale

14 trave in acciaio VKR (300 x 200 mm) rivestito con tavole ignifughe e pannelli di legno lamellare

15 binario da incasso per faretti

16 panca radiatore con canalizzazione a incasso per alimentazione

62 legnoarchitettura 23 progetti 1 3 3 2 4 5 7 6 8 9 11 10 12 13 15 14 16 F o o A h b o m & P a r n e

A sinistra, posizionamento di un pilastro opportunamente sagomato sulle staffe metalliche

A destra, posa della struttura del solaio di copertura

Fissaggio del reticolo di travi anche medianti viti filettate

A sinistra, in alto, chiusura dei cassettoni del soffitto con elementi in legno apribili al fine di consentire il controllo e l’ispezione degli impianti

A sinistra, in basso, tubazioni della ventilazione e degli impianti elettrici nel reticolo del soffitto

A destra, completamento del rivestimento esterno In basso si notano le travi Ipe in acciaio che legano la esile struttura a pilastri dell’open space dell’ingresso.

63
F o o A h r b o m & P a t n e r F o o A h r b o m & P a t n e r F o t o A h b o m & P a t n e F o t o A h b o m & P a r n e F o o A h b o m & P a r n e F o o A h b o m & P a r n e
F o o © G u n t e R i c h a r d W e t

aut. architektur und tirol, ./studio3

bilding

Innsbruck (A)

1 2

Due scorci della grande vetrata a tutta altezza che caratterizza il fronte sud-est

3

Il bilding seminascosto tra le fronde del Rapoldipark. Del progetto che ha portato alla realizzazione dell’edificio che, ufficialmente, ospita il bilding e i relativi corsi, è da segnalare soprattutto l’aspetto ‘collettivo’ del suo sviluppo, che ha visto coinvolte diverse personalità dell’ambiente architettonico tirolese fin dalla fase iniziale, per continuare con la collaborazione attiva –e gratuita – di professionisti dell’edilizia, ingegneri, architetti nonché di studenti, grazie al cui lavoro si è potuta erigere la struttura in soli 5 mesi

66 legnoarchitettura 23 progetti 2 1 F o o © G u n t e r R i c h a r d W e t F o o © G u n e r R c h a d W e t

Ubicazione: Innsbruck (A)

Progetto: studenti di /studio 3 –Institut für experimentelle Architektur, Universität Innsbruck (A)

Coordinatori: Walter Prenner, Wolfgang Pöschl, Verena Rauch

Strutture: Alfred R Brunnsteiner, Natters (A)

Date di progetto: ottobre 2014-ottobre 2015

Lavori: aprile-luglio 2015

Superficie fondiaria: 1 000 m2

Superficie utile: 200 m2 (terrazze)

Costi: totalmente sostenuti da ditte

sponsor e donazioni private

Autocostruzione nel parco

La scuola d’arte e d’architettura bilding è una singolare istituzione di Innsbruck che offre spazio a bambini e ragazzi dai 4 ai 19 anni per sviluppare la propria creatività nell’ambito di discipline come pittura, scultura, architettura, design, ma anche film e nuovi media Nel 2013, aut architektur und tirol, un’associazione che opera nell’ambito architettonico tirolese, propose di realizzare un edificio che ospitasse il bilding, la cui progettazione concettuale fu inizialmente gestita all’interno dell’associazione stessa In una seconda fase, lo sviluppo del concept è stato conferito a un collettivo di 27 studenti di /studio3 Institut für experimentelle Architektur dell’Università di Innsbruck, che hanno lavorato al progetto per tutto un semestre, contestualmente alla loro tesi di laurea Nel dicembre del 2014, una giuria ha scelto, tra 17 proposte, il progetto di Niklas Nalbach per una ulteriore elaborazione, che poi è stata portata alla maturità costruttiva dal collettivo di tutti gli studenti Premessa fondamentale: l’edificio doveva essere finanziato totalmente da contributi privati, fossero essi da aziende o cittadini, sotto forma di prodotti, denaro o prestazioni professionali Il risultato di questa riuscita cooperazione a costi contenuti è un corpo edilizio in legno che sembra ‘atterrato’ sul bordo meridionale del Rapoldipark di Innsbruck, in un luogo messo a disposizione temporanea (5-7 anni) dall’amministrazione cittadina dove terrazze e finestre a tutta altezza lo collegano al paesaggio del parco e le rampe permettono un accesso privo di barriere architettoniche All’interno, pavimenti e pareti oblique creano un continuum spaziale tra i vari ambienti con differenti atmosfere e possibilità di lavoro Zone più basse e scure si tramutano in zone aperte, più alte, mentre le ‘ramificazioni’ dell’edificio permettono di guardare verso tutte le direzioni del cielo Su una superficie di oltre 200 m2 trovano posto una zona workshop dedicata ai materiali, una dedicata ai media, un atelier di pittura, un ufficio con angolo cucina e due bagni Anche il mobilio è stato progettato e realizzato su misura, inserendosi alla perfezione negli interni, dove sono rimasti a vista gli elementi strutturali in X-lam

67 3 F o o : © G u n e r R i c h a r d W e t

Un non-luogo ai bordi di un parco considerato ‘difficile’ da un punto di vista sociale è diventato ora un luogo inconfondibile e carismatico, che, nelle intenzioni e nelle speranze di chi lo ha voluto, metterà le ali alla fantasia dei suoi giovani fruitori.

planimetria

1 terrazza

2 bagno

3 foyer

4 ufficio

5 stanza pittura/grafica

6 stanza scultura/architettura

7 stanza film/nuovi media

8 chill

pianta

68 legnoarchitettura 23 progetti
1 2 3 4 5 6 7 1 2 8 piscina
comunale

Il fronte ovest con

Le rampe garantiscono un accesso senza barriere architettoniche e conducono fluidamente il visitatore dall’esterno all’interno, quasi senza soluzione di continuità.

l’ingresso
69
fronte nord fronte est fronte sud
F o t o © G u n t e R c h a r d W e t
fronte ovest

sezione longitudinale AA

4

Uno scorcio della zona del foyer, verso ovest La zona vetrata sulla destra racchiude lo spazio dedicato al foyer

5

La vista del foyer per chi entra da ovest.

6

La stanza con il tavolo e gli sgabelli è quella dedicata alle attività dedicate alla scultura e all’architettura

Il bilding nasce dalla conduzione associata delle precedenti offerte di carattere artisticoarchitettonico di KUNTSCHschule e del programma per bambini e giovani di aut. architektur und tirol

70 legnoarchitettura 23 progetti 4 5 F o o © G u n t e R c h a r d W e t F o o © G u n e r R c h a d W e t
71 6 F o o © G u n t e R c h a r d W e t

costruzione

L’edificio che ospita i workshop organizzati da bilding si sviluppa su unico piano, per un totale di 240 m2, tra spazi interni ed esterni Le pareti e il solaio di copertura sono stati realizzati con elementi portanti in X-lam di abete rosso di 10 cm di spessore, lasciati a vista all’interno e, all’esterno, rivestiti con una membrana bianca impermeabile in EPDM, posata a caldo su tutta la superficie Le partizioni verticali opache e la copertura non hanno uno strato isolante, solamente sotto il solaio che accoglie il pavimento è stato posto uno strato di 16 cm di XPS, tra il suolo asfaltato su cui sorge l’edificio e il solaio stesso Le pareti vetrate sul lato sud hanno vetri doppi e sono provviste di un film protettivo contro i raggi solari, per minimizzare il surriscaldamento estivo In inverno l’edificio è riscaldato con un impianto di ventilazione mentre l’acqua calda arriva direttamente dalla vicina piscina comunale

Una volta scelta la soluzione progettuale di Niklas Nalbach nel dicembre 2014, i mesi successivi sono stati dedicati alla stesura dei disegni esecutivi e alla ricerca di ditte e professionisti che potessero contribuire – gratuitamente – alla realizzazione dell’edificio Ad aprile 2015 sono state realizzate le fondazioni, cui hanno fatto seguito i lavori di posa in cantiere dei singoli pezzi (prefabbricati), a giugno dello stesso anno sono iniziati i lavori interni Nell’autunno 2015 è stata infine inaugurata la nuova sede low-budget del bilding

Prospettiva della struttura vista da sud-ovest

72 legnoarchitettura 23 progetti
F o t o © G u n t e R c h a r d W e t

Una fase iniziale della costruzione: sul solaio in legno vengono posati i vari elementi delle pareti

La costruzione doveva essere abbastanza semplice da poter essere eseguita dagli studenti, con collegamenti (a vite e a incastro) che ne facilitassero anche l’eventuale disassemblaggio

La preparazione del sottofondo e l’assemblaggio delle travi di fondazione che sorreggono la struttura.

La posa di una delle grandi vetrate, anch’esse regalate da una ditta di vetri operante nella zona

73
Alcune immagini del cantiere in fase avanzata.

Centro Christian Marin

Limeil-Brévannes (F)

Guillaume Ramillien Architecture
F o t o P a s c a l A m o y e

1

Il fronte corto che guarda verso sud

2

Il fronte corto rivolto a nordovest con il prato sul tetto È la parte di edificio che si presenta a chi arriva dal centro città.

3

Il lato lungo rivolto a est che si affaccia sulla nuova Place d’Aquitaine

La particolare sagoma dell’edificio è rafforzata dal suo rivestimento in legno grezzo Il contrasto tonale dei due legni (larice e douglasia) andrà smorzandosi con il tempo La scelta di un materiale che si scontra con il solito disegno architettonico della zona mira a ribadire il desiderio di arricchire l’offerta architettonica disponibile ed evidenziare l’impegno ecologico del quartiere Saint-Martin, in cui l’edificio si colloca

76 legnoarchitettura 23 progetti 2 1 F o t o P a s c a A m o y e F o o P a s c a A m o e l

Ubicazione: Limeil-Brévannes (F)

Progetto: Guillaume Ramillien

Architecture SARL, Paris (F)

Strutture: ICM Structures SAS, Beaucouzé (F)

Direttore dei lavori: Guillaume

Ramillien

Lavori: 2014-2015

Superficie utile: 385 m2

Superficie verde: 303 m2

Importo dell’opera: 925 000 €

Un segnale di rinnovamento della periferia

È un prato quello che ricopre il tetto del Centro socioculturale passivo, progettato dallo studio parigino di Guillaume Ramillien Architecture, al centro del nuovo sviluppo urbano a sudest della capitale francese Un nuovo centro che serve una comunità di circa 700 unità abitative attualmente in costruzione nel sobborgo di Limeil-Brévannes

Il rivestimento a doghe verticali di larice e douglasia enfatizza la sua vocazione di edificio ecologicamente ed energeticamente virtuoso anche all’esterno, con il tetto verde che diventa un ulteriore elemento caratterizzante e qualificante

Il Centro è anche il biglietto da visita della zona, per chi viene dalla città, un segnale dell’impegno sociale e di rinnovamento che il comune ha intrapreso

Un edificio semplice nel suo concept compositivo ma efficace nel risultato La struttura si espande dal piano terra fino al primo piano, il suo volume parte dal fronte cieco di un condominio adiacente, minimizzandone l’impatto Il tetto verde, che copre l’edificio e ricorda un prato fiorito, degrada e, nelle intenzioni dei progettisti, ‘si estenderà’ verticalmente sul muro del condominio per coprirlo e incorporarlo, consentendogli di diventare un bene aggiunto del rinnovamento urbano

Collocandosi in quella posizione e passando dalla parte a due piani a contatto con il condominio a quella a un piano, il Centro Christian Marin si pone come anello di congiunzione tra la scala urbana e quella umana Le larghe finestre, posizionate in modo sfalsato attorno ai tre lati liberi dell’edificio, permettono una certa permeabilità visiva tra interno ed esterno: la luce penetra all’interno, illuminando le sale, rivestite a loro volta di pannelli di legno, ed è possibile, dall’esterno, vedere ciò che si svolge all’interno Inoltre, esse aggiungono una variazione al ritmo regolare delle aperture che caratterizzano i condomini circostanti

Realizzato seguendo lo standard passivhaus, l’edificio, che è riscaldato da una caldaia a gas e ha un ricambio meccanico dell’aria con recupero di calore, è anche certificato ADEME Bepas Session 2 e Batiment biosourcé niveau 3

77 3 F o t o P a s c a A m o y e

1 accesso

2 locale caldaia

3 locale acqua

4 wc

5 bagno con doccia

6 ufficio direzione

“Quartier de Limeil”

7 sala grande

8 deposito

9 entrata principale/atrio di accoglienza

10 locale rifiuti

11 ufficio permanente

12 sala delle arti plastiche

13 sala giovani 1

14 sala giovani 2

15 ufficio della direzione

16 piano ammezzato di accoglienza

17 vuoto sull’atrio di accoglienza

18 ufficio degli animatori

19 vuoto sulla sala grande

20 vuoto sulla sala giovani 1

21 vuoto sulla sala giovani 2

22 locale tecnico

23 vuoto sul piano ammezzato

pianta del piano terra

pianta del piano superiore

pianta del piano sottotetto

Vista dal piano superiore

verso una delle sale dedicate alle attività giovanili.

4
78 legnoarchitettura 23 progetti
11 2 3 4 5 6 7 8 9 10 11 12 13 14 15 16 17 18 19 20 20 21 22 23 23 4 17 F o o P a s c a A m o e l 4

Il centro socio-culturale

Christian Marin, oltre a rispettare lo standard passivhaus, è certificato

ADEME Bepas session 2 e Batiment biosourcé niveau 3

ADEME Bepas

La ADEME (Agence de l’environnement et de la maitrise de l’energie) è un’istituzione pubblica francese a carattere industriale e commerciale, che mira a promuovere tutte quelle iniziative che hanno come scopo la protezione dell’ambiente e la gestione dell’energia

Bepas sta per ‘batiment passif’, cioè edificio passivo

Batiment biosourcé

Si tratta di una certificazione francese che premia l’utilizzo di materiali ecosostenibili nella realizzazione di edifici –o parti di edifici – nuovi, mettendone in luce la qualità ambientale

5

Una delle sale al piano superiore dedicata alle attività giovanili.

79
sezione longitudinale sezione trasversale BB sezione trasversale CC
F o o P a s c a A m o e l 5

Tetto verde, dall’estradosso

- strato vegetale esterno estensivo

- strato di supporto + strato drenante

- doppio strato impermeabilizzante

- isolante lana di roccia (14 cm)

- barriera al vapore - pannello in legno LVL tipo Kerto Q con funzione di controventamento (2,7 cm)

- isolamento in lana di roccia (7 cm)

- controsoffitto in cartongesso, altezza variabile

1 scossalina metallica

2 gocciolatoio

3 elemento metallico di contenimento perimetrale

4 trave portante (12x25 cm; interasse 60 cm)

5 trave di bordo in legno (10x55 cm)

6 trave del telaio in legno delle pareti

7 elemento metallico per la sovrapposizione

8 elemento inferiore del telaio in legno (19,5x7,5 cm)

9 telaio in legno (7,5x19,5 cm, interasse 40 cm; interasse massimo tra i montanti 125 cm)

9 elemento superiore del telaio in legno (19,5x7,5 cm)

10 controsoffitto di altezza variabile a seconda della localizzazione

11 travetto portante del solaio in legno (10x30 cm, interasse 40 cm), sezione dipendente dalla posizione

80 legnoarchitettura 23 progetti 1 2 3 4 5 6 7 8 9 10 11 12

sezione orizzontale d’angolo

trasmittanza media elementi costruttivi

pareti esterne, U = 0,139 W/m2K solaio contro terra, U = 0,161 W/m2K copertura, U = 0,129 W/m2K serramenti, Uw = 0,9 W/m2K

prestazioni energetiche

consumo energetico per riscaldamento: 14,54 kWh/m2 anno consumo energetico per ACS: 3,60 kWh/m2 anno quantità di CO2 evitata: 4,86 kgeq CO2/m2 all’anno

Parete esterna, dall’esterno

- rivestimento esterno verticale in legno

- doppia listellatura (6 cm)

- strato impermeabile

- pannello OSB3 (12 cm)

- telaio in legno (7,5x19,5 cm; interasse 40 cm; interasse massimo tra i montanti 125 cm)

- isolante tra i montanti in lana minerale (18 cm)

- pannello OSB3 (12 cm) montato in cantiere

- barriera al vapore

- doppia listellatura (6 cm), orizzontale e verticale, interasse 60 cm

- isolamento interno in lana minerale (6 cm)

- rivestimento interno in pannelli di legno (1,8 cm) o, a seconda della stanza, in cartongesso ignifugo (1,25 cm)

81
6
6
F o o P a s c a A m o e l
La sala grande al piano terra

In queste due pagine, due viste del foyer d’entrata a doppia altezza, sul quale ci si affaccia dal primo piano

Tutti gli interni del Centro sono caratterizzati dal colore bianco dell’intonaco e dal colore giallo delle pannellature in legno di conifera

82 legnoarchitettura 23 progetti F o o P a s c a A m o e l
83 F o o P a s c a A m o e l

1 vano tecnico

2 controsoffitto sospeso dipinto di bianco (a seconda della stanza) + isolamento in lana di vetro (6 cm)

3 assicella piallata in larice grezzo (115x12 cm) con smusso antigoccia

4 assicella autoclavata in douglasia marrone (225x12 cm) con smusso antigoccia

5 supporto per serramenti in legno; davanzale in zinco

6 rivestimento in acciaio inossidabile

7 doccione zincato

8 telaio in legno della parete + isolamento in lana minerale (18 cm) + pannello OSB3 sui due lati

9 rivestimento interno in legno: compensato dipinto (18 mm) + isolamento in lana minerale (6 cm) + listellatura orizzontale (6 cm) + barriera al vapore

10 doppia listellatura a supporto della finitura esterna

11 massetto in cls liscio impermeabile + isolamento + riscaldamento a pavimento

12 lattoneria zincata

13 cornice angolare in legno (larice grezzo marrone)

14 serramento in legnoalluminio

15 rivestimento del vano finestra

16 striscia di ghiaia perimetrale con funzione drenante

17 aletta metallica

18 cemento grezzo a vista

84 legnoarchitettura 23 progetti 1 2 3 4 5 6 7 8 9 10 11 12 spaccato assonometrico di dettaglio 13 14 15 16 17 18

A sinistra, la posa dei pannelli prefabbricati già dotati di rivestimento esterno È ancora molto evidente la differenza di legno delle doghe di rivestimento esterno

A destra, realizzazione del tetto verde.

A sinistra, interno in fase di cantiere

A destra, la prova del blower door test per la verifica dello standard passivo.

A sinistra, dettaglio d’angolo del rivestimento.

A destra, la posa delle grandi vetrate

85

Il progetto Mob:oM

Il progetto di ricerca presentato dal Polo di Innovazione Arredo, Legno, Mobile, sviluppato con il sostegno tecnico di alcune aziende aderenti al consorzio e realizzato in collaborazione con l’Università dell’Aquila, ha l’intento di proporre sul mercato un prodotto multifunzionale facile da trasportare, reversibile, modulare e temporaneo, ma allo stesso tempo accattivante dal punto di vista del design e delle tecnologie utilizzate. Un modulo in legno facilmente trasportabile, aggregabile e smontabile in grado di rispondere a diverse esigenze d’uso: eventi temporanei, fiere, residenze turistiche e di emergenza, stands espositivi e utenze variabili.

techné

Il progetto Mob:oM

Un modulo reversibile multifunzionale e sostenibile

In queste pagine, due rendering che presentano i possibili utilizzi del Mob:oM Qui sopra, come bungalow turistico, nella pagina a fianco come chiosco di un’edicola

Un modulo prefabbricato in legno flessibile e polifunzionale

Trasportabilità, flessibilità tipologico-funzionale e contenimento energetico: sono questi gli obiettivi che hanno spinto i progettisti a sviluppare l’idea dell’utilizzo del legno per realizzare un modulo prefabbricato multifunzionale, adattabile a diverse esigenze spaziali e/o funzionali, facilmente smontabile e trasportabile L’architettura odierna, infatti, dovendo rispondere alla logica di movimento della società contemporanea, meno statica delle precedenti, ha assunto sempre più un carattere temporaneo, con la conseguente variazione delle logiche progettuali e dei processi che sottendono alla realizzazione del progetto

In questa logica è stato sviluppato il progetto Mob:oM: l’intento è stato quello di proporre sul mercato un prodotto multifunzionale facile da trasportare, reversibile, modulare e temporaneo, ma allo stesso tempo accattivante dal punto di vista del design e delle tecnologie utilizzate

Questo originale e innovativo progetto di ricerca è nato da un’iniziativa del PALM scarl, soggetto gestore del Polo di Innovazione Arredo, Legno, Mobile riconosciuto dalla Regione Abruzzo con D G R 9/20 del 22 aprile 2014 Il progetto pilota, che aveva la finalità di realizzare uno studio di fattibilità, a cui seguirà la relativa prototipazione1, è stato presentato dal Polo PALM ad aprile 2015 ed è stato sviluppato con il sostegno tecnico di alcune aziende aderenti al consorzio e realizzato in collaborazione con l’Università dell’Aquila, Dipartimento DICEAA (Ingegneria Civile, Edile-Architettura e Ambientale) Dalla sua costituzione, infatti, il PALM ha avuto subito interesse al coinvolgimento dell’Università, individuando nella collaborazione con professori e, soprattutto, studenti e giovani laureati, la possibilità di portare il loro know-how nelle aziende e far interagire, come troppo poco spesso accade, il mondo universitario con quello del lavoro

In linea con le attività definite dal Polo PALM, il concept progettuale si basa sulla realizzazione di un prodotto che partendo dall’idea del mobile, contenitore di oggetti, giungesse a quella dell’edificio, contenitore di funzioni, mantenendone la logica Il Mob:oM, infatti, è stato concepito come una struttura in legno in grado di “contenere se

P. De Berardinis, C. Marchionni, L.
Capannolo, G. Buzzelli
88 legnoarchitettura 23 techné

stessa” e i suoi elementi strutturali, di finitura e gli arredi, in modo da essere agilmente trasportata e riutilizzata a seconda delle esigenze

Dal concept agli indirizzi per la prototipazione: il modulo base La dimensione temporale del progetto e il tema dell’abitare temporaneo occupano ormai un ruolo di grande interesse all’interno del dibattito culturale contemporaneo “Diversi sono i fenomeni che hanno contribuito a modificare la percezione della funzione tempo in architettura, ma l’esito generale che ad essi si può attribuire è il passaggio da una dimensione statica, permanente, a una dimensione dinamica e transitoria del costruire All’architettura dell’essere si sta sovrapponendo un’architettura del divenire”2 In questo ambito “l’abitare temporaneo rappresenta un’importante sfida tecnologica per il futuro e un campo di sperimentazione e di innovazione ancora in gran parte da esplorare Più che di un’innovazione di prodotto è ancora più forte la necessità di un’innovazione di processo che stabilisca nuove modalità di impiego di tutte le risorse tecnologiche correnti”3 Se, oltre a essere modulare e flessibile, l’edificio è anche trasportabile e mobile, esso aumenta il suo grado di libertà e di adattamento Infatti, gli edifici trasportabili possono essere installati in un luogo per periodi anche lunghi e, se ben concepiti, lasciare un’impronta sull’ambiente minima una volta rimossi, consentendone l’installazione anche in aree protette altrimenti inaccessibili4

In questo filone di pensiero si vuole inserire il progetto Mob:oM: un edificio flessibile e modulare che consente di aumentare il suo volume e la sua superficie in relazione alle mutate esigenze spaziali e/o funzionali, permette un rapido smantellamento qualora si renda

necessaria la sua nuova localizzazione e, grazie all’utilizzo di componenti modulari asportabili, il loro riutilizzo anche parziale

Per la realizzazione dell’idea progettuale si è subito guardato con interesse alla costruzione stratificata a secco: essa consiste nella stratificazione di elementi costruttivi in grado di fornire prestazioni singole e di pacchetto, che garantiscono la loro accoppiabilità e combinabilità e permettono la totale reversibilità dell’intervento L’organismo edilizio, infatti, può essere modificato facilmente dal punto di vista tecnologico, compositivo, distributivo, funzionale e prestazionale, in funzione delle esigenze degli abitanti e del luogo in cui si trova In tali costruzioni, definite anche del tipo “struttura-rivestimento”5, l’edificio si compone, infatti, di una struttura portante che regge i carichi verticali e orizzontali e di una struttura di involucro interno o esterno (strutture secondarie) che sostiene le stratificazioni (rivestimenti)

Tra i requisiti fondamentali delle costruzioni a secco vi sono la flessibilità, che garantisce la possibilità di trasformare nel tempo l’assetto spazio-funzionale del manufatto, la personalizzazione, che consiste nell’adattare in fase di progetto forma e contenuti degli spazi costruiti a specifiche esigenze degli utenti Inoltre, esse consentono l’adattabilità a condizioni di contesto variabili, la celerità delle operazioni di montaggio/smontaggio, la riciclabilità dei componenti e il rispetto per l’ambiente, in quanto tali costruzioni possono essere smontate con recupero selettivo delle parti costituenti6

Il Mob:oM è stato così concepito come una struttura in legno in grado di “contenere se stessa”, una doppia C in cui la prima, con funzione strutturale, è in grado di “sostenere” la seconda, con funzione di chiusura, nel momento in cui il modulo è aperto, e di racchiuderla

89

A fianco, schemi di progetto: il Mob:oM chiuso contiene al suo interno gli elementi di chiusura e di finitura, che si dispiegano grazie a un sistema di travi di legno incernierate alla struttura di legno. In alto, le dimensioni del Mob:oM in pianta e, in basso, in prospetto (aperto e chiuso)

A destra, esploso assonometrico della struttura lignea del modulo

nel momento del trasporto In questo modo sono state ridotte notevolmente le dimensioni del prototipo per la fase di trasporto e facilitate le fasi di montaggio, grazie all’utilizzo di elementi modulari e leggeri Partendo dal concept di progetto, le dimensioni del modulo base sono quindi conseguenza delle esigenze di trasporto e di quelle relative alla modularità e alla lavorabilità dei materiali utilizzati: trasportato chiuso, il Mob:oM ha un ingombro di (LxLxH) 2,80x0,90x2,90 metri; quando viene montato, le sue dimensioni finali sono di (LxLxH) 2,80x4,05x2,90

La parte strutturale, inoltre, a livello funzionale offre la possibilità di ospitare la zona relativa ai servizi igienici, se presenti, e le componenti impiantistiche Per quanto riguarda l’adattabilità ai vari contesti, invece, la struttura del Mob:oM è sollevata dal terreno grazie alla predisposizione di piedini metallici regolabili

Le soluzioni aggregative e le possibili destinazioni d’uso

“La temporaneità dell’abitare risponde all’esigenza di fruire di uno spazio per una funzione legata ad una necessità contingente e circoscritta nel tempo, cessata la quale lo spazio all’uopo realizzato non ha più ragione

di esistere o deve essere riconvertito, trasformato ad altri usi”7 La flessibilità funzionale, infatti, “è una condizione che concorre al miglioramento continuativo del bene, concetto che si riallaccia al rapporto culturale tra tempo e architettura e che presuppone una cultura della progettualità tesa alla ricerca di innovazione sia sul versante dell’interpretazione del sistema spaziale sia tecnologico”8

Volendo pienamente rispondere a tali esigenze, il Mob:oM contiene in sé la possibilità di adattarsi a funzioni e utenze diverse: un organismo edilizio versatile e modulare, caratterizzato da leggerezza e reversibilità, il cui modulo base è pensato in modo tale da poter essere aggregato ad altri e crescere dimensionalmente a seconda delle esigenze Esso si presta, inoltre, a uno smontaggio controllato grazie all’utilizzo di componenti modulari asportabili e riutilizzabili

Sono state quindi sviluppate ipotesi progettuali basate su esigenze funzionali diverse, tra cui eventi temporanei, fiere, residenze turistiche e di emergenza, stands espositivi e utenze variabili, secondo modalità aggregative di tipo lineare e sfalsato Per rendere il sistema completo e funzionale, gli arredi sono stati concepiti

90 legnoarchitettura 23 techné
Sistema di apertura del modulo base Mob:oM

come parte integrante del modulo base: anche questi, attraverso dei semplici meccanismi di apertura o ribaltamento, sono contenuti in altri elementi di arredo Le ipotesi che seguono propongono soluzioni progettuali che considerano l’aggregazione di due, tre o quattro moduli In ogni caso, a seconda della localizzazione, deve essere progettato il sistema di coibentazione e di finitura esterna

Residenza: temporanea e di emergenza Il Mob:oM è pensato per soddisfare una domanda residenziale temporanea durante situazioni di emergenza, conseguenti quindi a eventi calamitosi o a manifestazioni di grande portata e che determinano un forte aumento dell’esigenza abitativa in brevi periodi Il gruppo di fruizione considerato può essere composto da un minimo di uno fino a un massimo di quattro persone

Residenza turistica: aree protette, rifugi di montagna, aree balneari, campeggi Le destinazioni turistiche considerate sono caratterizzate da un complesso normativo con gli anni sempre più vincolistico, dove il ricorso a strutture ricettive leggere e rimovibili può essere la soluzione migliore per affrontare le variabili del complesso sistema turistico, assecondare le esigenze funzionali e abitative degli utenti finali, riducendo al minimo l’impronta ecologica degli insediamenti e promuovendo una migliore integrazione con il contesto attraverso una diversificazione tipologica basata sui concetti di flessibilità, mobilità e trasferibilità Il Mob:oM, contraddistinto da un sistema di montaggio a secco, consente di limitare al minimo i mezzi e gli operatori coinvolti nelle operazioni di costruzione e allestimento e contribuisce ad abbassare il grado di complessità costruttiva dell’edificio

Il sistema di cerniere elaborato per l’apertura del Mob:oM

Viste fotorealistiche di progetto

91

Sezione trasversale del modulo

1 pannello di rivestimento in accoya (10 mm)

2 trave in platform

3 connettore a scomparsa in acciaio

4 profilo metallico a L avvitato al montante in legno che fa da controtelaio all’infisso

5 controtelaio in alluminio

6 telaio in alluminio per anta apribile

7 telaio sistema frangisole (50x35 mm)

8 profili in acciaio del sistema frangisole a ginocchio

9 listelli in legno

10 guide di scorrimento del sistema frangisole

11 cerniera metallica

sezione trasversale del modulo

Chiosco: bar, edicola, vendita strada, vendita mercato, stabilimento balneare

Anche per tali destinazioni, la proposta è di una soluzione temporanea che agilmente si adatti ai regolamenti edilizi comunali e ai contesti ambientali più diversi

Padiglione fiera: stand interno o esterno, punto informativo

La velocità di trasporto e montaggio del Mob:oM, unite al suo design accattivante e alla possibilità di personalizzarne l’aspetto esteriore, lo rendono adatto a proporsi come valida soluzione nel caso di eventi fieristici o di manifestazioni in cui si renda necessaria la presenza di un punto informativo o espositivo

Uffici temporanei: cantieri, grandi eventi

Nel caso di un’utenza lavorativa temporanea, il Mob:oM può proporsi come soluzione economica vantaggiosa, facile nel montaggio e rapido nella sua delocalizzazione

I materiali utilizzati e il sistema costruttivo

L’elaborazione dello studio di fattibilità si è basata sulla scelta iniziale di utilizzare come materiale costruttivo prevalente il legno per le riconosciute caratteristiche di questo storico materiale da costruzione: “le realizzazioni di legno sono per definizione costruzioni a secco che si completano con una sovrapposizione di strati di

Viste fotorealistiche di progetto con la possibile aggregazione di due moduli

92 legnoarchitettura 23 techné

sezione longitudinale del modulo

chiusura”9

Il legno, primo materiale da costruzione utilizzato dall’uomo per i propri insediamenti nel territorio, è ancora oggi largamente scelto per le sue caratteristiche e proprietà specifiche: grande reperibilità, rapporto vantaggioso tra peso proprio e resistenza ai carichi, ampio spettro di valori di densità e resistenza, facilità di lavorazione senza eccessivo impiego di energia da combustibili fossili, buona resistività termica, varietà nelle tipologie di legno presenti in natura, che permette applicazioni figurative molteplici, ecc

Per la struttura portante del Mob:oM si è scelto di utilizzare un sistema costruttivo di tipo leggero a intelaiatura di legno Kerto-T, dove l’assorbimento dei carichi è assicurato da elementi piani che comportano l’utilizzo di prodotti di tipo lineare provvisti di una pannellatura leggera

La definizione di costruzione intelaiata di legno deriva dall’inglese platform frame, ossia telaio di legno: l’ossatura portante è, infatti, costituita da un telaio con montanti disposti a distanza piuttosto ravvicinata, di regola di 62,5 cm: questa misura dipende dalle dimensioni dei materiali di rivestimento comuni sul mercato (larghezza pari a 125 cm), per minimizzarne lo scarto10 All’interno viene collocato il materiale isolante per ottimizzare gli spessori degli elementi; il telaio viene poi rivestito con pannelli per costituire così una lastra I vantaggi di questo sistema costruttivo sono molteplici: la leggerezza del sistema assicurata dal telaio, l’economicità data dalla facilità di montaggio e dall’ottimizzazione nell’uso del materiale, le buone capacità di coibentazione, la buona resistenza al sisma11, la buona protezione antincendio e l’ottimo comportamento acustico

La costruzione in legno richiede tuttavia una progettazione attenta alle connessioni dei singoli elementi, con l’obiettivo di realizzare una struttura stabile Per questo motivo, all’uso del legno nel progetto Mob:oM si è affiancato l’utilizzo di elementi in acciaio, cercando di utilizzare sistemi perlopiù a incastro o ad appoggio, evitando così il più possibile operazioni di avvitamento o bullonatura reiterati nel tempo, che con il susseguirsi del ciclo di vita potrebbero indebolire le strutture lignee

Sezione longitudinale del modulo

1 pannello di rivestimento in accoya (10 mm)

2 pannello di tamponatura composto da (dall’esterno):

- pannello OSB (10 mm)

- pannello isolante (100 mm)

- pannello in accoya (10 mm)

3 tubazione in pvc per lo smaltimento delle acque piovane (50 mm)

4 isolante in polistirene (50 mm)

5 profilo metallico a L avvitato al montante in legno che fa da sostegno al pannello in accoya

6 telo impermeabilizzante

7 pannello di chiusura in OSB (15 mm)

8 elementi per la pendenza

9 lamiera metallica di sostegno per l’elemento di raccolta delle acque meteoriche

11 pannello per la

pavimentazione in accoya (10 mm)

12 piedini in acciaio regolabili per pavimento flottante

13 vuoto tecnico per alloggiamento impianti

14 pannelli di chiusura composti da (dall’alto):

- pannello accoya (10 mm)

- pannello isolante (100 mm)

- pannello OSB

15 piedino regolabile in acciaio

93
Stratigrafia della chiusura orizzontale inferiore

del modulo

Per il Mob:oM i telai in legno microlamellare sono posti verticalmente a interasse di circa 61,5 cm e irrigiditi mediante pannelli in legno OSB (Oriented Strand Board)

dello spessore di 15 mm; gli elementi così composti sono assemblati fra loro in maniera da ottenere il controventamento necessario Come tipo di isolamento è stato scelto quello in fibra di legno dello spessore di 100 mm

Gli elementi di parete, solaio e copertura realizzati in questa maniera possono essere prodotti in stabilimento a differenti livelli di prefabbricazione e montati in cantiere: questo permette la rapida chiusura della costruzione e il suo rapido montaggio

Il sistema portante del M o b :o M , infatti, dopo essere stato trasportato sul luogo di utilizzo chiuso, viene poi aperto grazie a un sistema di travi in legno incernierate alla struttura portante, realizzato in modo da sostenere le chiusure orizzontali di copertura e di pavimentazione

Tale sistema è concepito in modo da potersi aprire e chiudere infinite volte senza provocare l’indebolimento della struttura o il suo deterioramento nel tempo grazie all’incernieramento attraverso piastre metalliche

Per quanto riguarda i pannelli per le chiusure orizzontali, essi si agganciano alla struttura portante mediante un sistema di giunzione a taglio realizzata mediante connettori a scomparsa removibili avvitati all’interno delle travi durante la fase di produzione Per realizzare la chiusura orizzontale di pavimentazione si procede, quindi, ad appoggiare sulle travi in legno i pannelli di chiusura, incastrati tra di loro mediante sistemi di giun-

zione maschio-femmina, il cui procedimento costruttivo è affine a quello delle chiusure verticali

Similmente sono stati progettati i pannelli della chiusura orizzontale di copertura: agli strati già previsti per la pavimentazione sono stati aggiunti uno strato di OSB da 15 mm, opportunamente poggiato su barre di legno sagomate, in modo da assicurare una pendenza minima per lo smaltimento delle acque meteoriche, e una membrana da tetto altamente traspirante dello spessore di 0,80 mm, montata a secco e removibile Si tratta di tessuti multistrato composti da due strati in tessutonon-tessuto in polipropilene che proteggono un film funzionale microporoso al quale sono accoppiati tramite un sistema di termosaldatura a espansione

Per il rivestimento esterno è stato aggiunto un pannello di accoya, scelta ripetuta anche all’interno, dove il pannello, posizionato in sostituzione del pannello in OSB, garantisce una continuità spaziale e un’uniformità cromatica, essendo posto sia sulle pareti verticali sia su quelle orizzontali

Gli elementi di chiusura verticale trasparenti del modulo base sono stati progettati per essere facilmente trasportati e montati in cantiere e per essere idonei a subire numerosi cicli di montaggio-smontaggio Le chiusure trasparenti, installabili su entrambi i prospetti frontali, sono infatti costituite da profili leggeri dalle dimensioni ridotte in alluminio, che vengono fissati a elementi metallici ancorati alla struttura e predisposti in officina Nel caso di aggregazioni multiple, la parete può quindi esser priva della chiusura vetrata, ma è in ogni

94 legnoarchitettura 23 techné
La possibile aggregazione di quattro moduli

caso predisposta a successive installazioni

Per assicurare un corretto comfort termico e visivo il progetto ha previsto la realizzazione di un sistema frangisole a ginocchio costituito da un telaio in alluminio, che ne assicura stabilità e leggerezza, su cui vengono fissati dei listelli in legno Il tutto è regolato da un sistema manuale a carrucola dotato di un meccanismo di frenaggio di sicurezza

Conclusioni e sviluppi futuri

Il progetto Mob:oM vuole presentarsi sul mercato abbracciandone un’ampia fetta, proponendosi ad acquirenti sia pubblici sia privati grazie alle caratteristiche con cui è stato concepito e di cui è espressione: reversibilità, multifunzionalità, sostenibilità

Le possibilità aggregative del modulo base permettono di soddisfare un’utenza variabile e temporanea A livello economico, la competitività del prodotto finale si basa sul contenimento del prezzo di fabbricazione e sui costi pressoché nulli di cantierizzazione, essendo caratterizzato da un montaggio estremamente rapido e semplice

Bibliografia

Baiocco G , Culture della Trasformazione e della città e del territorio, Dottorato di ricerca in Progetto Urbano e Sostenibile, XXI ciclo, p 5

Bologna R , “Abitare la temporaneità”, in Costruire in laterizio n 126, 2008, pag 13

Bosio E , Sirtori W (a cura di), Abitare Il progetto della residenza sociale fra tradizione e innovazione, Maggioli Editore, Sant’Arcangelo di Romagna, 2010, p 135

Schickhofer G , Bernasconi A , Traetta G , Costruzione di edifici di legno, Corso base Promo Legno – L’uso del legno nelle costruzioni, www promolegno com

Turchini G , “Tecnologie a secco: una chance in più”, in Arketipo n 14, 2007, pp 34-35

Zambelli E , in Vanoncini P A , Imperadori M , Costruzione stratificata a secco – Tecnologie edilizie innovative e metodi per la gestione del progetto, Maggioli Editore, 1998

Note

Progettisti incaricati: Prof Ing Pierluigi De Berardinis, coordinatore del progetto per l’Università degli Studi dell’Aquila; Arch Ph D Gianluca Buzzelli Progettisti incaricati dello sviluppo del progetto tramite bando di selezione pubblica: Ing Ph D Chiara Marchionni, Ing Ph D Stud Luisa Capannolo

1 Il progetto è stato realizzato con il contributo del P O FESR Abruzzo 2007-2013

2 Bologna R , “Abitare la temporaneità”, in Costruire in laterizio n 126, 2008, pag 13

3 Bologna R , Op cit , pag 15

4 Baiocco G , Culture della Trasformazione e della città e del territorio, Dottorato di ricerca in Progetto Urbano e Sostenibile, XXI ciclo, p 5

5 Zambelli E , in Vanoncini P A , Imperadori M , Costruzione stratificata a secco – Tecnologie edilizie innovative e metodi per la gestione del progetto, Maggioli Editore, 1998

6 Turchini G , “Tecnologie a secco: una chance in più”, in Arketipo n 14, 2007, pp 34-35

7 Bologna R , Op cit

8 Ginelli E , “Caratteri e potenzialità per il costruire contemporaneo”, in Bosio E , Sirtori W (a cura di), Abitare Il progetto della residenza sociale fra tradizione e innovazione, Maggioli Editore, Sant’Arcangelo di Romagna, 2010, p 135

9 Turchini G , Op cit

10 Schickhofer G , Bernasconi A , Traetta G , Costruzione di edifici di legno, Corso base Promo Legno – L’uso del legno nelle costruzioni, www promolegno com

11 Il sistema platform vanta il coefficiente di struttura più alto tra le ti-

95
Stratigrafia della chiusura orizzontale superiore Stratigrafia delle chiusure verticali

Una struttura temporanea, che è stata padiglione e scultura assieme, ha animato nell’estate 2015 lo Schlosspark di Karlsruhe, in occasione dei 300 anni di fondazione della città.

La costruzione, progettata dallo studio berlinese di J. Mayer H. e realizzata da Rubner Holzbau, era costituita da una struttura tridimensionale a traliccio che ha ospitato al suo interno spazi per eventi e rappresentazioni.

Formata da pilastri con diversa inclinazione e travi lamellari, la complessa griglia tridimensionale deformata, ispirata dalla pianta radiale della città, ha comportato un gran numero di nodi strutturali, studiati e realizzati uno per uno grazie anche al supporto di software dedicati

Il padiglione è stato smantellato a novembre 2015 e, da marzo 2016, è stato ripristinato il luogo su cui sorgeva, restituendo il terreno al parco del castello cittadino

Padiglione KA300 strutture

Un padiglione in legno per i 300 anni di Karlsruhe

Dopo lo smantellamento del padiglione circa 1/3 del legname impiegato è stato trasformato dagli allievi di una scuola professionale di Karlsruhe, con l’aiuto della Corporazione locale dei falegnami e della Forestale di Karlsruhe, in circa 150 panchine, distribuite in tutta la città

Il restante legname verrà reimpiegato in altre costruzioni in legno

Il Padiglione KA300 è il risultato di un concorso del 2014, vinto dallo studio berlinese di J Mayer H , già noto per il progetto del Metropol Parasol di Siviglia

L’edificio doveva essere una struttura pensata per celebrare il 300° anniversario della fondazione di Karlsruhe, seconda città più importante del Land tedesco del Baden-Württenberg dopo Stoccarda Il luogo era definito: un’area dello Schlosspark, cioè il parco del castello della città, proprio di fronte al castello

Il ruolo di appaltatore generale è stato svolto dalla ditta Rubner Holzbau, affiliata tedesca della Rubner sudtirolese, che ha affiancato lo studio di Berlino nello sviluppo della parte più ingegneristica e tecnica del progetto, data la complessità non tanto formale quanto realizzativa del padiglione

La struttura aveva dimensioni di di 52x27 m, alta fino a 16,4 m e con una superficie utile di circa 1 000 m2 Al piano terra, tra palcoscenico, caffetteria e infoteca, potevano trovare posto tra le 300 e le 600 persone L’altezza del soffitto di 5,2 m evidenziava la generosa apertura della struttura, che continuava al piano superiore con un livello espositivo e due piattaforme di osservazione Il volume, protetto parzialmente da membrane rimovibili, ammontava a 2800 m3 In totale, l’involucro della costruzione ad aste sporgenti includeva un volume di 12 700 m3

Per la realizzazione sono stati utilizzati circa 338 m3 di legno lamellare e circa 30 t di pezzi di acciaio Al fine di garantire una breve durata del cantiere e una realizzazione per tempo all’interno dello Schlosspark, tutti gli elementi lignei sono stati prefabbricati in officina e consegnati in cantiere già provvisti di fori per i bulloni e verniciati di grigio In cinque mesi, ad aprile 2015, tutti i lavori legati alla struttura di legno erano conclusi

La struttura, inaugurata il 20 giugno 2015, in occasione dell’apertura delle celebrazioni per l’anniversario della città, conclusesi ufficialmente il 27 settembre 2015, è stata totalmente smantellata nel novembre 2015 e il materiale riutilizzato

98 legnoarchitettura 23 strutture strutture
F o o : F a n k D n g e

Ubicazione: Karlsruhe (D)

Progetto: J MAYER H und Partner, Architekten, Berlino (D)

Strutture: Rubner Holzbau GmbH, Augsburg (D)

Appaltatore: Rubner Holzbau GmbH, Augsburg (D)

Lavori: febbraio-giugno 2015

Smantellamento: ottobre-novembre 2015

Superficie utile: ca 1 000 m2

Volume utile: ca. 2.800 m3

Volume totale (compreso l’ingombro delle travi): ca 12 700 m3

Struttura

La struttura del padiglione era formata da una griglia di pilastri e travi in legno lamellare irrigidita da pannelli in X-lam e tiranti diagonali in acciaio

La griglia tridimensionale deformata di elementi lignei incrociantisi tra di loro, influenzata dalla geometria radiale della pianta della città, racchiudeva uno spazio per eventi flessibile (la struttura scatolare in X-lam) che, durante l’estate del 2015, ha ospitato diverse attività legate alle celebrazioni e rappresentava la parte “chiusa” del padiglione

La struttura portante ad aste era costituita, nello specifico, di 98 pilastri, lunghi fino a 19 m e diversamente inclinati, e da 72 travi orizzontali in legno lamellare di abete rosso Tutti gli elementi sono stati verniciati di grigio e collegati tra loro tramite bulloni ed elementi metallici

Il sistema portante dell’intero padiglione, irrigidito con le pareti a pannelli X-Lam e tiranti diagonali, è risultato molto complesso fin dall’inizio, con una gran quantità di differenti nodi strutturali Per ogni connessione si delineava nella progettazione dei dettagli una situazione specifica, sia per geometria sia per grandezza delle sezioni, così che ognuna di esse si è dovuta risolvere singolarmente

La struttura delle aste seguiva 10 assi differenti, tra longitudinali e trasversali, non necessariamente perpendicolari tra di loro

Le travi longitudinali e i pilastri erano disposti affiancati, nel loro reticolo si inserivano poi le travi trasversali e i tiranti metallici, con funzione di irrigidimento dell’intera struttura

Sulla base del modello architettonico dello studio di J Mayer H , è stata sviluppata e calcolata la struttura con l’aiuto del software RSTAB (un programma di analisi specifico per le strutture intelaiate) come modello tridimensionale Per il calcolo del modello sono stati necessari 2 800 travi e 2 000 nodi Nonostante ogni collegamento, nella progettazione dei dettagli, presentasse una situazione statica specifica per geometria e grandezza delle sezioni, le connessioni sono state tuttavia raggruppate in connessioni caratteristiche della struttura portante e connessioni delle strutture di supporto (o ‘sottostrutture’)

Connessioni importanti sono state considerate quelle delle fondazioni della struttura, quelle tra pilastri obliqui e travi longitudinali (con o senza diagonali longitudinali) nonché le connessioni tra travi longitudinali e travi trasversali (flessibili e rigide)

Le connessioni delle strutture di supporto erano, invece, quelle che riguardavano le ‘sottostrutture’, come quella semplice a telaio sopra la zona eventi, l’incrocio di irrigidimento sul lato frontale, il complesso scatolare di irrigidimento in X-Lam (con funzione di assorbimento delle forze orizzontali della struttura e del vento)

Questa suddivisione ha permesso agli strutturisti e all’officina che ha preparato i pezzi di produrre con precisione i diversi elementi

In queste pagine, alcune immagini notturne del padiglione KA300

99
F o o F a n k D n g e F o t o F r a n k D i n g e r

Planimetria dello Schlossgarten Park con il padiglione La pianta radiale della città include 32 tra strade e vie di circolazione.

100 legnoarchitettura 23 strutture
KA300 contesto
F o o S a d t m a k e t n g K a s r u h e G m b H –F o t o R o b e r F u g e F o o S a d t m a k e t n g K a s r u h e G m b H –F o t o R o b e r F u g e

KA300 piante e sezioni

pianta

Il contorno della struttura è definito da più di 50 colonne verticali che circondano un interno cavo Questo spazio disponeva di un palcoscenico che ha consentito all’edificio di essere utilizzato sia come auditorium al coperto sia per proiezioni di film e spettacoli all’aperto Esso ospitava inoltre una caffetteria, un’infoteca e varie aree informali per sedersi, mentre le scale portavano a delle piattaforme panoramiche ai piani superiori

I lavori di fondazione per il padiglione sono iniziati a dicembre 2014 Poiché gli elementi lignei sono stati forniti per la maggior parte prefabbricati, il tempo di assemblaggio sul sito è stato limitato al minimo A febbraio 2015 è iniziata la costruzione vera e propria, mentre la consegna delle chiavi e la festa per la copertura del tetto – usanza tipicamente teutonica – alla presenza di sindaco, architetto e giuria è avvenuta il 30 aprile 2015 All’inizio di maggio sono iniziati i lavori degli interni e del palcoscenico, il 12 giugno i lavori di ispezione, la fase di controllo e di correzione di eventuali errori.

Tra il 17 giugno e il 27 settembre 2015, il padiglione è stato al centro dei festeggiamenti per il 300° anniversario della città.

sezione longitudinale

101

assonometria di un nodo-tipo

Dettaglio di un nodo-tipo: connessione di una trave (longitudinale) con un pilastro (inclinato) in cui si inserisce anche un tirante metallico A sinistra, nello stesso dettaglio, la connessione tra due travi (longitudinali).

102 legnoarchitettura 23 strutture KA300
nodi
nodo-tipo: vista zenitale nodo-tipo: vista laterale
F o o F a n k D n g e

A sinistra, i componenti in legno lamellare pronti per il montaggio e già verniciati in grigio chiaro nell’officina Rubner di Ober-Grafendorf, nella Bassa Austria 30 t di acciaio, 20 000 viti ABC Spax e 2 000 bulloni di acciaio Ø 20x440 mm hanno tenuto assieme la struttura

Sotto, l’inserimento di uno dei pilastri in legno lamellare nella scarpa metallica predisposta.

Il cantiere in fase avanzata con la particolare struttura a telaio che ha caratterizzato l’aspetto esteriore del padiglione e la ‘scatola’ in X-lam che ha ospitato caffetteria, palcoscenico e alcuni vani tecnici

103
KA300 cantiere
F o o F a n k D n g e C e d s R u b n e H o z b a u G m b H C e d s R u b n e H o z b a u G m b H

primolam®: un moderno Blockhaus

Un sistema costruttivo che è l’evoluzione di uno dei più antichi sistemi costruttivi in legno, quello del Blockhaus, ma che presenta caratteristiche statiche ed estetiche in linea con le moderne richieste prestazionali. Partendo dall’elemento ‘base’, una trave bilama senza assestamento misurabile, si è giunti alla possibilità di poter prefabbricare interi elementi parietali e di solaio, sfruttando l’ottimo valore statico del legno lungo la fibra. Tra i vantaggi del sistema: meno sfridi, possibilità di pareti più sottili, migliori valori statici e di isolamento acustico, adattamento perfetto grazie alle diverse larghezze degli elementi, possibilità di stoccaggio a magazzino Una soluzione per pareti e solai che unisce il classico sistema a tronchi sovrapposti a quello più moderno del compensato pluristrato, con il risultato di poter realizzare edifici che sfruttano i vantaggi di entrambi i sistemi

sistemi

Il sistema costruttivo primolam® si basa sull’uso modulare di un pannello di legno composto da strati di lamelle di conifera incrociate che, prodotto in misure standard, si presta a essere utilizzato sia come elemento per pareti sia come elemento per solaio Il pannello è composto da 3 strati di legno di conifera, incollati tra loro per mezzo di colle poliuretaniche, in cui i due strati esterni sono disposti orizzontalmente mentre lo strato centrale è disposto con fibra verticale Viene usato essenzialmente abete rosso ma, a richiesta, è possibile avere uno strato esterno o entrambi in larice, oppure è possibile avere la versione in abete rosso con uno o entrambi gli strati esterni a vista, a seconda delle scelte architettoniche Il pannello primolam® permette la realizzazione di fabbricati utilizzando l’antica tecnica costruttiva nota come Blockhaus (o Blockbau) che prevede la sovrapposizione di elementi orizzontali sfalsati tra loro e incastrati agli angoli Questa tecnica prevedeva originariamente la costruzione delle pareti direttamente con i tronchi segati in loco e disposti uno sopra l’altro Sfalsando la disposizione dei tronchi nelle due direzioni e lavorando con attrezzi rudimentali le parti terminali dei tronchi, si ottenevano manufatti semplici ma solidi Il sistema si è evoluto nel corso dei secoli per venire incontro alle mutevoli esigenze dell’edilizia Si è abbandonato l’uso dei tronchi grezzi a favore di travi squadrate via via più raffinate, fino ad arrivare alla moderna produzione di abitazioni Blockhaus in kit di montaggio composte da tavole o travi massicce o bilama lavorate da centri di taglio automatici per la massima precisione

Nonostante questo sviluppo, il metodo Blockhaus è tuttavia rimasto relegato a pochi casi numerici, poiché connesso a un’immagine di fabbricato in legno a vista tipico perlopiù di ambienti montani

Nonostante questo metodo presenti numerosi punti di forza, la sua più grande limitazione risiede, tuttavia, proprio nella sua particolarità

Il fatto di disporre gli elementi in posizione orizzontale significa, infatti, esporre il fabbricato a costanti e considerevoli movimenti dovuti al ritiro e all’espansione igroscopica del legno Le caratteristiche anisotrope di questo materiale fanno sì che il ritiro, che avviene per cambiamenti della percentuale di umidità in esso presente, siano

106 legnoarchitettura 23 sistemi sistemi costruttivi primolam®
c r e d i s B N e g n o s n c

La ditta austriaca Weinberger vanta una storia centenaria (essendo stata fondata nel 1854), anche se il grande sviluppo e specializzazione nell’ambito del legno da costruzione avvengono a partire dalla fine degli anni ‘60 Dal 2012 produce travi per Blockhaus e Bilam forte con una qualità conforme alla normativa CE secondo ETA-13/0234

Il sistema primolam® è stato sviluppato con l’assistenza della studio di ingegneria per il legno WOODLAB che ha curato anche la redazione del manuale tecnico e delle tabelle di predimensionamento.

di ordine di grandezza diverse a seconda della direzione presa in considerazione

Se, per esempio, è possibile considerare trascurabile il ritiro verticale di una parete di 3 metri di altezza composta da elementi in legno disposti con la fibra verticale, è al contempo possibile rilevare degli abbassamenti di anche 3 cm su una parete in legno di 3 metri di altezza composta da elementi in legno distesi orizzontalmente Questi movimenti seguono il ritmo delle stagioni e avviene così che l’abitazione Blockhaus si espande e si ritira regolarmente ogni anno con il passare dei mesi Con tali premesse, non è possibile pensare a un rivestimento esterno del tipo a cappotto né a una controparete interna ‘moderna’ E dunque, proprio nell’ottica di superare quest’ostacolo tecnico – ma anche estetico – la ditta carinziana Weinberger ha sviluppato il pannello primolam®, considerato tra i primi sistemi Blockhaus a ritiro impedito

La conformazione a lamelle incrociate, con la lamella centrale verticale, permette di controllare il ritiro e di rendere stabile l’intera parete, con il risultato che è possibile avere una costruzione che mantenga le caratteristiche statiche tipiche del Blockhaus ma con la possibilità di essere rivestita, sia internamente sia esternamente, per giungere a risultati estetici che travalichino l’aspetto ‘alpino’

I numerosi test eseguiti e le esperienze maturate negli anni hanno permesso di produrre elementi stabili in misure standard in altezza e in lunghezza da 13,50 metri che, proprio per questa caratteristica, possono essere tenuti a

Nella pagina a fianco, un bar a Piancavallo (PN) Sotto, da sinistra, edificio per la pesca nella Laguna di Chioggia (VE) e una residenza privata realizzata in Austria

magazzino in un’unica misura e lavorati direttamente in azienda a seconda dell’uso La possibilità di avere altezze variabili da 30 a 120 cm permette di conformarsi a diversi centri di taglio e consente alle aziende di continuare a utilizzare i propri macchinari e le proprie maestranze per le lavorazioni di taglio dei pannelli Le dimensioni più maneggevoli degli elementi primolam® risultano poi di indubbio vantaggio in tutti quei cantieri in cui, per questioni logistiche, è difficile accedere con mezzi pesanti e ingombranti

Le parti del sistema possono essere elaborate e quindi consegnate sia come elementi a parete preassemblate oppure con dimensioni adattabili individualmente

Di fatto, il sistema primolam® è un’evoluzione del Bilam forte, un prodotto brevettato da Weinberger che unisce i vantaggi dei pannelli in legno lamellare con quelli delle travi per Blockhaus, esaltando l’aspetto legato all’assenza di assestamento e torsione e quindi l’elevata stabilità dimensionale, che consente, tra l’altro, di realizzare edifici di più piani anche con pareti di spessore ridotto

Gli elevati valori statici del prodotto permettono soluzioni semplici ed efficienti, per esempio nella zona dell’architrave di porte e finestre, mentre la sua natura ‘massiccia’ consente di non avere ponti termici

107
c e d s Z e n n a r o L e g n a m s a s c e d s W e n b e g e H o z G m b H

primolam Bilam forte e primolam®

Uno degli svantaggi nella costruzione di edifici Blockhaus consiste nel fenomeno, pur naturale, dell’assestamento, a cui è stato possibile ovviare investendo nella tecnica di produzione degli elementi base, cioè le travi che costituiscono le pareti degli edifici Si è lavorato cercando di sfruttare l’ottimo valore statico del legno lungo la fibra mantenendo al contempo la tipica estetica del legno e una produzione in serie Il legno stabilizzante viene integrato lungo la fibra all’interno della trave per il Blockhaus, garantendo i due requisiti sopra citati L’artificio dell’incollaggio a croce, dato dalle lamelle centrali verticali, aggiunge stabilità dimensionale alla trave soprattutto in combinazione con il profilo a mortasa e tenone appositamente studiato Contemporaneamente, c’è una quasi totale assenza di torsioni nonché la minimizzazione delle crepe grazie alle lamelle esterne tagliate ‘fuori cuore’ Il valore lambda di 0,105 W/mK (per edifici con sistema primolam®) permette, inoltre, di realizzare con una certa facilità edifici che rispondono naturalmente agli elevati requisiti in fatto di risparmio energetico La spessore della parete può variare da un minimo di 90 mm a un massimo di 200 mm per altezze di 150 mm o di 200 mm

L’elemento parete può essere fornito sia come elemento prefabbricato, quindi praticamente finito in officina e solamente montato in cantiere, oppure come elemento pre-finito da completare in loco, lasciando così una certa libertà espressiva e di intervento ai carpentieri

Prestazione conforme CE (ETA-13/0234)

Tipi di legno abete rosso (pino, larice, douglasia e altri tipi su richiesta)

Qualità a vista o industriale

Umidità del legno 12 (+- 2) %

Incollaggio poliuretano, fuga chiara resistente alle intemperie, EN 15425 tipo I

Lunghezza standard 13,5 m (altre lunghezze a partire da una lunghezza minima di 6 m su richiesta)

Spessori della parete da 90 a 200 mm

Altezza da 300 a 1200 mm

Giunzioni a pettine verticali; orizzontali (per qualità a vista, a partire da uno spessore della parete di 120 mm e possibilità di giunzione con battuta)

La giunzione a pettine è uno speciale tipo di giunzione longitudinale del legno, nella quale si sfrutta il principio dell’effetto cuneo

La base di questo procedimento è un profilo normato con numerosi piccoli denti, che viene pressato insieme a un relativo controprofilo esercitando su di essi una forza elevata, con la conseguenza che questa giunzione non può più essere separata manualmente

Con l’aiuto della colla si riesce poi a ottenere una giunzione ancora più efficace, capace di sopportare carichi in modo durevole e calcolabile staticamente

Il tipo di giunzione a pettine verticale è quello più diffuso. Rispetto alla variante orizzontale, il suo vantaggio consiste nella produzione più veloce, dal momento che il processo di fresatura viene effettuato sul lato più corto dell’asse. Lo ‘svantaggio’ consiste nel fatto che rimane visibile nel punto della giunzione

Per gli elementi che compongono primolam®, si tende a utilizzare la giunzione a pettine orizzontale, valorizzandola con una battuta che non influisce sulla resistenza delle assi e che, dal punto di vista estetico, risulta visibile solo come una linea dritta

giunzione a pettine orizzontale

giunzione a pettine verticale

L’elemento base del sistema primolam®: la trave Bilam forte, che viene utilizzata sia per gli elementi parietali sia per quelli di solaio

108 legnoarchitettura 23 sistemi

primolam solai e pareti

In virtù della tecnologia di produzione, il sistema dei solai primolam® risulta superiore per i valori di isolamento acustico rispetto alle travi in legno lamellare Non richiede nessun’asse a battuta, rendendo posa e montaggio ancora più rapidi ed economici, e permette, inoltre, di eseguire lavori di carpenteria direttamente in cantiere, lasciando grande libertà espressiva all’impresa costruttrice È possibile utilizzarlo sia come solaio da rivestire sia come solaio a vista In quest’ultimo caso, gioca a favore un’estetica finale che è data dalla possibilità di utilizzare diversi tipi di legno ma anche dall’assenza di assestamento e torsione e con una stabilità dimensionale elevata che impedisce la formazione di crepe Grazie poi alla giunzione a pettine orizzontale con battuta opzionale, i giunti risultano quasi invisibili

Il sistema per solai primolam® può essere adattato ai singoli progetti grazie alla possibilità di combinare diverse larghezze degli elementi ma, proprio in virtù delle inferiori dimensioni degli elementi, risulta più facile da movimentare e più efficiente nel trasporto

solaio primolam®

Tabella dimensionale, rapporto tra spessore pareti e larghezza (lunghezza max 13,5 m) altezza parete e larghezza posa del solaio (mm)

spessore parete e spessore solaio (mm)

Il sistema di pareti, nella versione con spalla esterna dritta e giunti con spigoli vivi, permette di avere una certa libertà di scelta nel mantenere l’estetica del legno sull’intera superficie o nel sottoporre le pareti a successiva lavorazione

Una delle caratteristiche più importanti relative all’assemblaggio dei pannelli, molto stabili dimensionalmente grazie al legno incollato a schema incrociato, riguarda i giunti angolari, che possono essere utilizzati senza ausili metallici, sfruttando il sistema “a coda di rondine” Tutto ciò si traduce in vantaggi non soltanto a livello strutturale, ma anche in termini di efficienza poiché le pareti dell’edificio vengono sviluppate in senso orizzontale, con lo stesso incastro del Blockbau, risultando però estremamente più sottili

dettaglio di una parete tipo con gli elementi di base Bilam forte

esempio di parete assemblata in cantiere e successiva posa dell’elemento isolante a cappotto e della finitura interna

esempio di parete assemblata in falegnameria (i giunti angolari verranno avvitati in cantiere)

I giunti angolari possono essere assemblati anche senza ausili metallici (vedi a sinistra l’incastro “a coda di rondine”), oppure con viti a scomparsa; l’incollaggio dei legni di base avviene senza formaldeide

109
300 x x x 400 x x x x 450 x x x 600 x x x x x x x 1200 x x x x x x x 750 x x x 800 x x x x 900 x x x 1050 x x x 1000 x x x x
100 120 140 160 180 200
90

primolam dettagli costruttivi

110 legnoarchitettura 23 sistemi
nodo parete primolam® con copertura primolam® nodo parete primolam® con copertura X-lam nodo parete telaio con copertura primolam® ancoraggio alla fondazione con piastra angolare ancoraggio alla fondazione con barra filettata

primolam dettagli costruttivi

Come si evince dai disegni di queste pagine, il sistema primolam®, nei suoi elementi portanti di chiusura verticale e orizzontale, è completamente compatibile con tutti gli altri sistemi costruttivi in legno più noti e diffusi, come l’X-lam o il telaio In alcuni casi, è possibile anche accostare un sistema come il primolam® a una costruzione in mattoni (vedi immagine sottostante)

I dettagli tecnici di queste pagine sono stati forniti da WOODLAB

111
nodo solaio primolam® con parete primolam®, vista perpendicolare all’orditura nodo solaio primolam® con parete a telaio, vista parallela all’orditura nodo solaio primolam® con parete X-lam, vista parallela all’orditura nodo solaio a travetti con parete primolam®, caso con trave di banchina

Tre Taarn

Helen&Hard AS / dRMM

Casa Sociale Caltron

Mirko Franzoso Architetto

Cinque Port Street

JDA

Costa Nova Social and Cultural Center

ARX Portugal Arquitectos

24 next F o o M a a n o D a l a g o o t o g r a o F o t o S i n d r e E l n g s e n F o t o O v e r P e r o t P h o o g a p h y

Turn static files into dynamic content formats.

Create a flipbook
Issuu converts static files into: digital portfolios, online yearbooks, online catalogs, digital photo albums and more. Sign up and create your flipbook.