legnoarchitettura 26

Page 1

incontri

Coy Yiontis Architects

progetti

Coy Yiontis Architects

Liljewall architects

PKdM Arkitektar ANDIBREUSS

Chevalier Morales architectes

2020 Architects

MD Studio

ARCHITECTUREFIRM techné

Brock Commons strutture

La Cité du Vin

EdicomEdizioni

Trimestrale anno VIII n° 26 gennaio 2017 Euro 15,00 Registrazione Trib Gorizia n 4 del 23 07 2010 Poste italiane S p A Spedizione in a p D L 353/2003 (conv in L 27/02/2004 n 46) ar t 1, comma 1 NE/UD
I S S N 2 0 3 90 8 5 8
legnoarchitettura 26

legnoarchitettura

rivista trimestrale

anno VIII – n 26, gennaio 2017 ISSN 2039-0858

Numero di iscrizione al ROC: 8147

direttore responsabile

Ferdinando Gottard

redazione Lara Bassi, Lara Gariup

editore

EdicomEdizioni, Monfalcone (GO)

redazione e amministrazione

via 1° Maggio 117 34074 Monfalcone - Gorizia tel 0481 484488, fax 0481 485721

progetto grafico

Lara Bassi, Lara Gariup

stampa Grafiche Manzanesi, Manzano (UD)

Stampato interamente su carta con alto contenuto di fibre riciclate selezionate

prezzo di copertina 15,00 euro abbonamento 4 numeri

Italia: 50,00 euro - Estero: 100,00 euro

Gli abbonamenti possono iniziare, salvo diversa indicazione, dal primo numero raggiungibile in qualsiasi periodo dell’anno

distribuzione in libreria

Joo Distribuzione Via F Argelati 35 – Milano

copertina James River House, ARCHITECTUREFIRM

Foto: James Ewing

È vietata la riproduzione, anche parziale, di articoli, disegni e foto se non espressamente autorizzata dall’editore

ibrido di 18 piani

Foto: courtesy of Cheval er Morales architectes Foto: IKON
etto (UD)
Povo
26 legnoarchitettura
Foto James Ewing
04 91 103
incontri techné strutture 70 80
Coy Yiontis Architects
Brock Commons un
Legno per il vino
50
60 10 30 F o t o L a s O a u s s o nL e w a a c h e c t s M a k V u o r P h o t o g r a p h e F o o ® T a t a n a P l t Foto: 2020 Architects Humble House Coy Yiontis Architects 10 Herresta School Liljewall architects 18 Cottage per vacanze PKdM Arkitektar 30 Casa di famiglia ANDIBREUSS 40 Residence Roy-Lawrence 50 Chevalier Morales architectes Ballymagarry Road House 2020 Architects 60 Villa Cedar MD Studio per DomusGaia 70 James River House ARCHITECTUREFIRM 80 10 progetti F o t o A s r d B a r F o o : R a a e P i n h o 40 18

Coy Yiontis Architects

Fin dall’apertura del loro studio nel 1996 dopo la decennale esperienza europea, gli architetti australiani Rosa Coy e George Yiontis si sono impegnati nel realizzare architetture di qualità attraverso un approccio progettuale in continua evoluzione e sempre rispondente alle esigenze del committente.

Vincitori di diversi premi in Europa prima e ora in Australia (AIA Awards nel 2003 e nel 2015), nei loro progetti utilizzano il legno sia con funzione strutturale che di rivestimento e finitura, scegliendolo in base alla provenienza, preferibilmente locale, e alla destinazione dell’edificio.

In queste due pagine, la Berkeley Dobson House, South Melbourne, 2004. Finalista all’AIA-VIC Residential Alterations & Additions del 2004 e del 2005.

Dopo più di dieci anni passati a lavorare in Europa, avete deciso di tornare in Australia e aprire il vostro studio. Cosa vi ha spinto a rientrare in Australia e cosa avete portato dall’Europa nei vostri progetti e nella vostra professione?

Desideravamo creare il nostro studio di architettura e ci sembrava che le opportunità in termini di contatti e di reti per noi fossero maggiori nel nostro paese natale, l’Australia. Abbiamo portato con noi la valorizzazione dello spazio, dei dettagli e della materialità.

4 legnoarchitettura_26 incontri
incontri
Foto: Peter Clarke Foto: Peter Clarke

Nelle due immagini accanto, la House 3, Melbourne (AU), 2014.

Vincitore dell’AIA Victorian Architecture Awards Residential Architecture –Houses (Alterations & Additions) del 2015.

Troppo spesso, infatti, in una nuova costruzione in Australia lo spazio è sprecato, in quanto percepito come abbondante e quindi non valorizzato. Si tratta di un valore a cui siamo sempre molto attenti; nei nostri progetti, ogni centimetro quadrato è tenuto in considerazione.

A volte lottiamo per raggiungere il livello di finitura che desideriamo a causa della mancanza di risorse e di competenze artigianali in questo paese. Per fortuna, lavorando con il legno abbiamo una grande competenza a disposizione.

Alcuni dei vostri edifici sono costruiti interamente in legno oppure lo utilizzano come materiale di finitura: da dove nasce questo interesse per il materiale “legno”?

Amiamo tutti i materiali naturali ed essi caratterizzano profondamente il nostro lavoro. In Australia il legno è facilmente disponibile e abbiamo qui un’ampia base di competenze per lavorare con questo materiale. È una scelta naturale.

L’utilizzo del legno come materiale strutturale è una pratica consolidata in Australia?

Il legno è un materiale strutturale conveniente e comune

in Australia. Il Pinus Radiata (un albero appartenente alla famiglia delle Pinaceae, ndr) è usato molto comunemente in Australia per i lavori strutturali, è facilmente reperibile ed economico.

Quali sono le potenzialità del legno in architettura e quale valore aggiunto apporta ai vostri progetti?

Il legno nelle costruzioni leggere ha molti vantaggi dal punto di vista economico e, usato come finitura, può essere molto bello e di grande effetto come si vede sia nella Humble House (ndr, che pubblichiamo in questo numero) che nella House 3 (ndr, vedi legnoarchitettura 20).

Come scegliete il tipo di legno in relazione all’utilizzo?

La selezione della tipologia di legno per un progetto è determinata dal budget e dallo scopo. Utilizzeremo, ad esempio, un legno di latifoglie autoctono per il rivestimento esterno e, qualunque sia il suo scopo, sceglieremo sempre un legno sostenibile di produzione locale.

Quali soluzioni adottate, progettuali e di protezione del materiale, per rendere durabile un edificio in legno?

6 legnoarchitettura_26
Foto: Peter Clarke
incontri

La Jumbanna House, Jumbanna (Victoria), completata nel 2000: il rivestimento delle pareti esterne è costituito da traversine ferroviarie opportunamente lavorate.

Ci assicuriamo di scegliere il legno corretto per lo scopo al quale è destinato. Per una pavimentazione o un rivestimento preferiamo finiture naturali a olio per proteggere e mantenere la bellezza naturale del prodotto e per la facilità di applicarle nuovamente.

Legno, sostenibilità, risparmio energetico: come si coniugano questi elementi nella vostra architettura? Quando progettiamo con il legno, controlliamo innanzi tutto che il prodotto che scegliamo appartenga a una specie sostenibile e di provenienza locale. Nella progettazione, inoltre, consideriamo sempre l’orientamento, la massa e la ventilazione naturale passante per massimizzare l’efficienza energetica.

In alcuni progetti avete utilizzato legno recuperato per il rivestimento, ad esempio nel Victoria Harbour Centre e nella Jumbanna House. Quali sono i motivi di questa scelta?

Nel Victoria Harbour Centre il legno usato è stato recuperato dai vecchi docks dove il nuovo fabbricato proposto doveva essere costruito. Questo collega in maniera molto forte l’edificio al sito su cui sorge e la solidità delle larghe tavole in legno contrasta con gli altri materiali contemporanei utilizzati. Nella Jumbanna House, invece, abbiamo utilizzato vecchie traversine ferroviarie, rimesse a nuovo, per le pareti esterne.

7
Foto: Peter Clarke
Foto: Trevor Mein Foto: Trevor Mein

Prestate molta attenzione alla cura dei dettagli: quanto il risultato è frutto del lavoro di progettazione e quanto della collaborazione con artigiani e costruttori?

Abbiamo un forte rapporto con i nostri carpentieri e obiettivi comuni in rapporto alla nostra architettura e al risultato finale. Ognuno apprezza le competenze degli altri.

Molte vostre residenze sono ampliamenti di edifici storici, risalenti all’epoca vittoriana. Che tipo di approccio adottate in questi casi? Che relazione instaurate tra l’edificio preesistente e la nuova costruzione?

Nonostante la nostra nazione sia relativamente giovane, o proprio per questo motivo, il patrimonio architettonico è fieramente protetto dai nostri dipartimenti di pianificazione e spesso per edifici di soli 100 anni è richiesto il mantenimento e il restauro, nascondendo alla vista qualsiasi estensione contemporanea. I rinnovamenti di queste case sono progettati caso per caso, ma un tema ricorrente è quello di portare la luce naturale all’interno tramite lucernari e creare connessioni tra gli spazi abitativi e l’esterno, con un’articolazione tra vecchio e nuovo chiaramente definita.

Nella Humble House, che pubblichiamo su questo numero, avete cercato di garantire l’adattabilità e l’evoluzione dell’edificio per garantire un facile utilizzo della casa anche nella vecchiaia. È un’esigenza

8 legnoarchitettura_26
incontri
La South Yarra House, Melbourne, completata in due step nel 2003 e nel 2009. Il Victoria Harbour Centre, Melbourne Docklands, completato nel 2002. Finalista al RAIA-VIC Commercial New del 2004. Foto: Peter Clarke Foto: Peter Clarke

crescente anche in Australia? Come coniugate la forte immagine architettonica, tipica dei vostri progetti, con le esigenze di flessibilità, accessibilità, facile manutenzione ecc.?

Tutte le nostre realizzazioni sono progettate per durare a lungo e ci assicuriamo che gli edifici e gli spazi siano funzionali e facili da utilizzare. Diamo la priorità alla conservazione e all’accesso della luce naturale. Rite-

niamo che una casa ben progettata debba avere un bell’aspetto, ma debba essere anche adattabile, accessibile e facile da mantenere. Questa per noi è la definizione della buona progettazione.

Per approfondimenti: www.cyarchitects.com.au

9
Foto: Peter Clarke La Lim House, Melbourne, completata nel 2010.
Foto: Tatjana Plitt

Coy Yiontis Architects

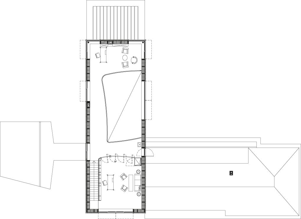
Humble House Barwon Heads (AU)

_1

La terrazza sud della zona giorno e uno dei due studi.

_2

Vista da sud con l’ingresso e, a destra, la terrazza della zona giorno.

_3

Il retro dell’abitazione e il giardino dove i committenti possono coltivare ortaggi e curare fiori come nella vecchia fattoria in cui abitavano in precedenza.

12 legnoarchitettura_26 progetti
Foto: Tatjana Plitt 2 Foto: Tatjana Plitt
1

Ubicazione: Barwon Heads, Victoria (AU)

Progetto: George Yiontis, Rosa Coy, Elodie Lim - Coy Yiontis Architects, Melbourne (AU) www.cyarchitects.com.au

Strutture: Greer Consulting Engineers, Melbourne, Victoria (AU)

Appaltatore: J&S Trickey builders, Barwon Heads, Victoria (AU)

Paesaggio: Bellarine Landscapes, Ocean Grove, Victoria (AU)

Lavori: giugno 2014 - febbraio 2015

Superficie netta: 205 m2

Superficie totale: 249 m2

Un bastone per la vecchiaia

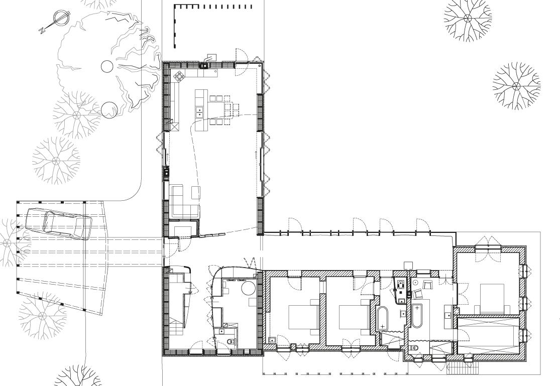
Confortevole, flessibile e di facile gestione. Bastano solo queste poche parole per riassumere il programma progettuale che ha portato alla realizzazione della Humble House, una “umile” casa con struttura in legno a telaio situata sulla costa meridionale dell’Australia. L’unica richiesta dei committenti, abituati a vivere in una grande fattoria, è stata infatti un’abitazione in cui invecchiare comodamente, dove non ci fossero barriere tra interno ed esterno e che potesse soddisfare le loro esigenze e ospitare parenti e amici.

Per dare risposta a tali richieste, gli architetti hanno progettato una casa che tiene conto dell’intorno e delle esigenze di privacy ma il cui impianto planimetrico permette una grande flessibilità d’uso degli spazi. La forma dell’abitazione scherma la presenza dell’ingombrante fabbricato a due piani costruito molto vicino al confine ovest del lotto, grazie all'inserimento di un volume compatto quasi totalmente chiuso, il cui ripido tetto a una falda accoglie la zona servizi e la camera da letto padronale aperta sul giardino a est. Specchiato rispetto a quest’ultimo e leggermente più alto, un corpo di fabbrica dalla sagoma simile in alzato ospita la zona giorno, collegandosi al volume con copertura piana del soggiorno e salotto. Questo blocco è caratterizzato da finestre a tutta altezza sui lati nord e sud che consentono di illuminare naturalmente lo spazio interno, di godere a nord degli apporti solari in inverno e dell’ombra a sud in estate, e di guadagnare ulteriore spazio all’esterno aprendo completamente i serramenti. La disposizione planimetrica è duttile poiché permette di trasformare facilmente la destinazione d’uso degli spazi, come nel caso delle due stanze studio dei committenti che possono essere convertite in camere per gli ospiti o, in caso di futura necessità, in camera con bagno per una badante. Pensando anche alla vecchiaia e alla comodità è stata resa accessibile ogni parte della proprietà, creando un giardino allo stesso livello della casa e aprendo una porta nascosta nel garage che dà accesso diretto alla dispensa interna della cucina, evitando così di trasportare le pesanti borse della spesa. Piccoli ma significativi dettagli che agevolano lo svolgimento delle attività quotidiane e che insieme alla personalizzazione degli spazi con i ricordi di una vita arricchiscono l’impronta contemporanea del progetto.

13
3 Foto: Tatjana Plitt

pianta

Legenda: 1entrata 2studio 3bagno 4terrazza esterna

5sala da pranzo/soggiorno 6cucina 7garage 8terrazza

9lavanderia 10bagno in camera da letto 11camera da letto 12guardaroba

14 legnoarchitettura_26 progetti
4 Foto: Tatjana Plitt

_4

Vista della zona giorno verso il giardino a nord.

_5 _6

Le aree centrali dell’abitazione, come il bagno e la cucina, non avendo un affaccio esterno, sono illuminate da lucernari sul tetto o da finestre poste quasi a ridosso del colmo.

15
fronte nord fronte est fronte ovest
5 6
fronte sud Foto: Tatjana Plitt Foto: Tatjana Plitt

sezione trasversale

sezione longitudinale

_struttura e impianti________

L’ingresso da Humble Street con il garage a sinistra. La recinzione e il cancello si integrano con l’architettura della casa.

La struttura dell’abitazione è costruita su fondazioni a plinto con un sistema intelaiato di travi e pilastri in legno con rivestimento, per gran parte degli esterni, in doghe di eucalipto maculato, trattato con olio chiaro a protezione dai raggi UV e dalle intemperie; la copertura è in metallo corrugato. I serramenti sono a doppio vetro con buone prestazioni energetiche e dotati di schermature motorizzate. Essendo la facile gestione dell’immobile uno dei punti cardine del progetto, l’edificio è dotato di un riscaldamento a pavimento, mentre il raffrescamento avviene con pompa di calore. Un sistema domotico con un touch screen consente di visualizzare e comandare tutte le apparecchiature e gli impianti.

16 legnoarchitettura_26 progetti
_7
7 Foto: Tatjana Plitt

A sinistra in alto, primi lavori di realizzazione della struttura a telaio in legno, appositamente trattato per resistere all’umidità e alle termiti.

A sinistra in basso, ralizzazione del solaio dell’area living e della terrazza; la struttura lignea poggia su pilastri ancorati a plinti di fondazione compensando i dislivelli del terreno. Qui a lato, il volume delle aree giorno e dei servizi con l’ingresso inizia a essere rivestito con doghe di eucalipto.

A sinistra, posa del rivestimento sul lato nord.

A destra, costruzione della struttura di sostegno del solaio contro terra dello spazio soggiorno/salotto. Sul fondo, l’apertura della camera da letto principale. A sinistra, coibentazione del volume centrale dell’abitazione e posa dei collegamenti impiantistici. A destra in alto, la membrana di tenuta all’aria e all’acqua nel blocco della camera padronale e i listelli di supporto per la posa del rivestimento.

A destra in basso, posa della finitura esterna in listelli di eucalipto maculato.

17

Herresta School

Liljewall architects
Järfälla (S)

_1

L’area destinata ai bambini dell’asilo a est. Come tutti gli ingressi, anche questo è connotato da un colore specifico che si ritrova poi all’interno, in modo da facilitare l’orientamento.

_2

Una struttura a pergola, con montanti e travi colorate, corre lungo i tre lati interni dell’edificio scolastico fornendo protezione alle vetrate del piano terra.

_3

La grande corte interna del complesso scolastico. Le facciate, in pannelli di legno prefabbricati, riprendono il disegno geometrico che contraddistingue i prospetti verso le vie pubbliche.

20 legnoarchitettura_26 progetti 2 1

Ubicazione: Barkarby, Järfälla (S)

Progetto: Stefan Östman, Lars Olausson - Liljewall architects, Göteborg (S)

Team di progetto: arch. Lars Olausson, arch. Stefan Östman, ing. Elisabeth Skoglund, ing. Johan Brendelökken, ing. Peter Törnquist, arch. Anna Skoglund, arch. August Orrling - Liljewall architects, Göteborg (S)

Strutture: Knut Jonsson Engineering

Office i Sigtuna AB, Märsta (S)

Strutture CLT: Tristan Wallwork - Smith and Wallwork, Cambridge (UK)

Progetto: 2012-2013

Fine lavori: gennaio 2016

Superficie scuola: 8.208 m2

Fotografie:

Finito: Lars Olausson - Liljewall architects; Mark Vuori Photographer

Foto cantiere esterno: Skanska

Foto cantiere interno: Lars Olausson

La prima scuola in X-lam della Svezia

Nel 2011 il Consiglio di Järfälla, cittadina a nord di Stoccolma, ha bandito un concorso di architettura per la nuova scuola della circoscrizione di Barkarby; il programma della gara richiedeva la realizzazione di un asilo, una scuola per bambini tra i 6 e i 12 anni, una biblioteca pubblica e una palestra per la comunità per una superficie prevista di oltre 8.000 m2. La proposta del progetto vincitore è stata quella di inglobare tutte le funzioni in un unico edificio con impianto volumetrico a C che, dalla piccola scala dell’asilo posto a una delle due estremità, cresce in altezza fino a culminare, dalla parte opposta, con la parete da arrampicata di 14 m della palestra. Si sviluppa così un grande cortile interno protetto da un corpo compatto che segue la struttura a blocchi della città e funge da scenario al viale che segna l’ingresso all’abitato, oltre a un parco per le attività degli studenti e dei residenti.

A una facciata in vetro satinato che lascia percepire la struttura sottostante, fanno da contraltare tre ingressi intagliati nel corpo vetrato, contraddistinti dal rosso acceso delle uniche parti metalliche portanti della struttura, i pilastri e le travi di supporto agli sbalzi del volume. Le entrate alle varie aree del complesso sono dipinte di giallo per l’asilo, verde per la scuola e rosso per l’ingresso principale e questi colori, proseguendo all’interno dell’edificio, connotano l’identità degli spazi e facilitano l’orientamento degli studenti e dei bambini più piccoli. I fronti che affacciano sull’ampia corte interna sono rivestiti invece da pannelli di legno bianchi e sono circondati da una lunga pergola colorata.

Le aree a fruizione comune, caratterizzate da un rivestimento ligneo a doghe, quali la biblioteca, il caffè, la food court e la palestra, sono tutte raggruppate in prossimità dell’ingresso principale e facilmente separabili dal resto dell’edificio, così da poter essere affittate senza interferire con l’attività didattica; la palestra ha anche un accesso separato per poter essere utilizzata dalle varie associazioni sportive.

Il 10 gennaio 2016 400 ragazzini hanno preso possesso dell’edificio che è la prima scuola realizzata in X-lam in Svezia.

21 3
22 legnoarchitettura_26 progetti
pianta del piano terra sezione A4 sezione A5
4
sezione A3
5
pianta del primo piano

biblioteca; aree per il personale al secondo piano, affittabili per eventi; vano impianti palestra

amministrazione; laboratori (lavorazione del legno, dei tessuti, aula musica e di cucina: tutti questi spazi sono utilizzabili/affittabili da esterni porzione dell’area prescolastica

porzione dell’area prescolastica

mensa e cucine

gruppo di lavoro “rosso” della scuola

gruppo di lavoro “turchese” della scuola

gruppo di lavoro “giallo” della scuola

gruppo di lavoro “viola” della scuola

spogliatoio del personale

_acustica e antincendio________

Gran parte del processo progettuale è stata dedicata al raggiungimento dei requisiti acustici richiesti. Molteplici sono state le soluzioni adottate, dai pannelli acustici a soffitto ai tessuti insonorizzanti posti sulle pareti sotto il rivestimento a doghe distanziate di un centimetro. Tuttavia, la sfida più grande è stata insonorizzare le macchine di ventilazione, installate in una sala al terzo piano. Per evitare le vibrazioni sul solaio e la trasmissione di rumori si è provveduto a posizionare le unità di ventilazione su travi di acciaio con piedini a molla per smorzare le oscillazioni, il tutto sopra un masseto di calcestruzzo. Questa è l’unica parte in tutto l’edificio dove sia stato utilizzato il cemento, se si escludono le fondazioni a zattera. In termini di sicurezza antincendio, l’intero edificio è dotato di irrigatori a pioggia rivolti verso il basso e verso l’alto così da proteggere anche le travi in legno. Gran parte degli elementi portanti lignei a vista sono stati appositamente trattati con una pittura per garantire la protezione al fuoco, così come i pannelli acustici in legno della palestra, il cui trattamento si estende fino a un’altezza di 4 metri.

_4

La biblioteca.

_5

Una delle classi.

_6

L’interno dell’asilo, caratterizzato dal colore giallo.

23
6
pianta del secondo piano

L’ampio ingresso principale, con la scala in legno che collega i due livelli superiori, dà accesso alle aree pubbliche, segnalate dalle indicazioni poste sulla pavimentazione: l’accoglienza, la biblioteca, la sala mensa e gli accessi alla palestra.

Copertura, dall’esterno

-pacchetto tetto verde

-membrana antiradice e impermeabilizzante

-isolamento a quadruplo strato in PIR

-solaio di copertura in pannelli X-lam

Parete, dall’esterno

-facciata in vetro satinato

-listelli e controlistelli per camera di ventilazione -montante in lamellare

-membrana di tenuta all’aria e all’acqua

-listello

-isolamento in PIR

-coibentazione in lana minerale

-pannello portante in X-lam

Solaio interpiano, dall’estradosso

-rivestimento in linoleum

-massetto e membrana impermeabile

-isolamento in lana minerale

-pannello alveolare / materiale minerale

-solaio in pannelli X-lam

1trave in lamellare

2fondazioni e cordoli in cls armato

3isolamento

4pavimento in terrazzo alla veneziana

_Certificazione di sostenibilità________

La scuola è costruita secondo la più alta classe ambientale dello standard svedese del Green Building Council, il MiljöByggnad Guld (livello Gold). È questo infatti il requisito che il comune di Järfälla ha imposto per i fabbricati di nuova costruzione e che comporta un basso consumo di energia, la verifica del comfort acustico e termo igrometrico interno, dei livelli di ventilazione e di illuminazione, ecc. Anche i materiali impiegati sono valutati sulla base del loro impatto ambientale. Sul tetto verde a sedum della scuola sono stati installati 1200 m2 di celle solari che coprono il fabbisogno elettrico dell’edificio. I pannelli sono disposti in modo da rendere facilmente identificabile la scuola anche dalle viste satellitari.

24 legnoarchitettura_26 progetti
4 2 3 1 1 1 1 1 2 3 _7
7 Credits: Liljewall architects

_struttura________

Come previsto dal bando di concorso, l’edificio doveva essere obbligatoriamente costruito in legno, poiché realizzare la scuola con questo materiale avrebbe comportato l’emissione di sole 900 tonnellate di CO2 rispetto alle 1.600 tonnellate di CO2 in caso di utilizzo del calcestruzzo. Inoltre, era stato calcolato che il legno per la scuola immagazzinava oltre 2.000 tonnellate di CO2, riducendo così le emissioni di carbonio di oltre 1.000 tonnellate. Con tali presupposti e dopo accurate ricerche che hanno visto la consulenza dello studio Smith and Wallwork di Cambridge (UK), si è deciso che la struttura principale del fabbricato dovesse essere realizzata in X-lam, impiegando elementi prefabbricati già predisposti per il passaggio degli impianti, per pareti, solai, copertura e partizioni interne. Oltre ai pannelli X-lam, nell’edificio è stato usato anche legno lamellare, in particolare nella palestra e in facciata. Nella palestra, infatti, le travi del solaio sono imponenti, 30 m di lunghezza per oltre 14 tonnellate di peso, mentre in facciata si sono adoperate travi più piccole, disposte a zig-zag per ragioni estetiche, ma anche per stabilizzare la struttura stessa e per distanziare i pannelli portanti in X-lam dalle vetrate semitrasparenti dei prospetti. In totale sono circa 3.500 i metri cubi di legno impiegato nell’edificio e le uniche strutture metalliche, dipinte di rosso, sono costituite dai porticati degli ingressi. Da segnalare, inoltre, la complessa organizzazione dello stoccaggio in cantiere degli elementi strutturali in legno lunghi 14 m e alti 3 m, consegnati in situ con un’umidità del 12% (con variazioni di ± 2%) e che necessitavano quindi di un’adeguata asciugatura prima della posa in opera, il tutto in un ambiente coperto e ventilato. Il costo di costruzione della scuola non si discosta molto dalla spesa che si sarebbe sostenuta se l’edificio fosse stato realizzato in c.a. e la maggiorazione, dovuta alle soluzioni tecniche più dispendiose adottate per l’acustica e gli impianti antincendio, sono state ampiamente ripagate da un tempo di edificazione di sole 14 settimane.

Rendering della struttura della facciata vetrata realizzata in elementi di legno lamellare che, nella parte più bassa della scuola a sud-est, diventano una ringhiera in prossimità di uno degli accessi all’edificio.

_8

La facciata in vetro satinato lascia intravedere la sottostante struttura di supporto in legno lamellare.

_9

Posa della sottostruttura di supporto della vetratura satinata sulla struttura in lamellare. 8 9

25
Credits: Smith and Wallwork

Interno della palestra con le travi in lamellare a vista della copertura. _11

La palestra in fase di cantiere.

Fissaggio dei montanti della facciata esterna in corrispondenza dell’entrata principale

1Il montante in lamellare è sagomato a dente per essere incastrato e poi fissato al pannello in X-lam con una serie di viti filettate da 135 mm.

2Inferiormente, il montante si blocca nel pannello massiccio a cui è ancorato grazie a viti filettate da 300 mm inserite a 45°, le quali, a loro volta, assicurano una sottile lamina da 15 mm all’elemento di legno per il successivo attacco della trave metallica.

3L’assonometria e l’esploso assonometrico mostrano l’aggancio dei montanti in lamellare ai pannelli in X-lam. La struttura in legno a sbalzo è sostenuta da pilastri a I in acciaio e protetta da piastre sempre in acciaio.

(Crediti dei disegni di questa pagina: Smith and Wallwork)

26 legnoarchitettura_26 progetti 1 2 3
10
_10

Rendering assonometrici strutturali. In fucsia le parti portanti metalliche.

Dettaglio della scala di ingresso realizzata in X-lam.

Sotto, i due rendering mostrano, a sinistra, la sola struttura lignea degli elementi parietali con i fori per il passaggio delle condutture degli impianti e, a destra, la stessa porzione di edificio con l’articolato sviluppo delle diverse condutture impiantistiche.

(Crediti dei rendering di questa pagina: Smith and Wallwork)

27 _12
11 12

Dettaglio A –Connessione trave-trave fortemente caricate

La connessione tra le travi avviene mediante viti con filetto intero autoforante di lunghezza differente (300, 430, 480 mm), inserite in in fabbrica secondo diverse direzioni: le viti di 300 mm (3) in senso longitudinale rispetto alla posa della trave principale (1) e secondaria (2), quelle da 430 mm a coppie incrociate a 45° e quelle da 480 mm in coppie parallele a 45°.

Dettaglio B –Connessione trave lamellare su parete interna con tasca

L’attacco di una trave in lamellare alle pareti interne avviene in appoggio grazie a un’apposita sagomatura della parete posta sullo stesso piano (1) con, incassato, un piatto di acciaio corredato di viti a testa cilindrica, necessarie a fissare il trave (2) di 215x750 mm. Quest’ultimo viene collegato a una seconda parete (3), posta in opera all’estremità e perpendicolarmente alla parete longitudinale per aumentarne la stabilità, mediante piastre a L fissate con viti da 50 mm.

Dettaglio C –Connessione trave lamellare su parete interna con tasca sulla parete parallela o sull’angolo

Il collegamento tra la parete di 120-180 mm (1) posta in continuità alla trave, la parete perpendicolare (2) di stabilizzazione della prima e la trave avviene mediante piastre di acciaio forato, dello spessore di 1,5 mm e dimensioni 200x260 mm, fissate a cavallo della trave e dell’elemento massiccio in X-lam. La tasca ha lunghezza pari allo spessore della parete di sostegno, alla quale la trave di lamellare è ancorata con piastre angolari e chiodi.

Dettaglio D –Connessione tra parete interna, trave lamellare continua e trave ortogonale

L’ancoraggio tra una parete in X-lam e una trave continua in lamellare si effettua con appoggio della trave sulla tasca ricavata nella parete stessa e fissaggio con piastre metalliche angolari e chiodi. La trave secondaria si aggancia all’elemento continuo grazie a viti speciali autofilettanti inserite in un connettore a scomparsa, connesso alla trave portante.

(Crediti dei disegni di questa pagina: Smith and Wallwork)

28 legnoarchitettura_26 progetti
4 1 2 3 dettaglio A
C
dettaglio
B dettaglio D 4 1 2 1 2 3 1 2 3 1 2 1 2 5
dettaglio

A sinistra, movimentazione di uno dei grandi elementi in X-lam.

A destra, posa in opera dei pannelli prefabbricati delle partizioni interne. Gli elementi in X-lam hanno fresature per il passaggio degli impianti e per l’installazione degli apparecchi elettrici, illuminanti e di ventilazione.

Costruzione della palestra.

A sinistra, le aree servizi verso il fronte pubblico.

A destra, sollevamento di un elemento della struttura primaria della copertura della palestra.

A sinistra in alto, la struttura a travi e pilastri dell’area informazioni.

A sinistra in basso, la rampa che porta al terzo livello.

A destra, la hall durante i lavori.

A sinistra, posa in opera degli impianti antincendio, elettrico e di ventilazione.

A destra, la struttura della palestra ormai completata.

29
Foto: Rafael Pinho

Cottage per vacanze

Brekkuskógur (IS)

PKdM Arkitektar

_1

Vista da sud delle coperture dei due cottage realizzati.

La terra scavata ed estratta durante i lavori per la costruzione delle fondazioni in calcestruzzo è stata riutilizzata per creare dei terrapieni con funzione antivento che circondano le corti nonché per formare rampe –calpestabili –attorno agli angoli degli edifici.

_2

La corte interna, protetta dai venti, di uno dei due cottage.

Gli interni delle case vacanza sono rivestiti di listelli di legno posati a un interasse uguale a quello dei listelli esterni, creando un interessante contrasto con i pavimenti levigati di cls. Al centro dell’abitazione si trovano gli spazi comuni, dedicati al soggiorno, al pranzo nonché la cucina aperta; intorno si dispongono invece le camere da letto e il bagno.

32 legnoarchitettura_26 progetti 1 Foto: Rafael Pinho

Ubicazione: Brekkuskógur (IS)

Committente: Association Of Academics Vacation Cottages

Progetto: PKdM Arkitektar, Reykjavík (IS)

Strutture: Þráinn og Benedikt verkfræðistofa, Reykjavík (IS)

Appaltatore e direttore dei lavori: Smíðandi ehf, Selfossi (IS)

Lavori: 2014-2015

Superficie utile: 103 m2 per ogni cottage

Superficie verde: 26.500 m2

Evolute case in torba

Chi dovesse vedere i cottage di Brekkuskógur, località nel sud-ovest dell’Islanda, non potrebbe essere che d’accordo sul fatto che si inseriscono perfettamente non solo nel selvaggio paesaggio della regione ma anche all’interno della tradizione, molto nordica, delle case di torba. Si tratta di un complesso turistico, inizialmente pensato per 20 unità di cui al momento sono state realizzate due, commissionato allo studio islandese PKdM Arkitektar, vincitore del concorso indetto dal BHM, un’organizzazione di sindacati islandesi che voleva un luogo di relax per gli accademici d’Islanda e le loro famiglie.

Ciò che ha convinto i committenti è stata la fusione, quasi letterale, dei cottage con il paesaggio: praticamente ipogei su tre lati, essi sfruttano alcune soluzioni bioclimatiche, come l’esposizione a sud della zona giorno e la protezione dai venti attraverso cumuli di terra, recuperando al contempo la tradizione islandese delle case di torba.

Su una fondazione in calcestruzzo si innalza una costruzione in legno a telaio realizzato in opera, attorniata dalla terra di riporto degli scavi, e completata da un tetto verde spiovente. Questo, abbassandosi fino a terra, diventa un tutt’uno con il paesaggio e può essere percorso trasformandosi in un punto di vista privilegiato sul paesaggio circostante. Il tutto preservando la vegetazione esistente durante la fase di scavo, reinstallata poi sulle coperture. Il concetto architettonico è basato su una soluzione planimetrica semplice ed efficiente, che limita lo spazio di circolazione, minimizzando i dettagli complessi ma incrementando la qualità dei materiali senza aumentare i costi necessari per la loro manutenzione. Le case sfruttano la geotermia del sottosuolo per riscaldarsi e per scaldare l’acqua, sfruttando una fonte rinnovabile per il loro fabbisogno energetico e per l’acqua della vasca idromassaggio esterna, accessibile direttamente dal bagno.

L’esterno, oltre che dalle grandi coperture verdi, è caratterizzato non tanto dalla verticalità data dai listelli, il cui ritmo si ripete, uguale, nelle finiture interne, ma dal loro trattamento. Questi sono stati infatti “bruciati” superficialmente secondo un’antica tecnica giapponese, per aumentarne la durabilità nel tempo e diminuire la necessità di manutenzione.

33
2 Foto: Rafael Pinho

Il bagno ha accesso diretto alla terrazza e, quindi, alla vasca idromassaggio geotermica.

La casa sfrutta sorgenti presenti nel lotto tramite una sonda geotermica, sia per il riscaldamento (l’acqua bollente arriva direttamente dal sottosuolo) sia per l’ACS.

_3

La zona cucina.

I soffitti sono rivestiti in listelli di legno posati con gli stessi intervalli del rivestimento esterno mentre i pavimenti presentano una finitura in cls lucidato.

_4

L’intero progetto risponde a standard ecologici, al fine di avere una ripercussione quanto più piccola possibile sull’ambiente, decisamente poco antropizzato in quella zona, e ridotte esigenze manutentive.

34 legnoarchitettura_26 progetti
pianta
sezione trasversale 3 Foto: Rafael Pinho Foto: Rafael Pinho 4

_trasmittanza media elementi costruttivi________

pareti esterne, 0,3 W/m2K

solaio contro terra, 0,3 W/m2K

copertura, 0,2 W/m2K

serramenti, 2,0 W/m2K

Le

e

35
fronte sud-ovest fronte ovest fronte nord-est fronte est 5 Foto: Rafael Pinho _5 La zona living. grandi finestre a sud le terrazze esterne mirano a trarre vantaggio dal paesaggio circostante.

Copertura verde, dall’estradosso:

-terreno/torba dei dintorni (90 mm)

-membrana drenante (1 mm)

-doppio manto impermeabilizzante

-compensato (18 mm)

-strato di ventilazione (25 mm)

-controlistelli strato di ventilazione (35x70 mm)

-barriera al vento

-isolamento (200 mm)

-trave portante (220 mm) fissata su profilo a I in acciaio (200 mm)

-barriera al vapore

-strato per impianti (35 mm) riempito con 35 mm di pannelli fonoassorbenti e membrana nera fonoassorbente

-rivestimento in legno (25 mm)

1tubolare di ventilazione (3x32 mm) tra ogni listello

2elemento ligneo (34x195 mm)

3piatto d’acciaio (10x120 mm)

4elemento ligneo (45x195 mm)

5angolare metallico traforato, a supporto della torba (acciaio inox 3 mm)

6membrana bituminosa esterna, fusa sopra l’angolo

7scossalina in alluminio (2 mm)

8elemento ligneo esterno rimovibile

9tenda a rullo

10rivestimento in alluminio nero + isolamento (50 mm)

11cavità per il drenaggio del tetto

Solaio contro terra, dall’estradosso: -pavimento in cls levigato con riscaldamento radiante (130 mm) -isolamento delle fondazioni (100 mm) -ghiaia inorganica, anti-gelo

36 legnoarchitettura_26 progetti
12 5 6 9 3 4 7 10 11 8 7

_le case di torba islandesi________

In un ambiente tanto bello quanto climaticamente ostile come quello islandese si è sempre cercato, fin dall’inizio della sua colonizzazione nel IX sec. d.C., di sfruttare al massimo soluzioni bioclimatiche e materiali naturali. Da qui l’origine delle Turf Houses (case di torba) che, se si vedono invero anche in altri paesi del Nord Europa, è proprio in Islanda che sono diventate tradizione architettonica.

Le case venivano realizzate in legno e pietra –per la struttura portante dell’edificio –mentre la torba aveva funzione di tamponamento e coibentazione di pareti e tetto, fungendo tra l’altro da terreno fertile per la crescita dell’erba che caratterizza le coperture di questi edifici.

La torba doveva essere sostituita ogni 20-70 anni, a seconda della qualità, delle condizioni atmosferiche e dell’abilità degli artigiani ma, essendo presente in grande abbondanza sull’isola, non presentava problemi di approvvigionamento.

Dal punto di vista storico e architettonico, le Turf Houses hanno subito un’evoluzione nel corso dei secoli, pur continuando a utilizzare i medesimi materiali da costruzione, adattandosi di volta in volta al contesto e ai tempi. Dalla casa di forma allungata usata per lavorare e dormire si è passati a gruppi di case collegate tra di loro da un corridoio con una zona centrale ben riscaldata e isolata dall’ingresso. La loro costruzione caratterizzava non solo le abitazioni (dei più poveri così come dei più abbienti) ma anche chiese, scuole e altri edifici. Questo aspetto “sociale” e la loro sopravvivenza fino a oggi, benché la maggior parte di esse non siano più abitate ma adibite a musei o, nel peggiore dei casi, a depositi, ha svolto un ruolo decisivo nella decisione di candidarle a Patrimonio dell’Unesco, come esempio di testimonianza diretta di una lunga tradizione architettonica.

Vista da sud di uno dei due cottage.

37
Foto: Rafael Pinho

Il rivestimento interno dei soffitti, in listelli di legno.

Parete, dall’esterno:

-rivestimento in listelli di legno carbonizzato (60-50x70 mm)

-telo antivento nero -listellatura e controlistellatura (35 mm)

-legno compensato (9 mm) -isolamento in lana di roccia (150 mm)

-telaio portante in legno 145x45 mm interasse 600 mm

-barriera al vapore -vano per passaggio impianti (35 mm)

-cartongesso (2x13 mm)

Per le facciate e il muro di contenimento che affianca la rampa che conduce all’ingresso, gli architetti hanno utilizzato una tecnica che arriva dal Giappone, dove Pálmar Kristmundsson, fondatore dello studio PKdM, lavorò a metà degli anni ‘80. Carbonizzando lo strato superficiale del legno del rivestimento, infatti, si migliora la durata del materiale.

38 legnoarchitettura_26 progetti
Foto: Rafael Pinho

La struttura a telaio dei cottage.

La struttura in legno in fase di tamponamento.

Sulla destra, il muro realizzato per proteggere la corte interna dal vento, che verrà successivamente rivestito con listelli di legno bruciato, come il resto dell’abitazione.

A sinistra, la bruciatura della parte superficiale dei listelli di legno utilizzati per il rivestimento delle pareti esterne.

Nelle immagini sulla destra si vedono i listelli di legno applicati a finitura della facciata e che saranno –eventualmente –rifiniti in lunghezza solo alla fine dei lavori.

39

ANDIBREUSS

Casa di famiglia Grafenegg

Foto: Astrid Bartl

_1

L’angolo sud-est in cui il nuovo ampliamento in legno si congiunge al vecchio edificio in mattoni (parzialmente visibile a destra nella foto).

_2

Il fronte che si apre verso sud dell’ampliamento in legno.

Davanti alle finestre, persiane apribili verso l’alto e verso il basso fungono da schermature solari e garantiscono la privacy. I listelli orizzontali delle persiane permettono la massima vista dall’interno, impediscono l’ingresso della luce solare in estate lasciandola però penetrare in inverno, indipendentemente dal fatto che le persiane siano aperte o chiuse.

_3

Vista d’insieme da sud-ovest; in primo piano, il vecchio edificio in mattoni.

L’inserimento dell’edificio di legno a due piani tiene conto degli alberi e delle siepi esistenti, così da renderlo appena visibile dall’esterno.

42 legnoarchitettura_26 progetti 1 2 Foto: Astrid Bartl Foto: Astrid Bartl

Ubicazione: Grafenegg (A)

Progetto e strutture: ANDIBREUSS, Wien (A)

Direttore dei lavori: Johannes Honeder, Krems (A)

Lavori: 2014-2016

Superficie utile: 325 m2

Superficie verde: 3.000 m2

Un ampliamento in legno, paglia e argilla

Un paesaggio agricolo della Bassa Austria, la linea ferroviaria che collega Vienna a Krems, il comune di Grafenegg sono gli elementi che fanno da sfondo all’ampliamento di una vecchia casa di mattoni degli inizi del secolo scorso. Un ampliamento necessario per far fronte alle nuove esigenze di una grande famiglia e che l’architetto Andreas Breuss ha integrato con l’edificio preesistente sfruttando materiali ecologici quali il legno per la struttura portante e i rivestimenti esterni, la paglia per l’isolamento e l’argilla per gli intonaci.

Il lungo parallelepipedo ligneo della nuova costruzione protegge a nord dal rumore dei treni della vicina ferrovia mentre a sud crea, grazie alla situazione d’angolo con la vecchia costruzione, un cortile aperto ma raccolto.

I materiali naturali utilizzati vengono qui impiegati in un modo nuovo anche dal punto di vista della tecnica di posa. Così, alla lunga costruzione in legno e paglia, è stato dato internamente un importante strato protettivo di argilla, che svolge funzioni come la protezione dal rumore e dal fuoco regolando anche l’umidità interna, e il massetto radiante è anch’esso in argilla. L’edificio, realizzato con un sistema a telaio in legno per le strutture in elevazione e in X-lam per i solai, è stato isolato con balle di paglia ottenuta direttamente da un campo di grano nelle vicinanze con molteplici vantaggi: oltre al riutilizzo di un prodotto altrimenti di scarto dell’agricoltura, si è evitato il consumo di energia per la produzione e il trasporto del materiale coibente e, dal punto di vista della qualità indoor, si ha un isolamento totalmente naturale, traspirante, senza composti chimici e fonoassorbente. All’esterno, un rivestimento in listelli di larice finemente strutturato caratterizza le facciate e le persiane.

Il vecchio edificio è stato risanato e ampliato con la stessa attenzione alla qualità nella scelta dei materiali; argilla e calcare nei vecchi muri in mattone consentono alla costruzione di essere traspirante, mentre il solaio del piano sottotetto è stato isolato con balle di paglia. Un portico e uno spazio vetrato lo collegano alla nuova costruzione; quest’ultimo, oltre a fungere da zona cuscinetto termica e acustica per le camere da letto, ha anche funzione di zona gioco per i bambini e zona di incontro per i diversi abitanti della casa in uno spazio quasi intermedio tra interno ed esterno.

43
Astrid Bartl
3 Foto:

_4

Il grande open space al piano terra, che accoglie cucina e zona living, e la curvilinea balconata al primo piano.

A protezione dalle emissioni elettromagnetiche è stato usato un intonaco di argilla. All’interno si è deciso di rinunciare a Wi-Fi e telefonia mobile, per minimizzare queste emissioni; telefono e internet funzionano via cavo.

44 legnoarchitettura_26 progetti
Foto: Astrid Bartl 4
pianta del piano terra

_trasmittanza media elementi

pareti esterne, U = 0,2 W/m2K solaio contro terra, U = 0,18 W/m2K copertura, U = 0,15 W/m2K serramenti, Uw = 0,7 W/m2K

_prestazioni energetiche________ per riscaldamento, 13,3 kWh/m2a per acqua calda, 12,8 kWh/m2a emissioni CO2 evitate, 2.260 kg/a

Il nuovo edificio, ruotato di 90° rispetto al vecchio, con cui crea un cortile, presenta le aperture più grandi a sud. A nord, una fitta siepe e alberi alti schermano l passaggio della ferrovia, il cui rumore, all’interno, è ben attutito dalle pareti isolate con 35 cm di balle di paglia compressa e dallo spessore dell’intonaco di argilla.

45
costruttivi________
pianta del piano superiore sezione longitudinale sezioni trasversali fronte sud

Dettaglio della vetrata, con il telaio in legno che diventa elemento di arredo e che caratterizza la zona antistante le camere da letto, collocate nel vecchio edificio.

Questa zona funge non solo da cuscinetto termico e acustico per le camere stesse, ma è anche zona gioco per i bambini e luogo d’incontro tra i vari abitanti della casa in uno spazio che sembra quasi aperto.

_struttura________

Dal punto di vista costruttivo, l’ampliamento è stato realizzato con una costruzione a telaio di legno, realizzato in opera, le cui pareti sono costituite da montanti di abete rosso massiccio e un rivestimento in tavole grezze posate in diagonale verso l’esterno. I montanti ad altezza di piano hanno dimensioni di 6x20 cm e sono collegati a montanti alti come l’edificio di 6x14 cm. Nello spazio tra questi è posto l’isolamento in balle di paglia da 35 cm, con intonaco di argilla applicato direttamente sul lato interno. Esternamente, la parete presenta una sorta di facciata ventilata costituita da un doppio strato di listelli di larice non trattato, distanziati in modo da poter essere ampiamente lambiti dall’aria e asciugarsi rapidamente. I solai sono stati realizzati in X-lam poiché, a causa delle dimensioni e della particolare forma dell’apertura del solaio del piano superiore in corrispondenza della doppia altezza della zona giorno, era necessario un pannello staticamente efficace che potesse assorbire le forze in tutte le direzioni.

Tutto il legno utilizzato per la struttura portante dell’ampliamento è di provenienza austriaca.

_5
46 legnoarchitettura_26 progetti
Foto: Astrid Bartl 5

Sezione verticale

1listello anti-torsione

2listello orizzontale di copertura

3distanziatore

4persiana apribile verso l’alto con lamelle diagonali

5rete anti-insetti

6gancio di bloccaggio

7rivestimento in legno protettivo a livello dello zoccolo

8livello terreno

9solaio copertura in X-lam

10isolamento in paglia (35 cm)

Sezione orizzontale

1pilastro d’angolo in legno

2listello orizzontale

3carta antivento

4listelli verticali di facciata

_6

Le persiane apribili orizzontalmente.

_7

I listelli di larice non trattato della facciata sono disposti su due livelli così da dare tridimensionalità al rivestimento, favorire il passaggio dell’aria e una rapida asciugatura.

5controlistello anti torsione

6facciata ventilata

47
verticale di dettaglio sezione orizzontale di dettaglio (angolo) 2 4 5 6 7 8 10 1 2 3 4 5 6 1 3 2 9
sezione
6 7
Astrid Bartl
Foto:
Astrid Bartl
Foto:

La balconata al piano superiore.

Al primo piano, pareti mobili in legno permettono una gestione flessibile dello spazio.

La mancanza di trattamenti enfatizza le qualità sensoriali dei materiali naturali utilizzati, donando un tono caldo e luminoso agli ambienti, oltre che un piacevole profumo naturale.

_materiali________

Oltre al legno utilizzato per la struttura portante e il rivestimento esterno, la casa di Grafenegg per una grande famiglia è caratterizzata da un utilizzo massiccio di materiali naturali e di provenienza locale.

Le balle di paglia sono state preparate, in base alle indicazioni del progettista, dal contadino di un campo di grano della zona, a 5 chilometri di distanza, quindi portate in cantiere. Grazie alle caratteristiche della paglia, si ha un isolamento traspirante, privo di sostanze chimiche e fonoassorbente.

Direttamente sull’isolamento, all’interno, è stato posato un intonaco di argilla di circa 3-4 cm di spessore che adempie non solo a funzioni tecniche di rivestimento (tenuta all’aria, protezione al fuoco e dal rumore) ma anche a funzioni di regolazione del microclima indoor, agendo sull’umidità dell’ambiente e sull’accumulo di calore. Inoltre, la superficie finemente strutturata dell’intonaco migliora l’acustica degli spazi e la diffusione della luce. L’elevata qualità del microclima interno è da imputarsi anche al massetto in argilla con riscaldamento radiante messo a punto dallo stesso architetto. Questo metodo innovativo nell’utilizzo dell’argilla presenta un grande vantaggio ecologico, poiché permette di evitare materiali da costruzione inquinanti che contengono cemento e, in secondo luogo, viene meno l’incollaggio del pavimento in legno, che si rende necessario in caso di massetti continui di cemento con sistema radiante.

La facciata esterna, rivestita in listelli di larice non trattato, è di tipo ventilato con persiane che si aprono verso l’alto e verso il basso garantendo la privacy grazie a listelli orizzontali che rendono possibile, anche con le persiane chiuse, la vista esterna e il passaggio della luce, schermata invece in estate. Ulteriori elementi mobili della facciata possono essere utilizzati come superfici di appoggio o per appendere.

_8
_9
48 legnoarchitettura_26 progetti
8 9 Foto: Astrid Bartl Foto: Astrid Bartl

Una fase della costruzione delle pareti del primo piano e del loro tamponamento esterno con tavole grezze poste a 45°.

Posa del solaio interpiano, in X-lam, mentre si procede parallelamente con il tamponamento delle pareti.

A sinistra, un’immagine del primo piano con le pareti pronte per la coibentazione in paglia.

A destra, l’inserimento delle balle di paglia tra i montanti del telaio in legno.

A sinistra, le pareti completamente riempite di paglia prima della stesura dell’intonaco.

A destra, una fase più avanzata dei lavori, in cui un primo strato di intonaco di argilla è stato posato sulle pareti mentre i pavimenti attendono la posa dell’impianto radiante con massetto in argilla.

49

Residence Roy-Lawrence Sutton (CAN)

Morales architectes
Chevalier

_1

Vista da ovest della casa. Nonostante l’imponente mole, il tetto mimetizza lo chalet nell’ambiente naturale, grazie alle doghe di legno chiaro con cui è rivestito, e sembra galleggiare sopra la parete trasparente.

_2

Il fronte nord, quasi completamente cieco, con la scura finitura in legno che marca la parte abitata della struttura.

Il grande sbalzo della copertura ripara anche l’ingresso del garage a livello interrato.

1

52 legnoarchitettura_26 progetti 2

Ubicazione: Sutton (CAN)

Progetto: Chevalier Morales architectes, Montréal (CAN)

Strutture: Structure Pierre Gosselin, Montréal (CAN)

Appaltatore: Autocostruzione del committente

Fine lavori: inverno 2014

Superficie totale: 226 m2

Fotografie: courtesy of Chevalier Morales architectes

Uno chalet contemporaneo

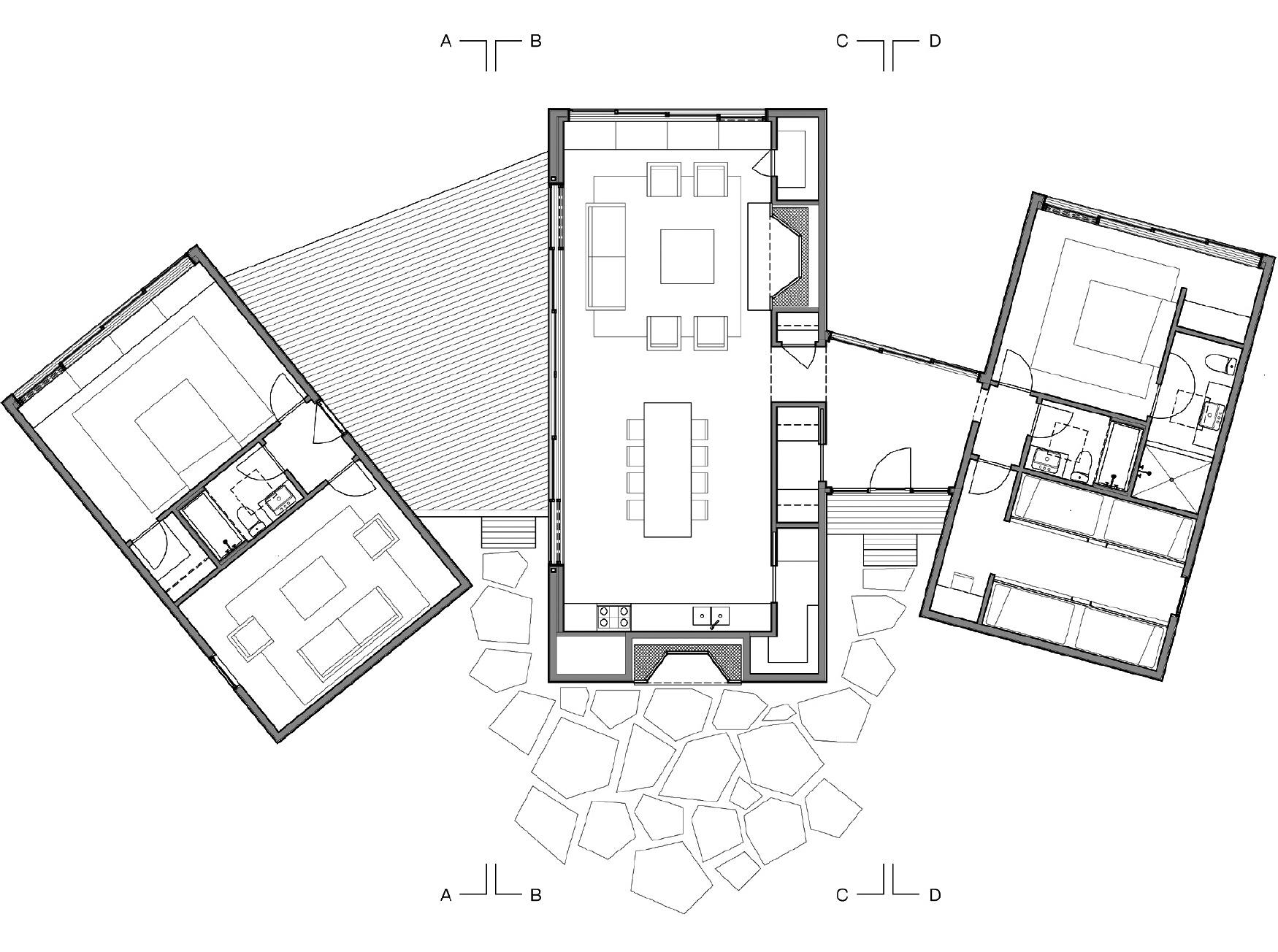
Appena fuori dal villaggio di Sutton, nel Quebec orientale, sorge una casa per il fine settimana che i committenti hanno voluto legare alle loro origini elvetiche, reinterpretando l’immagine iconica dello chalet secondo un linguaggio contemporaneo. In un’area in cui villette alpine ed edifici simili caratterizzano l’ambiente costruito, la composizione di questo residence richiama tutti e tre gli elementi delle baite svizzere, ovvero una base solida, che qui si áncora al suolo roccioso, un telaio di legno, lungo e basso che costituisce lo spazio abitato completamente aperto sul panorama, e un imponente tetto in legno, che con grandi sporti e sbalzi protegge e ripara dalle intemperie invernali e dal sole estivo.

La sovrapposizione di semplici parallelepipedi assume una forte valenza architettonica e il legno utilizzato come rivestimento esterno, oltre che per la struttura, è diventato il fattore chiave che ha convinto gli urbanisti locali a concedere il permesso di costruire questa casa nel contesto naturale del luogo. Le doghe di legno della copertura e delle pareti opache consentono all’edificio di integrarsi nel paesaggio –quasi di mimetizzarsi con esso –e di rispettare la sua vocazione ecologica, preservando la qualità dei dintorni. L’attenzione per l’ambiente si realizza anche nel basso dispendio di energia dell’involucro che, tra le varie soluzioni, combina ventilazione naturale, massa termica e massetti radianti.

All’interno, la disposizione degli spazi è dettata dall’orientamento, dal controllo della luce naturale, dalla gestione dei venti dominanti e dell’irraggiamento solare, dalle vedute panoramiche sul lato sud-ovest. Una lunga parete di legno segue il sentiero che accompagna all’ingresso principale il quale, incassato verso il centro del volume, crea un effetto di compressione, alleggerito dalla lunga vetrata a tutta altezza che corre lungo quasi l’intero fronte ovest. Un cortile interno vetrato consente ai proprietari di godere del contatto con l’habitat esterno, mentre la particolare struttura del tetto permette di realizzare differenti altezze dei soffitti e, di conseguenza, articolare la spazialità degli interni.

53

sezione longitudinale

54 legnoarchitettura_26 progetti
pianta

sezione trasversale

sezione trasversale

La scelta dei materiali, sia costruttivi sia di rivestimento, è stata uno dei punti chiave della progettazione, con un’attenzione particolare alla sostenibilità e all’integrazione con la natura e il paesaggio. Il legno caratterizza l’edificio nei rivestimenti esterni e interni in assicelle chiare ed è impiegato anche nella struttura portante a telaio.

55

La parete vetrata della zona giorno apre alla vista verso la vallata sottostante. Il rivestimento in legno dello sporto del tetto prosegue anche all’interno.

_4

La nicchia vetrata sulla facciata est forma una corte trasparente che offre una vista privilegiata sulla montagna che protegge l’edificio.

_5

Lo spazio aperto interno e le sue destinazioni d’uso sono sottolineate dai diversi materiali che permettono di individuare i differenti ambiti: legno per il salotto e il soggiorno e intonaco bianco per la cucina e per la zona notte. L’unico filo conduttore è il pavimento in cemento lucidato con riscaldamento radiante.

56 legnoarchitettura_26 progetti
_3
3 4 5

_struttura________

L’edificio è realizzato con un sistema a telaio coibentato su un basamento massiccio di calcestruzzo armato che accoglie garage e ripostigli ed è stato costruito dagli stessi proprietari. La copertura è costituita da travature reticolari lignee e si caratterizza per gli sporti, in particolare per lo sbalzo di sei metri che protegge la terrazza esterna a sud-ovest. L’altezza della struttura del tetto consente, inoltre, di differenziare l’altezza dei soffitti interni così da articolare i volumi secondo le differenti funzioni e vedute sull’esterno. Pilastri ad H in acciaio sono stati usati in corrispondenza della facciata continua vetrata.

La bellezza del legno naturale è stata valorizzata eliminando dettagli inutili e ridondanti, la cui mancanza ha invece esaltato l’approccio progettuale minimalista dove il binomio “materialità e geometria” porta a una stretta connessione con l’ambiente esterno.

_6

La vista dal basso evidenzia l’estensione dello sporto della copertura.

_7

Veduta della corte dall’esterno.

57 6 7

Parete, dall’esterno:

-finitura esterna in doghe orizzontali

-membrana di tenuta all’aria

-lastra di compensato (9 mm)

-isolamento rigido (31 mm) tra i montanti in legno

-pannello coibente traspirante (12,7 mm) -finitura interna

1rivestimento esterno in doghe verticali di pino grezzo con trattamento naturale semitrasparente

2capriate di legno prefabbricate

3parete bassa in legno

4controsoffitto in legno con finitura soffitto in legno

5trave in legno

6pilastri in acciaio a doppio T

7finestre anta e ribalta con telaio in alluminio

8lastra di ancoraggio sotto il pilastro a doppio T 9pilastro in c.a.

58 legnoarchitettura_26 progetti
sezione su terrazza esterna 1 2 3 4 5 6 7 8 9 1

I muri in c.a. della parte basamentale impermeabilizzati prima dell’interramento.

La struttura della casa al grezzo con la fitta struttura reticolare della copertura in corrispondenza dello sbalzo. Visibile anche una parete prefabbricata in attesa di essere posta in opera.

Vista da sud dell’ossatura a telaio, a trave e montante, dello chalet. Una volta completata la struttura portante saranno montate le pareti interne e le grandi vetrate.

59

Ballymagarry Road House

Portrush (UK)

2020 Architects
Foto: 2020 Architects

_1

Il fronte rivolto a ovest.

I due fronti più corti, a ovest e a est, sono caratterizzati da forti forme semplici, come quelle degli edifici agricoli della campagna irlandese e che si riconoscono anche in lontananza nella foto d’apertura delle pagine precedenti.

_2_3

Due dettagli ravvicinati del fronte rivolto a ovest del nuovo ampliamento con copertura curva.

Il sito di progetto si trova all’interno di un’Area of Outstanding Natural Beauty –AONB (area di straordinaria bellezza naturale). Tale acronimo descrive zone dell’Inghilterra, del Galles e dell’Irlanda del Nord designate per la conservazione grazie al loro significativo valore paesaggistico.

1
62 legnoarchitettura_26 progetti 2 Foto: 2020 Architects Foto: 2020 Architects

Ubicazione: Portrush (UK)

Progetto: 2020 Architects, Ballymoney Co. Antrim (UK)

Strutture in legno lamellare: Glenfort Timber Engineering Ltd, Dungannon Co. Tyrone (UK)

Appaltatore: Whiterock.construction, Ballymoney Co. Antrim (UK)

Lavori: terminati nel 2016

Superficie: 3.200 ft2 (ca. 297 m2)

Tra vernacolo e modernità

La vecchia officina di un fabbro, disabitata da un secolo, una strada costiera della contea di Antrim, nell’Irlanda del Nord, un’Area of Outstanding Natural Beauty: sono questi gli elementi che fanno da sfondo alla Ballymagarry Road House, la casa dei sogni, diventata realtà, di uno dei fondatori dello studio locale 2020 Architects.

Un edificio che è recupero dell’architettura tradizionale del luogo, fatta di pietra e di tetti spioventi, e volontà di indicare una nuova, sostenibile via a quella stessa architettura, utilizzando legno strutturale per l’ampliamento e paglia per l’isolamento, materiali di provenienza rigorosamente locale.

Il progetto, nato dai vincoli del sito negoziati con il Planning Department della Contea durante una consultazione iniziale, si è focalizzato sulla conservazione della vecchia fucina e sulla ricostruzione delle rovine del cottage originale, che avrebbero creato una barriera visuale per un moderno blocco edilizio destinato alle living, molto vetrato e con un tetto curvo. L’ampliamento verso il mare è stato realizzato con una struttura portante a telaio in legno lamellare, con tre elementi curvi che fungono da travi portanti della copertura e hanno consentito di realizzare internamente due piani e caratterizzarne la forma anche all’esterno. Questa nuova parte, contraddistinta da grandi aperture che permettono alla vista di spaziare sulla campagna e la costa Nord della Contea di Antrim, presenta muri di tamponamento realizzati in opera con struttura in legno riempita con balle di paglia che funge da isolamento.

La Ballymagarry House è considerata uno dei più innovativi edifici dell’Irlanda del Nord, soprattutto per la scelta e l’utilizzo dei materiali.

Vincitrice del RICS Award 2016 nella categoria Best Residential Project, la residenza è stata anche nominata per il UK Structural Timber Award 2016.

63
3
Foto: 2020 Architects

Legenda ambienti:

1cucina

2zona pranzo

3zona living

4ingresso

5camera da letto

6bagno

7ripostiglio

8studiolo

9bagno in camera

10balcone

11lounge

12pianerottolo

13camera da letto padronale

pianta piano terra pianta piano superiore
64 legnoarchitettura_26 progetti
fronte est fronte sud fronte ovest
1 23 4 5 67 8 9 9 10 11 12 13 5 5 Foto: 2020 Architects 4
fronte nord

_4

Il grande open space che ospita la cucina e la zona pranzo. La cucina si trova sotto il soppalco che ospita una zona lounge.

Sullo sfondo, a destra, si intravede il muro della vecchia fucina. Spesso circa mezzo metro, è stato parzialmente ricostruito usando la pietra originale del luogo e sfruttando tecniche artigianali locali, con malta di calce senza cemento. Il muro è un riferimento per la casa: può essere visto da tutte le parti (tranne che da un’unica stanza) e funge da richiamo costante al passato dell’abitazione.

_5

La strada su cui si affaccia la vecchia officina restaurata. Sulla destra, si intravede l’ampliamento in legno, invisibile però dal fronte su strada.

_6

Il grande open space dell’ampliamento a doppia altezza.

65 Foto: 2020 Architects Foto: 2020 Architects 5 6
_struttura a basso impatto

ambientale________

A causa della natura open space dell’ampliamento e della forma del tetto, la struttura lamellare curva è stata fin da subito uno dei componenti più importanti del progetto. Ridurre l’impatto ambientale ha avuto un ruolo fondamentale durante la costruzione, così come era essenziale riuscire a reperire una struttura in legno lamellare che fosse realizzata localmente, anziché una in acciaio o in legno di importazione. La scelta del legno non solo ha ridotto l’impatto ambientale complessivo, ma ha anche dato molto più spazio alla coibentazione e ha permesso di ridurre al minimo i ponti termici. Una caratteristica che è stata valorizzata dal tipo di isolamento scelto, in balle di paglia, anch’esse di provenienza locale, inserite negli spazi tra i montanti delle pareti.

pianta della struttura
66 legnoarchitettura_26 progetti
fronte mare della struttura

_7_8

Due viste del soppalco della zona living con le travi curve a vista.

Tutte le finestre e le porte hanno serramenti in legno che hanno subito un particolare processo: sono state infatti immerse in una sostanza acida che le rende molto stabili, resistenti e durevoli.

Tale procedura è stata fatta essenzialmente per la vicinanza al mare e all’aria salmastra.

67 Foto: 2020 Architects Foto: 2020 Architects 7 8

sezione trasversale di dettaglio

Sopra, la sezione trasversale di dettaglio mette in evidenza i due tipi di struttura: legno lamellare curvo per l’ampliamento e pietra per il vecchio edificio. Il tetto a doppia falda di quest’ultimo e quello curvo dell’ampliamento in legno sono divisi, ma al contempo collegati, da un tetto piano verde, piantumato con le stesse specie di erbe presenti nei prati circostanti.

A fianco, le grandi travi curve sulle quali sono stati inseriti gli appoggi metallici per la struttura secondaria della copertura.

68 legnoarchitettura_26 progetti

A sinistra, la consegna degli elementi portanti in lamellare.

A destra, la posa dei primi montanti in lamellare su cordolo isolato.

Contestualmente al montaggio degli elementi portanti, sono iniziati anche i lavori di tamponamento delle pareti a telaio. Nell’immagine si vede una delle 300 balle di paglia utilizzate per l’isolamento.

Il committente, che è anche l’architetto che ha seguito il progetto, ha scelto di collaborare solo con artigiani locali per la ristrutturazione dell’edificio e la costruzione dell’ampliamento.

L’intera casa, sia nella sua parte nuova che in quella più antica, è stata realizzata con standard vicini a quelli delle case passive.

69
Alcune fasi di montaggio della struttura.

Villa Cedar Udine

DomusGaia

_1

La finestra d’angolo della camera matrimoniale al piano superiore è rivolta verso l’arco alpino. La fotografia mette in evidenza i tre materiali utilizzati all’esterno: le doghe verticali di legno di larice, la pietra e la lamiera color antracite delle cornici in aggetto delle finestre.

_2

Al primo piano la grande porta scorrevole dà accesso alla terrazza che termina con un tetto verde.

_3

A sud e a est sono stati realizzati due portici che consentono, il primo, consente di dilatare il soggiorno verso il giardino, il secondo di ricavare un’ulteriore area fruibile dalla zona pranzo.

72 legnoarchitettura_26 progetti 2 1

Ubicazione: provincia di Udine

Progetto: arch. Andrea Maserati, arch. Caterina Driutti - MD Studio, Udine per DomusGaia

Impresa costruttice: DomusGaia, Feletto Umberto (UD)

Consulenti: ing. Federico Fistarol, Ragogna (UD) - ing. Alessandro Madonna, Fagagna (UD)

Direttore dei lavori: geom. Eleonora Bassi, Udine

Lavori: marzo 2014-gennaio 2015

Superficie netta: 250 m2

Toni di grigio

Con le sue ampie vetrate e i porticati che dilatano gli spazi interni, questa villa nella fascia collinare del Friuli Venezia Giulia sfrutta il contesto verde, ma vicino a un centro urbano, valorizzando il rapporto con l’ambiente esterno. Rapporto enfatizzato dalla pianta che si sviluppa dall’interno verso l’esterno e dall’utilizzo dei materiali. L’edificio rielabora in chiave contemporanea volumi e texture, diventando esso stesso simbolo del paesaggio in cui si inserisce. Pergole e porticati si intersecano con il corpo della casa, alleggerendone l’aspetto rigoroso, e ampie aperture vetrate, che tengono conto dell’esposizione e delle viste, dilatano gli spazi interni, definiti e articolati dalla luce naturale che abbondantemente li illumina.

Fotografie: IKON Povoletto (UD)

Al piano terra, attorno al camino si articolano la zona living e quella pranzo di fronte alla cucina; il soggiorno si apre verso il giardino con una grande vetrata ad angolo, dissolvendo le pareti della massiccia struttura in legno X-lam e sottolineando, ancora una volta, la stretta connessione tra la casa e la natura. Una scala in acciaio color antracite, illuminata zenitalmente da un lucernario, conduce alla zona notte al piano superiore, dove viene riproposto il carattere di apertura della villa sull’esterno mediante una porta scorrevole vetrata che dilata lo spazio su un’ampia terrazza panoramica.

Lo studio cromatico ha portato a privilegiare i tono del grigio articolati nei diversi materiali dei rivestimenti esterni: listelli in legno di larice che con il tempo assumerà la tipica tonalità grigia, pietra scura e lamiera preverniciata antracite e a finitura opaca per le cornici in aggetto delle finestre.

Le soluzioni progettuali adottate hanno permesso la realizzazione di un involucro dalle ottime prestazioni energetiche, assistito da un sistema impiantistico che prevede riscaldamento a pavimento alimentato da una pompa di calore, pannelli fotovoltaici e collettori solari termici. Una ventilazione meccanica controllata garantisce il continuo ricambio dell’aria all’interno degli spazi, aumentando la salubrità degli ambienti e il risparmio energetico grazie al recupero di calore.

73
3
74 legnoarchitettura_26 progetti
sezione AA fronte est pianta del piano terra pianta del primo piano

L’ingresso a nord con il lungo muro in pietra che accompagna il visitatore fino alla porta.

_4
75
fronte ovest
4
fronte sud

Solaio interpiano, dall’intradosso:

-pannello X-lam a vista

-massetto cementizio -sistema pavimento radiante

-massetto alleggerito -pavimentazione

Solaio fondazione, dall’estradosso: -pavimentazione

-massetto alleggerito -sistema pavimento radiante

-massetto cementizio -igloo

-fondazione a piastra in c.a

_struttura________

L’abitazione è stata costruita con pannelli massicci di X-lam; le pareti esterne hanno un isolamento a cappotto in fibra di legno rigida ad alta densità mentre internamente sono isolate con fibra di legno morbida. La finitura del sistema a cappotto alterna intonaco, doghe di larice e pietra. Anche i solai interpiano sono realizzati con pannelli X-lam, completati da un massetto in calcestruzzo alleggerito con perline di polistirolo espanso, riscaldamento radiante, sottofondo alleggerito per la posa dei pavimenti e rivestimento in pietra piasentina fiammata al piano terra, in resina nei bagni al piano terra e listoni di larice in tutto il piano superiore.

La copertura a due falde ha struttura in travi, chiusa inferiormente con pannelli X-lam a vista, coibentazione con fibre di cellulosa, sovrastante intercapedine aerata e manto di tegole piane in laterizio color antracite. I tetti piani hanno isolamento termico in fibre di cellulosa, tavolato di copertura, guaina in PVC e ghiaino di completamento. Al primo piano e al piano terra il soffitto è in pannelli X-lam a vista, esaltando così la matericità del legno, mentre in alcune zone è rivestito in pannelli di fibrogesso intonacato.

76 legnoarchitettura_26 progetti
1 2 3 5 4 6 7

1elemento a L per la connessione parete/solaio

2fibra di legno morbida

3fibra di legno rigida ad alta densità

4nastro a espansione

5proiezione dei tre serramenti aperti

6elemento in legno-cemento

7guaina impermeabilizzante

8lamiera di rivestimento

9elemento in legno sagomato (sez. 70x150 mm)

10banchina in legno lamellare (dim. 140X200 mm)

11listelli di fissaggio rivestimenti interno (sez. 30x60 mm)

12nastratura

13XPS (sez. 30x30 mm) e contorno cassonetto

14X-lam (sez. 95x300 mm)

Copertura a falde, dall’interno:

-pannello X-lam

-freno vapore

-puntoni con fibra di cellulosa interposta (160 mm)

-tavolato (20 mm)

-telo traspirante

-listelli fermaguaina (sez. 50x50 mm)

-correntini posategole (sez. 50x50 mm)

-tegole in cemento

Parete esterna, dall’interno: -finitura in fibrogesso (12,5 mm)

-pannello in X-lam (100 mm)

-isolamento in fibra di legno rigido (140 mm) -telo traspirante di tenuta all’aria e all’acqua -morali orizzontali e verticali per supporto rivestimento

-finitura in doghe di larice

Movimentazione e posa in opera dei pannelli X-lam del solaio interpiano e realizzazione della camera di ventilazione in copertura e posa del manto metallico

77
9 10 11 12 4 13 14 8 12 4 8

Le vetrate scorrevoli della zona living sono completamente apribili. _6

Al livello superiore una porta scorrevole a scomparsa permette l’accesso alla terrazza. _7

La scala che porta alla zona notte è illuminata zenitalmente da un abbaino in copertura.

78 legnoarchitettura_26 progetti
_5
5 6 7

Due immagini della fase di posa dei pannelli X-lam delle pareti. Sullo sfondo, nella foto a destra, il sollevamento di un pilastro in acciaio della struttura dei porticati.

La parete di ingresso all’edificio in fase di realizzazione.

A sinistra, dettaglio di un foro finestra con all’esterno uno degli elementi delle cornici aggettanti che verranno successivamente rivestite in lamiera.

A lato, in alto, la cornice aggettante del foro finestra realizzata in X-lam e, in basso, nastratura della connessione pareteserramento a garanzia della tenuta all’aria dell’involucro.

79
Foto: James Ewing
ARCHITECTUREFIRM James River House Scottsville (USA)

_1

La grande vetrata con porte scorrevoli della zona giorno si apre su un patio, leggermente sopraelevato.

_2

Accanto all’ingresso, una piccola area lastricata diventa un luogo di ritrovo e di relax con caminetto.

_3

I fronti sud sono completamente chiusi; al centro l’area con il caminetto.

82 legnoarchitettura_26 progetti 2 1 Foto: James Ewing
Foto: James Ewing

Ubicazione: Scottsville - Virginia (USA)

Progetto: ARCHITECTUREFIRM, Richmond - Virgina (USA)

Appaltatore: Peter Johnson Builders, Charlottesville - Virgina (USA)

Fine lavori: maggio 2013

Superficie totale: 225,5 m2 (2750 sq.ft.)

Superficie verde: > 17 ettari (44 acri)

C’è una casa nel bosco ...

Su un’altura che digrada sul fiume James, a Scottsville, in Virginia, si trova questa casa progettata per essere il rifugio di tre giovani ragazzi che qui possono crescere liberi, sperimentando dal vivo il concetto di “rispetto per l’ambiente”. Guidando per quasi mezzo miglio nel sito boscoso si arriva allo studio/garage dove lasciare l’auto, e la frenetica vita della città, per incamminarsi fino alla radura in cui sorge l’abitazione. I tre volumi che la compongono, con il leggero sbalzo della struttura rispetto alle fondamenta, sembrano fluttuare sul terreno, disposti a ventaglio con ampie vetrate a nord verso il fiume e il bosco e chiusi a sud attorno a un piccolo spazio lastricato affacciato sul focolare esterno. La loro disposizione, che richiama l’immagine di pietre sparse attorno a un falò, favorisce viste differenti del fiume e dell’ambiente circostante ma anche il raffrescamento naturale attraverso la ventilazione passante che, insieme ai prospetti a sud completamente opachi, contribuisce a mantenere confortevole la casa in estate, stagione in cui è maggiormente utilizzata.

Il cuore dell’edificio, dove si svolge l’attività della famiglia, è costituito dal corpo centrale che ospita la cucina, l’area pranzo e il living, collegato a est, tramite un passaggio vetrato, alla zona notte; questa accoglie la camera dei genitori e quella dei ragazzi, dotata di ben otto posti letti per alloggiare gli amici in visita. Il terzo volume, destinato a eventuali ospiti che possono usufruire di una camera da letto, di un bagno e di un ampio spazio giorno, è posizionato a ovest, indipendente rispetto all’abitazione principale, ma connesso a essa mediante una terrazza pavimentata in legno. Quest’ultima, vista la possibilità di aprire completamente le porte scorrevoli della zona giorno, diventa uno spazio living esterno che consente di godere del paesaggio e dello scorrere delle stagioni visibile nei mutamenti di colore delle folte chiome degli alberi circostanti.

Il legno contraddistingue l’intera casa, a partire dalla struttura portante intelaiata, al rivestimento esterno a doghe dal colore scuro e in quello interno, chiaro per enfatizzare la luce naturale che illumina le stanze, e a gran parte degli arredi interni.

83
3
Foto: James Ewing

_4

Le vetrate scorrevoli della zona giorno consentono di ampliare lo spazio verso la terrazza.

pianta

_struttura sostenibile________

La James River House è una casa in cui i materiali lignei sono stati utilizzati in modo efficiente sia nella struttura che nei rivestimenti. Costruita con un sistema a telaio, la casa è rivestita sia all’interno che all’esterno da doghe di cedro posate orizzontalmente (all’esterno il cedro è bruciato) e usa materiali strutturali e di finitura reperiti il più vicino possibile al sito di progetto, oltre a pitture a basso o nullo contenuto di VOC. Gli avanzi del legno da costruzione sono stati immagazzinati in loco così da poterli adoperare per progetti futuri da parte del proprietario come una casa sull’albero e una rampa per gli skateboards.

La riduzione dell’impatto del fabbricato sul sito è stato uno degli obiettivi della progettazione. La sagoma della casa ha una minima impronta sul terreno, così è stato necessario solo un minimo disboscamento e dunque l’abbattimento di pochissimi alberi; inoltre, non è stato effettuato alcun livellamento del terreno, a eccezione del sentiero di ghiaia che porta alla residenza.

84 legnoarchitettura_26 progetti
85
fronte sud
4
fronte nord Foto: James Ewing

Parete, dall’interno:

-finitura interna

-pannello in gessofibra (ca. 1,25 cm) / doghe orizzontali di cedro (ca. 2 cm)

-isolamento e struttura a telaio (ca. 14 cm)

-lastra di chiusura in compensato (ca. 1,25 cm)

-barriera impermeabile

-rivestimento in doghe orizzontali di cedro bruciato

Tetto, dall’intradosso:

-finitura interna

-pannello in gessofibra (ca. 1,25 cm)

-struttura copertura con travetti in legno a I rinforzati con staffe in acciaio e con isolamento termico interposto

-lastra di chiusura in compensato (ca. 1,25 cm)

-barriera impermeabile

-copertura in metallo

1scossalina metallica sotto la grondaia a protezione dalle infiltrazioni d’acqua, ripiegata sopra la barriera impermeabile

2travi in LVL (h 30 cm) a sostegno della copertura sopra le porte scorrevoli del soggiorno

3scossalina metallica su porte e finestre apribili che gira sopra l’adesivo flessibile e sotto la barriera impermeabile

4porte scorrevoli con telaio in alluminio e schermature integrate

5davanzale metallico con scossalina in presenza di porte e finestre, sovrapposto al rivestimento 6adesivo flessibile posato sopra la barriera impermeabile

7armadietto di legno o panca interna sotto le finestre scorrevoli

8trave in legno LVL (h 30 cm) a sostegno del solaio del piano terra leggermente a sbalzo sulle fondazioni

9travi in LVL (h 30 cm) di copertura

10doppia trave in legno LVL (h 30 cm) del solaio contro terra

_5

Lo spazio della zona living si prolunga sul patio esterno quando le porte vetrate scorrevoli vengono completamente aperte.

_6

L’ingresso vetrato funge anche da collegamento tra i due corpi che costituiscono l’abitazione principale.

86 legnoarchitettura_26 progetti
1 2 3 4 5 6 7 8
87 5 6 9 10 10
Foto: James Ewing Foto: James Ewing

La zona pranzo e il soggiorno con le grandi aperture verso il fiume; a sinistra si intravede l’accesso al corpo destinato agli ospiti.

_8

La camera dei bambini è dotata di ben otto posti letto per accogliere gli amici in visita.

_9

Dal corridoio di ingresso la vista spazia sul fiume e, attraverso il corpo centrale, sul patio esterno. Il rivestimento in legno chiaro degli interni contrasta con il cedro bruciato delle doghe della finitura esterna.

_7
88 legnoarchitettura_26 progetti 8
Foto: James Ewing Foto: James Ewing
7
89 9 Foto: James Ewing

Brock Commons

A giugno 2017, quando i primi studenti potranno entrare nelle loro stanze, il Brock Commons Phase 1 Building sarà il più alto edificio al mondo realizzato con struttura ibrida in legno. Costruito dalla British Columbia University di Vancouver, lo studentato fornirà alloggio a 404 persone tra studenti, ricercatori e professori. Un edificio innovativo e dimostrativo, ma che utilizza soluzioni disponibili e collaudate, e che, grazie al monitoraggio che verrà effettuato, consentirà di rilevare dati e informazioni utili per la ricerca e la futura definizione di standard prestazionali e di sicurezza per edifici alti in legno.

techné

Un ibrido di 18 piani

Record in altezza per lo studentato Brock Commons a Vancouver

Committente

University of British Columbia, Vancouver (CAN)

Progetto

Acton Ostry Architects Inc., Vancouver (CAN)

Consulente

Architekten Hermann Kaufmann ZT GmbH, Schwarzach (A)

Strutture Fast+Epp, Vancouver (CAN) Brock Commons, University of British Columbia

Negli ultimi 10 anni nel mondo sono stati fabbricati diversi edifici con struttura massiva in legno; la maggior parte di questi sono situati in Europa e si contraddistinguono per la loro altezza, compresa tra gli 8 e i 14 piani, e la destinazione d’uso, che unisce la residenza, il commercio e i servizi al pubblico. Da qualche tempo l’interesse per il costruire verso l’alto con il legno sta prendendo piede anche nell’area nord americana, dove gli sviluppi tecnologici relativi alle strutture portanti in legno sono accompagnati dal riconoscimento dei vantaggi ambientali di questo materiale come fonte rinnovabile che ingloba al suo interno carbonio. Nel 2013 il Natural Resources Canada in collaborazione con il Canadian Wood Council ha indetto un bando di gara per la realizzazione di due edifici dimostrativi in legno di grande altezza, il cui obiettivo era mettere assieme i progressi scientifici in materia e l’esperienza tecnica, e mostrare come soluzioni strutturali basate sul legno potessero essere utilizzate nei grattacieli con grandi benefici per l’habitat.

Brock Commons Building Phase 1, un residence della British Columbia University, nasce da questa iniziativa, un progetto pionieristico di grattacielo con struttura ibrida in calcestruzzo gettato in opera e legno (X-lam, lamellare, Parallam®). Un progetto innovativo ma sviluppato con l’intento di impiegare soluzioni collaudate comunemente disponibili, compatibile con le normative e in conformità con la Canadian Standards Association o altri standard riconosciuti.

L’edificio, una residenza per studenti gestita dal dipartimento Student Housing and Hospitality Services della British Columbia University, ha una disposizione interna similare ad altri studentati realizzati precedentemente ed è frutto di una serie di workshop che hanno definito il modello finale, sviluppato da un team di progettazione com-

92 legnoarchitettura_26 techné Credits: naturally:wood

posto da professionisti specializzati in varie discipline che ha lavorato in maniera integrata. Per realizzare il Brock Commons, è stato appositamente modificato il regolamento edilizio, il British Columbia Building Code 2012, che non prevedeva fabbricati così alti con struttura in legno, con una specifica norma, l’UBC Tall Wood Building Regulation del settembre 2015, che comprende requisiti tecnici di sicurezza applicabili solo a questo edificio. Per poter rendere effettivo il cambiamento, la norma modificata e il progetto sono stati sottoposti a una doppia revisione da parte di due gruppi di esperti esterni sui temi delle prestazioni strutturali e della sicurezza.

La decisione di adottare una struttura ibrida è stata guidata dai requisiti di progettazione e dai termini ravvicinati per l’approvazione del progetto. La complessità di fornire un necessario supporto per le forze laterali associate a una struttura alta di legno hanno reso impraticabile cercare soluzioni in legno massiccio per i nuclei dell’edificio a causa della quantità di tempo che sarebbe stata necessaria per creare progetti innovativi e omologazioni sicure per loro. Inoltre, al piano terra, l'uso di una struttura in calcestruzzo ha consentito grandi luci negli spazi pubblici, oltre a garantire spazi non infiammabili per ospitare i grandi impianti meccanici ed elettrici.

Le fondazioni, il piano terra e i cuori dell’edificio sono in calcestruzzo armato e gettato in opera. La lastra del secondo piano in cemento agisce come una lastra di trasferimento tra la struttura di legno e quella in cemento e

permette alla griglia strutturale del piano terra di essere indipendente dalla griglia strutturale in legno. Il sistema strutturale dal 3° piano al 18° è costituito da colonne in lamellare e da pannelli di solaio in X-lam, con colonne in Parallam che sostituiscono il lamellare nelle zone ad alto carico tra il secondo e il quinto piano.

Il legno, la struttura e le connessioni

Per la realizzazione di questo edificio di 18 piani, tra tutti i prodotti in legno ingegnerizzato presenti sul mercato canadese sono stati scelti il CLT (Cross Laminated Timber), conosciuto anche come X-lam, il lamellare e il Parallel Strand Lumber, meglio conosciuto con il nome commerciale di Parallam®. L’X-lam è il materiale con cui sono stati assemblati tutti i pannelli dei solai, dal secondo piano fino al diciottesimo, precisamente 464 pannelli di diversa lunghezza, per i quali sono stati impiegati 1.973 m3 di legno, pari a 954 tonnellate. Il la-

mellare è stato usato per costruire tutti i pilastri compresi tra il secondo e il diciottesimo piano, per un totale di 1.298 colonne ovvero 260 m3 di materiale, quantità molto inferiore ai 2.650 m3 di calcestruzzo che si sarebbero adoperati se l’edificio fosse stato fabbricato in cls. Il Parallam®, prodotto molto resistente, è stato utilizzato in alcune colonne poste in zone ad alto carico tra il secondo e il quinto piano.

La costruzione del Brock Commons con struttura ibrida, e non totalmente in cemento, ha evitato complessivamente 500 tonnellate di emissioni di CO2

Le fondazioni dell’edificio sono composte da plinti rinforzati di 2,8x2,8x0,7 m racchiuse all’interno di un muro perimetrale dello spessore di 250 mm che è posto su un cordolo di 600x300 mm. I due corpi scala in cls armato poggiano su fondazioni a zattera dello spessore di 1,5 m, dotate di quattro tiranti di ancoraggio. Al di sopra della platea, pilastri in c.a. disposti secondo un

Sopra, due immagini di cantiere della costruzione del Brock Commons. A sinistra sono ancora ben visibili i due corpi scala/ascensore e dei servizi e il piano terra realizzati in c.a.

Nella fotografia a destra, mentre viene realizzata la struttura degli ultimi piani, in quelli sottostanti sono già montati i moduli della facciata.

93
Credits: naturally:wood Credits: naturally:wood

griglia di 5x5 m sostengono la lastra di trasferimento dei carichi in calcestruzzo armato su cui poggia l’intera ossatura di legno dell’edificio. La piattaforma in c.a. è stata preferita poiché essa, vista la vocazione pubblica del piano terra, garantiva grandi luci libere, superfici resistenti agli impatti e spazi considerati ininfiammabili per ospitare gli impianti. Le fondazioni risultano dunque più piccole rispetto a un edificio di eguali dimensioni, ma realizzato in calcestruzzo armato, in virtù della leggerezza della struttura superiore in legno, la quale, tuttavia, avendo massa inferiore, ha una minore inerzia e una minore resistenza al ribaltamento, caratteristiche, invece, chiave per un’area sismica qual è la zona costiera di Vancouver. A tale problema si è ovviato progettando una struttura che trasferisce tutte le forze laterali prima ai nuclei in calcestruzzo armato e poi alle fondazioni a zattera.

Ai piani superiori, la struttura è formata da colonne in legno e da pannelli massicci in Xlam a cinque strati incrociati per uno spessore di 169 mm e una campata di 2,85 m. I pannelli sono uniti tra loro mediante elementi di compensato di dimensioni 140x25 mm, inchiodati o avvitati, per creare un solaio a diaframma. Ogni solaio è realizzato con pannelli di quattro dimensioni standard (due lunghi 6 metri e collocati accanto ai corpi scala/servizi verso il prospetto, due di 10 metri sempre vicino ai nuclei centrali ma spostati verso il centro, diciannove pannelli di 8 metri e sei di 12 m), orientati lungo l’asse longitudinale dell’edificio. Nonostante la standardizzazione delle lunghezze dei pannelli, la maggior parte di questi sono unici a causa delle aperture pre-tagliate necessarie per il passaggio degli impianti meccanici, elettrici e idraulici. Le colonne in lamellare e Parallam® sono poste secondo una griglia di 4x2,85 m e hanno sezione di 265x265 mm dal secondo al nono piano e di 265x215 mm dal decimo al diciottesimo livello; le colonne in Parallam® sono state posizionate al centro delle piattaforme dove si concentrano i carichi strutturali maggiori. Se da una parte le lastre dei solai, che si comportano come un diaframma, hanno permesso di eliminare le travi e quindi di ridurre la quantità di legno da mettere in opera, dall’altra è stato difficoltoso assicurare la fornitura costante del materiale al fine di rispettare il cronoprogramma dei lavori, in quanto la produzione di CLT locale viene effettuata in un’unica fabbrica; tuttavia, scartata l’importazione dei pannelli dall’Europa a causa del costo proibitivo dei trasporti, la corretta progettazione delle lavo-

razioni ha permesso l’approvvigionamento costante e, quindi, il rispetto delle scadenze. L’edificio si completa con un tetto organizzato su un piano metallico coibentato superiormente e chiuso da una tradizionale membrana per tetti SBS (stirene-butadiene -stirene) posto su travi in acciaio. Si è scelto questo sistema in metallo per ridurre qualsiasi problema dovuto a infiltrazioni d’acqua, come ad esempio la marcescenza del legno o muffe, e per attenuare il rischio di danni strutturali se una perdita non fosse individuata per tempo.

Relativamente alle connessioni tra le varie componenti portanti, la struttura ibrida del Brock Commons ne prevede di differenti tipologie: tra la struttura in legno e la piattaforma in c.a, tra i diversi elementi della struttura in legno, tra la struttura massiccia in legno e la copertura. La progettazione di questi collegamenti ha dovuto tener conto di molteplici fattori quali: l’effettivo trasferimento dei carichi verticali, degli sforzi di taglio dei pannelli e dei carichi laterali ai nuclei centrali in c.a., la minimizzazione della trasmissione delle vibrazioni attraverso tutto l’edificio, gli assestamenti dell’edificio e i movimenti tra gli elementi di legno e di calcestruzzo, la riduzione fisica delle parti in legno dovuta all’asciugatura del legno (riduzione dell’umidità), le tolleranze di fabbricazione e l’installazione dei prodotti in legno. La connessione tra le colonne in legno e il solaio di trasferimento carichi in c.a. è effettuata mediante un elemento strutturale in acciaio, con sezione cava e dotato di piastre quadrate sopra e sotto, ancorato sul posto grazie a bulloni e portato a livello con l’ausilio di guarnizioni, rondelle e dadi. Il componente cilindrico cavo è posto in cima e alla base di ogni colonna ed è incorporato in essa attraverso barre filettate fissate con resina epossidica. L’elemento inferiore ha un diametro più piccolo che ne consente l’inserimento nella sezione superiore, dando luogo così al collegamento verticale tra colonna e colonna. Nello spazio creato dall’elemento cilindrico si appoggiano i solai in X-lam, avvitati ai piatti di acciaio da quattro barre filettate. Questo tipo di raccordo permette ai carichi verticali di essere trasferiti direttamente da colonna a colonna attraverso le sole colonne, sostenendo contemporaneamente anche le forze verticali e di taglio dei pannelli in CLT. I pannelli si collegano anche ai corpi centrali in c.a., appoggiandosi su lunghe traversine angolari a L (203x152x13 mm) saldate a piatti, aggregati al momento del getto entro le pareti del corpo in cls. È questo un legame che

94 legnoarchitettura_26 techné
metalliche
in legno strutturale componenti in c.a. gettato in opera componenti in c.a. rinforzato gettato in opera per le fondazioni Credits: Courtesy of Acton Ostry Architects Inc. and CadMakers Inc.
componenti
componenti

Vista aerea dello studentato quasi terminato all’esterno.

95
pianta piano tipo (Courtesy of Acton Ostry Architects Inc.) pianta del piano terra (Courtesy of Acton Ostry Architects Inc.)
Credits: naturally:wood
Schema delle diverse dimensioni dei pannelli in X-lam utilizzati per il solaio (Courtesy of Acton Ostry Architects Inc. and CadMakers Inc.)

Lo schema mostra sinteticamente le connessioni utilizzate tra gli elementi che compongono la struttura:

1connessione colonnacopertura metallica

2connessione colonnapannello in CLT

3connessione colonnasolaio in c.a.

4nastri forati

5travi a L

(Courtesy of Acton Ostry Architects Inc., CadMakers Inc. and UBC Research Team)

A fianco, due fotografie del modello 1:1 costruito per verificare la funzionalità delle connessioni. A sinistra la sezione strutturale cava terminata con piatto in acciaio si connette tramite bulloni alla fondazione e, a destra, l’appoggio del pannello del solaio in CLT sulla piastra e la connessione mediante barre filettate.

Crediti per i disegni: Courtesy of Acton Ostry Architects Inc., CadMakers Inc. and UBC Research Team

dettaglio pilastri-solaio dettaglio attacco a terra 1 2 3 4 5 6 2 1 7 3 4 5 6 2 8 5 4 1 2 3 4 5
96 legnoarchitettura_26 techné
Credits: naturally:wood Credits: naturally:wood Credits: naturally:wood Credits: naturally:wood

consente di portare al punto di connessione i carichi verticali e di taglio, come anche le forze degli assestamenti differenziali che si originano tra le parti in legno e quelle in calcestruzzo armato. Sul lato superiore del solaio per trasferire i carichi laterali al nucleo centrale in c.a. sono state utilizzate piastre forate in acciaio (larghe 100 mm), avvitate con bulloni al CLT e imbullonate a linguette in acciaio saldate, a loro volta, a piatti incorporati alle parti in calcestruzzo. La lunghezza, lo spessore e il passo delle piastre variano a seconda della loro posizione all’interno della struttura poiché devono soddisfare carichi differenti. L’ultima connessione della struttura portante riguarda l’aggancio del tetto metallico alle colonne in CLT; in questo caso le travi metalliche poggiano su strutture in metallo che sono avvitate a sezioni strutturali cave tonde (127x127x6,4 mm), fissate a loro volta alle colonne con barre incollate durante la prefabbricazione.

L’ossatura portante così realizzata è chiusa al piano terra da una facciata continua vetrata, protetta all’esterno da una tettoia in CLT a tre strati con copertura metallica aggraffata, e dal piano superiore fino al tetto da un sistema di pannelli prefabbricati sostenuti da una trave angolare a L (127x127x13 mm), montata a ogni piano, che corre lungo tutto il perimetro del solaio. Questi elementi, che prevedono anche pannelli speciali d’angolo, sono lunghi 8 m e alti 2,81 m, corrispondenti a due campate strutturali e un piano di altezza, e sono composti da una struttura in montanti e traverse di acciaio zincato (152 mm), isolata con lana di vetro in formato battentato. Verso l’esterno, il pacchetto del sistema presenta una lastra con guaina (13 mm), una membrana permeabile al vapore, una coibentazione rigida (50 mm) con agganci a taglio termico per il rivestimento esterno, listelli verticali (8 mm) e la finitura esterna (8 mm), consistente in lastre di fibra di legno laminata con trattamento antipioggia. All’interno, il modulo di facciata è chiuso da una barriera al vapore, da

Realizzazione del massetto e completamento delle contropareti interne.

Dettaglio attacco a terra:

1colonna in lamellare 2piatto in acciaio

(265x265x25 mm)

3dadi di livello

4barre filettate

(16x140 mm) incollate nella colonna con colla epossidica

5sezione strutturale cava

6ancoraggio con bulloni, dadi e rondelle

Dettaglio pilastri-solaio:

1piatto in acciaio (265x265x29 mm o 265x215x29 mm)

2pannello CLT

3barre filettate

4colonna in lamellare

5fori uscita colla espossidica in eccesso

6barre filettate incollate nella colonna con colla epossidica

7bulloni

8sezione cava

Dettaglio solaio-parete in c.a. 1parete in c.a.

2piatto in acciaio incorporato in c.a.

3connessione con bulloni

4nastro forato in acciaio inchiodato al solaio in CLT e ancorato alla parete in c.a.

5massetto in cls

6pannello in CLT

7trave a L saldata a piastre in acciaio incorporate nella parete in c.a.

solaio-parete in c.a. 1 7 3 4 5 6 2 97
dettaglio I pilastri con le piastre di connessione, le barre filettate e la sezione cava centrale che permette la giunzione con i pannelli del solaio.
Credits: naturally:wood Credits: naturally:wood

In alto da sinistra: installazione delle colonne in lamellare (la sezione cava inferiore con diametro più piccolo si inserisce nella sezione cava della colonna inferiore dal diametro maggiore); una fase della realizzazione della struttura di uno dei piani; movimentazione di un pannello di solaio in CLT (sagomato per adattarsi alle colonne e forato in corrispondenza del passaggio impianti); un piano del Brock Commons con la struttura lignea e le varie connessioni.

A destra, le tre assonometrie mostrano, dall’alto:

- il dettaglio del collegamento tra i pannelli in CLT del solaio con le colonne e i connettori in acciaio; - il parziale incapsulamento della struttura in fase di cantiere per adempiere alle norme antincendio previste anche durante la costruzione - la struttura completamente rivestita con le lastre in fibrogesso a formare le partizioni interne, i massetti di pavimentazione e i controsoffitti dove scorrono le tubazioni (Courtesy of Acton Ostry Architects Inc.).

un pannello di gesso fibra e dalla finitura, applicate direttamente in cantiere. Le finestre, invece, sono preinstallate.

Il fondamento logico della scelta di questo sistema di facciata è permettere a ogni piano di essere chiuso appena completata la struttura portante in legno, fornendo quindi una immediata protezione dalle intemperie e riducendo il potenziale danneggiamento degli elementi portanti, oltre alla facilità di installazione, visto il peso leggero del modulo, alle prestazioni energetiche e statiche e ai costi contenuti.

La protezione dal fuoco

Per raggiungere i requisiti antincendio richiesti dalla normativa della British Columbia relativi a edifici di questa altezza sono state previste molte misure e soluzioni, passive e attive, che hanno interessato anche la fase di cantiere del Brock Commons. Durante le fasi di costruzione è stato stabilito che, oltre a rispettare tutte le precauzioni antincendio, meno di quattro piani alla volta potessero risultare non protetti dal fuoco e che i manicotti nei corpi scala fossero sempre funzionanti per evitare lo sviluppo di focolai. Le strategie passive di protezione al fuoco hanno inoltre incluso: l’ininfiammabilità del piano terra, dei corpi scala/ascensore e dei passaggi impianti; il completo incapsulamento della struttura lignea, realizzato con molteplici strati di gesso fibra e con massetti, per garantire una resistenza al fuoco di due ore; la stessa soluzione permette, inoltre, due ore di resistenza tra i vari piani e per tutti i cavedi verticali e tra le unità abitative e il corridoio (la normativa richiede un’ora). L’unico spazio in cui la struttura lignea è esposta e non incapsulata è la lounge al diciottesimo piano, nella quale la sicurezza è garantita dalla totale copertura del sistema a pioggia. In caso di incendio è comunque possibile intervenire con: sistemi di allarme che inviano la richiesta di soccorso ai Vigili del Fuoco, presenti con una stazione nel campus dell’Università; sprinkler automatici nelle camere con testine completamente incassate nella struttura al fine di limitare al massimo i danneggiamenti; un sistema di manicotti collegati alla rete idrica principale

98 legnoarchitettura_26 techné
Foto: Pollux Chung Foto: Pollux Chung

Sotto, spaccato prospettico dell’edificio.

Il piano terra ha struttura in calcestruzzo, mentre la pensilina è in X-lam. I piani superiori hanno struttura portante in legno incapsulata tranne la lounge al diciottesimo piano (Courtesy of Acton Ostry Architects Inc. & University of British Columbia).

e supportati da una serbatoio d’acqua che fornisce un’autonomia di 20 minuti; estintori a ogni piano; sprinkler a secco sulla pensilina esterna protetti da dispositivi anticongelamento; un sistema a cortina d’acqua per la facciata vetrata continua al piano terra nelle aree in prossimità dell’adiacente parcheggio multipiano; monitoraggio da remoto del sistema da parte dei vigili del fuoco; giunti di dilatazione sui nuclei in cls, dove gli sprinkler sono installati.

Impianti

I sistemi impiantistici dell’edificio sono relativamente convenzionali e tipici per fabbricati di tali dimensioni. Come strategia progettuale generale si è cercato di accorpare gli impianti in spazi centralizzati e di distribuire i percorsi verticali delle tubazioni e dei cavidotti in modo tale da ridurre il più possibile le forature dei pannelli CLT; in orizzontale essi corrono all’intradosso dei solai, chiusi da un controsoffitto, così da facilitarne anche l’ispezionabilità. In fase di progettazione ogni dettaglio è stato accuratamente programmato, così da facilitare in fabbrica il taglio dei pannelli in corrispondenza degli attraversamenti, e verificato con la progettazione virtuale 3D e con la successiva realizzazione di un mock-up in scala 1:1. Il disegno di tutti i servizi è inoltre estremamente flessibile, per rispondere agli assestamenti e alle variazioni della struttura dovute ai movimenti degli elementi in legno che si stabilizzeranno a ritmi diversi rispetto ai due nuclei in calcestruzzo armato.

Per quanto riguarda i sistemi di climatizzazione, il Brock Commons è collegato al teleriscaldamento del campus, il quale fornisce il calore per riscaldare gli spazi (HVAC), coadiuvato da battiscopa radianti elettrici nelle unità abitative, e l’acqua calda sanitaria, la cui distribuzione avviene mediante tubazioni in polietilene reticolato, più resistenti, flessibili e sicure rispetto al rame, poiché richiedono meno raccordi e collegamenti. I sistemi HVAC forniscono aria fresca e sottraggono aria esausta attraverso condotti distribuiti ad albero con diramazioni situate tra le unità abitative. Nell’impianto idraulico sanitario si sono preferiti collegamenti in acciaio inox intrecciato, più adatti agli assestamenti della struttura; per mitigare l’impatto di eventuali allagamenti sono stati aggiunti scarichi a pavimento all’interno di ogni unità, così come un pannello di rubinetti di intercettazione in caso di rotture.

Anche l’impianto elettrico, la rete di comunicazione, la rete dati, la rilevazione e segnalazione d’incendio, l’illuminazione e l’alimentazione di emergenza, prevedono una distribuzione ad albero fino agli armadi e ai quadri installati in ogni piano per fornire in orizzontale le unità. È prevista un’alimentazione di emergenza che grazie a

99
Pollux Chung Foto: courtesy of University of British Columbia
Foto:

Dettaglio pannello di facciata:

1finestra

2davanzale in legno dipinto

3battiscopa elettrico radiante

4bordo (2x16 mm) in legno dipinto installato dopo la posa del pannello di facciata

5angolare continuo in acciaio per la connessione dei pannelli

6pannello di lana minerale tra il solaio in CLT e il pannello di facciata

un generatore esterno serve gli ascensori, l’illuminazione, l’allarme e i dispositivi antincendio e i sistemi di sicurezza.

La progettazione virtuale

Un modello virtuale in 3D dettagliato e accurato, che comprende tutti i componenti dell’involucro e i sistemi e i servizi impiantistici dell’edificio, è stato sviluppato e costantemente aggiornato da un team specializzato nella modellazione di progetti e costruzioni virtuali (VDC - Virtual Design and Construction) che hanno supportato progettisti, costruttori e fornitori in ogni fase realizzativa. Il modello è stato infatti utilizzato per visualizzare come si sarebbe sviluppato l’edificio a seconda di differenti opzioni progettuali, permettendo al team di valutare le diverse soluzioni e affrettando il processo decisionale; questo ha permesso di coordinare le varie attività e procedimenti, mantenendo la memoria delle variazioni, di verificare incongruenze tra elementi prefabbricati e percorsi per gli impianti e di redigere un computo metrico certo e affidabile. Oltre a ciò, tale complessa modellazione virtuale ha consentito di gestire con chiarezza i vari lavori creando un cronoprogramma delle lavorazione, di anticipare problemi che potenzialmente avrebbero potuto ritardare la costruzione dell’edificio, di realizzare i disegni da inviare alla fabbricazione dei pannelli e di ridurre le incertezze e le allocazioni a rischio in fase di gara d’appalto.

Monitoraggio edificio

Sopra, un‘immagine della posa dei pannelli di facciata.

Questo tipo di struttura ibrida rappresenta una novità per il mondo degli edifici alti in legno e le decisioni progettuali e le necessarie variazioni alle norme del codice si sono basate sui pochi elementi a disposizione e relativi alle prestazioni effettive di tale tipologia costruttiva. Pertanto, vista la natura dimostrativa di Brock Commons, a fabbricato ultimato sarà installato un sistema di monitoraggio che raccoglierà i dati sulle performance dei prodotti in legno ingegnerizzati utilizzati e sul sistema strutturale ibrido applicato in un edificio di tale altezza. L’obiettivo di questa operazione è che le

100 legnoarchitettura_26 techné Credits: naturally:wood Credits: naturally:wood
1 3 4 5 6 2
Credits: Courtesy of University of British Columbia Credits: Courtesy of University of British Columbia

informazioni ricavate dal Brock Commons e le ricerche che saranno condotte contribuiscano alla creazione di standard prestazionali e di sicurezza per futuri edifici alti in legno.

In particolare, saranno monitorati tre aspetti specifici delle prestazioni del fabbricato, ovvero il contenuto di umidità dei pannelli CLT, l’assestamento verticale della struttura e le vibrazioni orizzontali dovute al vento. Per verificare in termini quantitativi l’umidità, all’interno dei pannelli in X-lam sono stati collocati dei sensori, i quali misureranno la variazione del contenuto di umidità lungo l’intero ciclo di vita del fabbricato; il rilevamento è comunque iniziato già durante la fabbricazione e l’installazione. Gli assestamenti verticali, tra cui l’accorciamento elastico, il restringimento dovuto all’umidità relativa e lo scorrimento saranno monitorati da sensori posti lungo gli elementi strutturali chiave su tutti i piani, controllando il movimento differenziale tra i singoli componenti e la composizione verticale totale dell’edificio. Infine, accelerometri situati in alto, in basso e nel punto centrale del fabbricato misureranno le vibrazioni orizzontali e laterali, le accelerazioni e gli altri spostamenti.

A sinistra, schema delle soluzioni passive di resistenza al fuoco: tratteggiate in rosso le parti che resistono all’incendio per 2 ore, in blu quelle progettate per 1 ora. In azzurro la riserva d’acqua che consente ai Vigili del Fuoco un’autonomia di 20 minuti. A destra, sezione trasversale dell’edificio con la posizione dei sensori per il monitoraggio della stabilità in senso verticale (azzurro), delle vibrazioni orizzontali (giallo) e del contenuto di umidità (rosso).

In alto da sinistra: montaggio dei pannelli di facciata al primo piano con struttura in legno; i pannelli in CLT sollevati mediante gru vengono collocati a seconda della loro dimensione; controllo dell’inserimento delle barre filettate e delle sezioni cave all’interno dei fori predisposti nei pannelli del solaio; vista dall’interno degli elementi di facciata con la trave tramite cui si agganciano al solaio e la struttura zincata che deve essere completata in opera.

101
Credits: naturally:wood Credits: KK Law
Credits: naturally:wood Credits: GHL Consultants Ltd. Credits: Acton Ostry Architects Inc
9-12 Febbraio February 2017 Segreteria Organizzativa: PIEMMETI S.P.A. Tel. +39 049.8753730 • Fax +39 049.8756113 info@piemmetispa.com Info: PIEMMETI S.P.A. Tel. +39 049.8753730 Fax +39 049.8756113 info@piemmetispa.com www.legnoeedilizia.com Ve Ver Fiera di ounds ona Fairgr er Verona Ver echnical Partner T ecnico Partner T Tecnico of w Inter del legno nell’edilizia Mostra inter ood in building xhibition on the use national e nazionale sull’impiego Edilizia etti e coper p T Tetti avimenti Pavimenti Infissi www Te 39+ el. P.A. inf Fax 39 049.87561 + ax

legno per il vino strutture

Inaugurata il 1° giugno 2016, La Cité du Vin celebra la tradizione millenaria della coltivazione della vite e della produzione del vino attraverso i secoli e in tutte le culture e le civiltà. L’edificio, costruito nella zona nord della città di Bordeaux sulla riva della Garonna accanto alla chiusa del Bassins à Flot, prende la forma dal vorticare del vino all’interno di un bicchiere, dai vortici del fiume e dal tronco nodoso della vite. Costruito prevalentemente in calcestruzzo armato, il fabbricato presenta una struttura a costole in legno lamellare lasciate a vista che accompagnano il visitatore lungo il percorso della mostra stabile fino al belvedere della torre panoramica alta 55 m. Il rivestimento esterno, in alluminio e vetro, riflette il fluire dell’acqua del fiume e il mutare delle condizioni del cielo, portando il movimento degli spazi interni sulla superficie esterna.

La Cité du Vin a Bordeaux

Sotto, un’immagine di La Cité du Vin dal fiume Garonna.

Nella pagina accanto, due immagini della torre da Rue Achard.

Un progetto iniziato nel 2009 con i primi studi di fattibilità e conclusosi a giugno dell’anno scorso, quando La Cité du Vin è stata inaugurata. È questo il percorso dello spazio culturale di circa 13.350 m2 disposti su 10 piani dedicati al vino e alla sua produzione realizzato a Bordeaux. Il progetto è frutto di un concorso di architettura i cui vincitori, tra i 114 iscritti alla gara, sono stati lo studio parigino XTU Architects e gli esperti inglesi di design museale Casson Mann Limited in associazione con lo studio canadese di ingegneria SNC Lavallin. Il bando di gara imponeva, infatti, come condizione di partecipazione, la formazione di una partnership architetto-designer al fine di garantire un progetto coeso sia dal punto di vista strutturale/architettonico che di design degli interni. Aree espositive e di incontro, spazi multisensoriali, stanze di lettura e di assaggio, un negozio e tre ristoranti, di cui uno panoramico, sono ospitati all’interno di questo fabbricato che si ispira liberamente al movimento dei liquidi, in particolare a quello del vino fatto ruotare in un bicchiere per individuarne i profumi e a quello dei vortici d’acqua che si formano nel fiume antistante e ai tronchi nodosi e ritorti delle viti.

Tutto nell’edificio, all’interno e all’esterno, evoca l’anima del vino, secondo una “rotondità senza soluzione di continuità” che lega la struttura al contesto circostante generando una sensazione di movimento perpetuo. I pannelli in vetro serigrafato e in alluminio perforato dell’involucro mutano a seconda della luce del sole o delle condizioni del cielo, dialogando con il fiume nel quale si specchiano continuamente e riflettendo una luce dorata che richiama la pietra chiara delle facciate dei palazzi di Bordeaux: un aspetto esteriore in continua evoluzione, come il vino. Gli archi in legno lamellare, che si innalzano, ondeggiano e si stringono, connotano il percorso fisso della mostra permanente, determinando – ancora una volta – la sensazione di movimento e richiamando i telai in legno delle barche e le assi delle botti in cui il vino viene fatto invecchiare.

Due sono gli accessi a La Cité du Vin, deliberatamente contrapposti in pianta per creare un impressione di movimento, di flusso e di scorrere tra l’interno e l’esterno, il primo che si affaccia sulla città, il secondo verso il fiume. Tutti i percorsi interni gravitano attorno al corpo scale: a partire dal piano terra piuttosto buio, che ricorda

104 legnoarchitettura_26 strutture strutture
Foto: Julien Lanoo

Ubicazione: Bordeaux (F)

Committente: Città di Bordeaux (F)

Proprietario: Fondation de La Cité du Vin, Bordeaux (F)

Architetti incaricati: Anouk Legendre, Nicolas Desmazières, XTU Architects, Parigi (F)

Capi progetto: Mathias Lukacs, Dominique Zentelin

On Site Team: Delphine Isart, Claire Leroux, Thibault Le Poncin, Joan Tarragon

una cantina o il terreno dove affondano le radice delle viti, passando attraverso la salita verso l’alto, incoraggiata dall’illuminazione naturale che penetra nell’edificio grazie alla corte interna, per concludersi con l’arrivo al Belvedere della torre alta 55 m.

_Un involucro sostenibile in legno___

A gennaio 2014 sono iniziati i lavori di costruzione della struttura, realizzando le fondamenta costituite da 300 pali con diametro compreso tra e 50 e 120 cm, fissati alla roccia dura del terreno con tiranti fino a una profondità di 30 m.

L’edificio è realizzato in prevalenza in calcestruzzo armato, avvolto da costole di legno lamellare che vanno a definire l’ossatura della forma finale della costruzione. In totale, i lavori del telaio toroidale (la parte più bassa dell’edificio) hanno richiesto la posa di 574 archi, ricavati da 1200 m3 di abete nordico e di abete Douglas di provenienza francese, mentre sono 128 le costole di legno lamellare che si attorcigliano attorno alla torre, accompagnandola fino ai 55 m di altezza. Questi elementi, lasciati sempre a vista all’interno, sono pezzi unici e hanno richiesto un accurato lavoro progettuale, architettonico e strutturale, che ha consentito una regolazione precisa al millimetro di tutte le curve del fabbricato.

All’esterno La Cité du Vin è rivestita da 2.500 pannelli di alluminio laccato, iridescente e perforato e da 900 lastre di vetro serigrafato che rendono mutevole l’aspetto della sua forma a seconda della luce e delle ore del giorno. Frutto di una progettazione bioclimatica, che ha reso possibile l’ottimizzazione della ventilazione all’interno dell’edificio, tali elementi creano una facciata ventilata che, da prese d’aria poste in basso per sfruttare i venti prevalenti, consentono di espellere l’aria calda in alto, in corrispondenza della corte interna e dei punti vendita, generando una corrente d’aria che da sola fornisce 5 °C aggiuntivi in raffrescamento durante l’estate, limitando quindi l’utilizzo dell’aria condizionata. Inserendosi nell’eco distretto del Bassins à Flot, l’edificio ha un impatto ambientale controllato. Il 70% dell’energia necessaria a La Cité du Vin viene coperto da fonti locali e pulite; il legno utilizzato proviene da foreste gestite in modo sostenibile e i materiali interni sono stati scelti per garantire una buona qualità dell’aria interna; le acque piovane sono recuperate, usate per irrigare il verde esterno e per pulire l’area attorno all’edificio; è stata prevista un’area di compostaggio per il trattamento dei rifiuti provenienti dai catering e dei rifiuti organici in genere; il sito è raggiungibile a piedi o con mezzi di trasporto che emettono pochissime, o nulle, quantità di CO2 come il tram e le biciclette.

Research Team: Joan Tarragon, Gaëlle Le Borgne, Stefania

Maccagnan, Cristina Sanchez

Scenografia interni: Casson Mann, Londra (UK)

Ingegneria: SNC Lavalin, Merignac (F)

Ambiente: Le Sommer Environnement, Parigi (F)

Costi: 81 Milioni di €; 55 Milioni di € (architettura e scenografia d’interni)

105
Foto: P Tourneboeuf Foto: P Tourneboeuf

La Cité du Vin a Bordeaux_piante e sezioni

planimetria del piano terra

Legenda planimetrie

1ingresso/uscita principale

2ingresso personale

3ingresso secondario

4ingresso/uscita veicoli

5negozi

6auditorium

7 locale tecnico

8mostra permanente

9forum

pianta del secondo piano

A destra, una vista aerea di La Cité du Vin, da nord/nord-ovest.

Nella pagina accanto, le sezioni verticali evidenziano la grande varietà spaziale dell’edificio, determinata soprattutto dalle forme tondeggianti.

106 legnoarchitettura_26 strutture
1 2 3 4 5 6 7 9 6 8 Foto: Julien Lanoo

La Cité du Vin a Bordeaux_piante e sezioni

14sala d’aspetto 15hall

16bagni

17magazzino

18manutenzione

19stanza per i gruppi

20cucina

21wine bar

22ufficio

23sala lettura

24zona di attesa

25zona di attesa/mostra

Legenda sezioni

1accoglienza visitatori

2atrio

3sala modulare

4locale tecnico

5mostra permanente

6patio

7carico e scarico

8guardaroba

9forum

10uffici

11sala per il personale

12tapas bar 13belvedere

107
sezione sulla torre
1 23 4 4 5 6 7 8 25 22 2120 5 19 15 16
sezione sul corpo toroide
9 10 10 11 12 13 4 2 4 2324 15 15 5 18 17 5

La Cité du Vin a Bordeaux_struttura

Assonometrie del complesso: a sinistra la struttura degli archi e delle costole in legno lamellare che danno forma all’edificio; al centro il rivestimento dell’elemento toroide; nella vista tridimensionale del fabbricato vengono sottolineate le curvature del volume più basso.

Schema di una parte del telaio ligneo della porzione espositiva di La Cité du Vin; ogni arco ha una dimensione specifica.

In questa immagine e in quelle della pagina a fianco, i pilastri in legno lamellare diventano travi di copertura, senza soluzione di continuità; ogni elemento curvo è unico.

108 legnoarchitettura_26 strutture
Foto: Julien Lanoo

La Cité du Vin a Bordeaux_struttura

La Cité du Vin è diventata il primo progetto culturale in Francia a raggiungere un così alto finanziamento da parte di privati, il 19%, mentre il restante 81% proviene da risorse pubbliche, suddiviso come segue: 38% la città di Bordeaux, 15% l’Unione Europea attraverso il FESR, 10% la Bordeaux Metropolitan Authority, 7% il Bordeaux Wines Council (CIVB), 7% la Regione dell’Aquitania, 2% il governo francese, 1% il dipartimento della Gironda e 1% la Camera di Commercio e dell’Industria di Bordeaux.

Uno spaccato assonometrico mostra gli interni di La Cité du Vin.

I costi della Cité du Vin sono stati confrontati con quelli di sei altre realizzazioni di pari destinazione d’uso e si è visto che: il divario medio tra i costi provvisori e definitivi in edifici simili è del 158%, l’investimento medio finale è di 200 milioni di euro e il costo medio di investimento per metro quadrato è di 13.787 €; in La Cité du Vin la differenza tra i costi provvisori e definitivi è solo del 28,6%, l’investimento medio finale è di 81 milioni e il costo medio di investimento per metro quadrato è solo 6074 €.

109
Foto: P Tourneboeuf
Foto: P Tourneboeuf Foto: Julien Lanoo

La Cité du Vin a Bordeaux_dettagli

Pacchetto esterno elemento toroide, dall’esterno

-pannello in alluminio composito con finitura iridescente (4 mm)

-profilo curvo di alluminio patinato

-elemento di fissaggio dei pannelli in acciaio inossidabile e ventilazione di facciata

-doppio strato membrana impermeabile

-isolamento termico

-barriera al vapore

-pannello curvo di compensato

-isolamento acustico

-membrana tessile per isolamento acustico

-arcarecci a supporto del compensato

-arco curvato e piegato di lamellare di abete rosso

1fuga tra i pannelli

2piatta in acciaio per fissaggio dell’elemento di supporto dei pannelli

1tenuta all’aria

2piastra di bloccaggio in acciaio zincato della striscia di tenuta

3alette di ancoraggio in acciaio per raccordo della fascia utilizzata nel nucleo del lamellare

4cerniera in metallo utilizzato nel nucleo e imbullonata

5griglia di presa dell’aria fresca

6griglia del pavimento in acciaio inossidabile

Solaio interpiano secondo solaio, dall’estradosso

-rivestimento del pavimento flottante in gomma

-piedini del pavimento flottante

-solaio in cls

-isolamento termico

-floccaggio della coibentazione

110 legnoarchitettura_26 strutture
1
2 1
2 3
5
4
6
interno esterno interno esterno

La Cité du Vin a Bordeaux_dettagli

Solaio interpiano uffici torre, dall’estradosso

-pavimento in legno su supporti regolabili

-impermeabilizzazione

-isolamento termico rigido

-solaio in cls

-trave in legno a supporto del solaio

Raccordo tra rivestimento esterno e facciata continua del patio interno

1striscia impermeabilizzante

2gronda perimetrale in acciaio zincato

3alette di ancoraggio in acciaio per raccordo della fascia utilizzata nel nucleo del lamellare

4cornice di protezione in acciaio verniciato

5fascetta di legno duro per la stabilità strutturale dei pilastri del patio

6attacco piastra della parete continua

7manicotto di acciaio inox e tondino filettato di acciaio

8pilastro curvato in lamellare di abete Douglas

9elemento discendente in PVC per la raccolta dell’ acqua piovana dai pannelli compositi curvato

10estrazione naturale dei fumi /aria esausta

11parete continua di chiusura verticale e rivestimento in alluminio

1ringhiera di metallo

2arco curvato e piegato di lamellare di abete

3vetro monolitico piano serigrafato

4piastra modellata di alluminio verniciato

5staffa di supporto in alluminio di altezza variabile

6cuscinetto a pressione rivestito in alluminio

7profilo in alluminio rivestito

8sistema di tenuta

9alette di ancoraggio in acciaio per raccordo della fascia utilizzata nel nucleo del lamellare e saldate sulla piastra

10cerniera in metallo inserita nel centro della trave

11arco curvato e piegato di lamellare di abete rosso

111
6 6
5 4 3 9 2 8 1 7 4 5 11 10
3 1 2 10 11 9 7 8 interno esterno esterno esterno interno

Alpine Barn

Ofis Arhitekti

House in Linden Street

Stephen Phillips Architects

Osservatorio

Susana Herrera, FACTORIA

Nasu Tepee

Hiroshi Nakamura & NAP

27 next Foto: Tomaz Gregoric Foto: Tim Griffith Photography Foto: courtesy of FACTORIA

Turn static files into dynamic content formats.

Create a flipbook
Issuu converts static files into: digital portfolios, online yearbooks, online catalogs, digital photo albums and more. Sign up and create your flipbook.