Le scuole ETFAS in Sardegna

Page 1


Prefazione

Massimo Faiferri

Dalle scuole agli spazi innovativi dell’apprendimento

Modelli per il progetto contemporaneo

Figini e Pollini a Porto Conte I progetti per il nido d’infanzia, l’asilo e la scuola elementare

Per un atlante minimo delle scuole ETFAS

Progetti, comunità e contesti quotidiani

TOTTUBELLA. Fernando Clemente, Oreste Noto

TIRIA. Sabatino Sarnella

CRASTU. Fernando Clemente, Oreste Noto CAMPANEDDA. Vico Mossa

VILLASSUNTA. Pietro Crescini

MARISTELLA. Gian Carlo Nuti

SA SEGADA. Bruno Virdis

TANCA FARRÀ. Luciano Deplano

MONTE CADELANU. Marco Zanuso, Pietro Crescini

PARDU NOU. Giuseppe Casciu

La Casa e la Scuola

Riflessioni sulla XII triennale di Milano

Ricerca e didattica. Borgate comuni

Pratiche artistiche e progetto di architettura

Esercizi di visione

Samanta Bartocci

Questo Quaderno raccoglie parte degli esiti di una ricerca in corso sul tema dei modelli di architetture scolastiche, in particolare sui progetti concepiti per la Sardegna tra gli anni ’50 e i primi anni ’60 del secolo scorso, nell’ambito della riforma agraria che ha dato seguito alla realizzazione di centri di nuova fondazione a opera dell’Ente per la Trasformazione Fondiaria e Agraria in Sardegna (ETFAS). La vicenda delle scuole di diverso ordine e grado – progettate e in gran parte costruite sul territorio regionale – è stata affrontata attraverso una ricerca d’archivio svolta principalmente nel fondo storico dell’ente, oggi attivo come Agenzia Laore Sardegna. Dalle indagini archivistiche è emerso un ampio quadro di autori locali e di provenienza nazionale che hanno operato sul tema del borgo di nuova fondazione secondo interpretazioni progettuali personali, sviluppate a partire programmi e dimensionamenti comuni. A fianco ai più noti interventi di Fernando Clemente, emergono importanti contributi, tra i quali quelli di Marco Zanuso, Pietro Crescini, Vico Mossa e Bruno Virdis, così come un apparato di progetti esecutivi del nido d’infanzia, dell’asilo e della scuola elementare per il borgo non realizzato di Porto Conte di Luigi Figini e Gino Pollini. La ricerca, nel rintracciare esempi di architetture ancora attuali per la didattica contemporanea, si concentra sul dialogo aperto tra la scuola e la dimensione urbana, collocandosi nel quadro delle attività dell’unità dell’Università degli Studi di Sassari* nel progetto PRIN 2017 PROSA – PROTOTIPI DI SCUOLE DA ABITARE. Sulla scorta delle ricerche condotte dal gruppo Ecourbanlab, a partire dalla prima edizione dalla International Scientific School ILS Innovative Learning Spaces del 2016, l’indagine qui presentata mira all’accrescimento della conoscenza sui modelli spaziali di scuole in Sardegna, in gran parte inediti, ponendosi al contempo come strumento per possibili interventi progettuali di recupero e trasformazione.

*Con l’Università degli Studi di Cagliari sotto la responsabilità del Prof. Massimo Faiferri.

DALLE SCUOLE AGLI SPAZI INNOVATIVI

DELL’APPRENDIMENTO

Modelli per il progetto contemporaneo

>Interrogarsi sul rapporto tra contemporaneo e Moderno rispetto al tema delle architetture per la scuola apre una prospettiva a ritroso che, oltre al riconoscimento di progetti d’autore1, porta l’attenzione su altre esperienze più periferiche – apparentemente – lontane dal dibattito culturale nazionale. Queste costituiscono esempi di qualità per lo spazio “ordinario” dedicato all’educazione, in una regione come la Sardegna che nei primi anni ’50 del secolo scorso era a tutti gli effetti classificata come “backward area”, in condizioni di strutturale arretratezza.

L’Ente per la Trasformazione Fondiaria, Agraria per la Sardegna (ETFAS)2 nasce nell’ambito della riforma fondiaria nazionale3 con la finalità di attuare un rinnovamento dell’attività agricola nella regione, realizzando opere di bonifica, infrastrutture primarie, case coloniche, borgate e centri di servizio per gli agricoltori assegnatari. L’ETFAS predispose un Piano Generale dei Servizi su scala regionale che prevedeva la realizzazione complessiva di sette borghi residenziali, trentatré centri di servizio, cinquanta scuole rurali isolate e quindici cappelle, opere non tutte andate a realizzazione secondo i progetti elaborati. Le borgate e i centri di servizio furono impostati sulla base di un piano generale che nella dotazione completa includeva il circolo sociale, la scuola elementare, la scuola materna (o pluriclasse), lo spaccio, l’ufficio postale, la delegazione comunale e la caserma4. I progetti per le case coloniche furono redatti dai tecnici dell’ente, mentre gli edifici destinati alle attività collettive furono affidati su incarico a progettisti esterni, ai quali fu lasciata «un’ampia e piena libertà di espressione tecnica ed artistica»5. Attraverso le carte d’archivio dei progetti è stato possibile ripercorrere l’attività progettuale che a partire dal 1951 ha prodotto per circa un decennio spazi per l’educazione su tutto il territorio insulare, qui riconosciuti come modelli di un patrimonio architettonico “invisibile”, attualmente in stato di abbandono nella quasi totalità dei casi, ma ancora rispondente alle contemporanee esigenze didattiche6

FIGINI E POLLINI A PORTO CONTE

I progetti per il nido d’infanzia, l’asilo e la scuola elementare

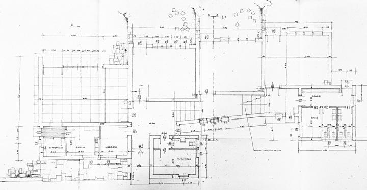
>Il piano per il borgo di Porto Conte è il primo caso restituito dalla ricerca d’archivio condotta presso il fondo ETFAS, dov’è depositato il fascicolo del progetto non realizzato che gli architetti Luigi Figini e Gino Pollini iniziano a definire nel maggio del 1951 su incarico dell’UNRRA CASAS per dare soluzione alle necessità abitative dei profughi giuliani da insediare nell’isola, nell’ambito del già citato piano di ripopolamento della Nurra avviato nel 1949. Antecedente rispetto alle realizzazioni dell’ente, costituisce un esempio eminente di progettazione architettonica e urbanistica. Per la costruzione del nuovo centro, l’ETFAS si fece carico di assegnare ai profughi i terreni ceduti dall’Ente Sardo di Colonizzazione e di provvedere alla realizzazione dei soli edifici pubblici1. Il piano per il borgo, sviluppato nella sua fase finale tra il 1952 e il 1953, presenta piante, prospetti, sezioni e dettagli costruttivi degli edifici collettivi – nido d’infanzia, asilo, scuola elementare, chiesa, complesso commerciale e caserma dei carabinieri – restituendo una concezione unitaria che cerca il dialogo con un contesto incontaminato, anche nello studio delle tipologie abitative2. I riferimenti alle architetture minori e spontanee richiamano il tema della ruralistica affrontato nella VI Triennale di Architettura (Pagano & Daniel, 1936), idealmente ripreso in Sardegna nelle successive ricerche e reportage fotografici svolti dall’architetto Vico Mossa (Mossa, 1957), sul quale si tornerà più avanti3 Il resoconto fotografico è il mezzo privilegiato attraverso il quale Figini (in maniera particolare)4 e Pollini investigano i contesti nei quali si opera, bagaglio conoscitivo fondamentale anche a Porto Corte, come testimonia l’album di immagini dei paesaggi locali visitati durante il sopralluogo. Il territorio è così descritto nella relazione illustrativa di progetto: «La zona – posta al termine della strada statale di Alghero, a pochi chilometri da Fertilia e dal suo aeroporto – appariva deserta; il suolo aspro, con rocce qua affioranti tra la vegetazione spontanea mediterranea (lentischio e palma nana).

L’asilo

Il progetto per l’asilo di Porto Conte richiama immediatamente il confronto con l’asilo Olivetti di Ivrea, realizzato dagli stessi Figini e Pollini tra il 1939 e il 1942 (Savi, 1980). Impostato su corpo di fabbrica compatto, è affiancato da un volume di piccole dimensioni destinato all’alloggio delle insegnanti, posto in collegamento con il resto della struttura attraverso un passaggio minimo che conduce all’edificio di forma trapezoidale destinato alle attività educative. Nella fascia attestata sul prospetto a sud ovest è collocata in posizione decentrata una bussola d’ingresso ai cui lati sono posizionate due cellule con dei lavabi centrali (indicati da geometrie esagonali) prospicienti lo spazio distributivo. Questo corre longitudinalmente per incontrare in testata l’aula all’aperto, dotata di copertura e di tagli sulle pareti a inquadrare il paesaggio. Sul prospetto a nord-est si trovano in sequenza la cucina, il refettorio e le due sezioni, con la possibilità di configurare un’unica sala attraverso l’apertura di pannelli scorrevoli in corrispondenza della parete divisoria centrale.

Le due sezioni dispongono di aree appartate ricavate entro delle nicchie dotate di pareti attrezzate e contenitori, nel prolungamento della fascia che ospita i guardaroba in corrispondenza degli ingressi sul corridoio. Il paesaggio è posto in diretta relazione con l’edificio attraverso le grandi aperture vetrate delle aule, che in sezione rivelano un secondo ordine di tagli alti ricavati dallo scarto tra le due falde asimmetriche di copertura. Le variazioni volumetriche generate dalle inclinazioni dei tetti mostrano infatti nei disegni di dettaglio delle finestre a nastro di «controventilazione» che, con vari sistemi di frangisole e tipologie di infissi a vasistas e a bilico orizzontale, permettono di modulare l’ingresso della luce naturale e garantire il ricircolo dell’aria negli ambienti.

Sezione trasversale dell’asilo di Porto Conte con la parete mobile a scorrere tra le due aule, Figini e Pollini, 1952

Pianta dell’asilo di Porto Conte, Figini e Pollini, 1952

01.TOTTUBELLA

FERNANDO CLEMENTE

ORESTE NOTO

Scuola materna ed elementare

1953-56

Sviluppata dall’evoluzione del progetto per il centro abitato di Uccari, redatto nel 1951 da Fernando Clemente e Oreste Noto nell’ambito del Piano Territoriale della Nurra1, la borgata di Tottubella2 colloca al centro dell’impianto urbanistico i servizi collettivi (scuola materna ed elementare, ufficio postale, spaccio, chiesa, circolo sociale, uffici tecnici) dal quale originano i tre tracciati radiali che accolgono le abitazioni e i poderi degli assegnatari. Fondamentali nel principio insediativo, basato sullo schema della città-giardino, sono le relazioni tra le parti, concepite per «suscitare nei frequentatori un senso di cordialità e di affiatamento in modo che ne risulti agevolata l’educazione e l’intesa di gruppo»3. L’edificio della scuola, con tre aule destinate alle elementari e due per la scuola materna4 e accessi distinti dall’esterno, è impostato su un impianto libero in cui una sala centrale con il camino individua il cuore pubblico per le riunioni civiche. Da qui, un’ampia rampa curva ad assecondare l’orografia del sito, conduce alle aule della scuola elementare, ognuna delle quali gode di uno spazio all’aperto dedicato; sul lato est, si trovano invece le due sezioni per la scuola materna, impostate sul medesimo schema delle precedenti.5

Planimetria della borgata di Tottubella, F. Clemente e O. Noto, 1955

La scuola con le aule all’aperto (in basso) e il circolo sociale (in alto), localizzati nel fulcro dell’impianto urbano della borgata di Tottubella, 1955

Note presso Cagliari. LAORE. ETFAS. Fald. 14.

1. Il Piano prevedeva la realizzazione di insediamenti più densi rispetto alla tipologia diffusa nell’agro, come nel progetto redatto per conto dell’UNRRACASAS del villaggio di Uccari nel 1951. Cfr. Clemente, 1964 e Casu, 2001a.

2. Situata nell’Azienda di Rumanedda, nel Centro di Colonizzazione (d’ora in poi abbreviato CdC) di Sassari è stata la prima ad essere realizzata dall’ETFAS.

3. Dalla relazione generale del progetto esecutivo della borgata, depositata

4. Nel progetto di ampliamento approvato nel settembre 1964 sono aggiunte due ulteriori aule e un blocco di servizi.

5. Nelle intenzioni dei progettisti gli spazi esterni sono riconosciuti come essenziali per l’attività didattica: «anche le aule hanno diretto accesso dall’esterno; le lezioni si potranno svolgere all’aperto con vantaggio della salute degli insegnanti e degli allievi». Dalla relazione tecnica, depositata presso Cagliari. LAORE. ETFAS. Fald. 14

Pianta dell’asilo, Maristella, G. Nuti, 1957
Prospetto dell’asilo sul fronte delle aule, G. Nuti, 1957
Pianta e prospetto della scuola elementare, Maristella, G. Nuti, 1957
Scorcio delle aule della scuola elementare. Foto di Elio Poddighe

#TOTTUBELLA

LABORATORIO DI PROGETTAZIONE

“BORGATE COMUNI”.

ESERCIZI DI PERCEZIONE

A.A.2022-2023

“Lo spazio sopravvissuto”

Studenti

M. Columbano

N. Corgiolu

G. Virdis

Ipotizzare attraverso il progetto una possibile riconnessione dei luoghi, una nuova trama di relazioni sociali, recuperando gli spazi “sopravissuti” della borgata dei quali si è persa

memoria. Spazi ancora vivi, ma separati gli uni dagli altri, vengono ricollocati in un unico sistema coeso per intercettare potenziali forze attrattive capaci di riattivare la borgata.

Le scuole ETFAS in Saredegna

“Dall’abbandono all’esistenza”

Studenti

M.Bechere

B. Çalis

S. Cogoi

A. Piredda

Lo sviluppo di una linea del tempo per raccontare il ciclo di vita della borgata. A partire da suggestioni percettive raccolte nell’immersione nel territorio, il progetto, sovrapponendo

e didattica. Borgate Comuni

sui tracciati esistenti un nuovo suolo di percorsi, pavimentazioni e spazi di sosta, mira ad attribuire un nuovo significato ai luoghi della collettività.

Turn static files into dynamic content formats.

Create a flipbook
Issuu converts static files into: digital portfolios, online yearbooks, online catalogs, digital photo albums and more. Sign up and create your flipbook.