
T E M A 6


2 0 2 5





E N M A D E R A




E N T R E P I S O S


Mgtr.Arq. Luis Fernando Ruano Paz


C O N S T R U C C Ó N






Tema 6:
Entrepisos
Requisitos Entrega No. 5
Asignación Maqueta 3 septiembre


2 0 2 5
E N M A D E R A
E N T R E P I S O S
Mgtr.Arq. Luis Fernando Ruano Paz
C O N S T R U C C Ó N
Tema 6:
Entrepisos
Requisitos Entrega No. 5
Asignación Maqueta 3 septiembre
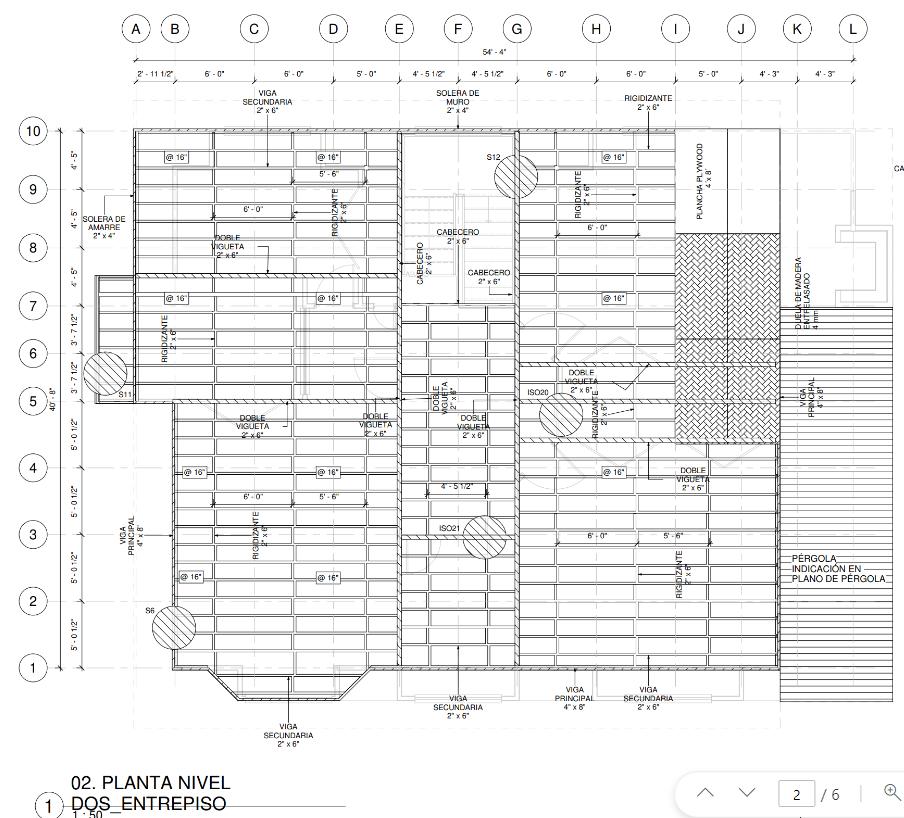
Tamaño de dintel para un nivel Luz en pies
4" x 4" Hasta 4' 4" x 6" De 4' a 6' 4" x 8" De 6' a 8'
Para dos niveles utilizar 1 de 4” x 12” o 2 de 2” x 12”
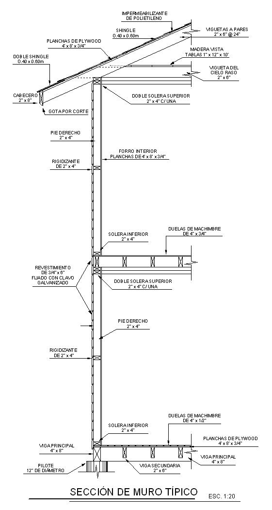
Barrera
Ubicación plancha estructural
DOBLE SOLERA SUPERIOR DEL PRIMER NIVEL
VIGA PRINCIPAL EN ENTREPISO
VIGA SECUNDARIA EN ENTREPISO O VIGUETA A PARES EN CUBIERTA
G R A C I A S