legnoarchitettura 46

Page 1

46
progetti Stefan Hitthaler Arabella Rocca studio raro MCM Arch dsA_architettura Jimmi Pianezzola ZPZ Partners Bettiol.Architecture Lab LCA architetti EdicomEdizioni Trimestrale anno XIII n° 46 ottobre 2022 Euro 15,00 Registrazione Trib. Gorizia n. 4 del 23.07.2010 Poste italiane S.p.A. Spedizione in a.p. D.L. 353/2003 (conv. in L. 27/02/2004 n.46) art. 1, comma 1 NE/UD ISSN 2039-0858
legnoarchitettura

prezzo di copertina 15,00 euro abbonamento 4 numeri

Italia: 50,00 euro – Estero: 100,00 euro

Gli abbonamenti possono iniziare, salvo diversa indicazione, dal primo numero raggiungibile in qualsiasi periodo dell’anno

Foto: ©Harald Wisthaler È vietata la riproduzione, anche parziale, di articoli, disegni e foto se non espressamente autorizzata dall’editore

46 legnoarchitettura rivista trimestrale anno XIII – n. 46, ottobre 2022 ISSN 2039-0858 Numero
iscrizione
ROC: 8147 direttore responsabile Ferdinando Gottard redazione Lara Bassi editore EdicomEdizioni, Monfalcone (GO) redazione e amministrazione via 1° Maggio 117 34074 Monfalcone – Gorizia tel. 0481.484488, fax 0481.485721 www.legnoarchitettura.com progetto grafico Lara Bassi stampa
selezionate
di
al
Grafiche Manzanesi, Manzano (UD) Stampato interamente su carta con alto contenuto di fibre riciclate
copertina
Bad Ramwald
Foto: V.I.CO. SRL Foto: Paolo Federico Cellini Foto: ©Gustav Willeit 24 34 74 legnoarchitettura progetti Bad Ramwald Stefan Hitthaler 04 Condominio Ulivi Arabella Rocca 14 Casa ND studio raro 24 Villa unifamiliare MCM Arch 34 Country House dsA_architettura 44
Foto: © Simone Bossi Foto: © Oliver Jaist Foto: ©Harald Wisthaler 04 84 54 14 Odissea Rurale Jimmi Pianezzola 54 Toddlers Bilingual School ZPZ Partners 64 Grand Hotel Cervino Bettiol.Architecture Lab 74 Chalet Blanc LCA architetti 84
Foto: Alberto Sinigaglia, Jimmi Pianezzola

Bad Ramwald

San Lorenzo di Sebato

Stefan Hitthaler
Foto: © Harald Wisthaler

Vista da est. La cornice metallica di colore scuro sottolinea la forma architipica della casa. La facciata vetrata è arretrata rispetto al fronte dando vita a una loggia sulla quale si affaccia un terrazzino.

progetti legnoarchitettura_46 6
Foto: © dsA_architettura Foto: © Harald Wisthaler

Ubicazione: Ramwald, San Lorenzo di Sebato (BZ)

Progetto architettonico: arch. Stefan

Hitthaler – Stefan Hitthaler Architektur, Brunico (BZ)

Direttore dei lavori: arch. Stefan

Hitthaler

Impianti: Franz Lahner, San Lorenzo di Sebato (BZ); Elektro Mader, Brunico (BZ)

Appaltatore struttura legno: Moser

Holzbau GmbH, Monguelfo-Tesido (BZ)

Lavori: 2018-2021

Superficie utile: 660 m2

Nel cuore del bosco

Su una montagna sopra Mantana, nel comune di San Lorenzo di Sebato, si trova una radura in mezzo al bosco dove si può scorgere un piccolo insediamento di case che interpreta in chiave contemporanea la tradizionale architettura ladina della Val Pusteria. Il progetto ha percorso un sentiero impervio prima di essere realizzato, in quanto i costruttori locali desideravano essere sostenuti da sviluppatori che invece, viste le problematiche dell’area, hanno preferito ritirarsi, fino all’arrivo di un nuovo investitore e all’incarico affidato all’arch. Stefan Hitthaler. Il sito, infatti, pur essendo ricco di acqua, è immerso in una fitta foresta, ha una pendenza molto ripida, non è orientato a sud e, anche se le strade in inverno vengono regolarmente sgomberate, raggiungerlo in macchina è a volte una vera e propria avventura! Tuttavia, l’idea di vivere in una casa nel bosco ha preso lentamente il sopravvento sulla mancanza dell’esposizione a mezzogiorno e da essa è nato il concept progettuale che funge anche da mediatore tra le due culture del luogo, quella legata alla Germania e quella dell’Alto Adige. Rispetto all’architettura tedesca dove tutto è costantemente standardizzato, il costruire in Alto Adige è caratterizzato da una maggiore libertà espressiva, pur nel rispetto delle leggi nazionali e locali, e ciò si traduce in un territorio che diventa l’interfaccia e il contatto tra due mondi dove l’artigianato è ancora autentico ed eccellente.

A partire da questi presupposti è stato dunque sviluppato un piccolissimo borgo che si compone di sette case e un appartamento, realizzate in legno massiccio e posizionate su due file sfalsate; nella parte posteriore ci sono tre abitazioni che come piccole torri si innalzano a guardare tra e oltre i quattro volumi antistanti i quali, in prima fila, sono posti a sbalzo sull’erto pendio. I corpi di fabbrica, che accolgono al piano terra la zona living e a quelli superiori l’area notte e relax, presentano un’ampia vetrata che abbraccia tutti i piani così da consentire una vista dall’alto verso il basso e favorire l’illuminazione naturale. Le case, certificate CasaClima A, sono riscaldate a legna sia con stufe interne sia centralmente mediante un impianto a cui sono collegate; infine, l’acqua delle sorgenti, considerata curativa, è impiegata per gli usi quotidiani, rendendo questo insediamento quasi autosufficiente.

7
Le abitazioni verso nord si affacciano sulla valle e sul paesaggio alpino. Foto: © Harald Wisthaler

Due scorci innevati delle case. Ancor più nella stagione invernale le abitazioni si inseriscono in modo equilibrato nell’ambiente circostante, grazie alla finitura esterna in doghe di legno verticali che richiama il colore dei tronchi degli alberi.

progetti legnoarchitettura_46 8
Foto: © Gustav Willeit Foto: © Gustav Willeit
9
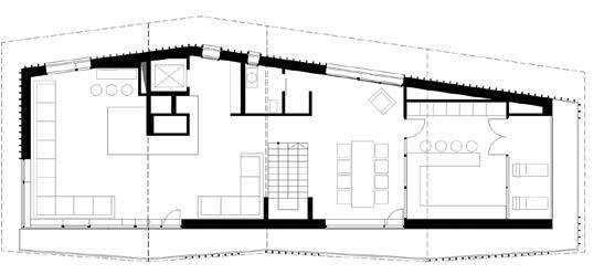
Pianta Sezione Prospetto est
Prospetto ovest

L’interno di una delle case con arredi che presentano linee pulite e contemporanee. In entrambe le immagini si nota la bucatura vetrata a pavimento, presente in tutti i piani, la quale consente di illuminare dall’alto anche il livello terreno più buio.

progetti legnoarchitettura_46 10
Foto: © Gustav Willeit Foto: © Gustav Willeit

_due parole con il progettista________

Dopo aver completato gli studi presso l’Università Leopold-Franzens di Innsbruck e un’esperienza a Parigi, Stefan Hitthaler fonda il suo studio di architettura a Brunico nel 1992. Appassionato delle più diverse formazioni spaziali, realizza progetti che vanno dall’urbanistica alla costruzione di case sino al design d’interni, con un linguaggio formale chiaro, ma inconfondibile, in cui lo spazio è tangibile, vivo e libero. Un’attenzione particolare è rivolta all’edilizia regionale e climatica e, sviluppando concetti come la “zona climatica”, nel 1999 ha costruito la prima casa passiva d’Italia, Haus Pescoller a Brunico. Oltre alla sua attività professionale, Stefan Hitthaler è stato per diversi anni professore a contratto presso l’Università di Ferrara, ha tenuto conferenze e ha vinto diversi premi di architettura e riconoscimenti.

Architetto, lei ha all’attivo diversi edifici realizzati in legno: la scelta del legno è dovuta solo alla tradizione territoriale o c’è qualche altra motivazione che la spinge ad adottare questo materiale nei suoi progetti?

Partiamo da qualche presupposto: in Alto Adige il legno è un materiale da costruzione locale e tipico della tradizione, è facilmente reperibile ed è una materia prima che si rinnova costantemente. Il legno poi possiede alcune caratteristiche particolari che lo rendono unico per certi versi, ovvero ha in sé una sorta di calore naturale e invecchia in modo autentico piacevole, e dura nel tempo, anche se esposto alle condizioni atmosferiche.

Qualche anno fa su questa rivista (NdR legnoarchitettura 35, aprile 2019) è stato pubblicato un altro suo lavoro, il recupero e la riqualificazione di Haus Gasteiger: cosa comporta progettare e realizzare un intervento di ristrutturazione su un edificio esistente in legno?

Solitamente nelle case di legno realizzate nei boschi, come Haus Gasteiger, i punti deboli emergono e si vedono dopo anni e questo è un inconveniente; nel tempo, inoltre, i requisiti e le necessità abitative mutano. Per poter ovviare a tali problemi, queste piccole case dovrebbero essere abitabili tutto l’anno, ma ciò richiede più materiale isolante per il quale si deve trovare lo spazio, senza stravolgere completamente il volto del vecchio edificio. Un’altra complicazione frequente, ad esempio, è costituita dal bagno che, per usura o per perdite, decompone con il tempo la struttura in legno. Per evitare, inoltre, la marcescenza del materiale e renderlo meno sensibile a problemi di umidità, basta sopraelevare la struttura lignea e poggiarla su dei supporti in calcestruzzo. Tuttavia, il bello della casa in legno è che, quando il suo tempo è scaduto, rimangono solo poche parti e tutto ciò che è legno alla fine torna a essere paesaggio.

I quattro volumi della prima fila sono collocati a sbalzo sul terreno scosceso. Sulle lunghe facciate laterali si aprono finestre puntuali a illuminare i diversi ambienti.

11
Foto: © Harald Wisthaler

1 trave

2 elemento in PVC saldato e incollato al pannello isolante sottovuoto

3 striscia coibente in PU

4 rete parainsetti

5 copertura in lamiera

6 lastra in OSB (30 mm) fissata con staffe

7 rivestimento grondaia

8 travetto di legno in pendenza

9 trave di legno (80x210 mm) collegata alla struttura portante della parete

10 isolamento in PU (80 mm)

Dettaglio struttura su gronda

Copertura dall’esterno

- copertura in lamiera (6 mm)

- membrana altamente traspirante/feltro per tetti (2 mm)

- pannello OSB (30 mm)

- camera di ventilazione (35 mm)

- pannello isolante sottovuoto (30 mm)

- membrana adesiva elastomerica (3 mm)

- pannello X-lam (80 mm)

- rivestimento interno (5 mm)

Parete dall’esterno

- rivestimento in doghe di legno verticali (25 mm)

- sottostruttura in listelli e contro listelli per facciata ventilata (30+30 mm)

- telo di tenuta al vento e all’acqua

- coibentazione (180 mm)

- struttura portante in X-lam (140 mm)

- finitura interna

progetti legnoarchitettura_46 12
1 2 3 4 5 7 7 10 8 9 4 6

Alcuni scatti delle fasi di cantiere, dal montaggio della struttura portante in legno con la posa delle prime pareti al completamento delle case con i rivestimenti della copertura e delle facciate.

Dettaglio delle aperture, poste in corrispondenza dei terrazzi, che incorniciano viste del paesaggio creando quadri naturalistici diversi a seconda del punto di osservazione.

13
©
Foto:
Harald Wisthaler

Condominio Ulivi Aprilia

Rocca
Arabella
Foto: © Oliver Jaist
progetti legnoarchitettura_46 16 Foto: © Oliver Jaist

Ubicazione: Aprilia (LT)

Progetto: arch. Arabella Rocca, Roma

Struttura in legno: Wolf Haus, Campo di Trens (BZ)

Lavori: 2021

Superficie lotto: 500 m2

Superficie totale struttura: 1.122 m2

Rinascita Urbana

Realizzato in elementi intelaiati di legno prefabbricati con un livello fronte strada dedicato a uffici e attività commerciali, il Condominio Ulivi si sviluppa su ulteriori tre piani destinati che accolgono appartamenti di superficie variabile tra 60 e 100 m2, tutti con balcone di servizio e terrazza vivibile con accesso dal living, mentre al piano interrato sono collocati i garage e i locali tecnici.

L’edificio mostra un’asimmetrica copertura a due falde, di cui la più estesa e con minor pendenza ospita un impianto fotovoltaico che produce energia sia per i singoli appartamenti sia per le funzioni comuni; la falda più piccola e spiovente è invece rivestita in fibrocemento per esterni così da assicurare continuità con l’intonaco della facciata e configurare l’edificio come un volume puro. Le facciate intonacate presentano un motivo particolare di strombatura in corrispondenza della parte inferiore delle finestre, il quale gioca sulla proporzione delle stesse allungandole verso il basso fino a farle sembrare fori a tutta altezza; l’effetto è stato reso attraverso la lavorazione del cappotto, facilitata dalla prefabbricazione. Il davanzale metallico e l’elemento oscurante raffstore – il cui cassonetto è inserito a scomparsa nello spessore del cappotto – completano l’elemento finestra caratterizzandolo sia da aperto sia da chiuso. Un altro accorgimento progettuale per ottenere particolare pulizia formale è consistito nell’inserimento delle gronde e dei pluviali all’interno dello spessore di parete al fine di renderli invisibili.

Il verde applicato in facciata che, partendo da terra sale fino al primo piano, è uno stilema estetico che veicola il concetto di “green” inteso come sostenibilità globale del progetto, sia dal punto di vista costruttivo sia energetico. La piccola corte centrale, illuminata e arieggiata dall’alto grazie a un cavedio e a una porzione di tetto trasparente, si distingue anch’essa per un elemento verde, ovvero il corrimano forato della scala che da terra prosegue fino al piano mansardato, riconducendo tale scelta a un percorso di sostenibilità. I parapetti vetrati dei terrazzi contribuiscono a far entrare la luce naturale e il verde delle alberature all’interno degli appartamenti massimizzando il comfort ambientale.

17
Foto: © Oliver Jaist
GALLERY COMPLETA e VIDEO
VEDI

Le facciate presentano soluzioni contemporanee ed eleganti: parapetti in vetro, raffstore a scomparsa nello spessore del cappotto, vetrate ad angolo, illuminazione esterna integrata e verde verticale.

progetti legnoarchitettura_46 18
Foto: © Oliver Jaist Foto: © Oliver Jaist

_la struttura________

Il Condominio Ulivi è un fabbricato residenziale di quattro piani con un sottotetto, un piano terra adibito a uffici e ambienti commerciali e un piano interrato che ospita i garage e le aree tecniche. L’intero volume è realizzato con struttura prefabbricata in legno con pareti a telaio e solai ad elementi. L’orditura dei solai è organizzata in funzione della distribuzione dei balconi; travi in acciaio in spessore di solaio collaborano alla distribuzione degli elementi orizzontali e sono posizionate per supportare il fissaggio della scala, conferendo rigidezza; il vano ascensore è in X-lam. I balconi, distribuiti su tutte e quattro le facciate, sono stati costruiti attraverso la sporgenza del solaio che esce a sbalzo e sono completati da una trave ortogonale alla quale sono stati fissati i parapetti in vetro.

Il tetto è a due falde con pendenza molto diversa: la superficie maggiore ha una pendenza di 15° e ospita i pannelli dell’impianto fotovoltaico da 25 kW a servizio dell’edificio; la falda di superficie minore ha una pendenza di 52° è rivestita in fibrocemento e ospita locali servizi ad uso degli alloggi sottostanti. La copertura è di tipo tradizionale con travetti a vista nella parte non praticabile, mentre è controsoffittata nella parte accessibile.

19
Piano terra Sezione A-A Piano primo Prospetto est

Il parapetto verde in metallo forato rappresenta il percorso di sostenibilità del progetto. L’illuminazione a led integrata concorre al minimalismo compositivo.

_due parole con il costruttore________

Wolf Haus Italia fa parte del gruppo Internazionale Wolf System, fondato nel 1962 in Austria. Il gruppo, che oggi conta 30 sedi in tutto il mondo, è specializzato nell’impiego dei propri sistemi costruttivi sia nella costruzione di edifici mono e plurifamiliari sia nella realizzazione di strutture multipiano residenziali o destinate a servizi per la collettività, grazie alla capacità di sviluppare e ingegnerizzare ogni singolo progetto. Il sistema costruttivo prefabbricato misto legno-acciaio consente poi di aumentare il numero di piani e le dimensioni dell’edificio senza limitazioni in altezza, mantenendo tutti i vantaggi garantiti dalla prefabbricazione: travi e pareti vengono disegnate in ogni dettaglio, tagliate e preparate in stabilimento, lasciando al cantiere solo la fase di assemblaggio, realizzazione degli impianti e finiture. Gli standard di comfort e risparmio energetico misurabili del protocollo Wolf Haus Energia Più, insieme alle certificazioni antisismiche e antidanno, alla velocità di esecuzione e al basso impatto ambientale, rendono questi edifici altamente performanti e ne aumentano la redditività per l’investitore.

Ci sono state scelte compositive che hanno reso impegnativo traslare il progetto architettonico in struttura realizzata? Il nostro approccio, a livello di progettazione strutturale ed esecutiva, è quello di studiare soluzioni tecniche che rispettino e valorizzino le richieste compositive del progettista. In questo specifico caso la necessità era quella di investire su una forma di risparmio energetico di cui beneficiare in futuro; una scelta che nell’ultimo anno ha visto accrescere il valore dell’immobile proprio grazie alle soluzioni impiantistiche fortemente volute dal committente. La realizzazione di generose aperture vetrate negli appartamenti e di un pozzo di luce naturale parallelo al vano scala è una decisione che concorre a garantire il massimo benessere abitativo e a risparmiare energia.

Quali soluzioni tecniche sono state adottate per il comfort acustico?

Un edificio per appartamenti costruito in un contesto urbano richiede un ottimo isolamento acustico rispetto l’esterno, ottenuto con la nostra parete TMegawand che assicura un abbattimento acustico Rw di 62 dB. Particolare attenzione è stata posta anche alle pareti divisorie interne tra unità abitative distinte; in questo caso la parete – composta da una controparete con profili in alluminio, 5 cm di lana minerale, con intercapedine di 1 cm dalla struttura portante – garantisce un abbattimento Rw di 61 dB.

Il solaio interpiano a elementi acustici assicura performance nominali misurate di Rw 80 dB e di Ln,w 38 dB.

progetti legnoarchitettura_46 20

_due parole con la progettista________

L’architetto Arabella Rocca si è laureata a La Sapienza di Roma con 110 e lode, dopo aver svolto un anno del corso di studi alla Facoltà Lusiada di Lisbona e un anno all’Elisava di Barcellona. È stata Partner dello studio Alvisi Kirimoto per 10 anni, durante i quali ha avuto modo di lavorare su progetti internazionali e di collaborare con importanti studi, come quello di Renzo Piano e di Rem Koolhaas. Dal 2013 ha un suo studio che si occupa di architettura e interior design con particolare attenzione a ogni aspetto della sostenibilità.

Quali sono state le motivazioni che hanno portato a scegliere una struttura in legno per costruire Condominio Ulivi?

Abbiamo scelto di costruire in legno su precisa indicazione del committente e dell’impresa che ci ha affidato la progettazione, i quali avevano già realizzato costruzioni in legno (il primo edificio era stato realizzato in X-lam).

Per me, come progettista, è stata la prima esperienza di edificio in legno e ne sono stata entusiasta. Un cliente che sceglie di costruire in legno, in Centro Italia, è un soggetto che desidera innovare, che conosce il comfort acustico, ambientale, termico che la struttura in legno sa offrire e fa un investimento di risparmio energetico sul lungo periodo.

Quali sono state le difficoltà incontrate e i momenti salienti della realizzazione?

La progettazione di questo edificio ha richiesto tempi lunghi in quanto le amministrazioni locali – essendo poco avvezze ai progetti di architettura contemporanea – non hanno immediatamente recepito l’importanza della forma legata alla funzionalità della stessa. L’iter burocratico è stato dunque più complesso di quanto avremmo desiderato, ma la scelta è stata quella di difendere il progetto architettonico, il quale andava a privilegiare gli aspetti impiantistici ed energetici.

Superato brillantemente questo scoglio, dall’approvazione del progetto al completamento dell’iter costruttivo è stato tutto veloce e preciso, con uno sviluppo appassionante. Wolf Haus ha impostato la progettazione strutturale e impiantistica secondo i propri standard, rendendosi disponibile a metterla in discussione per rispettare il progetto architettonico e sviluppando così delle soluzioni su misura.

I parapetti vetrati dei terrazzi massimizzano l’ingresso della luce naturale negli appartamenti e la vista verso l’esterno con gli alberi.

21

Tetto a elementi, senza sporgenza, con rivestimento in fibrocemento

- pannelli in fibrocemento ecologico (8 mm)

- profili in alluminio a Ω fissati con viti inox autoforanti (ca. 60 mm)

- profilo in PVC saldato a caldo con profilo interno in alluminio (33 mm)

- guaina impermeabile in PVC

- coibentazione in EPS (100 mm)

- pannello OSB (18 mm)

- struttura portante lignea (60/200 mm) + lana minerale interposta (200 mm)

- barriera al vapore

- tavolato (25 mm)

- cartongesso (12,5 mm)

1 canale di gronda in inox (saldato)

2 pannelli in fibrocemento ecologico

3 coibentazione in EPS (100 mm)

4 struttura portante lignea (60/200 mm) + lana minerale interposta (200 mm)

5 terrazzo interno

6 cappotto esterno (140 mm)

7 strombatura inferiore (spessore coibentazione 60-140 mm)

8 struttura portante lignea con coibentazione tra i montanti (160 mm)

9 barriera al vapore

10 profili metallici con interposti 50 mm lana minerale (75 mm)

11 struttura portante lignea solaio + isolante (200 mm)

12 lastra in cemento rinforzato per esterni + intonaco (20 mm)

13 controsoffitto pendinato doppia struttura profili a C (280 mm)

14 portafinestra scorrevole

Parete “Termomegawand acustica” (438 mm) dall’interno all’esterno

- cartongesso (12,5 mm)

- profili metallici con interposti 50 mm lana minerale (75 mm)

- intercapedine (10 mm)

- pannello OSB (18 mm)

- barriera al vapore

- struttura portante lignea con lana minale tra i montanti (16 mm)

- pannello OSB (18 mm)

- cappotto esterno (140 mm)

- intonaco

Solaio – dettaglio controsoffitto esterno logge

- pavimentazione (16 mm)

- massetto (50 mm)

- materassino (20 mm)

- alleggerito (110 mm)

- pannello OSB (18 mm)

- struttura portante lignea + lana minerale interposta (200 mm)

- strato di tenuta al vento

- pannello OSB (18 mm)

- controsoffitto pendinato doppia struttura profili a C (280 mm)

- lastra in cemento rinforzato per esterni + intonaco (20 mm)

incontri legnoarchitettura_46 22
2 3 4 5 2 1 8 9 10 6 9 9 8 11 6 13 12 11 14 7 9 8 10

Fasi di montaggio delle pareti di un piano intermedio con solaio e delle pareti dell’ultimo piano predisposte per la posa delle travature.

A sinistra, la struttura portante della scala con pianerottolo. A fianco, la struttura del tetto, con isolante, vista dall’interno dell’alloggio prima della posa del cartongesso e il lucernaio della scala comune.

A sinistra, rivestimento della falda con pannelli in fibrocemento ecologico con grondaia integrata e installazione dei pannelli fotovoltaici sul tetto. A destra, vista del cantiere.

23

Casa ND Trento

studio raro
Foto: © Gustav Willeit
progetti legnoarchitettura_46 26
Foto: © Gustav Willeit
La casa da sud est: il bianco volume è scavato per ricavare aperture vetrate e nicchie che alleggeriscono la compattezza dell’edificio.

Ubicazione: Trento

Progetto architettonico: studio raro, Trento

Strutture: Ufficio Tecnico Ille s.r.l., Prezzo (TN)

Direzione dei lavori: studio raro, Trento

Impianti: Studio Progetta di Broilo, Tamanini e Associati, Trento

Appaltatore opere edili e struttura in legno: Ille s.r.l., Prezzo (TN)

Lavori: 2018-2019

Superficie lotto: 340 m2

Superficie utile: 320 m2

Uno scrigno di legno in città

In prossimità del Castello del Buonconsiglio, sopra alle antiche cave di pietra rossa di Trento, è stata costruita una casa unifamiliare a seguito della demolizione e ricostruzione di un fabbricato in stato di abbandono. Obiettivo del progetto è stata la realizzazione di un edificio di alta qualità, conseguito utilizzando il linguaggio dell’architettura contemporanea dal punto di vista formale, cercando un dialogo col contesto in una prospettiva paesaggistica e puntando al risparmio energetico in un’ottica di sostenibilità.

La presenza dei muri in sassi che delimitano sia l’edificio a monte sia l’area di progetto e che proseguono, con dislivelli, anche a valle, tengono insieme questo comparto edilizio in una salda piattaforma da cui emergono, puntuali, i volumi dei singoli edifici. Questa sequenza di corpi compatti e monolitici continua altresì sull’alto crinale della parete rocciosa, dove la successione e la conformazione dei fabbricati storici hanno influenzato il carattere solido e unitario della casa, così come le nuance del castello e della roccia ne hanno definito il colore naturale tipo calce.

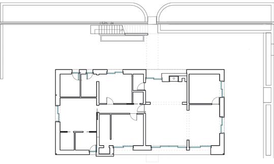
L’abitazione si sviluppa su tre livelli; il piano terra che, a contatto con il piazzale d’ingresso e definito come basamento attraverso l’uso di un timbro scuro, si presenta come elemento ermetico, soddisfacendo anche l’esigenza di sicurezza degli abitanti della casa; il primo piano, adibito a zona giorno, che si apre su un piccolo giardino, ricavato realizzando un terrapieno a sud, e l’ultimo livello che accoglie la zona notte. Il tetto è piano e trattato in parte a verde estensivo e in parte a pavimentazione per esterno, così da permetterne l’uso come grande terrazza.

L’angolo a sud ovest dell’edificio è stato smussato sia per ridurre la percezione del volume e creare degli scorci prospettici, sia per ricavare una nuova facciata esposta a mezzogiorno e ponente e orientata verso la città. Le grandi aperture sfondate in nicchia hanno permesso di scavare il volume compatto e al contempo di aumentare la superficie interna a contatto con il paesaggio circostante. L’uso di un colore diverso, più scuro, per questi incavi accentua la loro profondità rimarcandone l’ombra naturale.

27
L’abitazione riprende il carattere solido e unitario del contesto costruito. Foto: © Gustav Willeit

Sopra, l’abitazione emerge quasi eterea dalla salda piattaforma dell’edificato circostante di cui riprende i colori.

A lato, a sud ovest, l’angolo della casa è stato spuntato per attenuare la compattezza del volume e per creare scorci prospetti sulla città e sul Castello del Buonconsiglio.

progetti legnoarchitettura_46 28
Foto: © Gustav Willeit Foto: © Gustav Willeit

_struttura________

La struttura del piano terra è in calcestruzzo armato, impermeabilizzato con l’aggiunta di additivo per le parti a contatto con la roccia. Le pareti dei restanti piani sono state realizzate con elementi prefabbricati, costituiti da un telaio in legno strutturale di sezione 80x120 mm, chiuso su entrambe le facce con pannelli a base di legno, tipo LVL, dello spessore di 14 mm, coibentato con lana minerale (120 mm). Sul lato interno della parete, successivamente alla posa di un telo freno vapore, è stata realizzata in cantiere una controparete tecnica per l’alloggiamento delle canalizzazioni degli impianti tecnologici, anch’essa isolata. All’esterno è stato applicato in opera un cappotto di facciata utilizzando pannelli in lana minerale di 60 mm.

Pannelli di X-lam da 200 mm con l’aggiunta di travi in acciaio compongono il solaio di interpiano, mentre la scala interna ha la struttura portante in pannelli strutturali in legno di abete; la copertura è formata da travetti 120x280 mm con coibentazione interposta in lana minerale.

L’involucro altamente isolato, l’installazione di collettori solari e moduli fotovoltaici, oltre a un impianto di ventilazione meccanica controllata, hanno permesso di raggiungere la classe energetica A+ con un consumo energetico minore di 30 kWh/m² anno.

29
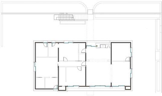
Piano terra Secondo piano Copertura Primo piano Prospetto sud ovest Prospetto sud est
progetti legnoarchitettura_46 30
Foto:
© Gustav Willeit Foto: © Gustav Willeit
Foto: © Gustav Willeit

_due parole con i progettisti________

Studio raro, fondato nel 2004 da Roberta Di Filippo e Roberto Salvischiani con sede a Trento, si occupa di architettura e comunicazione visiva, conseguendo premi e riconoscimenti in entrambi i campi. L’esperienza maturata attraverso la direzione lavori di cantieri, la collaborazione con vari professionisti, corsi formativi sulla sostenibilità e la comunicazione, la passione e la cura dei dettagli, ha permesso e consente tutt’oggi allo studio di affrontare progetti a grande o piccola scala in maniera completa e professionale. Il concorso di architettura rappresenta per lo studio raro un veicolo ideale per lo sviluppo di nuove soluzioni architettoniche e la ricerca di nuove tecnologie, materiali, forme.

Potreste darci una definizione del materiale “legno”? E quali sono le sue potenzialità in architettura?

Legno è leggerezza e forza allo stesso tempo. È antico, sostenibile, familiare, caldo. Noi amiamo molto anche il cemento, più scultoreo, ma il reale punto di forza delle costruzioni in legno, secondo noi, è la tecnologia e il sistema costruttivo, la prefabbricazione spinta che dà valore alla fase progettuale, che analizza e risolve ogni minimo dettaglio prima del cantiere con conseguente precisione nella realizzazione. Meno imprevisti, meno costi aggiuntivi, gestione del cantiere più rapida ed efficace.

Quali sono stati i vantaggi nell’aver scelto e utilizzato un sistema in legno prefabbricato per questa abitazione?

In questo progetto l’uso della prefabbricazione in legno ha portato notevoli vantaggi, soprattutto nella fase di cantiere. La sua posizione infatti, in centro città, alla fine di una strada stretta e in salita e con un divieto di transito ai mezzi pesanti, aveva già creato problemi nella fase di demolizione della vecchia abitazione. L’utilizzo di pannelli prefabbricati in legno, di dimensioni inferiori rispetto al solito, ha permesso di diminuire il peso dei carichi e di impiegare mezzi di trasporto più piccoli, con la conseguente riduzione dei tempi di realizzazione, condizione necessaria in un contesto difficile e a contatto con altre abitazioni.

Nella pagina precedente, in alto a sinistra, una vista della casa dall’ingresso; a destra, scorcio da un’area sottostante; in basso, l’area pranzo sottolineata dal colore blu cobalto e la terrazza con vista sul Castello del Buonconsiglio.

All’interno della casa il colore bianco è interrotto da una tonalità scura che accentua la cavità ricavata dalla smussatura del volume prismatico.

31
Foto: © Gustav Willeit

Copertura dall’esterno (A)

- pavimento galleggiante in composito alveolare per esterno con sottostruttura e piedini regolabili in alluminio

- guaina impermeabilizzante

- tavolato (3 cm)

- listelli per ventilazione pendenziati (min. 3 cm)

- guaina impermeabilizzante

- pannello in LVL (1,25 cm)

- struttura legno (26 cm) con lana minerale interposta (8+8+8 cm)

- freno vapore

- pannello in LVL (1,25 cm)

- controsoffitto (5 cm) con pannelli in fibra minerale (4 cm)

- lastra cartongesso (1,25 cm)

Parete esterna dall’esterno (B)

- intonaco

- cappotto in lana minerale (6 cm)

- pannello LVL (1,4 cm)

- struttura parete in legno a telaio (12 cm) + doppia lastra in LVL

- pannello LVL (1,4 cm)

- telo freno vapore

- intercapedine interna con lana minerale (5 cm)

- doppia lastra in cartongesso

Solaio interpiano dall’estradosso (C)

- pavimento in legno (1,8 cm)

- massetto autolivellante con riscaldamento a pavimento (5 cm)

- barriera vapore

- pannello isolante (3 cm)

- guaina anticalpestio (0,8 cm)

- massetto alleggerito (10 cm)

- telo traspirante e impermeabilizzante

- solaio X-lam (20 cm)

- controsoffitto (5 cm) con pannelli in fibra minerale (4 cm)

- lastra cartongesso (1,25 cm)

Solaio su vano non riscaldato dall’estradosso (D)

- pavimento in legno (1,8 cm)

- massetto autolivellante con riscaldamento a pavimento (5 cm)

- barriera vapore

- pannello isolante (2 cm)

- guaina anticalpestio (0,8 mm)

- massetto alleggerito (9 cm)

- solaio c.a. (30 cm)

- pannelli in fibra minerale (8 cm)

- lastra cartongesso (1,25 cm)

Solaio controterra dall’estradosso (E)

- pavimento gres porcellanato (1,5 cm)

- massetto autolivellante (9 cm)

- barriera vapore

- pannello isolante XPS con pelle (4 cm)

- platea spessore variabile, impermeabilizzata

- roccia

progetti legnoarchitettura_46 32
A C B D E

Alcune fotografie della realizzazione della casa. Dalle immagini, oltre alla struttura prefabbricata in legno – a telaio per le pareti e X-lam per i solai – si nota già come lo studio e la modellazione del corpo rettangolare dell’abitazione abbia permesso di aprire scorci prospettici di grande interesse e piacevolezza sulla città di Trento.

33

Villa unifamiliare

Provincia di Grosseto

MCM Arch
Foto: Paolo Federico Cellini

Da sud ovest emerge l’articolazione dei semplici volumi dell’abitazione che con il suo colore bianco, tipicamente mediterraneo, spicca tra pini marittimi, cipressi e ulivi.

progetti legnoarchitettura_46 36
Vista da nord: a sinistra, la scala di accesso alla casa e il ponte che collega l’ingresso della proprietà alla copertura/terrazzo. Foto: Paolo Federico Cellini Foto: Paolo Federico Cellini

Ubicazione: Provincia di Grosseto

Progetto architettonico: arch.tti

Federico Cellini, Maria Eugenia Muratori, Brigida Paolillo – MCM Arch, Roma

Direzione dei lavori opere edili: geom. Dario Picchianti, Porto Ercole (GR)

Direzione dei lavori strutture: arch. Alberto La Tegola per HBS

Appaltatori struttura in legno: HBS Holzbau Sud, Calitri (AV)

Impianti: HBS Holzbau Sud, Calitri (AV)

Lavori: giugno 2021-aprile 2022

Superficie utile: 170 m2

Verso l’Isola del Giglio

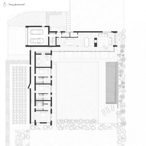
In uno dei luoghi più spettacolari d’Italia, una preesistenza di cui era necessario mantenere forma e dimensioni e la forte pendenza del sito hanno rappresentato i punti invalicabili su cui si è stato fondato il progetto di questa abitazione unifamiliare, trasformando i limiti in opportunità. La spettacolarità del luogo e il declivio del terreno hanno portato a enfatizzare la vista panoramica; la casa si acquatta nella collina tra i cipressi e le querce da sughero vincolando l’arrivo alla quota del terrazzo a cui si accede grazie a un ponte; un balcone in aggetto fa da terminale al percorso di copertura, quasi un trampolino verso la valle e il mare. Tramite una scala o una rampa pedonale che si snoda tra gli ulivi, si giunge al livello del piano abitato dove si ripete il percorso sovrastante e dove grandi vetrate scorrevoli si aprono verso la costa della Feniglia. Compatibilmente con le norme locali che imponevano il rispetto della sagoma e delle altezze e usufruendo di un incremento di superficie del 20% circa, concesso dal PRG, i progettisti dello studio MCM Arch hanno esaudito le richieste dei committenti disegnando una dimora con tre camere doppie, ognuna con il proprio bagno, un’ampia zona living/pranzo e una cucina separata. Partendo quindi da una superficie utile di 145 m2, grazie agli spessori contenuti delle pareti portanti interne realizzate in X-lam come anche l’intera struttura della casa, è stata sviluppata un’area master con bagno e cabina armadio nella zona più calma e ombreggiata dell’edificio come voluto dalla committenza.

Definiti i punti precedenti, la “carrozzeria” dell’abitazione non poteva non tener conto del contesto; tra tamerici, ulivi, cipressi e sughere e sotto l’ombrello di alti pini marittimi, i semplici e chiari volumi del fabbricato, tipici del Mediterraneo, si leggono nitidi e geometrici, quasi scolpiti dalla luce. Aggetti, passaggi, pergole, solidi, vuoti e pieni si alternano e si bilanciano nella composizione pur semplice della dimora bianca, in contrasto con i muri di contenimento in pietra locale ricca delle sfumature del ferro.

Una nave pronta al varo e protesa verso l’isola del Giglio.

37
La dimora si nasconde tra le vegetazione seguendo il dislivello del terreno. L’ingresso alla casa avviene dall’alto ed è sottolineata dal ponte che porta al tetto piano con terrazzo. Foto: Paolo Federico Cellini

Armonizzandosi con i muri di pietra locale, i bianchi volumi della casa si aprono verso la valle e il mare con ampie vetrate protette dagli aggetti e con pergole che espandono la zona living all’esterno.

Verso ovest, lato su cui si sviluppa la zona notte, l’abitazione appare quasi chiusa, affacciata con un’unica apertura verso il giardino e la natura circostante, così da garantire la necessaria privacy.

progetti legnoarchitettura_46 38
Foto: Paolo Federico Cellini Foto: Paolo Federico Cellini

Programma

Forma

Percorsi

_struttura________

Struttura

Le piante individuano il concept progettuale, dal programma planimetrico in sostituzione dell’esistenza evidenziata in rosso alla forma dell’abitazione, dai percorsi che si ripetono sulla copertura e all’interno della casa allo schema strutturale.

L’area di progetto presentava problemi logistici di cantiere, inclusa la mancanza di rete idrica e del gas. La possibilità inoltre di guadagnare superficie calpestabile, riducendo lo spessore delle pareti portanti dove possibile, ha visto vincente la scelta del legno. Un cantiere snello e pulito, in cui i carichi permettevano uso di gru e di macchine di dimensioni contenute, ha portato alla drastica eliminazione dei tempi morti e quindi a una grande velocità di costruzione (l’assemblaggio della “scatola” è avvenuto in soli quattro giorni). I pannelli X-lam sono stati tagliati in fabbrica con la precisione del decimo di millimetro da macchine a controllo numerico direttamente dagli elaborati in dxf forniti dai progettisti, trasportati su bilici e trasferiti poi, data la difficile accessibilità del cantiere, su motrici di medie dimensioni. A quel punto, messi in posizione da una gru cingolata, la squadra di montatori ha fissato i pannelli alla fondazione (una platea in calcestruzzo) e assemblato fisicamente la casa in circa 150 ore lavorative. Le pareti sono state rivestite con un cappotto in coibente traspirante e finite a intonaco. Grazie alle caratteristiche termiche dell’involucro e all’uso del fotovoltaico, l’edificio è pressoché energeticamente autonomo, considerando anche la scelta di un sistema riscaldamento/raffrescamento a pavimento radiante.

39
Veduta da sud Vista da nord
progetti legnoarchitettura_46 40
Foto: Paolo Federico Cellini Foto: Paolo Federico Cellini

_due parole con i progettisti________

MCM Arch è uno studio di architettura di Roma che nasce tra i banchi dell’Università con gli architetti Eugenia Muratori e Federico Cellini, a cui si unisce nel 2015 l’architetto Brigida Paolillo. Avendo approfondito diverse discipline nel panorama dell’architettura, dalla progettazione di edifici su larga scala all’interior design, decidono di unire le singole competenze per ottenere un unico e originale prodotto finale, in cui l’alta qualità e la soddisfazione della committenza passano attraverso precise scelte stilistiche e la razionale distribuzione degli spazi architettonici.

Cosa significa per voi progettare un edificio in legno vista la vostra esperienza nel settore? E quale secondo voi sarà il futuro dell’edilizia in legno nel nostro paese?

Semplicemente realizzare la nostra idea di Architettura con un sistema costruttivo che ha veramente pochi vincoli: aggetti, volumi, aperture, piani inclinati sono realizzabili senza forzature e nel pieno rispetto delle normative tecniche. Spingiamo da anni le costruzioni in legno con progetti e pubblicazioni proponendole anche in concorsi di grandi strutture e, nonostante tanti dubbi di natura “culturale” da parte della committenza italiana, sempre più vediamo interesse e convinzione nel mercato immobiliare.

In un momento in cui il panorama internazionale spinge verso l’autonomia energetica e il basso consumo, la nostra esperienza porta verso tecnologie leggere ad alte prestazioni ma con costi di costruzione credibili: il legno è, in quanto a questo, decisamente in vantaggio su tutto! Anche gli enti pubblici e gli uffici tecnici di controllo (leggi Genio Civile) hanno acquisito dimestichezza con la materia e non guardano più con diffidenza i diagrammi di calcolo di strutture in legno arrivando, in più di un caso, a caldeggiarle. Al momento abbiamo sullo schermo del computer diversi progetti in legno richiestici in nord e centro Italia, segno che nonostante la difficile congiuntura la cultura sta cambiando.

Nella pagina precedente: le diverse parti della casa sembrano modellate dalla luce naturale. Pieni e vuoti, aggetti, passaggi e pergole trovano equilibrio nella composizione volumetrica dell’architettura.

Dettaglio della passerella/ ponte che, dall’ingresso soprastante la casa, porta direttamente al terrazzo/ copertura da dove è possibile ammirare il paesaggio che si protende verso l’Isola del Giglio.

41
Foto: Paolo Federico Cellini

Copertura dall’esterno

- pavimento galleggiante

- impermeabilizzazione

- coibentazione

- barriera al vapore

- solaio in X-lam

- controsoffitto

Sezione di dettaglio in corrispondenza di una vetrata

1 copertina in cemento-resina bianco (30 mm)

2 lastre composte in sughero

3 pannello con intonaco (20 mm)

4 doppio travetto (38x125 mm)

5 frangisole esterno (130 mm)

6 gesso fibra (12 mm)

7 serramento

8 zanzariera

9 soglia in pietra sagomata

10 pavimento in pietra (20 mm)

progetti legnoarchitettura_46 42 1 2 3 4 5 6 7 8 9 10
Assonometria costruttiva dell’abitazione con evidenziati gli elementi in legno che costituiscono la struttura portante.

Alcune fasi della costruzione della casa: dalla realizzazione della platea armata alla posa della trave radice e delle pareti in X-lam, fino al completamento delle finiture esterne. Da notare l’estrema pulizia del cantiere.

43

Country House Bassano del Grappa

dsA_architettura
Foto: © dsA_architettura

L’abitazione, con rivestimento in doghe di larice e copertura in lamiera brunita, si inserisce armoniosamente nel contesto delle prime colline vicentine.

Diversamente dalla zona notte, a sinistra nella foto, l’area living è un tutt’uno con il giardino grazie alla vetrata, opportunamente ombreggiata, che corre lungo l’intero affaccio sud.

progetti legnoarchitettura_46 46
Foto: © dsA_architettura Foto: © dsA_architettura

Ubicazione: Bassano del Grappa (VI)

Progetto architettonico: dsA_architettura – Dario Scanavacca

architetto, Bassano del Grappa (VI)

Strutture: ing. Matteo Pozzato –Emmequadro progetti, Vicenza

Progettazione impianti: studio associato

Zonta, Bassano del Grappa (VI)

Direzione dei lavori: Dario Scanavacca

architetto, Bassano del Grappa (VI)

Consulente: Aronne Cenci, Romano

D’Ezzelino (VI)

Impianti: Termoidraulica Tasca, Bassano del Grappa (VI); Ruffato Impianti elettrici s.r.l., Bassano del Grappa (VI)

Appaltatori struttura in legno: Wood&Co s.r.l.; Ivano Berti (montaggio strutture in legno)

Lavori: 2017-2019

Superficie verde: 21.000 m2

Superficie utile: 350 m2

La discrezione del legno

Tra le colline poco distanti dal centro storico di Bassano del Grappa, comune della pedemontana Veneta, questo edificio residenziale si inserisce nel paesaggio agricolo con il suo carattere spiccatamente moderno.

L’abitazione si compone di due volumi a una falda e di una piscina che, disposti ad U, generano la corte privata sopraelevata dal piano di campagna da cui si gode la vista sul panorama circostante. I due corpi di fabbrica, separati tra loro da un elemento a copertura piana che conferisce unità formale, si sviluppano su due livelli leggermente sfalsati, accogliendo nella porzione a nord l’area giorno e in quella ovest la zona notte. La casa è orientata prevalentemente a sud est, dischiudendosi sul territorio adiacente con la grande vetrata del living che crea continuità tra interno ed esterno, rafforzando in tal modo il legame con il giardino. I fronti nord e ovest, dall’impronta più introspettiva, presentano finestre puntuali, di dimensioni ridotte e poste a differenti altezze, così da favorire l’illuminazione naturale degli ambienti, assicurare al contempo la riservatezza dalla strada e riparare l’abitazione dai venti dominanti a nord e dal surriscaldamento estivo a ovest.

Particolare attenzione è stata dedicata agli aspetti costruttivi e formali. Le pareti portanti sono costituite da un telaio di legno massiccio con sistema “joist”, riempito di fibra di cellulosa e controventato con pannelli in gessofibra. La facciata esterna utilizza il sistema di parete ventilata in legno di larice massello che garantisce un rilevante risparmio energetico, miglioramento acustico e protezione dagli agenti atmosferici. Alla grande vetrata a sud, realizzata con un profilo in alluminio molto sottile e con vetri a basso-emissivi, è stata riservata una speciale cura, sia in fase progettuale sia in fase di installazione; il suo apporto solare in inverno assicura infatti il comfort della zona giorno, mentre in estate è ombreggiata mediante un sistema di tende filtranti esterne.

Il riscaldamento e il raffrescamento dell’edificio sono ottenuti con una pompa di calore aria-aria che sfrutta la geotermia orizzontale, abbassando notevolmente i costi di gestione, in abbinamento agli impianti fotovoltaico e solare termico.

47
Foto: © Tommy Ilai
Vista dell’abitazione da sud all’imbrunire. La disposizione a U dei volumi e della piscina genera una corte interna riparata che garantisce la riservatezza.
progetti legnoarchitettura_46 48 Foto: © dsA_architettura Foto: © dsA_architettura Foto: © dsA_architettura Foto: © dsA_architettura

Prospetto sud

Prospetto est

Planimetria

Prospetto nord

Alla sera le vetrate a sud permettono di scorgere l’ampio open space della zona giorno. La loro quasi completa apertura consente di allargare lo spazio abitativo all’esterno e connettersi con l’area verde di pertinenza.

Nella pagina precedente, alcuni scorci e dettagli della casa. Dall’alto a sinistra in senso orario: il corto lato est del living; il prospetto a nord nell’area dei servizi; l’ingresso a ovest; il fronte ovest con l’apertura vetrata che buca l’involucro opaco, spingendosi all’esterno alla ricerca della luce naturale per illuminare il corridoio di distribuzione della zona notte.

49
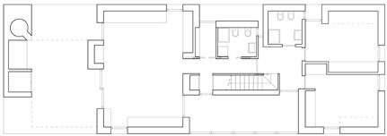
Pianta della casa Pianta della copertura

Il soggiorno e la zona relax e intrattenimento sono separate da un elemento parete con un camino bifacciale.

progetti legnoarchitettura_46 50
Foto: © dsA_architettura Foto: © dsA_architettura
Nell’ampio open space del living, esposto a sud est, la dimora si apre al paesaggio grazie alla lunga vetrata a tutta altezza con telaio metallico dallo spessore ridotto.

_due parole con i progettisti________

Laureato allo IUAV di Venezia nel 2000, l’arch. Dario Scanavacca è assistente a contratto nel corso di composizione architettonica della stessa facoltà dal 2000 al 2004. Formatosi nello studio Synergia Progetti Los/Pulitzer, con i quali collabora a diversi concorsi nazionali e internazionali, apre il proprio studio nel 2003. Nel corso degli anni si è occupato di lavori di architettura, spaziando dal recupero di beni monumentali alla progettazione di edifici residenziali e industriali al design di interni. Attualmente lo studio è impegnato in progettazioni nel settore alberghiero, turistico, residenziale e direzionale.

Da dove nasce l’idea di realizzare questa abitazione con una struttura in legno?

Una delle prime richieste della committenza riguardava la costruzione di una casa salubre e realizzata con materiali naturali. La scelta del legno, condivisa fin da subito anche dal committente, ci sembrava rispondere pienamente a questi requisiti.

Si aggiunga poi la facilità di smaltimento del legno a termine del suo ciclo di vita per comprendere come questo materiale da costruzione risultasse l’ideale per il compito assegnatoci. Il legno, inoltre, garantisce una sensazione di comfort indoor che altri materiali non offrono, assicurando prestazioni acustiche molto buone e in generale una qualità ambientale ottima.

Quale definizione dareste del materiale legno?

Il legno è uno dei materiale da costruzione più antichi che si conoscano. L’agevole reperibilità, la duttilità e la facilità di lavorazione lo rendono ancora oggi uno dei materiali più preziosi che la natura ci abbia consegnato.

Con il legno è possibile costruire case, utensili, oggetti e finanche opere d’arte. Tutte queste caratteristiche lo rendono adatto ai più svariati usi e alle più svariate forme.

Progettando un edificio a Bassano del Grappa, a pochi passi dal famoso ponte di legno del Palladio che da secoli attraversa il fiume Brenta, ci sembrava questa una scelta del tutto naturale e coerente con il luogo.

Dall’area pranzo si passa alla cucina, anch’essa con vista sul giardino e sul paesaggio circostante.

51
Foto: © dsA_architettura

Parete portante dall’interno

- rasatura e stuccatura

- chiusura con pannelli in fibrogesso

- isolamento vano impianti con pannelli di fibra di legno

- listelli in legno

- telo freno vapore

- controventatura con pannelli in fibrogesso

- struttura portante a telaio in travetti joist e isolamento con fibra di cellulosa

- controventatura con pannelli in fibrogesso

- camera di ventilazione per facciata ventilata

- listelli e controlistelli

- doghe in legno, posa a giunto aperto

Il sistema costruttivo prefabbricato a telaio delle pareti, utilizzato nell’abitazione, si caratterizza per la presenza di travetti I-Joist, elementi strutturali di legno ingegnerizzato impiegati spesso al posto dei montanti tradizionali. Il suo nome deriva dalla forma a I che il travetto assume quando le parti che lo compongono – flangia superiore e inferiore, che resistono alla flessione, generalmente in legno impiallacciato, e nervatura, elemento centrale, che fornisce resistenza al taglio, in OSB o compensato – sono unite. L’intelaiatura così ottenuta è versatile e facilmente installabile.

progetti legnoarchitettura_46 52
Sezione sulla zona notte Sezione sulla zona giorno
Foto: © dsA_architettura

Posa delle prime pareti sulla platea di fondazione e vista complessiva del cantiere da sud ovest.

A sinistra, uno scorcio del collegamento mediante copertura piana tra il volume della zona notte, e quello dell’area giorno a destra. Qui accanto, la realizzazione della zona servizi sul lato nord, quasi completamente opaco.

A sinistra: sopra, il tavolato di copertura e, sotto, il passaggio impianti a pavimento. A lato, installazione della lunga vetrata a sud.

53

Odissea Rurale Caldogno

Jimmi Pianezzola

L’abitazione si apre a sud con il portico e il giardino d’inverno che, d’estate, diventano il prolungamento esterno delle aree living.

progetti legnoarchitettura_46 56

Ubicazione: Caldogno (VI)

Progetto architettonico: arch. Jimmi

Pianezzola, Vicenza

Strutture: Arpostudio srl, Bergamo

Direttore dei lavori: arch. Jimmi

Pianezzola, Vicenza

Impianti: Tomasi Progetti, Schio (VI)

Appaltatore struttura legno: Casalogica srl, Brescia

Lavori: 2018-2019

Superficie verde: 1.800 m2

Superficie utile: 200 m2

Fotografie edificio finito: Alberto Sinigaglia, Jimmi Pianezzola

Uno scrigno di paglia

Nelle vicinanze di Caldogno, piccola cittadina alle porte di Vicenza dove è situata una villa del Palladio, su un lotto libero in aperta campagna sorge un’abitazione realizzata interamente in legno e paglia. Questo edificio è il secondo progetto con questa tecnica costruttiva affrontato dall’architetto Jimmi Pianezzola, il quale ha cercato di soddisfare appieno le richieste dei committenti che cercavano una costruzione sana, un focolare per cucinare pane e pizza, un grande portico per accogliere anche d’inverno gli ospiti e un grande spazio libero al piano primo. Il progetto trova origine da un’attenta analisi svolta sul territorio, attraverso la mappatura di edifici rurali storici dell’area, e dagli elementi, sorprendentemente ricorrenti, che questa ricerca ha messo in evidenza, quali l’orientamento sulla rosa dei venti, le proporzioni delle aperture, i dispositivi di schermatura solare. A ciò, si aggiunge la ben nota architettura rurale veneta che, in questo contesto geografico, si manifesta sostanzialmente in piccole stanze d’abitazione, un focolare, un portico per la vita all’esterno, un fienile-granaio e verande che fungono da piccole serre solari ante litteram. Da questi elementi fondanti prende dunque le mosse il progetto e i successivi modelli di studio che a diverse scale hanno consentito di comprendere gli spazi mentre venivano ideati, permettendo inoltre ai clienti di catturare con uno sguardo la loro futura casa.

L’edificio è orientato allo stesso modo dei fabbricati della tradizione locale, con una deviazione del fronte principale di pochi gradi verso ovest rispetto al sud, così da assicurare il massimo soleggiamento invernale, la perfetta protezione dai venti freddi invernali e il raffrescamento con le brezze dominanti estive. Pertanto, la casa, che presenta un modello spaziale ABAB, può essere organizzata diversamente a seconda della stagione – il portico estivo diventa un grande giardino d’inverno e il giardino centrale una serra bioclimatica – e, in virtù di questa flessibilità d’uso che segue il clima, le configurazioni della dimora sono state definite dall’architetto ‘piante stagionali’. L’abitazione è stata inoltre pensata per avere prospettive specifiche da punti di vista privilegiati e, più in generale, in modo che gli spazi interni siano dinamicamente interconnessi.

57
Immersa nella campagna, la residenza si nasconde nella natura che la circonda per garantire adeguata privacy ai suoi abitanti.

La casa all’esterno mostra una grande uniformità – qui l’angolo nord ovest – mentre all’interno è organizzata secondo una spiccata differenziazione e articolazione, come fosse la navicella Space Odissey atterrata in campagna.

progetti legnoarchitettura_46 58

Studi delle configurazioni.

Da sinistra: configurazione estiva aperta con gli spazi che ombreggiano le aree e diventano prolungamenti delle aree interne; configurazione invernale chiusa con il giardino d’inverno (in giallo), i portici (in azzurro) e la serra (in verde); schema della ventilazione naturale della casa; le prospettive visive dell’abitazione.

_legno e paglia________

È noto che la paglia sciolta è un materiale altamente infiammabile; tuttavia, i muri in balle di paglia non lo sono, perché queste ultime sono altamente compresse con presenza di pochissimo ossigeno al loro interno e quindi bruciano con molta difficoltà. È stato testato che un muro in balle di paglia, intonacato sulle due facce con intonaco in terra cruda di circa 3 cm, raggiunge una resistenza al fuoco 120 minuti. In questo edificio residenziale la tecnologia costruttiva prevede l’impiego delle ballette di paglia utilizzate come grandi mattoni di tamponamento a chiusura della struttura intelaiata di legno delle pareti, oltre che di intonaci completamente privi di cemento, per favorire la traspirabilità, e con inerti leggeri quali, ad esempio, calce e canapa. Tale pacchetto parete è più economico rispetto alle tecniche costruttive tradizionali e assicura consumi energetici molto bassi; inoltre, il processo produttivo e il ciclo di vita del manufatto richiedono bassissimi livelli di energia grigia.

59
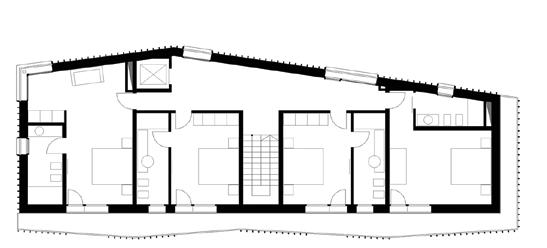
Pianta piano terra Prospetto sud Sezioni trasversali Prospetto est Prospetto ovest Prospetto nord

Gli interni della casa, articolati nella composizione, sono di colore chiaro per enfatizzare la luce naturale che entra dalle ampie aperture vetrate.

Nella pagina accanto, in senso orario: dettaglio del portico che, nella stagione fredda, può diventare un giardino d’inverno; il giardino delle piante grasse a sud –la loro coltivazione è un hobby dei proprietari – con le travi della copertura che fuoriescono dal pacchetto tetto per ombreggiare le vetrate del piano superiore; particolare dello stesso giardino; altra vista del portico che offre un’area ombreggiata nella bella stagione.

_due parole con il progettista________

Jimmi Pianezzola, laureato presso l’Università IUAV di Venezia, nel 2011 fonda il proprio studio di architettura. Ha progettato numerosi edifici e piani urbanistici approfondendo in particolare il tema dell’architettura domestica. Da sempre interessato ai temi dell’ecologia e della sostenibilità in edilizia, progetta e segue la realizzazione di costruzioni e dimore altamente sostenibili, appropriate al clima e al luogo in cui si insediano, figlie dello spirito del proprio tempo e pensate per resistere al suo trascorrere. È autore del libro ‘Casa Elementare – Elemental House’, un piccolo manifesto architettonico che è contemporaneamente un racconto personale sul tema della casa e discorso di metodo sulla progettazione delle costruzioni ecologiche.

Questa è la seconda casa che ha realizzato in legno e paglia. Se dovesse consigliare questa tecnica costruttiva, quali peculiarità metterebbe in evidenza?

Mi fa piacere qui sottolineare un solo aspetto di carattere generale rispetto ai risvolti positivi per il clima derivanti dall’uso della paglia per le costruzioni. Il processo produttivo e il ciclo di vita del manufatto richiedono bassissimi livelli della cosiddetta energia grigia. La paglia è naturale, ecologica e il suo impiego in edilizia porta a un’impronta di carbonio negativa. Durante la crescita delle piante, dalle quali si ottengono la paglia e il legno, si accumula CO2 che non viene rilasciata in atmosfera ma conservata in essi. Per dare un’idea, i chilogrammi di gas tossici emessi in atmosfera per la produzione di 1 m2 di parete per casa passiva (con trasmittanza pari a 0,1 W/m2K) sono 108 kg/m2 nel caso di un blocco in calcestruzzo aerato e isolato con polistirolo espanso, mentre una parete in balle di paglia intonacata in terra e calce al contrario assorbe 88 kg/m2 di CO2, cioè ha contribuito a ridurre l’effetto serra.

Può sottolineare alcune scelte bioclimatiche e di sostenibilità messe in atto nell’abitazione?

Come già sottolineato, l’edificio ha un orientamento tale da essere protetto dai venti dominanti e da sfruttare allo stesso tempo le brezze estive per il raffrescamento; il portico e la serra bioclimatica sono pensate per essere dei collettori solari passivi durante i mesi invernali e delle grandi zone d’ombra in estate e ogni apertura è progettata per essere ben collocata dal punto di vista dello spazio interno, dell’illuminazione e ventilazione interne e delle proporzioni esterne. La climatizzazione, come la produzione di acqua calda e di elettricità, sono affidate a un sistema di pannelli fotovoltaici e a una pompa di calore con accumulo di acqua: la casa infatti non è collegata all’utenza di gas metano!

progetti legnoarchitettura_46 60
61

Parete involucro non riscaldato dall’esterno (A)

- intonaco esterno a base di calce (3 cm)

- parete in legno e paglia (25 cm)

- intonaco interno a base di calce (3 cm)

- perlina trattata (20 mm)

Parete involucro non riscaldato dall’esterno (B)

- lastra in fibrocemento, rasato e intonacato (2 cm)

- isolamento in lana di roccia

- struttura in legno lamellare

- lastra in fibrocemento, rasato e intonacato

Parete involucro riscaldato dall’esterno (C)

- intonaco esterno a base di calce (3,5 cm)

- parete in legno e paglia (36 cm)

- intonaco interno a base di calce (3,5 cm)

Parete interna da bagno verso camera (D)

- rivestimento in piastrelle di gres (1,5 cm)

- doppia lastra in cartongesso (1,25+1,25 cm)

- struttura in legno con montanti (14x4 cm) e isolamento in fibra di legno interposto (14 cm)

- doppia lastra in cartongesso (1,25+1,25 cm)

Copertura dall’esterno (A)

- manto di copertura in coppi

- strato di ventilazione

- telo impermeabile

- pannello in legno (2 cm)

- struttura tetto e strato di isolamento in paglia (36 cm)

- freno al vapore

- pannello in legno (2 cm)

Solaio controterra, dall’estradosso (B)

- pavimento in legno (2 cm)

- pannello in legno (2 cm)

- massetto isolante a secco in legno e lolla di riso (12 cm)

- cappa collaborante in c.a. (10 cm)

- isolante in XPS (15 cm)

- vespaio areato in ghiaia (25 cm)

B A progetti legnoarchitettura_46 62
C A B D

A sinistra, le ballette di paglia pronte per essere utilizzate. A fianco, sopra: vista complessiva della struttura a telaio in legno; in basso a fianco: realizzazione e riempimento con la paglia delle pareti.

La superficie delle ballette di paglia costipate nella parete viene livellata; l’isolamento del tetto è realizzato con il medesimo materiale.

Completamento e chiusura delle pareti.

63

Toddlers Bilingual School

Formigine

ZPZ Partners
Foto: © Vanni Borghi

Il fronte est all’imbrunire con i quattro padiglioni di differente altezza.

A sud est la struttura dell’edificio si prolunga all’esterno, definendo nuove superfici destinate alle attività scolastiche in continuità con le aree interne.

progetti legnoarchitettura_46 66
Foto: © Michele Zini Foto: © Vanni Borghi

Ubicazione: Casinalbo – Formigine (MO)

Progetto architettonico e design: arch. Michele Zini, arch. Claudia Zoboli, arch. Sara Michelini, ing. Alice Gaddi, des. Sara Callioni, ZPZ Partners, Modena

Strutture: ing. Pier Luigi Cigarini, ing. Matteo Pè

Computi: geom. Maurizio Forghieri

Impianti elettrici: Proget Studio

Tecnico, Modena

Impianti meccanici: Sintec, Modena

Struttura legno: Ille Prefabbricati, Pieve Di Bono – Prezzo (TN)

Lavori: 2020

Superficie verde: 4.000 m2

Superficie interna: 1.000 m2

Legno maestro di innovazione

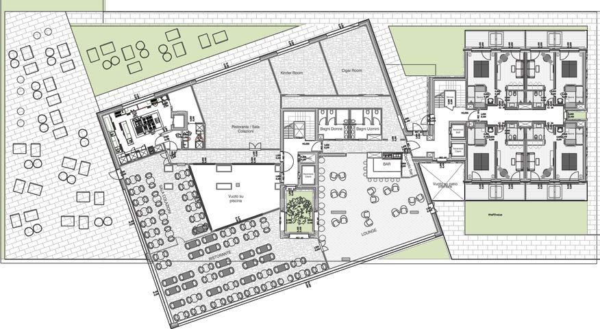
Possono architettura e pedagogia dialogare assieme per dar vita a una scuola la cui costruzione sia ambientalmente sostenibile? La risposta è sì, se facciamo riferimento alla Toddlers Bilingual School di Casinalbo dove non sono stati adottati i consueti stilemi architettonici, fatti di corridoi, aule e lezioni frontali. In questo edificio, infatti, gli studenti non hanno a disposizione classi assegnate, tranne la sezione prima e quella ponte dei cinque anni, bensì una grande piazza, atelier, laboratori e zone per specifiche attività, il tutto pensato per favorire la creazione di un gruppo e l’ambientamento dei giovani alunni. Il complesso dunque non presenta corridoi e gli spazi si affacciano sulla grande piazza che è posta al centro dell’impianto planimetrico, diventandone il baricentro distributivo e il metronomo che ne scandisce l’impiego.

Questo è il cuore pulsante della scuola, fungendo da luogo di accoglienza al mattino, da spazio di relazione tra i bambini – e con i genitori in occasione di eventi – e da area per lavori di piccoli gruppi o per occasionali assemblee. La stessa piazza, su cui si affaccia anche la cucina, si avvolge attorno a un giardino vetrato che porta luce naturale all’interno, sviluppandosi ulteriormente in una zona pranzo e in un atelier.

Realizzata in pannelli di legno intelaiati, la struttura si articola in una serie di padiglioni accostati l’uno all’altro che all’interno generano una copertura di altezze differenti e all’esterno definiscono delle superfici, poste come continuazione dello spazio chiuso, a creare zone per attività all’aperto davanti a ogni volume e sui lati. In due casi dei portali segnano fisicamente tali aree individuandone i confini, con l’obiettivo che questi siano una membrana permeabile e utilizzabile, una connessione ininterrotta tra interno ed esterno.

La costruzione è improntata su caratteristiche di sostenibilità, collocando non solo l’edificio in una classe energetica ottimale, ma inserendo un principio di indipendenza energetica e di controllo della filiera dei materiali al fine di ottenere un basso impatto ambientale.

67
©
La piazza centrale si sviluppa attorno a un giardino vetrato che contribuisce all’illuminazione naturale dell’ambiente. Foto:
Vanni Borghi

Uno degli spazi educativi della scuola (laboratorio geostoria).

progetti legnoarchitettura_46 68
L’aula pranzo è situata all’interno della piazza e si affaccia sul giardino interno. Foto: ©
Vanni Borghi Foto: © Vanni Borghi
69
1
2
3
4
5
6
7 uffici 8
9 sale
10 atelier 11 laboratorio
12
1 13 infanzia 14
Planimetria con gli arredi
laboratorio lingue
laboratorio geostoria
laboratorio scienze
maker-lab
piazza
pranzo
staff
corsi
musica
classe
giardino interno
1 2 3 4 5 6 7 8 9 10 11 12 13 14
Schema della struttura

Scorci della piazza centrale: la luce che rischiara la grande area è garantita in modo naturale dalle vetrate che si aprono sul giardino interno e dai lucernari in copertura, oltre che da apparecchi illuminanti.

Nella pagina accanto, in alto il laboratorio di scienze e in basso il maker-lab.

_due parole con i progettisti________

ZPZ Partners si occupa di progettazione architettonica, design e ricerca e si concentra sul progetto di strutture innovative, nel concept e nelle qualità formali, che segue dalla elaborazione metaprogettuale alla direzione lavori. Le principali realizzazioni, in Italia e all’estero (Tokyo, San Francisco, New York, Dubai, Washington), spaziano dall’architettura (scuole, ospedali, retail, hotel, residenze) all’interior design, ai sistemi di arredo, all’immagine coordinata, al vision design, all’allestimento. Lo studio ha svolto e svolge attività di ricerca con INDIRE, Domus Academy Research and Consulting, Design Department Politecnico di Milano e Reggio Children.

La Toddlers Bilingual School è una scuola dove colori e materiali diventano “insegnanti” dei piccoli alunni: da dove nasce questa scelta cromatica e materica?

Lo spazio interno è caratterizzato da una marcata polisensorialità, in empatia con la sinestesia dei processi cognitivi dei bambini: loro toccano la luce e vedono la temperatura e si meritano un ambiente vario e articolato da un punto di vista sensoriale. Un ambiente da vivere e percepire con tutti e cinque i sensi. Per questo motivo, all’interno della scuola troviamo una varietà di finiture e di materiali (legno a soffitto, ceramica effetto legno a pavimento, mosaici, grandi lastre in gres verticali, finitura a scagliola e intonachino); sorgenti luminose differenti, che generano ombre diafane e nette, tutte con ottima resa cromatica; una palette di colori lontana dalla semplificazione dei colori primari rosso-giallo-blu, in grado di offrire sfumature, saturazioni e brillantezza delle tinte che i bambini sanno apprezzare. La luce naturale proviene dai lati e dall’alto, dai lucernari e dal giardino centrale.

Anche gli arredi assumono una grande importanza nella scuola...

Gli arredi sono studiati insieme all’architettura, nella convinzione dell’importanza del loro ruolo: sono lo strumento che consente le attività, l’enzima che fa succedere le cose. Contribuiscono in modo determinante alla definizione materiale e cromatica dell’ambiente e a supportare e fornire una immagine di bambino competente, dotato di 100 linguaggi. Sono realizzati con materiali atossici, PVC free, corrispondenti alle normative di sicurezza europee. Provengono da una ricerca più che ventennale sviluppata con Reggio Children e Play+, testati nelle strutture scolastiche o di apprendimento dell’infanzia e sono oggetto di continua ricerca e sviluppo, come protagonisti nella creazione di un laboratorio per l’apprendimento.

progetti legnoarchitettura_46 70
Foto: © Vanni Borghi Foto: © Michele Zini
71 Foto: © Vanni Borghi Foto: © Vanni Borghi

Copertura dall’esterno (A)

- lamiera grecata

- stuoia antirombo per tetti in lamiera

- barriera al vapore

- tavolato di abete (25 mm)

- listoni per camera di ventilazione (h 160 mm)

- telo traspirante

- pannello in lana minerale (densità 135-160 kg/m3, 100 mm)

- telo freno vapore

- tavolato di abete (25 mm)

- arcarecci (sez. 140x440 mm)

- telaio in legno lamellare (80x200 mm)

- perlina trattata (20 mm)

Parete dall’interno (B)

- pannello fibrogesso (12,5 mm)

- telo freno vapore

- montanti in legno con inteposta lana minerale (densità 18 kg/m3, 100 mm)

- pannello in LVL (12,5 mm)

- cappotto in EPS (60 mm)

- graffiato esterno con rete, colla e intonachino colorato

Solaio controterra dall’estradosso (C)

- pavimentazione

- massetto

- membrana antiradon

- cappa in c.a.

- riempimento in vetro cellulare

- platea di fondazione

1 guaina in PVC

2 canale di gronda preassemblato

3 telaio legno lamellare (80x200 mm)

4 XPS

5 cordolo

progetti legnoarchitettura_46 72 INTERNO ESTERNO INTERNO
1 2 3 B B 4 3 5 C A

Prime fasi di montaggio della struttura con gli elementi prefabbricati già organizzati in cantiere. A fianco, lo stoccaggio dei correntini, ciascuno individuato da un numero.

A sinistra, vista dall’interno dell’orditura primaria e secondaria del tetto.

A destra, la realizzazione della copertura con i teli nastrati prima della posa dell’isolamento.

Chiusura della struttura di copertura e montaggio delle partizioni interne.

A sinistra, il pacchetto tetto con la camera di ventilazione; a destra, una fase della posa del manto metallico di copertura.

Completamento delle finiture interne e posa dei portali esterni.

73

Grand Hotel Cervino Cervinia

(AO)

Bettiol.Architecture Lab
progetti legnoarchitettura_46 76
Dettaglio dei balconi in legno prefabbricati con il Monte Cervino sullo sfondo. Vista complessiva della struttura.

Ubicazione: Avouil – Cervinia (AO)

Progetto architettonico e DL: arch.

Mariapia Bettiol – Bettiol.Architecture

Lab, Aosta

Progetto Strutture

e Progetto Antincendio: ing. Stefano

Grosso, Borgofranco d’Ivrea (TO)

Strutture: V.I.CO. Srl – Valdostana

Impresa Costruzioni, Hône (AO)

Render: Patrik Jacquemod, Arvier (AO)

Arredi e Finiture: Concreta Srl, Postalesio (SO)

Impianti elettrici: Peaquin srl, Saint-Vincent (AO)

Impianti Aeraulici e Idro termo sanitari: L.I.C.T.I.S. s.r.l., Torino

Appaltatore struttura legno: Wood Beton Spa, Iseo (BS)

Lavori: luglio 2020-agosto 2021

Superficie verde: 1.800 m2

Superficie utile: 2.980 m2

Superficie interrato: 2.594 m2

Superficie SPA e Centro Benessere: 3.255 m2

Fotografie: V.I.CO. SRL

Ai piedi del Monte

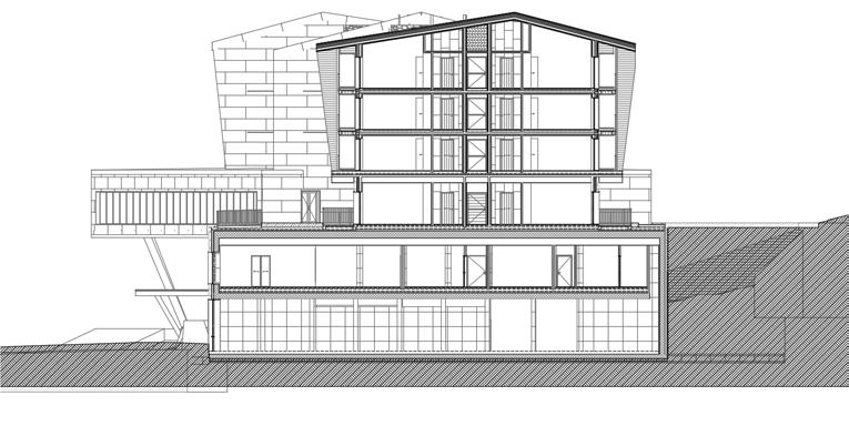
A Cervinia, in località Avouil, la nuova struttura ricettiva a cinque stelle del Grand Hotel Cervino è frutto del progetto della catena alberghiera proprietaria e di una storica impresa di costruzioni Valdostana specializzata nella progettazione e nella costruzione di hotel. Realizzato secondo criteri di bioedilizia, l’edificio è stato eretto su un’area occupata in passato da una vecchia autorimessa ormai in disuso, così da non consumare ulteriore suolo – e non sottrarre spazio alla natura pressoché incontaminata che lo circonda – e adattarsi perfettamente al panorama montano. Un fabbricato fortemente ecocompatibile, dove il legno, cuore della struttura, la fa da padrone: un materiale naturale e dall’elevato comfort che, grazie alle sue proprietà naturali, ha consentito di creare ambienti sani con ottime prestazioni acustiche e un’elevata salubrità dell’aria. Il Grand Hotel Cervino è tutto questo, un progetto al cui centro c’è la montagna e le sue peculiarità. La struttura è concepita infatti come un’estensione della montagna stessa, dove la tradizione del design “ad alta quota” è stata reinterpretata in chiave contemporanea con caratteri costruttivi tipici del luogo, concretizzati attraverso tecnologie innovative.

L’edificio è una costruzione innovativa e moderna di oltre 9.250 m2, sviluppata su sei piani e articolata in tre volumi caratterizzati da un involucro in legno e vetro: un vero e proprio rifugio per ospiti alla ricerca di un lusso contemporaneo e alpino che pervade ogni spazio. I tre corpi che compongono l’albergo ospitano 66 camere, di cui 6 suite e 4 stanze da letto per disabili, la zona benessere con 4 suite SPA con sauna privata, due piscine coperte, 3 saune, una stanza del sale, la palestra interna, l’ampia sala congressi nel seminterrato e il ristorante con bar annesso, questi ultimi circondati da una grande vetrata con vista sul Cervino e sui boschi circostanti.

77
Vista serale del Grand Hotel Cervino. L’illuminazione mette in evidenza il legno e la pietra, materiali della tradizione, qui riletti in chiave contemporanea.
progetti legnoarchitettura_46 78
Il ristorante: legno e vetro sono i protagonisti dello spazio che sia apre sui boschi e sul Cervino. L’area del lounge bar: le scelte di colore e aptiche definiscono un design ricercato e lussuoso.

_struttura________

Il Grand Hotel Cervino è stato costruito in tempi record, tra il 2020 e il 2021, in soli 13 mesi, dei quali solamente due sono serviti per assemblare in cantiere gli elementi prefabbricati. La struttura in legno è stata infatti interamente realizzata in stabilimento, dove sono stati prodotti i solai e le pareti in X-lam, dotate di cappotto in lana di roccia e rivestimento in legno massiccio di larice; tutti i pannelli sono quindi giunti in cantiere già completi e pronti per essere posati. La scelta di impiegare l’X-lam si è rivelata vincente sia in termini prestazionali sia per tempi di posa rapidissimi, logistica di cantiere semplificata e sostenibilità dei materiali utilizzati, oltre a garantire ottimi valori di isolamento termico, un buon isolamento acustico e una buona inerzia termica.

Sono in legno anche i tamponamenti e i solai interni, tutti i balconi e la copertura, queste ultime due soluzioni interamente prefabbricate. I balconi sono in larice, un’essenza, povera di nodi e impurità, di ottima qualità, un legno molto compatto e durevole con eccellenti caratteristiche strutturali e una grande resistenza all’azione logorante degli agenti atmosferici. La copertura, invece, è stata realizzata con pannelli Preconnect®, un sistema costruttivo in legno, brevetto di Wood Beton, che ha permesso di assemblare in stabilimento un tetto isolato, ottimo in termini estetici e di leggerezza. Nell’hotel, inoltre, vi sono inoltre 96 cellule bagno prefabbricate, composte da una struttura in acciaio rivestita in fibrogesso e complete di isolamento, di parte impiantistica e di finiture. Ogni cellula bagno ha un basamento in legno microlamellare, così da ridurne il peso e non gravare sui solai sottostanti. L’installazione di un manufatto completo e definito in tutti i dettagli è stata una soluzione tecnicamente migliorativa ed economicamente vantaggiosa.

79
Piano terra Primo piano Prospetti

Anche nelle camere il design è stato curato con grande attenzione, bilanciando illuminazione naturale e artificiale così da creare un ambiente adatto al riposo.

_due parole con il costruttore________

Giovanni Spatti, ingegnere e innovatore nel settore della prefabbricazione, è Direttore Tecnico e socio fondatore di Wood Beton Spa. La sua lungimiranza e la sua esperienza nel settore edile lo ha portato a distinguersi nel mondo dell’edilizia off-site, attraverso l’ingegnerizzazione e la realizzazione di soluzioni costruttive uniche nel proprio genere, in grado di fare la differenza.

Ingegnere, cosa ha comportato l’impiego di sistemi industrializzati per la realizzazione di questo hotel?

L’utilizzo di tecnologie costruttive industrializzate non ha potuto che comportare numerosi vantaggi: innanzitutto ci ha consentito di diminuire i tempi di realizzazione, in quanto tutti i componenti strutturali sono stati prefabbricati in stabilimento, e in cantiere l’assemblaggio è stato effettuato a secco in modo rapido, riducendo al tempo stesso i rischi di montaggio, a favore di una maggiore sicurezza per tutti gli operatori. Inoltre, è stato possibile avere fin da subito una certezza dei costi, poiché la prefabbricazione richiede una scrupolosa pianificazione di tutte le lavorazioni, il cui costo può essere quindi calcolato con precisione già in fase di preventivo. L’esatta quantificazione del prezzo ha quindi permesso di redigere un business plan affidabile con precisa valutazione dei tempi di ritorno dell’investimento.

In questo progetto, l’utilizzo del legno si è dimostrato vincente. Perché è stato scelto proprio questo materiale? Sono stati diversi i motivi che hanno spinto la committenza ha scegliere il legno. Innanzitutto la sicurezza: le sue caratteristiche di leggerezza e di elasticità sono fattori chiave per la resistenza alle sollecitazioni sismiche. Tale concetto, applicato in particolar modo a una struttura come questa, diventa ancora più importante per la sicurezza dell’edificio e dei suoi occupanti. Infatti, in caso di terremoto, la struttura oscillerebbe senza crollare, permettendo agli ospiti di uscire e portarsi fuori pericolo.

Inoltre, il legno impiegato per questo progetto è certificato PEFC: ciò garantisce la provenienza da boschi sottoposti a coltivazione sostenibile e con ricrescita programmata. Con l‘attuale necessità di puntare a una maggiore sostenibilità, non è un caso che l’utilizzo del legno nell’edilizia sia in forte e costante crescita a livello mondiale.

progetti legnoarchitettura_46 80

_due parole con la progettista________

Dopo il diploma al Liceo Scientifico, Mariapia Bettiol consegue la laurea Triennale in Architettura delle Costruzioni al Politecnico di Milano per poi continuare gli studi all’Universidad Cardenal Herrera di Valencia e infine concludere il percorso Magistrale in Scienze dell’Architettura al Politecnico di Milano dove è stata impegnata in diversi workshop internazionali. Dopo gli studi, torna in Valle d’Aosta e affianca il padre nello Studio di Architettura Bettiol che si occupava già principalmente di architettura alpina e hotellerie e del quale porta avanti il know how con un giovane team, specializzandosi nelle architetture alpine di lusso, creando Bettiol.Architecture Lab con cui sviluppa progetti internazionali.

Perché si è deciso di usare il legno in questo progetto?

Cervinia, che si trova a 2000 m s.l.m., porta con se diversi vincoli a livello costruttivo, primo fra tutti la brevità delle stagioni costruttive che partono a fine maggio/primi di giugno per finire con l’arrivo della neve che varia tra fine novembre/primi di dicembre. Una delle scommesse del Grand Hotel Cervino era provare a realizzare l’edificio in meno di un anno. Per fare questo, iniziando il cantiere a giugno, era fondamentale arrivare a chiudere l’involucro e finire gli esterni entro novembre, per poter proseguire a lavorare all’interno durante la stagione invernale e la scelta di puntare sulla prefabbricazione è stata di conseguenza un’operazione logica. La volontà di utilizzare il legno è invece stata una scelta di cuore, preferendo un materiale al 100% naturale, completamente riciclabile, che rispettasse l’ambiente e che al contempo diventasse un tutt’uno con esso.

Qual è stato il “leitmotiv” del progetto?

Come accennato prima, il rispetto dell’ambiente e al contempo la fusione di esso con l’edificio è stato il principio fondante dell’intero progetto, trait-d’union tra il fondovalle e il bosco. Trovandosi l’edificio ai piedi di un bosco, incassato nella valle dove scorre il torrente Marmore, ci è venuto spontaneo portare il verde e l’acqua all’interno della struttura attraverso grandi superfici vetrate che abbattessero i confini tra spazio aperto e spazio chiuso. Per questo, due giardini sono stati realizzati nei grandi volumi vetrati che dall’esterno si insinuano all’interno della sagoma del fabbricato, portando la luce naturale e la natura stessa anche nel cuore degli spazi seminterrati, e un volume a doppia altezza, all’interno del quale scorre una cascata che porta l’acqua dalla sala ristorante ai locali del centro benessere.

81
Una delle due piscine coperte con vista sul paesaggio grazie alle ampie vetrate continue.

Sezione trasversale sull’area relax

Sezione trasversale sui soppalchi

3D della scala; in rosso sono evidenziati gli elementi a cui la scala si connette.

Un particolare degno di nota riguarda la realizzazione della scala: l’appaltatore della struttura in legno ha progettato e prefabbricato in stabilimento la scala con vano ascensore già integrato, con i gradini che fuoriescono a sbalzo dal volume centrale, senza necessità di connessioni strutturali alle pareti laterali del vano scala, evitando quindi la trasmissione di vibrazioni da calpestio agli ambienti adiacenti.

progetti legnoarchitettura_46 82

A sinistra, la parete prefabbricata in stabilimento con parte del rivestimento già posato; a destra, due pareti pronte per il trasporto sul sito di progetto.

Posa dei pannelli prefabbricati in X-lam, la struttura con le guarnizioni acustiche, prima della chiusura del tetto e una fase di cantiere con le pareti in legno delle camere.

Le cellule bagno prefabbricate e la movimentazione con gru di una delle pareti già rivestite.

A sinistra, installazione degli elementi delle pareti esterne rivestite; a destra, la struttura dell’albergo quasi completata.

83
Foto: Wood Beton Spa

Chalet Blanc Cervinia

(AO)

LCA architetti
© Simone Bossi
Foto:

Il prospetto est con la grande loggia incorniciata al piano mansardato e, al livello inferiore, la terrazza con le travi in legno inclinate che caratterizzano anche il prospetto sud.

progetti legnoarchitettura_46 86 Foto: © Simone Bossi

Vista da sud est dello chalet; la copertura a W rovescia dialoga con le montagne circostanti.

Ubicazione: Valtournenche, Cervinia (AO)

Progetto architettonico: LCA architetti –luca compri architetti, Varese

Strutture: ing. Marco Carcano, Varese

Appaltatori struttura in legno: Riko Hiše, Ribnica (SLO)

Lavori: 2019-2020

Superficie lotto: 1.200 m2

Superficie verde: ca. 700 m2

Superficie utile: 889 m2

“W” il legno!

Ai piedi del Cervino, questo piccolo chalet sostenibile, reinterpreta in chiave contemporanea le vecchie baite del territorio alpino. La costruzione ha preso vita dall’idea di una giovane coppia che ha deciso di costruire questo edificio ricettivo denominato Chalet Blanc. Lo sforzo progettuale è stato quello di lavorare ponendosi come obiettivo la realizzazione di un fabbricato in stretto dialogo con le montagne, che custodisse al suo interno spazi domestici e accoglienti e ambienti con un alto grado di comfort interno, realizzati con materiali naturali ed ecologici. Il risultato è un’architettura equilibrata e in armonia con il contesto che la accoglie, in cui le facciate e i volumi si connotano per il variare dei pieni e dei vuoti e per il vibrare alla luce dei brise soleil in legno e delle travi verticali che disegnano il lato nord.

L’accesso allo chalet, costruito con struttura prefabbricata in legno, avviene sul lato nord al primo livello, dove si viene immediatamente accolti da un piccolo soggiorno che funge anche da hall; allo stesso piano si trovano, da un lato, una prima camera da letto e, dall’altro, uno spazio destinato a SPA con vasca idromassaggio, docce emozionali, sala relax, sauna e bagno turco. L’area benessere è in diretto affaccio sul giardino e sull’ampio solarium pavimentato in pietra. Il piano superiore è destinato esclusivamente all’accoglienza con la presenza di 4 camere da letto, tutte provviste di bagno e di grandi finestre esposte a meridione. Infine, l’ultimo piano, caratterizzato da ampie vetrate che affacciano sulla valle e sulle alte montagne che la circondano; in questo spazio sono posti il soggiorno, la sala da pranzo, la cucina e un grande camino con seduta in pietra e canna fumaria rivestita in ferro grezzo; sul lato est una loggia coperta è destinata a spazio conviviale, di lettura e contemplazione. Lo chalet presenta una copertura a “M” rovescia, una scelta compositiva che è un omaggio allo skyline e alla maestosità delle vette che coronano la valle e che rappresenta il tentativo di avviare un dialogo diretto con la meraviglia della natura circostante. La linea spezzata della copertura viene ripresa in pianta dal disegno dei balconi, creando un disegno organico nel suo insieme.

87
Foto: © Simone Bossi
progetti legnoarchitettura_46 88 Foto: © Simone Bossi Sui fronti rivolti a nord e a ovest il volume dello chalet presenta con poche aperture vetrate e nessuna terrazza.

_i prospetti________

I prospetti sono trattati in modo diverso, a seconda dell’orientamento e delle funzioni interne all’edificio. A sud, in particolare, si dischiudono le finestre delle camere e le ampie vetrate degli spazi conviviali presenti all’ultimo piano; tutte le aperture hanno accesso alle terrazze, disegnate con sviluppo in pianta a zig zag, e sono parzialmente ombreggiate da lamelle in legno. Verso nord-ovest, a protezione del clima rigido, i fronti sono decisamente più serrati, privi di grandi finestrature e aggetti; su questi lati le pareti si distinguono per la costolatura ritmica realizzata con travi di legno verticali e le finestre e i rispettivi telai hanno dimensioni variabili per aprirsi in maniera più libera e asimmetrica inquadrando scorci di paesaggio. Infine la facciata est, che è riconoscibile per la grande loggia del piano mansardato e la rispettiva cornice che ne perimetra i contorni.

89
Piano semi-interrato Primo piano Prospetto sud Prospetto est Piano terra Secondo piano Prospetto nord Prospetto ovest
progetti legnoarchitettura_46 90
©
Foto: © Simone
Foto:
Simone Bossi Foto: © Simone Bossi
Bossi Foto: © Simone Bossi

_due parole con il progettista________

Persone, Architettura e Ambiente: sono tre parole importanti, elementi imprescindibili e fondamento di ogni lavoro di LCA architetti. Il team si occupa di progettare edifici privati e pubblici di varia tipologia e scala, dal piccolo oggetto di design al grande masterplan urbanistico. La capacità di organizzare e progettare lo spazio, la ricerca della bellezza, l’utilizzo della luce e dei materiali naturali, la cura del dettaglio e l’ottimizzazione dei costi sono capisaldi del lavoro. Parallelamente alla attività di progettazione, il team svolge attività di ricerca e di formazione didattica in ambito accademico e professionale.

Vista la sua esperienza nel progettare edifici in legno, cosa significa progettare un edificio in legno in differenti condizioni climatiche? Cosa cambia nell’approccio progettuale?

Quando parliamo di edifici in legno ci riferiamo alla loro struttura, alla tecnologia costruttiva; un fabbricato di questo tipo può essere poi terminato con un materiale di finitura differente (intonaco, metallo, pietra, etc.). In questo caso specifico, la montagna esalta la scelta di utilizzare il materiale che meglio la rappresenta: il legno. Per chi, come noi, progetta architetture bioecologiche, lavorare ad alta quota in condizioni dove la natura è protagonista è qualcosa di speciale, un vero e proprio privilegio. Le differenti condizioni climatiche non hanno inciso particolarmente e attualmente le soluzioni tecniche per contenere i consumi sono molteplici ed efficaci.

Se dovesse consigliare un suo collega che approccia per la prima volta un progetto con struttura in legno, quali suggerimenti darebbe?

Da alcuni anni svolgo attività formativa e il primo consiglio che mi sento di dare è quello di fare esclusivamente buona architettura.

L’architettura è però, prima di tutto, spazio, luce, poesia. Per tale ragione mi piace parlare, anziché di architettura sostenibile, di sostenibilità dell’architettura. Costruire in maniera sostenibile è tuttavia di per sé un’esigenza imprescindibile, un vincolo primario di progetto.

Oggi, progettare non utilizzando materiali naturali e fonti energetiche rinnovabili è un atteggiamento che risulterebbe anacronistico e irresponsabile.

Nella pagina a fianco, dall’alto a sinistra in senso orario: tutte le camere hanno accesso alla terrazza esterna, protetta da travi in legno che fungono da brise-soleil; giochi di linee e trame di legno nelle terrazze; la cucina all’ultimo piano aperta verso la loggia; il grande camino al livello mansardato con la seduta in pietra e la canna fumaria rivestita in ferro grezzo.

Due scorci dell’angolo a est e di quello a nord dell’edificio, si percepisce come l’orientamento abbia influenzato composizione ed estetica.

91
Foto: © Simone Bossi Foto: © Simone Bossi

Materiali e colori della struttura ben si inseriscono nel paesaggio montano. Qui al primo piano l’area benessere, affacciata sul giardino, si apre sull’ampio solarium pavimentato in pietra.

Dettaglio delle travi con motivo a zig zag della terrazza al secondo piano.

La lunga terrazza a sud del piano mansardato si sviluppa anch’essa a zig zag in pianta, parzialmente ombreggiata dalle travi verticali in legno.

progetti legnoarchitettura_46 92
Foto: © Simone Bossi Foto: © Simone Bossi
Foto: © Simone Bossi

L’architettura dell’edificio ha un’anima sostenibile; lo chalet ha infatti consumi ridotti e bassissime emissioni di CO2 ed è stato costruito utilizzando perlopiù materiali naturali provenienti da fonti rinnovabili, primo tra tutti il legno. La struttura lignea del fabbricato poggia su uno zoccolo in muratura finito esternamente con pietra posata a secco; il basamento che corrisponde al piano seminterrato, oltre a ospitare un trilocale, è destinato a garage, locale tecnico e deposito sci.

Assonometria lati sud ed est

Assonometria lati nord e ovest

93
Sezione longitudinale su scala

Scopri la rivista

www.edicomstore.it

Villa in balle di paglia

Nicola Preti

Casa G

Manuel Benedikter

Casa delle Donne di Amatrice e Frazioni

Massimiliano Muscio

LILELO Eco Lodges

Atelier LAVIT

Villa passiva

estudoquarto srl

Foto: arch. Marcio Tolotti Foto: Atelier LAVIT
47
Foto: Marion Lafogler
next

Turn static files into dynamic content formats.

Create a flipbook
Issuu converts static files into: digital portfolios, online yearbooks, online catalogs, digital photo albums and more. Sign up and create your flipbook.