PETERSEN - 50 - 2024 - DE

Page 1

ÜBER ZIEGEL UND VERANTWORTUNGSBEWUSSTE ARCHITEKTUR

50 | 2024
Nordø, Kopenhagen. Foto: Anders Sune Berg

»Der Ziegelstein kennt keine Grenzen von Zeit oder Ort. Er reist wie ein Kulturbotschafter über Ländergrenzen hinweg.«

Ulla Viotti, Künstlerin

Verantwortungsbewusste Architektur seit 25 Jahren

GANZ IM SINNE DER ZIEGELEI UND DER ZEITSCHRIFT LIESS DER ARCHITEKT UND PROFESSOR THOMAS BO JENSEN DIE ARCHITEKTEN ZU WORT KOMMEN, ALS WIR IHN BATEN, ANLÄSSLICH DES 25-JÄHRIGEN BESTEHENS VON PETERSEN EINEN ARTIKEL ZU SCHREIBEN.

PETERSEN Ausgabe

Inzwischen halten wir die 50. Ausgabe in den Händen. Seit der ersten Veröffentlichung vor 25 Jahren wurde alle sechs Monate eine neue Ausgabe herausgegeben. Die Überschrift »Über Ziegel und verantwortungsbewusste Architektur« ist dabei seit der ersten Ausgabe zu finden. Die Architekten waren natürlich etwas skeptisch, als wir das Magazin präsentierten. War das glaubwürdig? Aber PETERSEN hat es tatsächlich geschafft, als Hersteller eine neutrale Perspektive einzunehmen. Das liegt in erster Linie daran, dass im Magazin die interessantesten Architekten zu Wort gekommen sind. Der handwerkliche Ansatz von Petersen Tegl in der Ziegelherstellung und die Tradition, Architekten einzuladen, an der Entwicklung der Produkte mitzuwirken, hat im Laufe der Jahre die visionärsten Architekten angezogen. Dieser innovative Ansatz sowie der hohe architektonische Standard haben dem Magazin viel Respekt eingebracht. So sehr, dass es trotz seiner vorwiegend lokalen Verankerung inzwischen in drei Sprachen und auf der ganzen Welt gelesen wird. Ganz allgemein betrachtet, hat PETERSEN durch den Fokus auf die Wichtigkeit des Mauerwerks als keramische und kontrastierende Struktur mit weit zurückreichenden Wurzeln dazu beigetragen, die Bedeutung des Ziegelsteins in der modernen Architektur zu stärken.

Der Ziegel als Kulturbotschafter Von Anfang an bot das Magazin auch Raum für kritischste Stimmen: »Warum entwickelt die Ziegelindustrie nicht mehr Produkte, die die organische Textur des Ziegelmaterials mit einer modernen Designsprache verbinden?«, fragte Boje Lundgaard von Lundgaard & Tranberg Arkitekter 1999. »Idyllisierung ist zwecklos, andererseits müssen wir uns darüber im Klaren sein, dass unsere Häuser einen populären Reiz haben müssen.« Einige Ausgaben später schlug der Bildhauer Bjørn Nørgaard eine Lanze für genau diese volkstümliche Seite und träumte von einer »großen volkstümlichen, dekorativen Kunst«, in der

»Kunst, Architektur und Stein« eine kohärente Einheit bilden (P4-2000). Diesen Traum verfolgte er weiter, als er die Wohnsiedlung Bispebjerg Bakke in Kopenhagen als weiche, von Hand geformte Tonmodelle in seiner Werkstatt entwarf: »Ein Haus sollte wie ein Waldrand am Strand sein – wie eine Höhle im Winter. Wir wollen Handwerk, Kunst, Architektur und Technik auf eine Weise miteinander verbinden, dass niemand sehen kann, wo das eine endet und das andere beginnt. Aber alle können sehen, dass alle gemeinsam da sind.« (P9-2002). Dieselbe poetische Kraft findet sich im Werk der schwedischen Ziegelkünstlerin Ulla Viotti, die über den besonderen »Pakt des Ziegels mit der Natur« und das kulturelle Echo spricht, das er mit sich bringt: »Der Ziegel kennt keine Grenzen von Zeit und Ort. Er reist wie ein Kulturbotschafter über Ländergrenzen hinweg« (P4-2000).

Geschichte aus 2000 Jahren findet in einem neuen Museum zueinander Der schweizerische Architekt Peter Zumthor ist einer der vielen bekannten Architekten, die dazu beigetragen haben, die Sprache des Ziegelsteins zu erneuern. Mit seinem Kolumba Museum in Köln hat er Spuren der Geschichte aus 2000 Jahren in einem neuen Museumsgebäude miteinander verflochten. Dabei träumte er von einem langen, schmalen Ziegelstein, wie jene, die man aus dem alten Rom kennt. Ein Stein, der sich wie diese beinahe unbemerkt in die komplizierten Oberflächen der Ruinen und vielfältigen Formate einfügt (P19-2007). Der dänische Architekt Mads Bjørn Hansen von Praksis Arkitekter war zu dieser Zeit bei Zumthor angestellt. Und er schlug ihm einen Besuch bei Petersen Tegl vor. Das anschließende Gespräch zwischen Christian A. Petersen und Peter Zumthor war die Geburtsstunde des grauen Kolumba-Steins (P19-2007).

Wie eine felsige Höhle, zerklüftet durch Klima und wilde Tiere Später gab es Kolumba auch in weiteren Farben und anderen Brennungen, wie beispielsweise dem wunderbaren Stein, der für das Schauspielhaus in Kopenhagen verwen-

det wurde. Im Magazin werden Lundgaard & Tranberg Architects mit den Worten zitiert, dass der rustikale schwarze Stein mit den rauen, sandigen Oberflächen sie dazu animierte, einen Raum zu schaffen, der »wie eine Felsenhöhle aussieht, die vom Klima und wilden Tieren zerstört wurde.« (P13-2004). Diesen höhlenartigen Charakter haben seitdem zahlreiche ausländische Architekten mit Kolumba verwirklicht, so zum Beispiel der Schwede Johan Celsing mit seinem Krematorium »A Stone in the Forest« auf dem Stockholmer Waldfriedhof (P31-2014) oder die deutsche GMP mit ihrem »Raum der Stille« – einem Raum für Gebet und Besinnung im Herzen des neuen Berliner Flughafens (P46-2022).

Mauerziegel, die in tausenden Erdfarben glänzen

Das Kolumba-Format hat auch neue Formen von rustikalen Mauerziegeln hervorgebracht, wie die prächtige Wandverkleidung des Kunstmuseums von Sorø, die im Sonnenlicht in tausend erdigen Farben schimmert (P262012). Denselben Effekt hat der Kannikegården in Ribe, für den noch größere und gröbere Mauerziegel entworfen wurden. »Im Mittelalter wurde alles in Ellen und nicht in Millimetern gemessen«, erklärt der Architekt Erik Frandsen von Lundgaard & Tranberg. Die Steine sollten wirken, als wären sie »aus der Erde emporgewachsen«, gleichzeitig sollten sie sich ganz natürlich in das mittelalterliche Stadtbild von Ribe einfügen. Minimale Anpassungen in den Öfen von Petersen Tegl führten nach und nach zur richtigen Mischung rostroter Farbtöne, Unebenheiten und Produktionsspuren, die mit der Umgebung harmoniert (P35-2016).

Gebäude werden durch die Landschaft lebendig Lene Tranbergs poetische Einstellung zum Ziegelstein ist an vielen Stellen im Magazin zu finden. Wie in der Beschreibung des Pflegeheims Louiselund in Hørsholm, nördlich von

2
01 02 03 04 05 06
1
50.
und

Kopenhagen. Darin beschreibt sie die gelben Ziegel als »Energieströme«, die vom weichen Lehmboden des Moränenfeldes durch jeden einzelnen Ziegel und weiter durch die sich überlagernden Schichten der Fassaden fließen. »Es war uns wichtig, dass die Landschaft durch das Gebäude fließen kann. Dass das Gebäude durch die Landschaft lebendig wird. Wir wollten das Gebäude nicht platzieren, sondern einbinden« (P30-2014).

Verflechtungen

Im Jahr 2009 kamen die Lieblingssteine der Architekten, die roten Ziegel D48 und D49, im schillernden Transvaalbuurt-Viertel von Amsterdam zum Einsatz. Die multikulturelle Begegnungsstätte »Fusion« war der perfekte Ort, um die facettenreichen Farben der gebrannten Erde in einer Fassade zu entfalten, die alle Regeln bricht und eine Hommage an die wilden Ziegel-Eskapaden der Amsterdamer Schule darstellt. »Diese Petersen-Ziegel spiegeln auf wunderbare Weise die Mosaike der muslimischen Ästhetik wider«, sagt Architektin Marlies Rohmer, die die Ziegelei beauftragt hat, die Steine in drei Formaten zu brennen –dänisches Normalformat, Hamburger Format und Flensburger Format (P22-2009). Äußerst raffiniert und ebenso schön in den Kontext eingebettet ist auch die Erweiterung des Museums De Lakenhal im niederländischen Leiden, die unter dem Titel »Interweavings« vorgestellt wurde. Hier wurde ein gelblich-grüner Normalziegel (D190) mit 13 verschiedenen, speziell hergestellten Formziegeln aus demselben Ton ergänzt. »Wir wollten ein Gebäude ohne Ornamente schaffen, das aber in seiner Materialisierung ornamental erscheint«, erläutert Architektin Ninke Happel. »Deshalb haben wir uns für ein Rapportmuster aus Formsteinen entschie-

den, die in einem Winkel von 30 Grad angeordnet sind – dabei hat jeder Ziegel beinahe die Form eines kleinen Hauses« (P42-2020).

Ein Giebel wie ein Feuerwerk aus Stein Das gleiche Gespür für die behutsame Anpassung mit kontrastreichem Mauerwerk zeigt sich auch beim Lübecker Hansemuseum, wo der Architekt Andreas Heller einen stark gesprenkelten Stein im Format eines mittelalterlichen Klostersteins entwickelte. Das markante, kantige Gebäude gipfelt in einem Feuerwerk eines Lübecker Giebelmotivs, bei dem ein speziell angefertigter Formstein reliefartige Muster aus vierblättrigen Kleeblättern bildet (P33-2019).

Zu den Höhepunkten der Ziegelsteinkunst gehört das Rathaus im dänischen Vejen, das zeigt, wie reichhaltig man eine Fassade mit einem einfachen, grauen Standardziegel gestalten kann. Das Haus ist eine wahre Explosion aus Reliefs, Kontrast und Tiefe, schattigen Nischen, eingebettet in eine straffe, kubische Form. »Wir haben uns für das Sägezahnmauerwerk entschieden, weil es unter anderem viele kleine Schlagschatten unter den Steinen erzeugt. So entsteht eine Art Pixelierung in der Farbe des Steins, die die Tiefenwirkung verstärkt und sich im Laufe des Tages verändert«, berichtet Architekt Lars Povlsen von Transform Arkitekter (P44-2021).

Patinierte Ziegel verlangen nach gleichgesinnten Ziegeln

Dass die Ziegel von Petersen überall auf der Welt zuhause sind, sieht man auch auf der anderen Seite des Atlantiks, unter anderem in der New Yorker Skyline, wo die kleinen Ziegelsteine bis zu 160 Meter in die Höhe ragen (P44-2019), sowie in rund 60 Gebäuden, die sich in Brooklyn und Manhattan befinden. Der Grund dafür ist nicht der Preis, sondern vielmehr, dass die Millionen alter, patinierter Ziegelsteine New Yorks einen gleichgesinnten Ziegelstein verlangen, wie es einer der Architekten von Beyer Blinder Belle Architects formuliert hat (P48-2022). Aus demselben Grund haben sich einige der besten Londoner Architekten für Ziegel von Petersen entschieden, was die vielen dezenten Anbauten an Einfamilienhäuser beweisen, die überall in

den Reihenhausvierteln Londons zu finden sind (P45-2021).

Die Vergangenheit interpretieren anstatt sie zu kopieren Ungefähr nach der Hälfte der bisherigen Veröffentlichungen kam die Architektin und Ziegelforscherin Mette Jerl Jensen zu Wort. Damals arbeitete sie noch an ihrer Doktorarbeit zum Thema »Revitalisierung der Ziegelwand«, die von der Kopenhagener Maurergilde gefördert und von Lene Tranberg und Bjørn Nørgaard betreut wurde. Sie warnte vor einem zu einseitigen Fokus auf dünne Schalenwände und schlug vor, die Eigenschaften der Ziegelwand aus einer tieferen, bauphysikalischen Perspektive zu betrachten. Die Feststellungen von Mette Jerl Jensen sind immer noch aktuell, daher möchte ich mit ihren Worten auf zukünftige Entwicklungspotenziale in der Ziegelarchitektur schauen: »Zurückzublicken heißt nicht, die Vergangenheit zu kopieren, sondern sie zu interpretieren. Wir müssen ihre Werte in eine Sprache umwandeln, die in unsere Zeit passt. Das Problem ist jedoch, dass die hervorragenden thermischen Eigenschaften des Ziegelsteins verloren gehen, wenn das Mauerwerk von den tragenden Strukturen des Hauses getrennt wird. Das erstrebenswerte Ziel ist vielmehr eine Ziegelwand als Klimahülle, die in den tragenden Körper des Hauses integriert ist, um ihre klimatischen Eigenschaften zu übertragen« (P21-2008).

01 Bispebjerg Bakke, 2007, Kopenhagen

Idee: Bildhauer Bjørn Nørgaard

Architektonische Gestaltung: Boldsen & Holm Arkitekter

Foto: Torben Eskerod

02Cimbris, 1997, Simrishamn

Künstlerin Ulla Viotti

Foto: Peter Jørgensen

03Kolumba-Museum, 2007, Köln

Architekten: Peter Zumthor

Foto: Anders Sune Berg

04 Schauspielhaus, 2008, Kopenhagen

Architekten: Lundgaard & Tranberg Arkitekter

Foto: Anders Sune Berg

05Skogskyrkogården, Stockholm, 2013

Architekten: Celsing Arkitektkontor

Foto: Ioana Marinescu

06Raum der Stille,

Flughafen Berlin Brandenburg Willy Brandt, 2020

Architekten: Architekten von Gerkan, Marg und Partner

Foto: Marcus Bredt

07 Sorø Kunstmuseum, 2011, Sorø

Architekten: Lundgaard & Tranberg Arkitekter

Foto: Anders Sune Berg

08Kannikegården, 2016, Ribe

Architekten: Lundgaard & Tranberg Arkitekter

Foto: Anders Sune Berg

09Louiselund, 2012, Hørsholm.

Architekten: Lundgaard & Tranberg Arkitekter

Foto: Jens Lindhe

10 Fusion, 2008, Amsterdam

Architekten: Marlies Rohmer Architecture & Urbanism

Foto: Thea van den Heuvel

11 Museum De Lakenhal, 2019, Leiden Happel, Cornelisse, Verhoeven Architekten

Foto: Karin Borghouts

12 Europäisches Hansemuseum, 2015, Lübeck

Architekten: Studio Andreas Heller Architects & Designers

Foto: Anders Sune Berg

13 Rathaus Vejen, 2019

Architekten: Transform Arkitekter, Pluskontoret

Foto: Anders Sune Berg

14 180 East 88th Street, 2021, New York

Architekten: DDG

Foto: Richard Barnes

15 Iffley Road, Anbau, 2018, London

Architekten: Neil Dusheiko

Foto: Tim Crocker

16 505 Pacific Street, 2018, New York

Architekten: Beyer Blinder Belle Architects

Foto: Florian Holzherr

07 08 09 10 11 12 13 14 15 16
3

Ein Dauerentwicklungsprojekt wird 55 Jahre alt

FAMILIENUNTERNEHMEN ÜBERNAHM, BEGANN ER SOFORT DAMIT, MIT NEUEN ZIEGELN ZU EXPERIMENTIEREN UND WEITERE ZIEGEL ZU ENTWICKELN. SO AUCH DIE SERIE DER D-STEINE, DIE EBENSO WIE DIE SPÄTER ENTWORFENEN VON HAND GEFERTIGTEN ZIEGEL IN ALLE WELT EXPORTIERT WIRD. IN DIESER AUSGABE DES MAGAZINS MÖCHTEN WIR AUSSCHLIESSLICH PROJEKTE VORSTELLEN, DIE MIT ZIEGELN DER D-SERIE REALISIERT WURDEN.

Nach dem Tod seines Vaters im Jahr 1969 übernahm Christian A. Petersen im Alter von 28 Jahren Petersen Tegl. Das Unternehmen befindet sich seit 1791 in Familienbesitz und er war in der siebten Generation Eigentümer der Ziegelei, die er heute gemeinsam mit seinen beiden Töchtern Vibeke und Annette Petersen führt.

Seit den 1960er Jahren waren ausschließlich maschinengefertigte rote oder gelbe Ziegel erhältlich. Der neue Eigentümer erkannte allerdings, dass dies nicht die Zukunft sein würde. Also begann er sofort mit einer Reihe von Experimenten, unter anderem mit der Herstellung von besandeten Ziegeln, wie er sie in den Niederlanden kennengelernt hatte. Kurze Zeit später beschloss er, eine weitere Vision zu verwirklichen: Die Herstellung von handgestrichenen Ziegeln mit derselben rustikalen und unregelmäßigen Oberfläche wie man sie von den frühesten Ziegelhäusern kannte. Gemeinsam mit seinen Mitarbeitern entwickelte er neue Maschinen, mit denen man handgestrichene Ziegel herstellen kann und die heute

noch in Betrieb sind. Außerdem experimentierte er mit verschiedenen Farben und Brennungen – das Ergebnis ist die D-Serie, die auf Anhieb – bei Architekten und Bauherren – ein großer Erfolg wurde. Im Lauf der Jahre wurden unter dem Motto »Der Kunde ist König« und in enger Zusammenarbeit mit Architekten und Bauunternehmen neue Produkte entwickelt.

Heute werden die Steine der D-Serie in die ganze Welt exportiert. Die Serie umfasst 33 verschiedene Steine in vielen Farben, die von zartem Gelb über Orange, Rot, Grün, Blau, Grau, Braun bis fast Schwarz reichen.

Diese gemeinsame Arbeit an neuen Produkten bestand in all diesen Jahren und feiert in diesem Jahr ihr 55. Jubiläum. Um das Jahr 2000 blickte Christian A. Petersen noch weiter in die Vergangenheit. Er schaute mehr als 200 Jahre zurück und begann damit, handgefertigte Ziegel in Holzformen herzustellen, die heute wie die D-Steine in die ganze Welt exportiert werden. Aber das ist eine ganz andere Geschichte.

Bei Petersen Tegl wird der Lehm mittels Verfahrensweisen geknetet, geformt und gepresst, die bereits Anwendung fanden, als Ziegel noch von Hand hergestellt wurden. Durch diese Methode erhält der Lehm eine optimale Textur mit Kapillaren und Luftporen, die eine Ausweitung des Wassers bei Frost ermöglichen, ohne dass der Stein dabei beschädigt wird. Daher stellt die Tatsache, dass der Stein Wasser aufnehmen kann, kein Risiko für Frostschäden dar.

Die D-Steine werden mit Maschinen hergestellt, die in der Ziegelei dazu entwickelt wurden, die Herstellung von handgefertigten Ziegeln zu imitieren. Dabei wird das Aussehen des Steins nicht künstlich herbeigeführt, sondern ist eine natürliche Folge des Herstellungsverfahrens.

Nach dem Brand können alle vier Seiten der Petersen Ziegel für die Fassade verwendet werden, da Oberfläche und Farbenspiel wassergestrichener Ziegel gleichwertig sind – ein praktischer und wirtschaftlicher Vorteil beim Mauern.

Text: Ida Præstegaard

Foto: Anders Sune Berg

4
D-Steine: DNF

Zahlreiche historische rote Backsteingebäude in Kopenhagens nördlichen Hafengebieten waren Anlass, das neue Gebäude ebenfalls mit Ziegeln zu verkleiden. Die Lagerhäuser und ehemaligen Hafenverwaltungsgebäude, wie zum Beispiel an der Århusgade 126, werden heute von verschiedenen Unternehmen genutzt. Das monumentale Svanemølleværk wurde 1953 eröffnet und ist ein Wahrzeichen des Nordhafens. Das Kraftwerk wurde 2023 geschlossen. Derzeit werden die Gebäude umgebaut, um in neuer Funktion genutzt zu werden. Das Lagerhaus 48 aus den 1920er Jahren wurde 2014 zu Ausstellungsräumen und für Design- und Architekturbüros umgebaut.

Nordhavn, ein ehemaliges Hafenviertel der dänischen Hauptstadt Kopenhagen, liegt nördlich des historischen Zentrums. Der Startschuss für die Umgestaltung dieses Gebiets war ein 2008 durchgeführter Ideenwettbewerb, aus dem eine Vision für die Schaffung eines nachhaltigen Viertels der Zukunft hervorging. Ausgangspunkt waren die vorhandenen Merkmale des Gebiets: das Wasser des Hafens, die Kanäle und die Industriearchitektur sowie die Ziegelsteingebäude der angrenzenden Viertel. Gleichzeitig sollten Grünflächen sowie Anschlüsse an das Radwegenetz und den öffentlichen Nahverkehr geschaffen werden.

Abschluss der Erneuerung von Kopenhagens

Hafenviertel »Nordhavn«

Der erste Teil des Entwicklungsplans umfasste die Neugestaltung des Viertels rund um die Straße Århusgade, das sich zwischen den Hafenbecken Nordhavn und Kronløb wie eine Mole ins Meer erstreckt. Heute ist das Viertel fast vollständig mit Neu- und Umbauten erneuert und das Zuhause von fast 4000 Einwohnern.

Die Bebauung im Nordhafen lässt sich in zwei Kategorien aufteilen. Die erste Kategorie umfasst einige sehr große Gebäude mit einer Höhe von bis zu 60 Metern, die im Dialog mit dem industriellen Maßstab des Hafens stehen. Viele dieser Gebäude sind umgebaute Silos. Die zweite Kategorie, zu der der Großteil der Gebäude zählt, orientiert sich an traditionellen drei- bis sechsstöckigen Häusern, die urbane Räume für die Menschen schaffen und häufig Fassaden mit starker Strukturwirkung, beispielsweise aus Ziegelstein, aufweisen.

Petersen Tegl hat Ziegelsteine für mehrere Projekte im Nordhafen geliefert, die auf den nächsten Seiten vorgestellt werden: das Gerichtsgebäude des Østre Landsret und zwei Wohnhäuser auf der Halbinsel Nordø, alle entworfen von Henning Larsen, sowie das von Arkitema entworfene Bürogebäude Orienthuset. Petersen Tegl hat bereits Ziegel für weitere Projekte im Nordhafen geliefert, die wir schon 2018 im Magazin Nr. 38 vorgestellt haben.

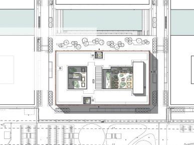
Das Århusgade-Viertel ist der erste Teil des Nordhafens, der umgestaltet wurde, und ist heute fast vollständig erschlossen. Das Viertel liegt am großen Nordhavn-Becken und erstreckt sich wie ein Pier in den Öresund. Das Foto zeigt das Orient-Haus, das Landgericht, Nordø und Fortkaj, die in diesem Magazin vorgestellt werden.

Das Gebäude wurde als Karree mit Gebäudeteilen in unterschiedlichen Höhen und einem begrünten Innenhof entworfen.

Die von Vilhelm Lauritzen Architects und COBE entworfene Wohnanlage Fortkaj in der Helsinkigade umfasst 81 Wohnungen und wurde 2021 fertiggestellt. Für die Fassaden wurde D33 DNF verwendet, entweder als blanke Wand oder mit Aussparungen. Rote Fugen verleihen dem Gebäude sein charakteristisches, homogenes Aussehen. Nach Angaben der Architekten soll Fortkaj eine Neuinterpretation der klassischen Moderne der 1930er Jahre sein, inspiriert durch den Architekten Kay Fisker, der den dänischen Wohnungsbau maßgeblich beeinflusst hat.

Fenster und Türen aus rot lackiertem Metall werden von vorspringenden, weiß gestrichenen Betonrahmen eingerahmt, an die das Mauerwerk anschlägt.

Fortkaj

Rote Ziegelsteine in zwei verschiedenen Farbtönen, D23 und D35, bringen die beiden Wohngebäude auf Nordø zum Leuchten und bilden einen Kontrast zum hohen Bürogebäude aus Glas und verzinktem Stahl an der äußeren Spitze der Insel. Der Ziegelstein stellt eine Verbindung zum Århusgade-Viertel her, dessen Kennzeichen rote Fassaden sind, die ihrerseits Bezug zu den älteren Gebäuden des Viertels wie dem Kraftwerk Svanemølleværket nehmen.

Zwischen Himmel und Meer

IN ZWEI WOHNGEBÄUDEN AUF DER INSEL NORDØ IM NEUEN KOPENHAGENER STADTTEIL NORDHAVN TREFFEN DIE WEITE WELT UND DAS GREIFBARE DETAIL AUFEINANDER. DIE ROTEN FARBEN DER FASSADEN SCHAFFEN EINE EINHEIT, WÄHREND DIE GEMAUERTEN RELIEFS, NISCHEN UND ERKER DAS WECHSELNDE LICHT UND DIE WASSERREFLEXE EINFANGEN.

Östlich des Århusgade-Viertels in Nordhavn, nur getrennt durch einen Kanal, liegt die Insel Nordø mit einer Grundfläche von 23.000 m², eingeteilt in fünf Baufelder. Wie eine markante Landmarke erhebt sich an der äußersten Spitze der Insel ein 60 Meter hohes, siloartiges Bürogebäude. Die Fassade des Gebäudes besteht aus gewinkelten Elementen aus Glas und verzinktem Stahl. Eine rechteckige Fläche zwischen dem Bürogebäude und dem Kanal ist in vier Baufelder unterteilt, die jeweils durch Straßen und kleinere Bauplätze getrennt sind. Das Architekturbüro Henning Larsen hat die vier Gebäude auf den Baufeldern entworfen: im Norden ein Hotel mit Ziegelfassade und ein Bürogebäude aus Cortenstahl, im Süden zwei Wohngebäude mit Ziegelfassaden von Petersen Tegl. Bei allen vier Gebäuden wiederholen sich die rötlichen Farbtöne und fügen sich so in das übrige Århusgade-Viertel ein, in dem rote Fassaden ein wiederkehrendes Merkmal sind. In den zwei Wohngebäuden auf Nordø befinden sich insgesamt 115 Wohnungen in unterschiedlichen Größen, davon mehrere Duplex-Wohnungen. Die Bebauung im Westen bildet ein Karree, während das Gebäude im Osten eine längliche Form hat. Die Fassaden aus dem rot-orangenen

D23 bzw. dem rot-braunen D35 zeichnen sich durch ihre jeweils eigenen roten Farbtöne aus. Fenster, Balustraden und farbige Fugen sind auf die Farbe der Ziegel in jedem Haus abgestimmt. Größere Mauerflächen, zum Beispiel neben den Fenstern, sind als gemustertes Mauerwerk in englischem Verband ausgeführt, wobei die Läufer vom Rest der Fassadenebene zurückgesetzt sind. Die Reliefs betonen so die Struktur der Gebäude in Form von Pfeilern und Decken.

»Aus der Ferne betrachtet, bilden die Gebäude im Gegensatz zum Silo an der Landspitze eine einheitliche, feste Basis«, berichtet Eva Ravnborg, Architektin und Partnerin bei Henning Larsen. »Nähert man sich, wirken die vier Grundstücke wie eine Familie aus rötlichen Nuancen. Aus nächster Nähe erkennt man Cortenstahl und unterschiedliche Ziegel mit kleinen Vertiefungen im Mauerwerk, die ein Gefühl von Nähe und Textur verleihen.«

Die zahlreichen Vorsprünge und Nischen in den Fassaden, die das sich stets wandelnde Licht des Meeres einfangen, verstärken die Wirkung der Massivität der Gebäude. Im westlichsten Gebäude befinden sich die breiten Balkone zwischen Erkern, die Schutz vor den Meereswinden bieten. Entlang des

Kanals, der Nordø vom Århusgade-Viertel trennt, wirkt das Gebäude durch das Zusammenspiel von Balkonen und Erkern wie eine kleine Ansammlung von hohen, schmalen Grachtenhäusern, wie man sie zum Beispiel in den historischen Vierteln von Amsterdam oder Hamburg sieht. Noch deutlicher wird dieser Eindruck im östlichen Gebäude, wo Mauerflächen, Pfeiler und Träger aus Ziegelsteinen in der Fassade zum Hafenbecken hin ins Auge fallen. Beide Gebäude werden stufenweise flacher und fallen zu einem kleinen Platz hin ab, auf den durch diese Bauweise viel Sonnenlicht fällt. »Nordø verfügt über eine fantastische Lage zwischen Himmel und Meer«, ergänzt Eva Ravnborg. »Wir haben uns bemüht, die Weite des Himmels und alle Spiegelungen zu berücksichtigen. Das Relief und die Aussparungen im Mauerwerk unterstützen diese Wirkung, da die Wahrnehmung der Gebäude durch den Himmel stark verändert wird. Bei hellem Sonnenlicht werfen sie markante Schatten. An anderen Tagen ist das Licht diffuser, was ebenfalls sehr poetisch ist.«

Das westlichste Gebäude aus D23 bildet einen Blockrand, der zu einem kleinen Platz hin abfällt. Die Balkone befinden sich zwischen Erkern und Pfeilern, um sie vor Wind zu schützen.

Zwei Wohngebäude mit 115 Wohnungen, Nordø, Kopenhagen

Bauherr: PFA

Architekt: Henning Larsen

Generalunternehmer: Pihl & Søn

Ingenieur: Rambøll

Fertiggestellt: 2023

Ziegel: D23 DNF und D35 DNF

Text: Martin Søberg, Architekturhistoriker, Ph. D.

Foto: Anders Sune Berg

6

Das Sonnenlicht spiegelt sich in den Fenstern des gegenüberliegenden Gebäudes und in den Fassaden, in D35 ausgeführt, was die Reliefwirkung des gemusterten Mauerwerks betont.

Größere Bereiche des Ziegelmauerwerks im englischen Verband sorgen für Abwechslung in der Fassade, und tragen dazu bei, das Tragwerk des Gebäudes als deutliches tektonisches Element zu betonen. Die Fenster, Geländer und Fugen sind farblich auf die Ziegelsteine abgestimmt.

Zwischen dem Kanal und dem siloähnlichen Bürohaus befinden sich vier Bauplätze. Die beiden Wohnhäuser, die in diesem Artikel vorgestellt werden, bilden einen Blockrand und einen Riegel, wie im unteren Teil des Bildes zu sehen ist.

Ein Kanal mit Anlegestellen für kleine Boote und eine Bepflanzung mit Kiefern trennen Nordø vom Århusgade-Viertel. Von hier aus betrachtet, erscheinen die Gebäude als eine Gruppe klassischer, hoher und schmaler Grachtenhäuser.

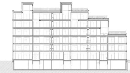
Schnitt westliches Wohnhaus Schnitt östliches Wohnhaus
7

Unauffälliges Bürogebäude

DAS ORIENT-HAUS ÜBERZEUGT MIT LEISEN TÖNEN. GANZ IM STIL DER DÄNISCHEN TRADITION FÜR MASSIVE, ABER SCHLICHTE ZIEGELBAUWEISE FÜGT ES SICH MIT PRÄZISEN STRUKTURELLEN EFFEKTEN IN DEN NEUEN STADTTEIL VON KOPENHAGEN EIN, DER DERZEIT AUF DER INSEL TRÆLASTHOLMEN IM NORDHAFEN ENTSTEHT.

Viele moderne Gebäude beeindrucken aus der Ferne mit aufsehenerregenden Formen. Wenn man sich ihnen jedoch nähert, wirken die Flächen beliebig und bieten kein materielles Erlebnis. Das Orient-Haus widersetzt sich diesem Trend. Auf den ersten Blick ist das Gebäude unauffällig, bei genauerer Betrachtung allerdings, und wenn man sich ihm nähert, offenbart es sorgfältig überlegte Details und eine komplexe Materialität. Das 14.800 m² große Bürogebäude liegt unmittelbar an der Hochbahn-Station Orientkaj der Kopenhagener Metro. Auf der anderen Seite der Bahnlinie befindet sich ein parkähnlicher Platz, dahinter schließt sich das Orient-Becken an, ein großes Hafenbecken, das in den Öresund mündet. Von der östlichen Seite des Orient-Hauses bietet sich der Ausblick über das Wasser, nach Westen schaut man auf den Kanal, der die Insel Trælastholmen durchtrennt.

Das Orient-Haus fügt sich lautlos in das dichte Stadtbild ein, das derzeit im Nordhafen entsteht. Die Straße führt zur Hochbahnlinie der Metro und weiter hinaus zum Orientbecken und Öresund.

Querschnitt

Lageplan

Das Orient-Haus hat sechs Stockwerke und ist unterkellert. Im Erdgeschoss befinden sich das Foyer, Konferenzräume, eine Kantine sowie an drei Ecken des Gebäudes Diensträume. Auf den weiteren Stockwerken liegen Büroräume mit flexibler Aufteilung. Das bedeutet, dass jede Etage unterschiedlich aufgeteilt werden kann. Zwei Innenhöfe höhlen den großen rechteckigen Baukörper aus und lassen Tageslicht in die Büros einfallen, während sich ein atriumartiges Foyer in der Mitte des Gebäudes über alle Stockwerke erstreckt.

Die Fassaden sind mit hellen, gelben Ziegeln verkleidet, die dem Gebäude zusammen mit seiner schlichten Form einen robusten Charakter verleihen. Das Erdgeschoss wurde vor Ort gemauert, während die übrigen Fassaden aus sechs Meter breiten Fertigteilen mit jeweils zwei Fensterfeldern bestehen. Ein Gitter aus Ziegeln, die ein wenig hervorgezogen

sind, markiert jeweils ein Element. Dieses Netz verleiht den Fassaden ein dezentes Relief, und die von ihm geworfenen Schatten verbergen die Lüftungsfugen im Mauerwerk. Einzelne, sich über zwei Stockwerke erstreckende Arkaden unterbrechen die strikte Form der Fassaden. »Wir haben uns von alten Lagerhäusern inspirieren lassen, deren große Öffnungen dazu dienten, Waren hinein und heraus zu bringen«, erklärt Kim Risager, Market Director und Partner bei Arkitema.

Die Wandfüllungen in den Rahmen bestehen aus einem Halbsteinverband aus D71-Ziegeln, die mit den hellen Fugen einen ruhigen Ausdruck erzeugen. Die Fenster in jedem Element sind seitlich aus der Mitte gerückt und tief in die Mauer eingelassen, dabei jedoch durch zwei Einschnitte in verschiedenen Winkeln fest mit der Oberfläche verbunden. Eine tiefe Fensterbank aus Kolumba K71 erstreckt sich über die gesamte

Die Ziegel verleihen der strengen Fassadenkomposition Textur und Wärme. Die vielen Vorsprünge und schrägen Kanten in verschiedenen Winkeln machen die Fassade zu einem Relief, das das Licht einfängt und subtile Schatteneffekte erzeugt.

8

Die Fassaden bestehen aus sich wiederholenden Elementen, die an einigen Stellen durch sich über zwei Etagen erstreckende Loggien unterbrochen werden. Die schlichten hellgelben Ziegeln verleihen dem Gebäude einen robusten Charakter, der an die traditionellen Ziegelhäuser in Kopenhagens Hafengebieten erinnert.

Breite eines Elements. Kim Risager sagt dazu: »Der schöne Stein hat eine großartige Textur, Haptik und ein schönes Farbenspiel. Und die Mauersteine patinieren wunderbar mit ihrer Umgebung. Auf diese Weise setzt das Orient-Haus die Tradition der bescheidenen, soliden Ziegelsteinhäuser fort.« Für das komplizierte Mauerwerk mussten die Ziegel mit bis zu 96 verschiedenen Schnitten in einem einzigen Fassadenelement zugeschnitten werden. Diese Arbeit fand in der Fabrik des Elementeherstellers CRH Beton statt. Kim Risager erklärt: »Bei traditionellen Maurerarbeiten steht der Maurer auf einem Gerüst und muss alles in vertikaler Position ausführen. Kommen jedoch Ziegelwandelemente zum Einsatz, kann man mehr mit den Steinen spielen, weil sie im Liegen verlegt werden und erst dann aufgerichtet werden, wenn der Mörtel getrocknet ist. Das erinnert an die Arbeit eines Konditors.«

Die Fassadenelemente wurden im Fertigteilwerk CRH Beton hergestellt und in horizontaler Lage gemauert. Die Ziegel der einzelnen Elemente haben bis zu 96 verschiedene Schnittformen.

Orient-Haus, Kopenhagen

Bauherr: AP Pension Ejendomme

Architekt: Arkitema

Landschaftsarchitekt: Arkitema

Generalunternehmer: 5E Byg

Ingenieur: Niras

Bauelemente: CRH Concrete

Fertiggestellt: 2023

Ziegel: D71 DNF, K71

Text: Martin Søberg, Architekturhistoriker, Ph. D.

Foto: Anders Sune Berg

»Bei traditionellen Maurerarbeiten steht der Maurer auf einem Gerüst und muss alles in vertikaler Position ausführen. Kommen jedoch Ziegelelemente zum Einsatz, kann man mehr mit den Steinen spielen, weil sie im Liegen verlegt werden und erst dann aufgerichtet werden, wenn der Mörtel getrocknet ist. Das erinnert an die Arbeit eines Konditors.« Kim Risager, Market Director und Partner bei Arkitema

Die vorgefertigten Fassadenelemente sind sechs Meter breit und umfassen jeweils zwei Fensterfelder. Ein vorstehender Rahmen markiert jedes Feld und dient auch dazu, die Dehnungsfugen zu verbergen. Die Fensterbänke sind aus Kolumba, K71.

12 5988 12 244 5980 12 588 660 1392 228 12 108 12 588 660 1392 228 12 108 12 160° 110° 135° 135° 160° 110° 135° 135°40 0 11 40 0 11 12 228 12 228 12 210 120 12 207 120 12 228 12 228 12 90 12 228 12 87 10 4 12 10 8 24 0 29 29 60 390 614 1392 1608 1392 194 390 228 12 6 0 1 2
Schnitt eines Fassadenelements
Waagerechter
9

Lageplan

Appellationsgericht (Østre Landsret), Kopenhagen

Bauherrschaft: Dänisches Bauministerium

Architekt und Landschaftsarchitekt: Henning Larsen

PPP-Steuerung: Velliv

Bauunternehmung: A. Enggaard

Ingenieur: Norconsult

Fertigstellung: 2022

Ziegel: D91 DNF

Text: Martin Søberg, Architekturhistoriker, Ph. D.

Foto: Anders Sune Berg

Das Landgericht liegt im dichtbebauten Teil auf Trælastholmen im Nordhafen. Im Hintergrund leuchten die roten Ziegel des Kraftwerks Svanemølleværket.

Die drei unteren Stockwerke des Gerichtsgebäudes sind für die Öffentlichkeit zugänglich und enthalten die Gerichtssäle, während sich in den beiden oberen Stockwerken Büros, eine Bibliothek und andere Einrichtungen für die Richter befinden.

Das gestreifte Mauerwerk der Fassade nimmt die Bewegung des Besuchers zum Haupteingang am Østre Landsrets Plads auf. Das waagerechte Relief findet sich in den schrägen Laibungen der Fenster wieder.

»Der helle D91 ist ein unglaublich schöner Stein und die Qualität des Steins ist unvergänglich. Es kann sein, dass man in 50 Jahren mit anderen Augen auf das Gebäude blickt, aber die Ziegel werden nichts von ihrer Wirkung verlieren.«

Merete Alder, Architektin, Henning Larsen

10

Das Gericht erscheint als robustes Gebäude, das Stabilität signalisiert. Die hohen Pfeiler am Eingang sind eine klassische Anspielung auf die traditionelle Gerichtsgebäudearchitektur.

Ernsthaftigkeit und Offenheit

EINGEKLEIDET IN HELLGRAUE ZIEGEL, STRAHLT DAS ØSTRE LANDSRET, DAS APPELLATIONSGERICHT FÜR OSTDÄNEMARK, SERIOSITÄT UND HALTUNG AUS: EIN WÜRDIGER RAHMEN FÜR DIE MACHT DES GERICHTS UND GROSSE GEFÜHLE. DAS GEBÄUDE ÖFFNET SICH DER ÖFFENTLICHKEIT UND FÄNGT GLEICHZEITIG DAS REFLEKTIERENDE LICHT EIN.

Das Østre Landsret, die Berufungsinstanz für die dänischen Amtsgerichte, war früher in einem Barockpalast aus dem 18. Jahrhundert in der Bredgade im Herzen Kopenhagens beheimatet. Ein Gebäude, das ursprünglich als Opernhaus gebaut wurde, später aber als Kaserne, Marineakademie und provisorisches Parlament genutzt wurde. Das alte, etwas verwinkelte Gebäude erfüllte jedoch nicht die Anforderungen eines modernen Gerichtsgebäudes, in dem es keine zufälligen Begegnungen zwischen Richtern und Angeklagten geben darf und in dem die Sicherheit gewährleistet sein muss.

Die neue Heimat des Østre Landsret, entworfen vom Architekturbüro Henning Larsen, befindet sich auf der Halbinsel Trælastholmen im Nordhafen. Hier prägen die vielen erhaltenen Hafengebäude noch immer das Bild, nicht zuletzt wegen ihrer großen, industriellen Ausmaße und soliden Materialien. Gleichermaßen strahlt das Gerichtsgebäude Robustheit aus. Seine strukturierten Ziegelfassaden verweisen dabei auf die Fassaden der umliegenden historischen Gebäude.

»Das Østre Landsret soll Qualität und Souveränität ausstrahlen, eine Institution, der man vertrauen kann. Gleichzeitig soll das Gebäude offen und einladend sein, die Menschen sollen es gerne betreten und sich dort sicher fühlen«, erklärt Architektin Merete Alder vom Architekturbüro Henning Larsen. Viele Menschen denken bei einem Gerichtsgebäude an ein monumentales Gebäude mit großen Säulen oder Pilastern wie das Palais in der Bredgade: »Unser Ansatz waren der Standort und die Wiedererkennbarkeit, sowohl in Bezug auf das Säulenmotiv mit den markanten Pfeilern im Eingangsbereich zum Vorplatz hin als auch in Bezug auf die Materialität. In der Bredgade hatten wir ein schönes Muster aus Ziegelsteinen, und nicht weit vom neuen Standort entfernt befindet sich Svanemølleværket, ein großes, kubisches Ziegelsteingebäude.«

Das Gebäude ist der Arbeitsplatz für Richter und andere Mitarbeiter, gleichzeitig ist es ein öffentliches Gebäude und Teil der dänischen Gerichte, der dritten Macht im Staat. Diese Doppelfunktion bestimmte die Aufteilung der einzelnen Etagen. In den beiden oberen Stockwerken befinden sich Büros, eine Bibliothek, Sitzungsräume und die Kantine. Die unteren drei Stockwerke sind hingegen für die Öffentlichkeit zugänglich. Besucher nähern sich dem Gebäude über den grünen Platz vor dem Eingang und betreten eine helle Lobby. Die Aussicht auf den Hafen und einen Kanal, der das Sonnenlicht reflektiert, stellt eine Verbindung zum nahegelegenen Öresund her. Parallel zum Kanal befindet sich ein öffentlich zugängliches Café. Von der Lobby aus gelangt man in ein hohes Atrium mit Zugang zu unterschiedlich großen Gerichtssälen, von denen der größte 323 m² und der kleinste etwa 100 m² groß ist. Das Atrium und die Säle sind über Treppen und breite Balkone miteinander verbunden, die auch als Wartebereiche fungieren und diskrete vertrauliche Gespräche ermöglichen.

Entlang der Fassade verlaufen Korridore, sodass sich Richter und andere Mitarbeiter unauffällig zwischen den Gerichtssälen bewegen können, ohne mit der Öffentlichkeit in Kontakt zu kommen. Die Korridore sind über Treppen- und Aufzugskerne mit den beiden oberen Stockwerken verbunden und bieten zudem Zugang zu den Beratungsräumen für Richter und Schöffen. Darüber hinaus dienen die Korridore auch der Beleuchtung, da das Tageslicht durch große Fenster an der Fassade in die Korridore und weiter in die Gerichtssäle fällt, ohne dass man von außen in die Gerichtssäle hineinsehen kann. Das große Volumen des Gebäudes wird an einigen Stellen durch Terrassen unterbrochen, auf denen man durchatmen und den Blick auf den Hafen genießen kann.

»Das Gebäude ist wie ein Block, ein Objekt aus Ziegelsteinen«, sagt Merete Alder. »Durchgehende, konstruktive Linien in der Fassade von oben nach unten strahlen Ruhe aus, und dort, wo man das Gebäude betritt, zieht sich die Fassade einladend zurück. Wir haben damit gespielt, wie sehr wir es öffnen und damit ein Spiel in der Fassade geschaffen.« Die Fenster sind im Verhältnis zur Fassadenebene zurückgesetzt, als hätte man sie aus dem Block herausgeschnitten. Die schrägen Schnittflächen wurden mithilfe von gestreiften Ziegelreliefs hervorgehoben, bei denen jede zweite Schicht um wenige Zentimeter versetzt wurde. Die Reliefs fangen die wechselnden Lichtverhältnisse ein und werfen schöne Schatten. »Der Ziegelstein ist tief mit diesem Ort verwurzelt, zudem hat ein Ziegelsteinbau eine ganz besondere Aura«, sagt Merete Alder. »Der helle D91 ist ein unglaublich schöner Stein und die Qualität des Steins ist unvergänglich. Es kann sein, dass man in 50 Jahren mit anderen Augen auf das Gebäude blickt, aber die Ziegel werden nichts von ihrer Wirkung verlieren.«

Die Fenster sind von der Fassadenebene zurückgesetzt, als wären die Öffnungen aus dem Ziegelstein herausgeschnitten worden. Spiegelungen im Wasser des Kanals, der Trælastholmen durchschneidet, beleben die Fassade und unterstreichen die Reliefs.

11
Blick über das Wasser nach Norden zur Metro und dem Orient-Haus. Im Hintergrund das Landgericht.

Ein Mauerwerk als Bindeglied der Stadt

IM HERZEN VON KOPENHAGEN HABEN LUNDGAARD & TRANBERG ARKITEKTEN ZWEI STADTTEILE DURCH DIE VERWANDLUNG VON MASSE UND RAUM SOWIE MEISTERHAFTE DETAILARBEIT MITEINANDER VERBUNDEN.

Das dänische Architekturbüro Lundgaard & Tranberg ist durch den Einsatz neuer, fortschrittlicher Methoden für den Bau skulpturaler Gebäude und das Anlegen öffentlicher Räume, die wie natürliche Landschaften wirken, weltweit bekannt geworden. Berühmte Beispiele sind die Axel Towers und SEB Bank & Pension. Im Entwurf für die neue Zentrale von Danske Bank A/S setzt sich diese Handschrift fort. Doch hier haben die Architekten ein charakteristisches, vorindustrielles Material verwendet – Ziegel von Petersen Tegl – um eine seit langem bestehende Lücke im Kopenhagener Stadtgefüge zwischen dem historischen Stadtzentrum und dem Industriegebiet hinter dem Hauptbahnhof zu schließen. Anstatt die Fassaden der historischen Ziegelsteingebäude entlang der Bernstorffsgade, der Verkehrsader, die die beiden Stadtteile trennt, zu imitieren, haben die Architekten abstrakte Kompositionen aus Masse und Räumlichkeit geschaffen, die die Proportionen, das Material und die zahlreichen Ziegelsteindetails der historischen Gebäude aufgreifen. Bei dem Gebäude mit einem eindeutig zeitgenössischen Charakter haben sie auf diese Weise Kopenhagens traditionelles Bebauungsmuster von geschlossenen Blockrändern weitergeführt.

Mit der Idee einer guten Übereinkunft haben die Architekten die Zentrale von Danske Bank in zwei Blöcke unterteilt, die jeweils eine eigene Funktion haben: Management und Finanzhandel. Darin spiegelt sich auch die Breite der älteren Gebäude auf der anderen Straßenseite. In den Öffnungen zwischen den beiden Gebäuden und der angrenzenden alten Hauptpost von 1914, die heute als Hotel genutzt wird, führen Stufen auf höher gelegene Stadträume, die den Ausblick auf die Bernstorffsgade gewähren. In beiden Gebäuden brechen ein- oder doppelgeschossige Glaswände entlang der Straßen, Plätze und des Plateaus den Eindruck eines geschlossenen Raumes. Im oberen Bereich befinden sich vielfältige Öffnungen mit Aluminiumrahmenfenstern in der Ziegelsteinfassade, die die Struktur des Gebäudes widerspiegeln, die sich zudem durch doppelte Betonstützen entlang des Gehwegs kennzeichnet. Während das relativ niedrige Geschäftsgebäude in der Häuserzeile eher unspektakulär erscheint, nimmt das höhere Verwaltungsgebäude ein markantes Eckgrundstück ein und spielt eine symbolische Rolle in dem Komplex, die architektonisch durch sorgfältige Details hervorgehoben wird. Unmittelbar über den Glasfassaden der Geschäfte wer-

den die Stützen zwischen den Fensteröffnungen von vorspringenden Ziegelsteinpilastern eingerahmt, die mit den Stützenpaaren auf Straßenniveau korrespondieren und auf den historischen Baustil einer Beletage verweisen. Im Verwaltungsgebäude werden zusätzliche Pilaster in unregelmäßigen Abständen über den Fenstern fortgesetzt. Dies erinnert ebenfalls an eine traditionelle Beletage und unterstreicht den bedeutenden Status des Gebäudes. An ausgewählten Stellen der beiden Gebäude setzen sich die vorspringenden Pilaster bis zum Bürgersteig fort und erzeugen so einen Effekt von Kohärenz und Vielfalt, der im städtischen Raum unerlässlich ist. Weiter oben an den Fassaden werden die Fensteröffnungen durch dekorative Stützen geteilt, die in synkopischen Rhythmen frei angeordnet sind – wie lose Noten auf einem Notenblatt. Im obersten Teil des Verwaltungsgebäudes verstärkt die Kombination aus schmalen Öffnungen und dekorativen Pfeilern das visuelle Gewicht der oberen Stockwerke und erinnert so an historische Ziegelsteinfassaden und unterstreicht die nichttragende Rolle des Mauerwerks. Bei genauerem Hinsehen erkennt man strukturierte Oberflächen, die an traditionelles Mauerwerk erinnern. Gemeinsam mit

Lageplan Schnitt durch das Haupt- und Finanzhandelsgebäude
12
Mit dem neuen Komplex sind Kompositionen geschaffen, die gleichermaßen zeitgemäß, abstrakt und schlicht sind, gleichzeitig aber in Bezug auf Maßstab, Materialien und Details mit den Gebäuden aus dem 20. Jahrhundert.

Die gesamte Fassade ist mit roten Ziegeln verkleidet, einschließlich der horizontalen Brüstungsbänder, der vertikalen Pfeiler im Abstand von 6 Metern und der sekundären vertikalen Pfosten. Die Hauptproportionierung wird durch ein Rahmenmotiv aus dunkelbraunem, anodisiertem Aluminium, das jeweils bis zu drei Stockwerke überspannt, weiter unterteilt.

Der Haupteingang in der nördlichen Ecke des Verwaltungsgebäudes führt in ein beeindruckendes Atrium, von dem aus man über eine breite Treppe nach oben gelangt. Durch runde Oberlichter in verschiedenen Größen fällt Tageslicht in den Raum.

Zwischen den beiden Gebäuden an der Bernstorffsgade wurde ein keilförmiger öffentlicher Raum geschaffen. Eine Treppe führt Besucher auf ein Plateau und zu einem Platz, der noch in diesem Jahr mit Pflanzen, Bänken und Tischen ausgestattet werden soll.

Unmittelbar über den Glasfassaden des Erdgeschosses werden die Wandstücke zwischen den Fensteröffnungen von Pfeilern in der Breite eines Spezialsteins gerahmt, die auf schweren, kastenbrotförmigen Spezialsteinen stehen. Alle Aussenwände bestehen aus Mauerwerk im schleppenden Läuferverband mit Halb- und Viertelsteinversprüngen. Dabei wurde das Mauerwerk, das ausschließlich aus Spezialsteinen besteht, in einem Arbeitsgang errichtet. Die Fugen sind um 12 mm zurückgezogen.

Die Ecken werden mit einer Ziegelaussparung mit einem Rücksprung in der Fassade von 228 mm (1 Stein) ausgeführt. Nur eine der 11 Ecken des Gebäudes weist einen Winkel von 90 Grad auf, weshalb die Ziegelei 10 spezielle Eckziegel in unterschiedlichen Winkeln herstellte.

»Das Gebäude von Lundgaard & Tranberg an der Bernstorffsgade erinnert uns daran, dass Ziegel ein grundlegendes und zeitloses Material sind, das sich an verschiedene Projekte anpassen und in jeder Sprache eine architektonische Poesie vermitteln kann.« Michael Sheridan, Dr. arch und Autor

Die beiden Gebäude des neuen Hauptsitzes der Danske Bank fügen sich harmonisch in die umgebende Bebauung ein, hierunter die benachbarte, 2010 eingeweihte Zentrale der SEB, die ebenfalls von Lundgaard & Tranberg entworfen wurde.

Die Kunst, schwieriges einfach aussehen zu lassen

MICHAEL KVIST, ARCHITEKT UND BÜROPARTNER, UND MORTEN SMITH SØRENSEN, BAUINGENIEUR, LUNDGAARD & TRANBERG, ÜBER DIE HERAUSFORDERUNG BEI DER GESTALTUNG DES MAUERWERKS AN DER NEUEN ZENTRALE DER DANSKE BANK IN KOPENHAGEN.

Die Aufgabe

Die Zentrale der Danske Bank liegt am Rand der Überbauung »Postbyen« (Post-Stadt). Sie schafft dort einen Übergang zu den alten, klassischen Gebäudeblöcken aus Ziegelstein, die das Zentrum von Kopenhagen dominieren. Daher stand schnell fest, dass Ton und Ziegel das Material und die Merkmale des neuen Domizils sein würden. Bei Danske Bank sah man Ziegel als historisches Fundament und eine Möglichkeit, sich fest mit der Stadt zu verbinden. Darüber hinaus vermittelt die Fassade aus Ziegelsteinen Solidität und Glaubwürdigkeit.

Der Stein

Unser Ziel war es, ein Gebäude zu entwerfen, das zeitgemäß und eigenständig ist, gleichzeitig aber auch in die Vergangenheit weist. Einmal mehr war die Wahl des Steins von großer Bedeutung. Die Ziegel von Petersen haben eine besondere Taktilität und eine eigene Patina. So erhält das neue Mauerwerk einen zeitlosen Ausdruck.

Morten Smith und Michael Kvist arbeiteten während des gesamten Prozesses der Gestaltung der vielen komplizierten Ziegeldetails und der Herstellung der Spezialziegel sehr eng mit Torben Schmidt von Petersen Tegl zusammen.

14

Petersen Tegl wurden zahlreiche Spezialsteine entwickelt, und es wurde ein besonderer Verband mit eingerückten Fugen verwendet, der den einzelnen Stein erkennen lässt und so für ein lebendiges und sich veränderndes Schattenspiel sorgt. Wenn die Fassaden in der Witterung altern und die Fugen nachdunkeln, werden die scharfen Kanten allmählich weicher und die Gebäude erhalten eine Patina der Beständigkeit. Durch die Einbeziehung städtebaulicher Ideen in die Gestaltung der neuen Zentrale von Danske Bank ist es Lundgaard & Tranberg gelungen, private Interessen mit der Wahrnehmung des Gebäudes durch die Öffentlichkeit in Einklang zu bringen. Dieser Einklang konnte nur durch das präzise Mauerwerk entstehen, das abhängig davon, aus welcher Entfernung man es betrachtet, zwei verschiedene Rollen einnimmt: urbane Leinwand und texturierte Oberfläche. In diesem Sinn knüpft die neue Zentrale an historische Traditionen des Städtebaus an, indem sie sowohl eine symbolische als auch eine sensorische Rolle spielt, während die abstrakten Fassaden den radikalen Wandel der Technik und der Ästhetik in den vergangenen Jahrhunderten widerspiegeln. Auf diese Weise erinnert uns das Gebäude von Lundgaard & Tranberg an der Bernstorffsgade daran, dass Ziegel ein grundlegendes und zeitloses Material sind, das sich an verschiedene Projekte anpassen und in jeder Sprache eine architektonische Poesie vermitteln kann.

In den beiden unteren Stockwerken der beiden Gebäude löst sich die Fassade in große Glasflächen auf. Nur wenige Stützen reichen in Form von gemauerten Pfeilern bis zum Boden, andere werden zu runden Betonsäulenpaaren. Die roten Ziegel finden sich auch im Postgebäude von 1914 wieder, dem heutigen Hotel Villa Copenhagen, rechts im Bild.

Ursprünglich planten wir mit dem klinkergebrannten D48. Aber während unserer Planungen stießen wir auf D35, der etwas zurückhaltender ist und sich somit mehr dem sehr raffinierten Mauerwerk unterordnet. Gleichzeitig bietet der D35 ein subtiles Farbspiel, er ändert seine Nuancen nicht nur von Stein zu Stein, sondern auch innerhalb desselben Steins, was ihn ausgesprochen interessant macht.

Spezialsteine

Das Gebäude der Danske Bank ist ein Beispiel für eine Fassade mit Verblendung, was als traditionell und schlicht wahrgenommen wird, gleichzeitig aber sehr komplex ist. Wir haben die Fassaden mit zahlreichen gemauerten Details versehen, die man heutzutage nur noch selten sieht, denen wir aber eine moderne Note verliehen haben: Rücksprünge, Vorsprünge, Reliefs, Pfeiler, Gesimse, Konsolen, Fensterbänke und Fälze. Für das Mauerwerk mussten wir ein Modell im Maßstab 1:1 erstellen, und es bedurfte umfangreicher Detailarbeiten, um es so umzusetzen, wie wir es geplant hatten. Ursprünglich hatten wir keine Steine in Sonderformaten vorgesehen, aber im Lauf des Entwurfs wurden Spezialsteine zu einem wesentlichen Bestandteil des Mauerwerks. Insgesamt haben wir 35 verschiedene Spezialsteine entworfen, darunter neun Kantsteine mit unterschiedlichen Winkeln, Falzziegel und Lüftungssteine.

Da Petersen die Steine von Hand fertigt, konnten sie alle von uns entworfenen Formate liefern. Nur wenige Menschen, die heute die Fassade betrachten, erkennen die Spezialsteine, sie tragen jedoch wesentlich zum Gesamtbild des Gebäudes bei.

Zusammenarbeit

Während der gesamten Arbeiten haben wir ein außerordentliches Maß an Zusammenarbeit mit dem Bauherrn, dem Bauunternehmer, dem Ingenieur, der Maurerfirma und der Ziegelei erlebt. Ohne dieses Engagement aller Beteiligten hätte sich dieses Projekt nicht realisieren lassen. Wir selbst waren während der einjährigen Bauphase auf der Baustelle aktiv. Bei einem so komplizierten Mauerwerk sind Fehler unvermeidlich, und es war eine große Hilfe, dass Petersen Tegl sehr schnell neue Spezialsteine liefern konnte, wenn wir sie brauchten. Außerdem war es großartig, dass die Ziegelei den Spezialsteinen dieselben Namen gegeben hat, wie wir sie in unseren Zeichnungen benannt hatten. Als wir auf der Baustelle eine Ecke mit einem J-Stein mauern wollten, auf dem Gerüst jedoch ein G-Stein lag, riefen wir sofort: Stopp! Wir sind heruntergestiegen und haben den J-Stein gesucht. Ein weiterer Vorteil, wenn die Produktion von Hand erfolgt.

Zentrale der Danske Bank, Bürogebäude und Stadtraum, Kopenhagen

Bauherr: Danica Pension

Architekt: Lundgaard & Tranberg Arkitekter A/S

Generalunternehmer: Per Aarsleff A/S

Ingenieur: COWI A/S

Landschaftsarchitekt: Lundgaard & Tranberg Arkitekter, Julie Kirkegaard A/S

Bauzeit: 2015–2023

Fertigstellung: 2023

Ziegel: D35 DNF, D35 FF, Kolumba F469 und verschiedene Spezialsteine aus demselben Lehm

Text: Michael Sheridan Dr. arch. und Autor

Foto: Anders Sune Berg

Foto, Interior, Seite 13: Hampus Berndtson

Eine Auswahl der etwa 35 verschiedenen Spezialsteine, die von den Architekten entworfen und in Holzformen in der Ziegelei in Broager hergestellt wurden. Der quadratische Stein mit kreisförmigem Ausguss ist alle 6 Meter unterhalb der Dachkante angebracht und soll bei starken Regenfällen für Abfluss sorgen.

Die Architekten trafen sich mit Mitarbeitern von Petersen Tegl im Studio der Ziegelei in Kopenhagen.

Das Stadthaus am Cottage Place ist mit einer formalen und symmetrischen, von einem Palazzo inspirierten Fassade entworfen. Die Loggias bilden einen Puffer zu den privaten Räumen des Hauses, das wie ein traditioneller Palazzo angelegt ist, mit den Hauptwohnräumen im ersten Stock, dem Piano nobile

Mehr ein Palazzo als ein Wohnhaus

TROTZ SEINER MONUMENTALITÄT WIRKT DIESES LUXURIÖSE WOHNHAUS IN KENSINGTON NICHT WIE EINE MASSIVE FESTUNG. GANZ IM GEGENTEIL:

DIE TEILS OFFENEN, TEILS PRIVATEN RÄUME HEBEN DIE GRENZEN DES HAUSES AUF.

Der Bau eines modernen Hauses im Londoner Stadtteil Kensington, umgeben von wichtigen historischen Gebäuden wie dem Brompton Oratory, ist eine Herausforderung. Doch die Karriere von David Chipperfield, dem jüngsten Pritzker-Preisträger, zeichnet sich durch einen intensiven Dialog mit der Vergangenheit aus, insbesondere nach seiner berühmten Umgestaltung des Neuen Museums in Berlin.

Das Wohnhaus, das David Chipperfield Architects London nun entworfen haben, nimmt mit viel Eleganz seinen Platz im Herzen des historischen Londons ein. Wie viele andere Gebäude des Büros zeigt es, dass die moderne Architektur durch die Idee der Kontinuität bereichert wird: Man erfindet die Architektur nicht jeden Tag neu, vielmehr folgt man bereits vorhandenen Spuren.

Im Fall des Wohnhauses in Kensington kommt die Kontinuität beispielsweise in der Verwendung von Materialien zum Ausdruck, in diesem Fall von Ziegeln, die sich auch in den benachbarten Reihenhäusern am Brompton Square wiederfinden. Die Holy Trinitiy Church, nur wenige Meter am Cottage Place entfernt, wurde ebenfalls aus Ziegelsteinen erbaut. Beim neuen Wohnhaus wurde sowohl im Inneren als auch auf den Loggien Travertin für die Fußböden verwendet, an der Fassade sind Betonstürze mit großer Körnung zu sehen – Materialien, die auf den Portland-Stein des Brompton Oratory verweisen.

Gleichzeitig wird an vielen Stellen das Säulenmotiv aufgegriffen, das auch an der Frontfassade des Oratoriums zu sehen ist. Hier nun dienen die Rundpfeiler dazu, eine gewisse klassische Monumentalität auszudrücken. Es besteht kein Zweifel, dass dieses Haus eher ein Palazzo ist als ein Wohnhaus.

Am Eingang empfängt uns ein einzelner, relativ massiver und niedriger Rundpfeiler, der dem Foyer einen fast archaischen Charakter verleiht. Über die Loggia und das Foyer gelangt man über eine breite Treppe in den ersten Stock, den Piano nobile, wo sich die wichtigsten Wohnräume und die Küche befinden. Wie es sich für einen klassischen italienischen Palazzo gehört, sind die Decken im repräsentativen Bereich des Hauses viel höher als in den anderen Stockwerken.

Fast die Hälfte des Hauses liegt unter dem Straßenniveau, um das ehrgeizige Raumprogramm, das ein Spa mit Schwimmbad und ein Kino vorsah, zu verwirklichen. An der Rückseite des Hauses befindet sich ein abgesenkter Innenhof, der wie eine erweiterte Version des typischen Dienstboteneingangs an der Vorderseite von Stadthäusern in vielen alten Londoner Stadtvierteln erscheint. Hier wurde dem Innenhof jedoch mehr Raum gegeben, ein schöner Garten mit Birken, der es in den Gästezimmern im ersten Untergeschoss ermöglicht, natürliches Licht zu genießen.

16
Nebenan befindet sich das neoklassizistische Brompton Oratory, das vom Architekten Herbert Gribble entworfen und 1884 eröffnet wurde. Der versteckte Garten an der Rückseite des Hauses wurde mit Travertinplatten versehen und mit Birken und einer viereckigen Hecke bepflanzt. Foto: © Simon Menges

2. Untergeschoss

1. Untergeschoss

Nach oben hin nimmt die Anzahl der Pfeiler zu, gleichzeitig werden sie jedoch schlanker. Der niedrige Pfeiler im Erdgeschoss markiert den Eingangsbereich. Die Pfeiler werden aus abgerundeten Spezialsteinen gebaut, die in der Ziegelei von Hand hergestellt werden.

Wohnhaus in Kensington, London

Bauherrschaft: Hill Spink Ltd.

Architekten: David Chipperfield Architects, London

Bauunternehmung: Cottage PL LLP

Ingenieure: Hannaford Upright

Fertigstellung: 2008

Ziegel: D71 DNF, und Spezialziegel für die Säulen

Text: Nathan Romero, Architekt und Autor

Foto: Philip Vile, Simon Menges

Da die Frontfassade ihre Wirkung am besten entfaltet, wenn man sie aus der Ferne betrachtet, verwendeten die Architekten skulpturale Elemente, um die massive Ziegelsteinfassade aufzubrechen und zu gliedern. Dies zeigt sich zum Beispiel in der Terrassierung des Gebäudes von der Vorderseite zur Hofseite, in dem bereits erwähnten abgesenkten Innenhof und den Loggien, die vom Wohnzimmer bis in den zweiten Stock stufenweise für viel Tageslicht sorgen.

Nähert man sich dem Haus von der Straße, erkennt man die vielen Variationen und die Textur der wassergestrichenen Ziegel. Dasselbe gilt für die sorgfältige Bronzearbeit der Geländer: Neben ihrer Funktion werden sie zu einem zarten Schleier, der gerade vor den Rundpfeilern an Dichte verliert, sodass diese in ihren vollen Proportionen wahrgenommen werden.

Trotz seiner von der Umgebung vorgegebenen Monumentalität ist dieses luxuriöse Wohnhaus keine massive Festung – ganz im Gegenteil. Die teils offenen, teils privaten Räume heben die Grenzen dieses Hauses auf. Die Loggien bereichern und erweitern die Nutzungsmöglichkeiten des Gebäudes. So lässt sich der Ausblick auf das Oratorium in den oberen Stockwerken von drinnen und draußen genießen. Auf der Rückseite des Hauses erlaubt der abgesenkte Innenhof ein weiteres Erlebnis im Freien.

Die Art und Weise, wie das Haus die benötigte Massivität und Präsenz gegenüber dem Oratorium und der Kirche erlangt und wie es seinen Körper nach Norden hin reduziert, damit die Nachbarhäuser nicht im Schatten liegen, möchte uns etwas mitteilen. Nämlich eine sorgsame und zivilisierte Haltung, die ich als gute Manieren bezeichnen möchte, wenn es so etwas bei Gebäuden überhaupt gibt.

Der sehr schlicht gehaltene Poolbereich hat eine Zen-Atmosphäre, mit Travertinplatten und Decken und Wänden aus Obeche-Holzleisten. Foto: © Simon Menges

Das an einem Park gelegene Haus ist von Ziegelgebäuden umgeben, darunter auch eine Garagenanlage aus London stockbrick.

»Wir wollten ein Mauerwerk mit einem monolithischen Bild und einen von Hand gefertigten hellen gelben Stein. Daher haben wir uns für D71 im Hamburger Format im Kreuzverband entschieden. Der Mörtel ist im Farbton genau dem Ziegel angepasst.«

Sebastian Drewes, Architekt, David Chipperfield Architects London

Die Geländer des Gebäudes sind aus Bronze und öffnen sich stärker vor den Pfeilern, sodass diese in ihren vollen Proportionen wahrgenommen werden.

Querschnitt durch das Brompton Oratory und das Wohnhaus am Cottage Place.
Erdgeschoss
2.
1. Obergeschoss
Obergeschoss

Norra Furuholmen in den Schären von Turku erfüllte die Anforderungen des Bauherrn, dass sich das Haus in die Topografie einfügen und die Möglichkeit zum Anlegen eines Bootes bieten sollte.

Ferienhaus, Norra Furuholmen, Rosalandet-Archipel, Finnland

Bauherr: Privat

Architekt: Gustav Jerlvall Jeppsson, heute STRÅ Arkitekter, und Sarita Poptani

Zimmermann: Bauunternehmen Jerker Jensén

Fertiggestellt: 2020

Ziegel: D71FF

Text: Ida Præstegaard, Architektin

Foto: Thurston Empson

Der Flügel mit den Gemeinschaftsräumen endet mit einem Speisesaal mit großen Glasflächen im Norden, Osten und Süden. Die fehlenden Sockelleisten vermitteln den Eindruck, dass der Raum zur Landschaft hin offen ist. Die Abschlusswand aus D71 umfasst einen gemauerten Kamin und eine Bank aus demselben Stein.

Als hätte die Natur den Stift geführt

BEI DIESEM PROJEKT, EINEM FERIENHAUS IM FINNISCHEN SCHÄRENGARTEN, LAUTETE DIE VORGABE, DASS DER ORT SO WENIG WIE MÖGLICH BEEINTRÄCHTIGT WERDEN SOLLTE. DAS ERGEBNIS SIND FÜNF HOLZVERKLEIDETE GEBÄUDE, DIE SCHEINBAR ÜBER DIE KLIPPEN KLETTERN UND GASTGEBER SOWIE GÄSTE MIT DEM MEER, DEN KLIPPEN UND DER VEGETATION IN KONTAKT KOMMEN LASSEN.

Beim Entwurf eines Ferienhauses auf seiner eigenen, 43.000 m² großen Insel Norra Furuholmen im finnischen Schärengarten ist der Bauherr einen unkonventionellen Weg gegangen. Er wollte einigen Studierenden, die kurz vor ihrem Abschluss standen, eine Chance bieten. Daher wandte er sich an die Aalto-Universität in Espoo, wo unter einer Gruppe von Studierenden ein Wettbewerb durchgeführt wurde.

Norra Furuholmen liegt im bezaubernden Schärengarten von Åbo, etwa 150 km südwestlich von Helsinki. Laut den Vorgaben sollte das Haus 400 m² groß sein, 22 Schlafplätze bieten und dem Gastgeber und seinen Gästen die Möglichkeit bieten, sich zurückziehen zu können. Das Gebäude sollte sich dezent in das hügelige Gelände einfügen und so positioniert werden, dass es für vorbeifahrende Segelboote und Kanus kaum sichtbar ist.

Gustav Jerlvall Jeppsson und Sarita Poptani, die damals noch an der Architekturschule in Kopenhagen beziehungsweise an der Aalto-Universität in Helsinki studierten, versuchten den ganzen Sommer 2015 über, die Anforderungen zu erfüllen – und gewannen mit ihrem Entwurf.

Ihnen gelang es, die zwingende Vorgabe zu erfüllen, dass die Natur so wenig wie möglich beeinträchtigt werden sollte. Man stößt immer wieder auf diese Forderung, aber nur selten trifft man auf ein Gebäude, bei dem sie so gut umgesetzt wurde, wie auf Norra Furuholmen.

»Der Pool wurde in die Klippen eingelassen, aber darüber hinaus musste der Granitfelsen an keiner anderen Stelle bearbeitet werden«, erzählt Gustav Jerlvall Jeppsson.

»Die Lösung war, das Haus in fünf Baukörper aufzuteilen, die sich jeweils an das Terrain anpassen. Auf diese Weise

folgt man den Formen der Klippen, auch wenn man sich im Haus bewegt.«

»Dadurch konnten wir auf Flure im Innern verzichten. Man muss die Holzterrassen betreten, die alle Teile miteinander verbinden, um von einem Haus in das nächste zu gelangen. Die Nähe zur Natur ist wichtiger als trockene Füße.«

Das Haus verfügt über keinen Haupteingang, und man geht über einen teilweise mit Holz verkleideten Klippenpfad, der mal auf der einen, mal auf der anderen Seite des Geländes verläuft. Zwischen den Häusern sind so verschiedene Aufenthaltsräume entstanden, die alle der Sonne oder der Aussicht folgen. An der Süd- und Nordküste der Insel wurden ein Strandhaus und eine Sauna angelegt, durch deren Panoramafenster man den Sonnenuntergang über der Ostsee beobachten kann.

Das Haupthaus mit Wohnzimmer, Küche und ganz oben einem Esszimmer erstreckt sich über drei Ebenen. Die Zimmer, alle mit eigenem Bad, ein Büro und ein Fitnessraum befinden sich in den weiteren Gebäuden. Große Glasfronten, die sich in allen Räumen vom Boden bis unters Dach erstrecken, heben die Abgrenzung zwischen drinnen und draußen auf und wurden so platziert, dass sie jeweils den besten Ausblick bieten.

Um den architektonischen Ausdruck zu betonen, folgen die Dachneigungen von vier Häusern konsequent der Topografie des Geländes. Das Dach des Haupthauses hat eine etwas stärkere Neigung und bietet so Platz für ein Schlafzimmer zwischen den Baumkronen.

Beim Bau wurden ausschließlich natürliche Materialien verwendet. Die Außenverkleidung ist aus Lärche. Türen und

Fenster sind aus Kiefernholz. Der Küchentisch und die Böden in den Badezimmern wurden aus lokalem Granit gefertigt. Die Holzdielen bestehen aus massiver Eiche.

Von Anfang an wurde der Ziegelstein auf verschiedene Weise in das Projekt einbezogen und so verwendet, dass die Grenzen zwischen drinnen und draußen verschwimmen. Ein Außenkamin und drei Innenkamine sowie mehrere Wände, darunter die tragende Wand mit eingebauter Bank zwischen Wohnzimmer und Küche, wurden in D71 im Flensburger Format ausgeführt.

Nach Süden hin wird das Haus durch eine elf Meter lange, geknickte Wand abgeschirmt, die Geländeunterschiede auffängt und als Pflanzkasten für Kräuter dient. »Wir haben die Wand mit Mustern versehen, die ein Spiel aus Licht und Schatten erzeugen. In der Natur findet man nur selten glatte Oberflächen, und aufgrund ihrer Struktur fügt sich die Mauer in das Gelände ein. Sie wirkt nicht so hart wie es bei einer glatten Mauer der Fall wäre.«

Die Auswahl des richtigen Ziegels wurde schon früh getroffen. »In der Materialbibliothek der Architekturschule in Kopenhagen habe ich einen Stein im Flensburger Format von Petersen Tegl gefunden und wir haben sofort beschlossen, dass dieses schmale Format perfekt ist. Wir haben verschiedene Farbmuster bestellt und uns für D71 entschieden. Dieser weiß-gelbe Ziegelstein passt sehr gut zu den weißen Wänden und den hellen Tönen des im Innenraum verwendeten Holzes. Im Freien harmoniert der weiß-gelbe Ziegel mit Klippen, Heidekraut und Kiefern.«

18

Die Außenwände sind mit grau patiniertem Lärchenholz verkleidet, das wunderbar mit den grauen Felsen und den Kiefern- und Birkenstämmen harmoniert.

»Von Anfang an wurden Ziegel auf verschiedene Weise in das Projekt einbezogen. Und so eingesetzt, dass sie dazu beitragen, den Übergang zwischen Innen und Außen zu verwischen. Das schmale FF-Format erwies sich dafür als das richtige.« Gustav Jerlvall Jeppsson, Architekt

Im Wohnzimmer, im Büro und im Hauptschlafzimmer befinden sich gemauerte Kamine. Dabei weist die Wand im Hauptschlafzimmer dekorative Löcher für die Entlüftung des Kamins auf.

Auf beiden Seiten der Ziegelsteinwand im Esszimmer führen zwei Eichentreppen hinauf zur Küche und von dort zum Wohnzimmer, das sich zu einer der vielen Terrassen hin öffnet.

Die lange, unterbrochene Mauer im Süden zeichnet sich durch ihr markantes Muster aus. Die Mauer fängt Geländeunterschiede auf, gleichzeitig können in ihr Kräuter angepflanzt werden.

Schnitt Lageplan

Die neue Transformatorenstation fügt sich in die bestehende Anlage ein. Das Design und die Materialwahl orientieren sich an dem links abgebildeten denkmalgeschützten Umspannwerk aus dem Jahr 1947, das von Aarne Ervi, einem der wichtigsten finnischen Nachkriegsarchitekten, entworfen wurde.

Das fast geflochten wirkende Mauerwerk verleiht der Fassade Struktur. Die Textur und die dezenten Farbunterschiede der Ziegel unterstreichen diesen Effekt.

Grundriss

Längsschnitt Querschnitt

Lageplan

Transformatorenstation Tammisto, Vantaa, Finnland

Bauherr: Fingrid Oyj

Architekt: Virkkunen & Co Architects

Bauunternehmung: RTA-Yhtiöt Oy

Ingenieure: Victor Abramov, AFRY Finland

Fertiggestellt: 2023

Ziegel: D36 DNF und 13 Spezialsteine

Text: Martin Søberg, Architekturhistoriker, Ph. D.

Foto: Tuomas Kivinen

Die Fassaden bestehen aus vier Arten von Mauerwerk, die die verschiedenen Teile des Gebäudes kennzeichnen. Das Erdgeschoss besteht aus rustikalem Ziegelmauerwerk, während das Obergeschoss entweder aus blankem Ziegelmauerwerk oder aus zwei verschiedenen Arten von gemustertem Mauerwerk besteht.

20

Im Erdgeschoss werden die Steine jede zweite Reihe nach vorne gezogen, während Blöcke aus jeweils drei Ziegeln gelochte diagonale Muster des Obergeschosses bilden.

Die Fassaden sind als Doppelwände konstruiert, wobei das Mauerwerk an Stahlrahmen befestigt ist und eine Glaswand die Gebäudehülle bildet.

Für das komplizierte Mauerwerk waren 13 verschiedene Arten von Spezialsteinen erforderlich, die in Holzformen in der Ziegelei hergestellt wurden. Nur die elliptischen Löcher für die Bewehrung des Steins in der rechten unteren Ecke wurden in Finnland geschnitten.

Die Öffnungen im Mauerwerk lassen Tageslicht in den Prozessraum einfallen, in dem sich das gasisolierte Kupplungssystem befindet, schirmen aber auch unerwünschte Blicke ab.

»Wir haben detaillierte 3D-Modelle von jedem einzelnen Ziegelstein erstellt und 13 verschiedene Spezialsteine in Holzformen verwendet. Das war einer der Gründe, warum wir uns für Petersen Tegl entschieden haben. Es gibt nicht viele Ziegeleien, die diese Flexibilität ermöglichen.«

Tuomas Kivinen, Architekt, Virkkunen & Co Architects

Komplexe Einfachkeit

WIE EINE IRREGULÄRE KISTE AUS ZIEGELSTEINEN UMGIBT DAS UMSPANNWERK TAMMISTO SEINE SCHALTANLAGE. DIE VIER MAUERWERKSTYPEN AN DEN FASSADEN VERWEISEN AUF DIE UNTERSCHIEDLICHEN FUNKTIONEN IM INNEREN DES GEBÄUDES.

Das Umspannwerk Tammisto liegt in der Stadt Vantaa, im Süden Finnlands, in der Nähe von Helsinki und des Flughafens der Stadt. Die Anlage ist an einer Ringstraße situiert, in der Umgebung befinden sich Wohn- und Geschäftshäuser in unterschiedlicher Größe. Das Umspannwerk ist Teil einer größeren Anlage für die Stromversorgung und spielt eine zentrale Rolle für die Region. Auf dem Gelände befindet sich auch ein denkmalgeschütztes Umspannwerk aus dem Jahr 1947, das aus zwei Gebäuden in rotem Ziegelstein, einem hohen Turm und einem niedrigeren Flügel besteht. Dieses Werk inspirierte Virkkunen & Co Architects beim Entwurf des neuen Umspannwerks: Das Gebäude erscheint als rechteckiges Volumen, in dessen Längsseite ein Keil eingeschnitten zu sein scheint, der das Gebäude in zwei Teile teilt.

Die gasisolierte Schaltanlage befindet sich in einem über zwei Etagen reichenden Steuerraum im größeren der beiden Gebäudeteile. Sie ist direkt mit der Schaltwarte im kleineren Gebäudeteil verbunden. Darin sind temporäre Arbeitsplätze eingerichtet, da das Umspannwerk nicht ständig besetzt ist.

Das Gebäude wurde in einer Betonkonstruktion aus vorgefertigten Rahmen und Paneelen errichtet, wobei die Fassaden jedoch in vier verschiedenen Mauerwerkstypen ausgeführt wurden. Das Erdgeschoss bildet ein durchgehendes, horizontales Band aus rustikalem Mauerwerk, bei dem jeder zweite Stein herausgezogen wurde. Über diesem Band befindet sich an den Längsseiten des größeren Gebäudeteils ein normales Mauerwerk im Halbsteinverband.

An den Fassaden des Gebäudes sowie an der Ostfassade des kleineren Gebäudeteils findet sich dagegen ein Mauerwerksmuster mit vertikalen Schlitzöffnungen in diagonaler Struktur. Die Öffnungen lassen Tageslicht in den Kontrollraum und einen Teil des Steuerraums einfallen, verhindern aber gleichzeitig, dass man hineinblicken kann. Die Westfassade des kleineren Gebäudes weist eine Art umgekehrte Version des Lochmauerwerks auf, bei der die Schlitzöffnungen durch drei übereinander gelegte Ziegel ausgefüllt werden, die vorstehen.

»Die Ziegel sollten die rote Farbe des vorhandenen Umspannwerks aufgreifen, aber nicht so dunkel sein wie diese«, erklärt Tuomas Kivinen, Partner und CEO von Virkkunen & Co Architects. »Aus diesem Grund haben wir uns für D36 entschieden. Der Stein weist dieselben Rottöne auf, ist aber etwas heller, denn wenn wir mit verschiedenen Mauerwerksarten arbeiten, kommen diese am besten zur Geltung, wenn der Stein nicht zu dunkel ist.«

»Auf der anderen Seite darf die Farbpalette nicht zu breit sein, weil dies die Wirkung des Musters zerstören würde. Normalerweise werden die Steine von den Maurern gemischt, aber bei Petersen Tegl geschieht das in der Fabrik, was ein gutes Ergebnis gewährleistet. Petersen Tegl ist besonders gut darin, Ziegelsteine so zu mischen, dass keine unglücklichen Kombinationen oder Flecken entstehen. Das Ergebnis ist ein behutsamer Farbverlauf, gleichzeitig entsteht aber auch ein einheitliches Gesamtbild.«

Die perforierten Fassaden wurden als Doppelmauer errichtet, bei denen das Mauerwerk an einem Stahlrahmen befestigt wurde. Dahinter befindet sich eine Glaswand als Klimaschirm, und zwischen den Wänden liegt ein schmaler Raum, der als Lager oder für technische Geräte genutzt werden kann. Im Inneren sind die Böden, Wände und Decken weiß, mit Ausnahme des Übergangs zwischen den beiden Gebäudeteilen, wo die Betonwand mit Ziegeln verkleidet ist. »Es handelt sich in vielerlei Hinsicht um ein komplexes Gebäude, weshalb das Innere abstrakt und fast immateriell ist. Wir haben es vereinfacht und alles im Kontrast zur warmen Farbe der Ziegel weiß gehalten«, sagt Tuomas Kivinen.

Neben dem neuen Umspannwerk wurden im Zug des Umbaus der Anlage die bestehenden luftisolierten Strommasten entfernt und durch neue gasisolierte Masten ersetzt. Durch diese Veränderungen wurde Platz für eine wiesenartige Landschaft zwischen den Gebäuden geschaffen, in der das Oberflächenwasser in einem kleinen See gesammelt wird. In der Nähe des Umspannwerks wurde auch ein neues Notstromaggregat errichtet, das an drei Seiten durch Ziegelfassaden und ein Gitter aus Cortenstahl abgeschirmt ist, das farblich auf die Ziegel abgestimmt ist. Die Betonoberflächen von zwei Transformatorenstationen aus den 1980er Jahren wurden ebenfalls chemisch behandelt und erhielten einen dunklen Umbra-Farbton, der sich in das warme Gesamtbild der Anlage einfügt.

Für die Keilform des neuen Umspannwerks und das besondere Mauerwerk benötigte man besondere Ziegelsteine. Tuomas Kivinen berichtet: »Dieses Gebäude umfasst rechtwinklige, spitze und stumpfe Winkel, verschiedene Öffnungen und unterschiedliche Mauerwerksmuster. Wir haben detaillierte 3D-Modelle von jedem einzelnen Ziegelstein erstellt und 13 verschiedene Spezialsteine in jeweils eigenen Formen verwendet. Das war einer der Gründe, warum wir uns für Petersen Tegl entschieden haben. Es gibt nicht viele Ziegeleien, die diese Flexibilität ermöglichen.«

21

Wohnhaus, Totteridge, London

Bauherr: Privat

Architekt: Gregory Phillips

Bauunternehmer: RelicPride

Ingenieure: Heyne Tillett Steel

Fertiggestellt: 2021

Text: Nathan Romero, Architekt und Autor

Ziegel: D51 FF

Foto: Andrew Beasly

»Wir haben uns für das Flensburger Format entschieden, da es im Vergleich zu den traditionellen Ziegelsteinen in Großbritannien einzigartig ist. Mit seiner Höhe von 40 mm wirkt der Stein länger und lässt so auch das Gebäude länger erscheinen.«

Gregory Phillips, Architekt

Ein Essay über den Ziegelstein

IM GEFRAGTEN STADTTEIL TOTTERIDGE NÖRDLICH VON LONDON BEFINDEN SICH HAUPTSÄCHLICH

FREISTEHENDE, ZWEISTÖCKIGE EINFAMILIENHAUS-BUNGALOWS. DIE MEISTEN VON IHNEN ZEICHNEN SICH DURCH IHREN TRADITIONELLEN ARCHITEKTONISCHEN STIL MIT KUBISCHEN PROPORTIONEN UND DIE BAUWEISE AUS ZIEGELSTEIN AUS.

Die Architekten entwarfen das Gebäude mit einem kreuzförmigen Grundriss, der das Volumen in kleinere Einheiten unterteilt. Diese Bauweise bietet die Möglichkeit, eine kleinere Maßstäblichkeit zu erzielen und alle Räume natürlich zu belichten und belüften. Gleichzeitig ermöglicht sie einen engeren Kontakt mit der Natur, in diesem Fall mit einem üppigen und abwechslungsreichen Garten, der von jedem Raum des Hauses aus sichtbar ist.

Über eine gepflasterte Einfahrt erreicht man das Haus und betritt dort zunächst eine Art offenes Vestibül, einen interessanten Raum, der durch die Garagenwand und das Haus entsteht. Ein paar Stufen weiter unten steht man vor der Haustür. Dieser indirekte Zugang weckt Erwartungen und gibt uns erste Hinweise auf das Innere des Hauses sowie einen Vorgeschmack auf den üppigen Garten.

Die Architekten sind ihrem Grundsatz treu geblieben: Die privaten, verborgenen Bereiche wurden aus Ziegeln erbaut, während die Wohn- und Schlafräume aus Glas und Holz geschaffen sind. Da die Schlafräume sinnvollerweise im ersten Stock und die Wohnräume im Erdgeschoss untergebracht

sind, werden sowohl die konstruktive Logik als auch unsere Intuition herausgefordert: In der sich über zwei Etagen erstreckenden Galerie beispielsweise scheinen eine meterbreite Ziegelwand in der Luft und das obere Stockwerk über dem Boden zu schweben.

Dieser Effekt einer »schwebenden Wand« war bei vielen Vertretern der Moderne beliebt. Man denkt unwillkürlich an Häuser von Marcel Breuer und Harry Seidler. Denn mit seiner Größe und Geometrie ist dieses Haus ein eindeutig modernistisches Ensemble aus senkrechten Wänden. Die Wahl des Ziegels schafft es jedoch, das Haus mit der Umgebung in Verbindung zu bringen und es gleichzeitig zu »vermenschlichen«. Die Ziegel werden an manchen Stellen auf eine beinahe textile, nicht-strukturelle Weise verwendet. So wird beispielsweise durch einen Sägezahnverband mit zurückgezogenen Fugen ein Gittereffekt erzielt, der der Wand Lebendigkeit und Tiefe verleiht. Dabei kommt eine der attraktivsten Eigenschaften des traditionellen Mauerwerks zum Einsatz: der unerschöpfliche Reichtum an Textur und Relief, den verschiedene Ziegel und Verbände dem Architekten bieten. Das dekorative Design

der Ziegel wurde hier zu einer subtilen, aber wirkungsvollen, minimalistischen Abstraktion heruntergebrochen.

Die Ziegel finden sich auch im Innern des Hauses wieder. So verschwimmen die Grenzen zwischen Innen und Außen. Im nördlichen Wohnzimmer stellt der große, gemauerte Kamin die einzige Wand nach Westen dar. Im Inneren des Hauses finden wir als Ergänzung zu den grauen wassergestrichenen Ziegeln dunkel gebeiztes Zedernholz an den Wänden und polierten Beton auf den Böden.

An anderen Stellen vermitteln die Ziegel Massivität, wie bei den tief eingelassenen Fenstern. Dies geschieht aus energetischen Gründen, um eine Überhitzung der nach Süden ausgerichteten Räume zu vermeiden.

Gregory Phillips, der verantwortliche Architekt, beschreibt es als einen »Essay über das Mauerwerk«, was angesichts der vielen verschiedenen Arten, in denen der Ziegelstein in der zurückhaltenden und minimalistischen Ästhetik des Hauses auftaucht, als zutreffende Beschreibung erscheint.

22
Das Gebäude wurde so konzipiert, dass die Ausrichtung des Grundstücks optimal genutzt wird. Zum Garten hin bieten große Glasflächen im Erdgeschoss und große Fenster im Obergeschoss einen ungehinderten Blick auf The Green Belt.

Architektonisch orientiert sich die Villa nicht an ihren Nachbarn, die Materialien – Ziegel und Holz – sind jedoch gleich. Für die großen Flächen der Fassaden haben sich die Architekten für das schmale Flensburger Format im Läuferverband entschieden, ergänzt durch Abschnitte aus Sägezahnmauerwerk. Die 45-Grad-Positionierung der Steine erzeugt ein lebhaftes Lichtspiel.

Längsschnitt

Grundriss 1. Obergeschoss

Auf dem Weg zum Eingang, der sich in der Mitte der Südfassade befindet, kommt man an der Garage vorbei, die ebenfalls aus Ziegeln erbaut wurde und so eine Einheit mit dem Gebäude bildet.

Grundriss Erdgeschoss Lageplan

Die Fenster in den meisten Fassaden des Hauses sind zurückversetzt, um eine Überhitzung der Räume in den Sommermonaten zu verhindern.

2323

D-Stein im Fokus

Als Christian A. Petersen vor 55 Jahren das Familienunternehmen übernahm, begann er sofort damit, mit neuen Ziegeln zu experimentieren und weitere Ziegel zu entwickeln. Diese Experimente resultierten unter anderem im rustikalen D-Stein mit seinem reichen Farbspiel, der heute in mehr als 30 verschiedenen Varianten erhältlich ist und in die ganze Welt exportiert wird. In dieser Ausgabe stellen wir den D-Stein in den Mittelpunkt.

25 Jahre PETERSEN Magazin

In diesem Jahr feiert die Ziegelei ein weiteres Jubiläum: Das Magazin erscheint bereits im 25. Jahr und in der 50. Ausgabe. Der Jubiläumsartikel stammt von Thomas Bo Jensen, Architekt und Forschungsleiter der Architekturschule Aarhus. Darin lässt er – ganz im Geist der Ziegelei und dieses Magazins – die Architekten zu Wort kommen.

Eine Auszeichnung für Gebäude aus Ziegeln

> Das Pillows Hotel Maurits at the Park in Amsterdam, entworfen von Office Winhov und erbaut mit D46 und vielen Spezialsteinen, wurde 2023 mit dem Erich-MendelsohnPreis in Bronze ausgezeichnet. Foto: Stefan Müller.

Het Steen in Antwerpen, Belgien, entworfen von noAarchitecten und erbaut in Abstufungen von D55, D96, D54, D51, D90 und D190, geliefert in 17 verschiedenen Mischungen. Das Projekt wurde 2024 für den Mies van der Rohe Award nominiert. Foto: Kim Zwarts.

>> Das Merkur-Haus in Göteborg, Schweden, entworfen von Olsson Lyckefors Arkitektur und erbaut mit D91 FF, wurde 2024 für den Mies van der Rohe Award nominiert. Foto: Ulf Celander.

Preis für die Verschönerung Kopenhagens

Am 18. Januar 2024 wurden Christian A. Petersen und Petersen Tegl vom Verband für die Verschönerung der dänischen Hauptstadt ausgezeichnet. Der bereits 1885 gegründete Verband »setzt sich für die ästhetische Verschönerung und den Erhalt bedeutender Gebäude in Kopenhagen ein«.

In seiner Begründung heißt es unter anderem: »Schönheit liegt im Detail und eine schöne Architektur beruht auf dem Zusammenspiel zwischen Ausdruck, Technik und Materialien. Kleinste Bausteine der Architektur bilden die Grundlage für ein attraktives Ganzes. Hergestellt aus zu 100 % natürlichen Materialien. Sie haben eine Lebensdauer von mehreren hundert Jahren und benötigen keine Wartung. Heute, in Zeiten der Industrialisierung des Bauwesens, müssen wir an den Traditionen des guten Ziegelbaus festhalten. Wir müssen die dem Ziegelstein innewohnende Schönheit und seine tektonische Klarheit erkennen. Gleichzeitig müssen wir einen Weg finden, wie wir den Ziegelstein in unsere Zeit bringen. Und genau das kann Petersen Tegl. Seit mehreren Jahren verschönert die Ziegelei in Zusammenarbeit mit erfahrenen Architekten Kopenhagen und den Rest der Welt mit schönen, dauerhaften und wunderbaren Steinen.«

BERATER PETERSEN TEGL

DÄNEMARK OST ARNE GOTFREDSEN T: +45 2967 7030 E: AGO@PETERSEN-TEGL.DK

DÄNEMARK WEST UND FÜNEN TORBEN SCHMIDT T: +45 2028 4355 E: TSC@PETERSEN-TEGL.DK

EXPORTMANAGER STIG H. SØRENSEN T: +45 4014 1236 E: SHS@PETERSEN-TEGL.DK

NORWEGEN MUR DIREKTE AS SIMEN BØE T: +47 2339 2010 E: POST@MURDIREKTE.NO

SCHWEDEN TEGELMÄSTER AB CATHARINA HOLMSTRÖM T: +46 40 542 200 E: INFO@TEGELMASTER.SE

DEUTSCHLAND SCHLESWIG-HOLSTEIN, HAMBURG JUTTA ENGLER T: +49 171 756 19 43 E: ENGLER@PETERSEN-TEGL.DK

DEUTSCHLAND OSTEN, BERLIN, NIEDERSACHSEN, BREMEN ERIC SCHMIDT-BANDUR T: +49 174 3800 667

E: ESB@PETERSEN-TEGL.DK

DEUTSCHLAND SÜDEN/NRW SCHWEIZ DEUTSCHSPRACHIGER TEIL, ÖSTERREICH

ZIEGELSTEIN-KONTOR GMBH T: +49 221 888785-0 F: +49 221 888785-10 E: INFO@ZIEGELSTEIN-KONTOR.DE

BENELUX PETERSEN BENELUX NIEDERLANDE, BELGIEN, LUXEMBURG BJÖRN LUCASSEN T: +31 (0) 652362168 E: BLU@PETERSEN-TEGL.DK

NIEDERLANDE LINEKE LUCASSEN T: +31 (0) 622529266 E: LLU@PETERSEN-TEGL.DK TOM LUCASSEN T: +31 (0) 646236445 E: TLU@PETERSEN-TEGL.DK

GROSSBRITANNIEN STIG H. SØRENSEN T: +45 4014 1236 E: SHS@PETERSEN-TEGL.DK

EUROPEAN BUILDING MATERIALS LIMITED T: +44 (0) 203 805 0920 E: ENQUIRIES@EBMSUPPLIES.COM

POLEN CENTRUM KLINKIERU SCHÜTZ T: +48 58 56 37 201 E: BIURO@CENTRUM-KLINKIERU.PL

OSTEUROPA (OHNE POLEN), ITALIEN INGRID KATHRIN GROKE T: +45 2047 9540 E: IKG@PETERSEN-TEGL.DK

UKRAINE INGRID KATHRIN GROKE T: +45 2047 9540 E: IKG@PETERSEN-TEGL.DK

VISTARK KLINKER T: +380 44 221 47 37 E: VISTARK.KLINKER@GMAIL.COM

AUSTRALIEN UND NEUSEELAND ROBERTSON’S BUILDING PRODUCTS PTY LTD T: +61 3 8199-9599 E: PETER@ROBERTSONS.CO

INDIEN UND NAHER OSTEN ATLAS DEVELOPMENTS INDIA T: +919818932863 E: ISHANVIR@ATLASDEVELOPMENTS.NL

SÜDAMERIKA INGRID KATHRIN GROKE T: +45 2047 9540 E: IKG@PETERSEN-TEGL.DK

TECHNIK UND STÜRZE STEEN SPANG HANSEN T: +45 2142 7962 E: SSH@PETERSEN-TEGL.DK

HERAUSGEBER

PETERSEN TEGL A/S NYBØLNORVEJ 14 DK-6310 BROAGER T: +45 7444 1236 E: INFO@PETERSEN-TEGL.DK WWW.PETERSEN-TEGL.DK

REDAKTION IDA PRÆSTEGAARD, ARCHITEKTIN M.SC. E: IPR@PETERSEN-TEGL.DK

ANNETTE PETERSEN, ARCHITEKTIN M.SC. E: AP@PETERSEN-TEGL.DK

GRAFIK ZANGENBERG DESIGN

ÜBERSETZUNG ADHOC TRANSLATIONS

LEKTORAT MICHAEL HANAK

DRUCK STRANDBYGAARD

REPRO EHRHORN HUMMERSTON

AUFLAGE 115.865

24
Drei Generationen bei der Preisverleihung: Lukas Thomsen, Christian A. Petersen und Annette Petersen. Anders Brøgger, Architekt und Vorstandsmitglied, hatte die Ehre, Christian A. Petersen den Preis zu überreichen.

Turn static files into dynamic content formats.

Create a flipbook
Issuu converts static files into: digital portfolios, online yearbooks, online catalogs, digital photo albums and more. Sign up and create your flipbook.